Property
Account |
| Property ID: | 33678 | Abbreviated Legal Description: | ARLENES #3 LOT 11 BLK 4 |
| Parcel Number: | 310807560411 | Agent Code: | |
| Type: | Real | | |
| Tax Area: | 328 - 400-M-5 | Land Use Code | 11 |
| Open Space: | N | DFL | N |
| Historic Property: | N | Remodel Property: | N |
| Multi-Family Redevelopment: | N | | |
| Township: | 8 | Section: | 7 |
| Range: | 31 |
Location |
| Address: | 11 HAROLD AVE WA 99323 | Mapsco: | |
| Neighborhood: | G BURBANK SFR | Map ID: | |
| Neighborhood CD: | 214711 |
Owner |
| Name: | SCHOENROCK NANCY CAROL | Owner ID: | 58179 |
| Mailing Address: | 11 HAROLD AVE BURBANK, WA 99323 | % Ownership: | 100.0000000000% |
| | | Exemptions: | |
Taxes and Assessment Details
Values
| (+) Improvement Homesite Value: | + | $0 | |
| (+) Improvement Non-Homesite Value: | + | $318,950 | |
| (+) Land Homesite Value: | + | $0 | |
| (+) Land Non-Homesite Value: | + | $75,000 | |
| (+) Curr Use (HS): | + | $0 | $0 |
| (+) Curr Use (NHS): | + | $0 | $0 |
| | | -------------------------- | |
| (=) Market Value: | = | $393,950 | |
| (–) Productivity Loss: | – | $0 | |
| | | -------------------------- | |
| (=) Subtotal: | = | $393,950 | |
| (+) Senior Appraised Value: | + | $0 | |
| (+) Non-Senior Appraised Value: | + | $393,950 | |
| | | -------------------------- | |
| (=) Total Appraised Value: | = | $393,950 | |
| (–) Senior Exemption Loss: | – | $0 | |
| (–) Exemption Loss: | – | $0 | |
| | | -------------------------- | |
| (=) Taxable Value: | = | $393,950 | |
Taxing Jurisdiction
| Owner: | SCHOENROCK NANCY CAROL | | |
| % Ownership: | 100.0000000000% | | |
| Total Value: | $393,950 | | |
| Tax Area: | 328 - 400-M-5 |
| CERFD | CURRENT EXPENSE REFUND 010 | 0.0000000000 | $393,950 | $393,950 | $0.00 | | |
| CURREXP | CURRENT EXPENSE 010 | 1.0175366760 | $393,950 | $393,950 | $400.86 | | |
| HUMNSERV | HUMAN SERVICES 119 | 0.0250000000 | $393,950 | $393,950 | $9.85 | | |
| SLDREL | SOLDIERS RELIEF 121 | 0.0155990005 | $393,950 | $393,950 | $6.15 | | |
| EMERGSER | EMS 147 | 0.3792580840 | $393,950 | $393,950 | $149.41 | | |
| EMSRFD | EMS REFUND 147 | 0.0000000000 | $393,950 | $393,950 | $0.00 | | |
| FD5EXP | FD #5 EXPENSE 689 | 1.2045331840 | $393,950 | $393,950 | $474.53 | | |
| RLBRFD | RURAL LIBRARY REFUND 623 | 0.0000000000 | $393,950 | $393,950 | $0.00 | | |
| RURALLIB | RURAL LIBRARY 623 | 0.3710609029 | $393,950 | $393,950 | $146.18 | | |
| PORTRFD | PORT REFUND 640 | 0.0000000000 | $393,950 | $393,950 | $0.00 | | |
| PORTWWGEN | PORT OF WW 640 | 0.2460186015 | $393,950 | $393,950 | $96.92 | | |
| SD400BOND | SD #400 BOND 793 | 0.0000000000 | $393,950 | $393,950 | $0.00 | | |
| SD400CAP | SD #400 CP 792 | 0.3443722657 | $393,950 | $393,950 | $135.67 | | |
| SD400GEN | SD #400 GENERAL 790 | 1.9278469916 | $393,950 | $393,950 | $759.48 | | |
| ST2 | STATE SCHOOL PART 2 600 | 0.8131451643 | $393,950 | $393,950 | $320.34 | | |
| STATESCHL | STATE SCHOOL 600 | 1.5158548041 | $393,950 | $393,950 | $597.17 | | |
| STREFUND | STATE REFUND LEVY 603 | 0.0000000000 | $393,950 | $393,950 | $0.00 | | |
| COROAD | COUNTY ROAD 115 | 1.6549953990 | $393,950 | $393,950 | $651.99 | | |
| CRPRD | COUNTY ROAD REFUND 115 | 0.0000000000 | $393,950 | $393,950 | $0.00 | | |
| | Total Tax Rate: | 9.5152210736 | | | | | |
| | | | | Taxes w/Current Exemptions: | $3,748.55 | | |
| | | | | Taxes w/o Exemptions: | $3,748.55 | | |
Improvement / Building
| Improvement #1: | RESIDENTIAL | State Code: | 11 | 1745.0 sqft | Value: | $318,950 |
| Exterior Wall: | PLYWOOD | Heating/Cooling: | WARM & COOLED AIR | | Number of Bathrooms: | 2 | Number of Bedrooms: | 3 | | Plumbing: | 9 | Roof Covering: | COMP SHINGLE |
|
| | Type | Description | Class CD | Sub Class CD | Year Built | Area |
| | MA | Main Area | 1 | 30 | 1992 | 1745.0 |
| | SI1 | SITE IMPROVEMENT | 1 | 30 | 1992 | 2.0 |
| | ATG | Attached Garage | 1 | 30 | 1992 | 440.0 |
| | RPO | OPEN PORCH W/ROOF | 1 | 30 | 1992 | 28.0 |
| | RPO | OPEN PORCH W/ROOF | 1 | 30 | 1992 | 349.0 |
| | SWP | Solid Wall Porch | 1 | 30 | 2018 | 182.0 |
| | POL3 | POLE BUILDING-CON,ELEC,INSU | 1 | 30 | 1992 | 720.0 |
Sketch
Property Image
Land
| 1 | RES 1 | Converted: Residential | 0.5832 | 25404.00 | 0.00 | 0.00 | 1.00 | $75,000 | $0 |
Roll Value History
| 2026 | N/A | N/A | N/A | N/A | N/A |
| 2025 | $398,690 | $75,000 | $0 | $473,690 | $473,690 |
| 2024 | $318,950 | $75,000 | $0 | $393,950 | $393,950 |
| 2023 | $318,950 | $75,000 | $0 | $393,950 | $393,950 |
| 2022 | $303,760 | $75,000 | $0 | $378,760 | $378,760 |
| 2021 | $264,140 | $75,000 | $0 | $339,140 | $339,140 |
| 2020 | $211,190 | $35,000 | $0 | $246,190 | $246,190 |
| 2019 | $211,190 | $35,000 | $0 | $246,190 | $246,190 |
| 2018 | $211,190 | $35,000 | $0 | $246,190 | $246,190 |
| 2017 | $201,140 | $35,000 | $0 | $236,140 | $236,140 |
| 2016 | $201,140 | $35,000 | $0 | $236,140 | $236,140 |
| 2015 | $201,140 | $35,000 | $0 | $236,140 | $236,140 |
| 2014 | $174,900 | $35,000 | $0 | $209,900 | $209,900 |
| 2013 | $159,400 | $35,000 | $0 | $194,400 | $194,400 |
| 2012 | $127,000 | $35,000 | $0 | $0 | $0 |
| 2011 | $119,300 | $35,000 | $0 | $0 | $0 |
| 2010 | $119,300 | $35,000 | $0 | $0 | $0 |
| 2009 | $162,200 | $25,000 | $0 | $0 | $0 |
| 2008 | $131,000 | $25,000 | $0 | $0 | $0 |
| 2007 | $131,000 | $25,000 | $0 | $0 | $0 |
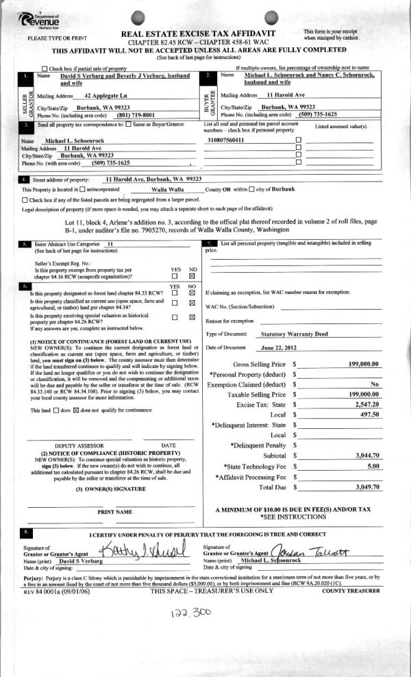
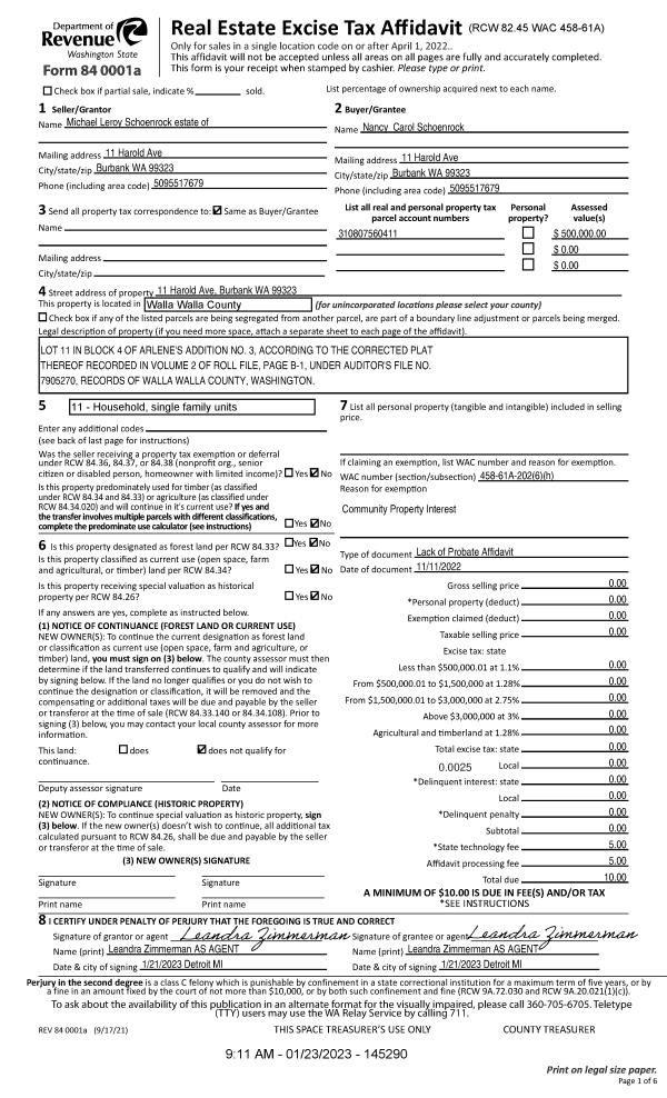
Deed and Sales History
| 1 | 01/23/2023 | LOPA | LACK OF PROBATE AFFIDAVIT | SCHOENROCK MICHAEL L ESTATE OF & NANCY C | SCHOENROCK NANCY CAROL | | | $0.00 | 145290 | 2023-00319 |
| 2 | 02/03/2016 | COMMUNITY | COMMUNITY PROPERTY AGREEMENT | SCHOENROCK MICHAEL L ESTATE OF & NANCY C | SCHOENROCK NANCY CAROL | | | | 0 | 2016-00848 |
| 3 | 07/03/2012 | WARRANTY D | WARRANTY DEED | VERBARG, DAVID S & BEVERLY J | SCHOENROCK, MICHAEL L & NANCY | | | $199,000.00 | 122300 | 2012-05627 |
| 4 | 08/14/1992 | WARRANTY D | WARRANTY DEED | | | | | $99,900.00 | 77424 | 1999-207183 |
Payout Agreement
| No payout information available.. |