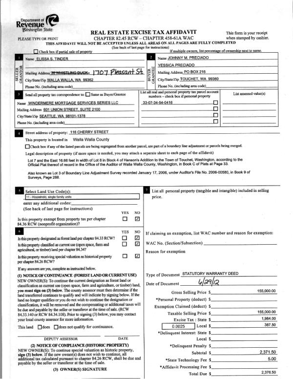
Property
Account |
| Property ID: | 33675 | Abbreviated Legal Description: | HANSON'S ADDITION (LOT 3 OF SURVEY) ELY 16.66' OF LOT 8 & ALL OFLOT 7 BLOCK 4 |
| Parcel Number: | 330734540416 | Agent Code: | |
| Type: | Real | | |
| Tax Area: | 318 - 300-6-TM | Land Use Code | 11 |
| Open Space: | N | DFL | N |
| Historic Property: | N | Remodel Property: | N |
| Multi-Family Redevelopment: | N | | |
| Township: | 7 | Section: | 34 |
| Range: | 33 |
Location |
| Address: | 116 CHERRY ST WA 99360 | Mapsco: | |
| Neighborhood: | A Touchet/Lowden SFR | Map ID: | |
| Neighborhood CD: | 213611 |
Owner |
| Name: | PRECIADO JOHNNY M & YESSICA | Owner ID: | 51428 |
| Mailing Address: | PO BOX 216 TOUCHET, WA 99360 | % Ownership: | 100.0000000000% |
| | | Exemptions: | |
Taxes and Assessment Details
Property Tax Information as of
02/21/2026
Click on "Statement Details" to expand or collapse a tax statement.
* Please enter a valid date ** Please enter a valid date *
Statement Details |
| | TOTAL: | $0.00 | $0.00 | $0.00 | $0.00 | $0.00 | $0.00 |
|
| | $0.00 | $0.00 | $0.00 | $0.00 | $0.00 | $0.00 |
Values
| (+) Improvement Homesite Value: | + | $0 | |
| (+) Improvement Non-Homesite Value: | + | $329,020 | |
| (+) Land Homesite Value: | + | $0 | |
| (+) Land Non-Homesite Value: | + | $40,000 | |
| (+) Curr Use (HS): | + | $0 | $0 |
| (+) Curr Use (NHS): | + | $0 | $0 |
| | | -------------------------- | |
| (=) Market Value: | = | $369,020 | |
| (–) Productivity Loss: | – | $0 | |
| | | -------------------------- | |
| (=) Subtotal: | = | $369,020 | |
| (+) Senior Appraised Value: | + | $0 | |
| (+) Non-Senior Appraised Value: | + | $369,020 | |
| | | -------------------------- | |
| (=) Total Appraised Value: | = | $369,020 | |
| (–) Senior Exemption Loss: | – | $0 | |
| (–) Exemption Loss: | – | $0 | |
| | | -------------------------- | |
| (=) Taxable Value: | = | $369,020 | |
Taxing Jurisdiction
| Owner: | PRECIADO JOHNNY M & YESSICA | | |
| % Ownership: | 100.0000000000% | | |
| Total Value: | $369,020 | | |
| Tax Area: | 318 - 300-6-TM |
| CERFD | CURRENT EXPENSE REFUND 010 | 0.0000000000 | $369,020 | $369,020 | $0.00 | | |
| CURREXP | CURRENT EXPENSE 010 | 0.9851088983 | $369,020 | $369,020 | $363.52 | | |
| HUMNSERV | HUMAN SERVICES 119 | 0.0250000000 | $369,020 | $369,020 | $9.23 | | |
| SLDREL | SOLDIERS RELIEF 121 | 0.0155990000 | $369,020 | $369,020 | $5.76 | | |
| EMERGSER | EMS 147 | 0.3676811629 | $369,020 | $369,020 | $135.68 | | |
| EMSRFD | EMS REFUND 147 | 0.0000000000 | $369,020 | $369,020 | $0.00 | | |
| FD6EXP | FD #6 EXPENSE 693 | 0.6637564225 | $369,020 | $369,020 | $244.94 | | |
| RLBRFD | RURAL LIBRARY REFUND 623 | 0.0000000000 | $369,020 | $369,020 | $0.00 | | |
| RURALLIB | RURAL LIBRARY 623 | 0.3601547782 | $369,020 | $369,020 | $132.90 | | |
| PORTRFD | PORT REFUND 640 | 0.0000000000 | $369,020 | $369,020 | $0.00 | | |
| PORTWWGEN | PORT OF WW 640 | 0.2344301070 | $369,020 | $369,020 | $86.51 | | |
| SD300BOND | SD #300 BOND 783 | 1.9432820025 | $369,020 | $369,020 | $717.11 | | |
| SD300GEN | SD #300 GENERAL 780 | 2.2641297109 | $369,020 | $369,020 | $835.51 | | |
| ST2 | STATE SCHOOL PART 2 600 | 0.8853714103 | $369,020 | $369,020 | $326.72 | | |
| STATESCHL | STATE SCHOOL 600 | 1.6424571473 | $369,020 | $369,020 | $606.10 | | |
| STREFUND | STATE REFUND LEVY 603 | 0.0000000000 | $369,020 | $369,020 | $0.00 | | |
| COROAD | COUNTY ROAD 115 | 1.6137667997 | $369,020 | $369,020 | $595.51 | | |
| CRPRD | COUNTY ROAD REFUND 115 | 0.0000000000 | $369,020 | $369,020 | $0.00 | | |
| | Total Tax Rate: | 11.0007374396 | | | | | |
| | | | | Taxes w/Current Exemptions: | $4,059.49 | | |
| | | | | Taxes w/o Exemptions: | $4,059.49 | | |
Improvement / Building
| Improvement #1: | RESIDENTIAL | State Code: | 11 | 1950.0 sqft | Value: | $329,020 |
| Exterior Wall: | PLYWOOD | Heating/Cooling: | WARM & COOLED AIR | | Number of Bathrooms: | 2.5 | Number of Bedrooms: | 4 | | Plumbing: | 11 | Roof Covering: | COMP SHINGLE |
|
| | Type | Description | Class CD | Sub Class CD | Year Built | Area |
| | MA | Main Area | 4 | 30 | 2008 | 1950.0 |
| | RPC | OPEN PORCH W/ROOF , CEILED | 4 | 30 | 2008 | 180.0 |
| | SI1 | SITE IMPROVEMENT | 4 | 30 | 2008 | 1.5 |
| | ATG | Attached Garage | 4 | 30 | 2008 | 560.0 |
| | BLW | WOOD BALCONIES | 4 | 30 | 2008 | 24.0 |
| | UPFL | Upper Floor (included in main area) | 4 | 30 | 2008 | 1110.0 |
Sketch
Property Image
Land
| 1 | RES 1 | Converted: Residential | 0.1530 | 6666.00 | 0.00 | 0.00 | 1.00 | $40,000 | $0 |
Roll Value History
| 2026 | N/A | N/A | N/A | N/A | N/A |
| 2025 | $329,020 | $40,000 | $0 | $369,020 | $369,020 |
| 2024 | $313,350 | $40,000 | $0 | $353,350 | $353,350 |
| 2023 | $313,350 | $40,000 | $0 | $353,350 | $353,350 |
| 2022 | $284,860 | $40,000 | $0 | $324,860 | $324,860 |
| 2021 | $211,010 | $40,000 | $0 | $251,010 | $251,010 |
| 2020 | $214,970 | $20,000 | $0 | $234,970 | $234,970 |
| 2019 | $214,970 | $20,000 | $0 | $234,970 | $234,970 |
| 2018 | $159,240 | $20,000 | $0 | $179,240 | $179,240 |
| 2017 | $159,240 | $20,000 | $0 | $179,240 | $179,240 |
| 2016 | $159,240 | $20,000 | $0 | $179,240 | $179,240 |
| 2015 | $132,700 | $20,000 | $0 | $152,700 | $152,700 |
| 2014 | $132,700 | $20,000 | $0 | $152,700 | $152,700 |
| 2013 | $132,700 | $20,000 | $0 | $152,700 | $152,700 |
| 2012 | $183,600 | $20,000 | $0 | $0 | $0 |
| 2011 | $183,600 | $20,000 | $0 | $0 | $0 |
| 2010 | $183,600 | $20,000 | $0 | $0 | $0 |
| 2009 | $191,800 | $10,000 | $0 | $0 | $0 |
| 2008 | $0 | $10,000 | $0 | $0 | $0 |
| 2007 | $132,700 | $20,000 | $0 | $0 | $0 |
Deed and Sales History
| 1 | 07/06/2012 | WARRANTY D | WARRANTY DEED | TINDER, ELISSA S | PRECIADO, JOHNNY M & YESSICA | | | $155,000.00 | 122308 | 2012-05701 |
| 2 | 10/10/2008 | QCD | QUIT CLAIM DEED | ROBINSON, REESE | 519 DESIGN BUILDING LLC | | | $0.00 | 115792 | 2008-10388 |
| 3 | 10/10/2008 | WARRANTY D | WARRANTY DEED | 519 DESIGN BUILDING LLC | TINDER, ELISSA S | | | $235,000.00 | 115793 | 2008-10389 |
| 4 | 06/13/2007 | WARRANTY D | WARRANTY DEED | "FRANKE, ROXANNE M" | | | | | 113041 | 2007-06727 |
| 5 | 05/31/2007 | WARRANTY D | WARRANTY DEED | FRANKE, DONALD | ROBINSON REESE | | | $72,000.00 | 112946 | 2007-06216 |
|   | |
Payout Agreement
| No payout information available.. |