Property
Account |
| Property ID: | 33601 | Abbreviated Legal Description: | AUTUMN MEADOWS LT 20 BLK 3 |
| Parcel Number: | 350736970320 | Agent Code: | |
| Type: | Real | | |
| Tax Area: | 77 - CP-250-F | Land Use Code | 11 |
| Open Space: | N | DFL | N |
| Historic Property: | N | Remodel Property: | N |
| Multi-Family Redevelopment: | N | | |
| Township: | 7 | Section: | 36 |
| Range: | 35 |
Location |
| Address: | 1383 SE NEWGATE DR WA 99324 | Mapsco: | |
| Neighborhood: | A SFR | Map ID: | |
| Neighborhood CD: | 113011 |
Owner |
| Name: | AVILES IRVIN | Owner ID: | 65210 |
| Mailing Address: | 1383 SE NEWGATE DR COLLEGE PLACE, WA 99324 | % Ownership: | 100.0000000000% |
| | | Exemptions: | |
Taxes and Assessment Details
Property Tax Information as of
02/21/2026
Click on "Statement Details" to expand or collapse a tax statement.
* Please enter a valid date ** Please enter a valid date *
Statement Details |
| | TOTAL: | $0.00 | $0.00 | $0.00 | $0.00 | $0.00 | $0.00 |
|
| | $0.00 | $0.00 | $0.00 | $0.00 | $0.00 | $0.00 |
Values
| (+) Improvement Homesite Value: | + | $0 | |
| (+) Improvement Non-Homesite Value: | + | $332,640 | |
| (+) Land Homesite Value: | + | $0 | |
| (+) Land Non-Homesite Value: | + | $70,000 | |
| (+) Curr Use (HS): | + | $0 | $0 |
| (+) Curr Use (NHS): | + | $0 | $0 |
| | | -------------------------- | |
| (=) Market Value: | = | $402,640 | |
| (–) Productivity Loss: | – | $0 | |
| | | -------------------------- | |
| (=) Subtotal: | = | $402,640 | |
| (+) Senior Appraised Value: | + | $0 | |
| (+) Non-Senior Appraised Value: | + | $402,640 | |
| | | -------------------------- | |
| (=) Total Appraised Value: | = | $402,640 | |
| (–) Senior Exemption Loss: | – | $0 | |
| (–) Exemption Loss: | – | $0 | |
| | | -------------------------- | |
| (=) Taxable Value: | = | $402,640 | |
Taxing Jurisdiction
| Owner: | AVILES IRVIN | | |
| % Ownership: | 100.0000000000% | | |
| Total Value: | $402,640 | | |
| Tax Area: | 77 - CP-250-F |
| CERFD | CURRENT EXPENSE REFUND 010 | 0.0000000000 | $402,640 | $402,640 | $0.00 | | |
| CURREXP | CURRENT EXPENSE 010 | 1.0175366760 | $402,640 | $402,640 | $409.70 | | |
| HUMNSERV | HUMAN SERVICES 119 | 0.0250000000 | $402,640 | $402,640 | $10.07 | | |
| SLDREL | SOLDIERS RELIEF 121 | 0.0155990005 | $402,640 | $402,640 | $6.28 | | |
| COLLPLBOND | C OF CP BOND 644 | 0.4374241808 | $402,640 | $402,640 | $176.12 | | |
| COLLPLGEN | CITY OF CP 632 | 1.4453819216 | $402,640 | $402,640 | $581.97 | | |
| EMERGSER | EMS 147 | 0.3792580840 | $402,640 | $402,640 | $152.70 | | |
| EMSRFD | EMS REFUND 147 | 0.0000000000 | $402,640 | $402,640 | $0.00 | | |
| RURALLIB | RURAL LIBRARY 623 | 0.3710609029 | $402,640 | $402,640 | $149.40 | | |
| PORTRFD | PORT REFUND 640 | 0.0000000000 | $402,640 | $402,640 | $0.00 | | |
| PORTWWGEN | PORT OF WW 640 | 0.2460186015 | $402,640 | $402,640 | $99.06 | | |
| SD250BOND | SD #250 BOND 773 | 1.4560608159 | $402,640 | $402,640 | $586.27 | | |
| SD250GEN | SD #250 GENERAL 770 | 2.3880724087 | $402,640 | $402,640 | $961.53 | | |
| ST2 | STATE SCHOOL PART 2 600 | 0.8131451643 | $402,640 | $402,640 | $327.40 | | |
| STATESCHL | STATE SCHOOL 600 | 1.5158548041 | $402,640 | $402,640 | $610.34 | | |
| STREFUND | STATE REFUND LEVY 603 | 0.0000000000 | $402,640 | $402,640 | $0.00 | | |
| | Total Tax Rate: | 10.1104125603 | | | | | |
| | | | | Taxes w/Current Exemptions: | $4,070.84 | | |
| | | | | Taxes w/o Exemptions: | $4,070.84 | | |
Improvement / Building
| Improvement #1: | RESIDENTIAL | State Code: | 11 | 2054.0 sqft | Value: | $332,640 |
| Exterior Wall: | PLYWOOD | Heating/Cooling: | WARM & COOLED AIR | | Number of Bathrooms: | 2.5 | Number of Bedrooms: | 4 | | Plumbing: | 11 | Roof Covering: | COMP SHINGLE |
|
| | Type | Description | Class CD | Sub Class CD | Year Built | Area |
| | MA | Main Area | 2 | 30 | 2003 | 2054.0 |
| | UPFL | Upper Floor (included in main area) | 2 | 30 | 2003 | 1046.0 |
| | SI1 | SITE IMPROVEMENT | 2 | 30 | 2003 | 1.5 |
| | ATG | Attached Garage | 2 | 30 | 2003 | 400.0 |
| | RPC | OPEN PORCH W/ROOF , CEILED | 2 | 30 | 2003 | 96.0 |
| | GFP | GAS FIREPLACE | 2 | 30 | 2003 | 1.0 |
Sketch
Property Image
Land
| 1 | RES 1 | Converted: Residential | 0.1358 | 5914.00 | 0.00 | 0.00 | 1.00 | $70,000 | $0 |
Roll Value History
| 2026 | N/A | N/A | N/A | N/A | N/A |
| 2025 | $299,370 | $125,000 | $0 | $424,370 | $424,370 |
| 2024 | $332,640 | $70,000 | $0 | $402,640 | $402,640 |
| 2023 | $332,640 | $70,000 | $0 | $402,640 | $402,640 |
| 2022 | $332,640 | $70,000 | $0 | $402,640 | $402,640 |
| 2021 | $229,410 | $70,000 | $0 | $299,410 | $299,410 |
| 2020 | $158,210 | $70,000 | $0 | $228,210 | $228,210 |
| 2019 | $173,210 | $55,000 | $0 | $228,210 | $228,210 |
| 2018 | $164,960 | $55,000 | $0 | $219,960 | $219,960 |
| 2017 | $137,470 | $55,000 | $0 | $192,470 | $192,470 |
| 2016 | $137,470 | $55,000 | $0 | $192,470 | $192,470 |
| 2015 | $130,920 | $55,000 | $0 | $185,920 | $185,920 |
| 2014 | $109,100 | $55,000 | $0 | $164,100 | $164,100 |
| 2013 | $109,100 | $55,000 | $0 | $164,100 | $164,100 |
| 2012 | $109,100 | $55,000 | $0 | $0 | $0 |
| 2011 | $138,000 | $55,000 | $0 | $0 | $0 |
| 2010 | $138,000 | $55,000 | $0 | $0 | $0 |
| 2009 | $159,400 | $55,000 | $0 | $0 | $0 |
| 2008 | $118,800 | $30,000 | $0 | $0 | $0 |
| 2007 | $118,800 | $30,000 | $0 | $0 | $0 |
Deed and Sales History
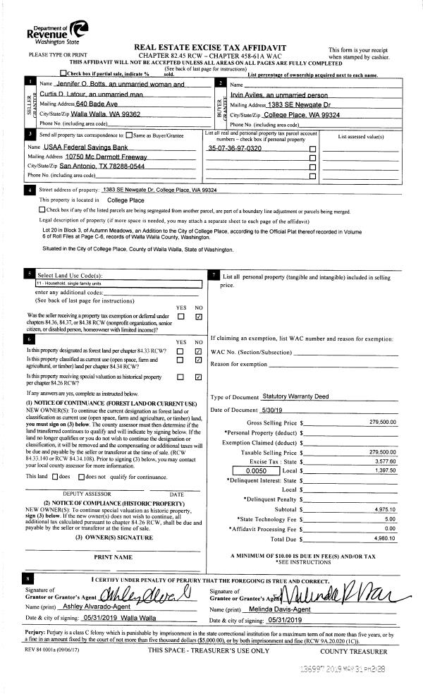
| 1 | 05/31/2019 | SWD | STATUTORY WARRANTY DEED | BOTTS JENNIFER O | AVILES IRVIN | | | $279,500.00 | 136997 | 2019-03744 |
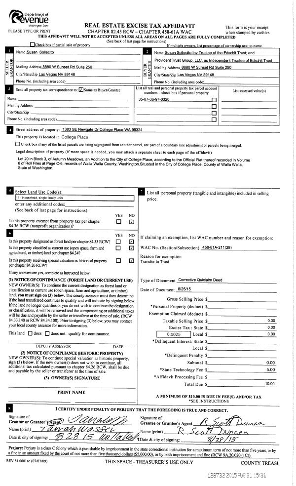
| 2 | 08/31/2015 | SWD | STATUTORY WARRANTY DEED | THE EDSCHIT TRUST | BOTTS JENNIFER O | | | $189,000.00 | 128733 | 2015-07642 |
| 3 | 08/31/2015 | QCD | QUIT CLAIM DEED | SOLLECITO SUSAN | THE EDSCHIT TRUST | | | | 128732 | 2015-07641 |
| 4 | 06/11/2012 | QCD | QUIT CLAIM DEED | SOLLECITO, SUSAN | THE EDSCHIT TRUST | | | | 122160 | 2012-04817 |
| 5 | 07/14/2004 | QCD | QUIT CLAIM DEED | TIERRA SPUR LLC | SOLLECITO, SUSAN | | | | 105249 | 2004-07920 |
| 6 | 03/20/2003 | QCD | QUIT CLAIM DEED | SOLLECITO, SUSAN | TIERRA SPUR LLC | | | | 101628 | 2003-03788 |
| 7 | 01/07/2003 | WARRANTY D | WARRANTY DEED | HAYDEN ENTERPRISES INC | SOLLECITO, SUSAN | | | $147,455.00 | 101162 | 2003-00236 |
| 8 | 06/14/2001 | WARRANTY D | WARRANTY DEED | | | | | $483,000.00 | 97375 | 3140-106223 |
|   | |
Payout Agreement
| No payout information available.. |