Property
Account |
| Property ID: | 33577 | Abbreviated Legal Description: | 26-7-34 E 1000' OF TAX 2 LESS NWLY PTN FOR HWY PURPOSES |
| Parcel Number: | 340726440007 | Agent Code: | |
| Type: | Real | | |
| Tax Area: | 101 - 140-4 | Land Use Code | 81 |
| Open Space: | N | DFL | N |
| Historic Property: | N | Remodel Property: | N |
| Multi-Family Redevelopment: | N | | |
| Township: | 7 | Section: | 26 |
| Range: | 34 |
Location |
| Address: | W HIGHWAY 12 WA 99362 | Mapsco: | |
| Neighborhood: | 0 Farm | Map ID: | |
| Neighborhood CD: | 2220 |
Owner |
| Name: | MARX KENNY & KELLY | Owner ID: | 70475 |
| Mailing Address: | 119 BUENA VISTA DR COLVILLE, WA 99114 | % Ownership: | 100.0000000000% |
| | | Exemptions: | |
Taxes and Assessment Details
Values
| (+) Improvement Homesite Value: | + | $0 | |
| (+) Improvement Non-Homesite Value: | + | $1,900 | |
| (+) Land Homesite Value: | + | $150,000 | |
| (+) Land Non-Homesite Value: | + | $49,040 | |
| (+) Curr Use (HS): | + | $0 | $0 |
| (+) Curr Use (NHS): | + | $0 | $0 |
| | | -------------------------- | |
| (=) Market Value: | = | $200,940 | |
| (–) Productivity Loss: | – | $0 | |
| | | -------------------------- | |
| (=) Subtotal: | = | $200,940 | |
| (+) Senior Appraised Value: | + | $0 | |
| (+) Non-Senior Appraised Value: | + | $200,940 | |
| | | -------------------------- | |
| (=) Total Appraised Value: | = | $200,940 | |
| (–) Senior Exemption Loss: | – | $0 | |
| (–) Exemption Loss: | – | $0 | |
| | | -------------------------- | |
| (=) Taxable Value: | = | $200,940 | |
Taxing Jurisdiction
| Owner: | MARX KENNY & KELLY | | |
| % Ownership: | 100.0000000000% | | |
| Total Value: | $200,940 | | |
| Tax Area: | 101 - 140-4 |
| CERFD | CURRENT EXPENSE REFUND 010 | 0.0000000000 | $200,940 | $200,940 | $0.00 | | |
| CURREXP | CURRENT EXPENSE 010 | 0.9851088983 | $200,940 | $200,940 | $197.95 | | |
| HUMNSERV | HUMAN SERVICES 119 | 0.0250000000 | $200,940 | $200,940 | $5.02 | | |
| SLDREL | SOLDIERS RELIEF 121 | 0.0155990000 | $200,940 | $200,940 | $3.13 | | |
| EMERGSER | EMS 147 | 0.3676811629 | $200,940 | $200,940 | $73.88 | | |
| EMSRFD | EMS REFUND 147 | 0.0000000000 | $200,940 | $200,940 | $0.00 | | |
| FD4EXP | FD #4 EXPENSE 686 | 1.2367913128 | $200,940 | $200,940 | $248.52 | | |
| RLBRFD | RURAL LIBRARY REFUND 623 | 0.0000000000 | $200,940 | $200,940 | $0.00 | | |
| RURALLIB | RURAL LIBRARY 623 | 0.3601547782 | $200,940 | $200,940 | $72.37 | | |
| PORTRFD | PORT REFUND 640 | 0.0000000000 | $200,940 | $200,940 | $0.00 | | |
| PORTWWGEN | PORT OF WW 640 | 0.2344301070 | $200,940 | $200,940 | $47.11 | | |
| SD140BOND | SD #140 BOND 764 | 0.8032434458 | $200,940 | $200,940 | $161.40 | | |
| SD140CAP | SD #140 CAP 762 | 0.3840034221 | $200,940 | $200,940 | $77.16 | | |
| SD140GEN | SD #140 GENERAL 760 | 2.4999999996 | $200,940 | $200,940 | $502.35 | | |
| ST2 | STATE SCHOOL PART 2 600 | 0.8853714103 | $200,940 | $200,940 | $177.91 | | |
| STATESCHL | STATE SCHOOL 600 | 1.6424571473 | $200,940 | $200,940 | $330.04 | | |
| STREFUND | STATE REFUND LEVY 603 | 0.0000000000 | $200,940 | $200,940 | $0.00 | | |
| COROAD | COUNTY ROAD 115 | 1.6137667997 | $200,940 | $200,940 | $324.27 | | |
| CRPRD | COUNTY ROAD REFUND 115 | 0.0000000000 | $200,940 | $200,940 | $0.00 | | |
| | Total Tax Rate: | 11.0536074840 | | | | | |
| | | | | Taxes w/Current Exemptions: | $2,221.11 | | |
| | | | | Taxes w/o Exemptions: | $2,221.11 | | |
Improvement / Building
| Improvement #1: | RESIDENTIAL | State Code: | 81 | 0.0 sqft | Value: | $1,900 |
| | Type | Description | Class CD | Sub Class CD | Year Built | Area |
| | UTST | Utility Storage Shed | 1 | | 0 | 0.0 |
| | UTST | Utility Storage Shed | 1 | | 0 | 0.0 |
| | UTST | Utility Storage Shed | 1 | | 0 | 0.0 |
Sketch
| No sketches available for this property. |
Property Image
Land
| 1 | HS-150,000 | Homesite 150,000 | 1.0000 | 0.00 | 0.00 | 0.00 | 1.00 | $150,000 | $0 |
| 2 | 8000-8000 | Other | 6.1300 | 0.00 | 0.00 | 0.00 | 1.00 | $49,040 | $0 |
Roll Value History
| 2026 | N/A | N/A | N/A | N/A | N/A |
| 2025 | $1,900 | $199,040 | $0 | $200,940 | $200,940 |
| 2024 | $1,900 | $199,040 | $0 | $200,940 | $200,940 |
| 2023 | $1,900 | $199,040 | $0 | $200,940 | $200,940 |
| 2022 | $1,900 | $199,040 | $0 | $200,940 | $200,940 |
| 2021 | $1,900 | $174,520 | $0 | $176,420 | $176,420 |
| 2020 | $1,900 | $99,520 | $0 | $101,420 | $101,420 |
| 2019 | $1,900 | $99,520 | $0 | $101,420 | $101,420 |
| 2018 | $1,900 | $99,520 | $0 | $101,420 | $101,420 |
| 2017 | $1,900 | $99,520 | $0 | $101,420 | $101,420 |
| 2016 | $1,900 | $99,520 | $0 | $101,420 | $101,420 |
| 2015 | $1,900 | $99,520 | $0 | $101,420 | $101,420 |
| 2014 | $1,900 | $99,520 | $0 | $101,420 | $101,420 |
| 2013 | $1,900 | $99,500 | $24,517 | $101,400 | $101,400 |
| 2012 | $1,900 | $99,500 | $0 | $0 | $0 |
| 2011 | $1,900 | $99,500 | $0 | $0 | $0 |
| 2010 | $1,900 | $99,500 | $0 | $0 | $0 |
| 2009 | $2,100 | $99,500 | $0 | $0 | $0 |
| 2008 | $2,100 | $99,500 | $0 | $0 | $0 |
| 2007 | $2,100 | $51,500 | $0 | $0 | $0 |
Deed and Sales History
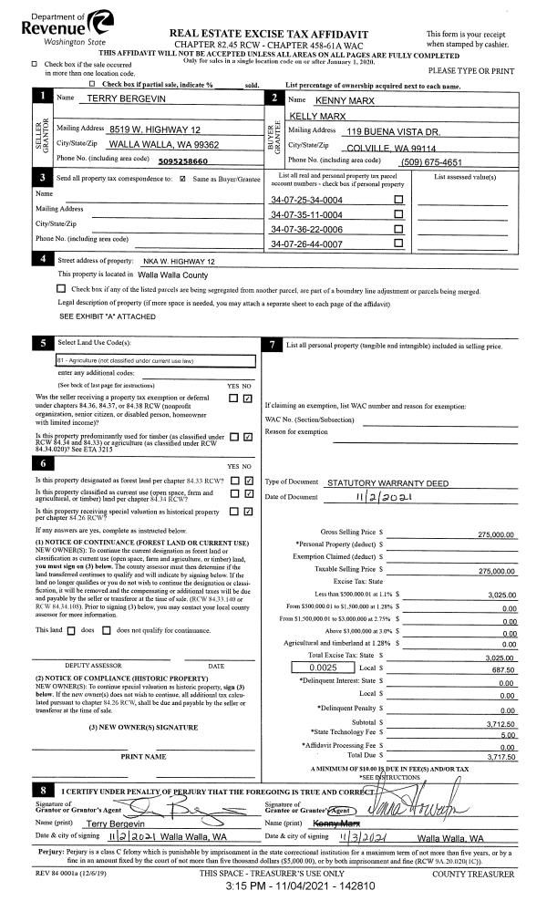
| 1 | 11/04/2021 | SWD | STATUTORY WARRANTY DEED | BERGEVIN TERRY | MARX KENNY & KELLY | | 4-PARCELS | $275,000.00 | 142810 | 2021-13282 |
|   | |
| 2 | 01/26/2021 | DPR | DEED OF PERSONAL REPRESENTATIVE | BERGEVIN TERRY & MARILYN | BERGEVIN TERRY | | 4 PARCELS | $0.00 | 140808 | 2021-01059 |
| 3 | 06/05/2012 | WARRANTY D | WARRANTY DEED | THRASHER, JOHN W | BERGEVIN TERRY & MARILYN | | | $125,000.00 | 122133 | 2012-04619 |
|   | |
Payout Agreement
| No payout information available.. |