Property
Account |
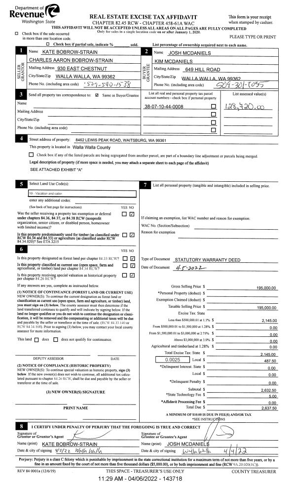
| Property ID: | 33573 | Abbreviated Legal Description: | 10-7-38 E1/2SE1/4SE1/4 LESS TAX 2 |
| Parcel Number: | 380710440008 | Agent Code: | |
| Type: | Real | | |
| Tax Area: | 309 - 101 | Land Use Code | 19 |
| Open Space: | N | DFL | N |
| Historic Property: | N | Remodel Property: | N |
| Multi-Family Redevelopment: | N | | |
| Township: | 7 | Section: | 10 |
| Range: | 38 |
Location |
| Address: | 8462 LEWIS PEAK RD WA 99329 | Mapsco: | |
| Neighborhood: | A- Mnt Property Cabin | Map ID: | |
| Neighborhood CD: | 513175 |
Owner |
| Name: | MCDANIELS JOSH & KIM | Owner ID: | 71419 |
| Mailing Address: | 649 HILL RD WALLA WALLA, WA 99362 | % Ownership: | 100.0000000000% |
| | | Exemptions: | |
Taxes and Assessment Details
Values
| (+) Improvement Homesite Value: | + | N/A | |
| (+) Improvement Non-Homesite Value: | + | N/A | |
| (+) Land Homesite Value: | + | N/A | |
| (+) Land Non-Homesite Value: | + | N/A | Ag / Timber Use Value |
| (+) Curr Use (HS): | + | N/A | N/A |
| (+) Curr Use (NHS): | + | N/A | N/A |
| | | -------------------------- | |
| (=) Market Value: | = | N/A | |
| (–) Productivity Loss: | – | N/A | |
| | | -------------------------- | |
| (=) Subtotal: | = | N/A | |
| (+) Senior Appraised Value: | + | N/A | |
| (+) Non-Senior Appraised Value: | + | N/A | |
| | | -------------------------- | |
| (=) Total Appraised Value: | = | N/A | |
| (–) Senior Exemption Loss: | – | N/A | |
| (–) Exemption Loss: | – | N/A | |
| | | -------------------------- | |
| (=) Taxable Value: | = | N/A | |
Taxing Jurisdiction
| Owner: | MCDANIELS JOSH & KIM | | |
| % Ownership: | 100.0000000000% | | |
| Total Value: | N/A | | |
| Tax Area: | 309 - 101 |
| CERFD | CURRENT EXPENSE REFUND 010 | N/A | N/A | N/A | N/A | | |
| CURREXP | CURRENT EXPENSE 010 | N/A | N/A | N/A | N/A | | |
| HUMNSERV | HUMAN SERVICES 119 | N/A | N/A | N/A | N/A | | |
| SLDREL | SOLDIERS RELIEF 121 | N/A | N/A | N/A | N/A | | |
| EMERGSER | EMS 147 | N/A | N/A | N/A | N/A | | |
| EMSRFD | EMS REFUND 147 | N/A | N/A | N/A | N/A | | |
| RLBRFD | RURAL LIBRARY REFUND 623 | N/A | N/A | N/A | N/A | | |
| RURALLIB | RURAL LIBRARY 623 | N/A | N/A | N/A | N/A | | |
| PORTRFD | PORT REFUND 640 | N/A | N/A | N/A | N/A | | |
| PORTWWGEN | PORT OF WW 640 | N/A | N/A | N/A | N/A | | |
| SD101CAP | SD #101 CAP 752 | N/A | N/A | N/A | N/A | | |
| SD101GEN | SD #101 GENERAL 750 | N/A | N/A | N/A | N/A | | |
| ST2 | STATE SCHOOL PART 2 600 | N/A | N/A | N/A | N/A | | |
| STATESCHL | STATE SCHOOL 600 | N/A | N/A | N/A | N/A | | |
| STREFUND | STATE REFUND LEVY 603 | N/A | N/A | N/A | N/A | | |
| COROAD | COUNTY ROAD 115 | N/A | N/A | N/A | N/A | | |
| CRPRD | COUNTY ROAD REFUND 115 | N/A | N/A | N/A | N/A | | |
| | Total Tax Rate: | N/A | | | | | |
| | | | | Taxes w/Current Exemptions: | N/A | | |
| | | | | Taxes w/o Exemptions: | N/A | | |
Improvement / Building
| Improvement #1: | RESIDENTIAL | State Code: | 19 | 544.0 sqft | Value: | N/A |
| Exterior Wall: | FINSHED CABIN | Foundation: | POST & PIER | | Heating/Cooling: | MINI-SPLIT HP SYSTEM |   |   |
|
| | Type | Description | Class CD | Sub Class CD | Year Built | Area |
| | MA | Main Area | 19 | CABFN | 0 | 544.0 |
| | LNTD | LEAN TO DIRT FLOOR | 19 | CABFN | 0 | 442.0 |
| | SI1 | SITE IMPROVEMENT | 19 | CABFN | 0 | 1.0 |
| | WOD | Wood Deck | 19 | CABFN | 0 | 144.0 |
Sketch
Property Image
Land
| 1 | RES 1 | Converted: Residential | 20.4900 | 0.00 | 0.00 | 0.00 | 1.00 | N/A | N/A |
Roll Value History
| 2026 | N/A | N/A | N/A | N/A | N/A |
| 2025 | $58,440 | $131,980 | $0 | $190,420 | $190,420 |
| 2024 | $55,660 | $131,980 | $0 | $187,640 | $187,640 |
| 2023 | $55,660 | $100,890 | $0 | $156,550 | $156,550 |
| 2022 | $44,530 | $100,890 | $0 | $145,420 | $145,420 |
| 2021 | $27,830 | $100,890 | $0 | $128,720 | $128,720 |
| 2020 | $27,830 | $100,890 | $0 | $128,720 | $128,720 |
| 2019 | $27,830 | $100,890 | $0 | $128,720 | $128,720 |
| 2018 | $25,300 | $100,890 | $0 | $126,190 | $126,190 |
| 2017 | $22,920 | $47,300 | $0 | $70,220 | $70,220 |
| 2016 | $19,100 | $47,300 | $0 | $66,400 | $66,400 |
| 2015 | $19,100 | $47,300 | $0 | $66,400 | $66,400 |
| 2014 | $19,100 | $47,300 | $0 | $66,400 | $66,400 |
| 2013 | $25,400 | $41,000 | $0 | $66,400 | $66,400 |
| 2012 | $24,900 | $41,000 | $0 | $0 | $0 |
| 2011 | $21,900 | $41,000 | $0 | $0 | $0 |
| 2010 | $21,900 | $41,000 | $0 | $0 | $0 |
| 2009 | $21,900 | $41,000 | $0 | $0 | $0 |
| 2008 | $21,900 | $41,000 | $0 | $0 | $0 |
| 2007 | $21,900 | $41,000 | $0 | $0 | $0 |
Deed and Sales History
| 1 | 04/06/2022 | SWD | STATUTORY WARRANTY DEED | BOBROW-STRAIN CHARLES AARON & KATE | MCDANIELS JOSH & KIM | | | $195,000.00 | 143718 | 2022-02860 |
| 2 | 06/06/2012 | WARRANTY D | WARRANTY DEED | WHITE, RONALD D & SHARON L | BOBROW-STRAIN, CHARLES AARON & | | | $135,000.00 | 122136 | 2012-04644 |
| 3 | 10/20/2003 | WARRANTY D | WARRANTY DEED | LINDSEY, MARLENE V | WHITE, RONALD D & SHARON L | | | $86,000.00 | 103318 | 2003-16227 |
| 4 | 02/24/1986 | WARRANTY D | WARRANTY DEED | | | | | $22,500.00 | 0 | 1869-008743 |
|   | |
Payout Agreement
| No payout information available.. |