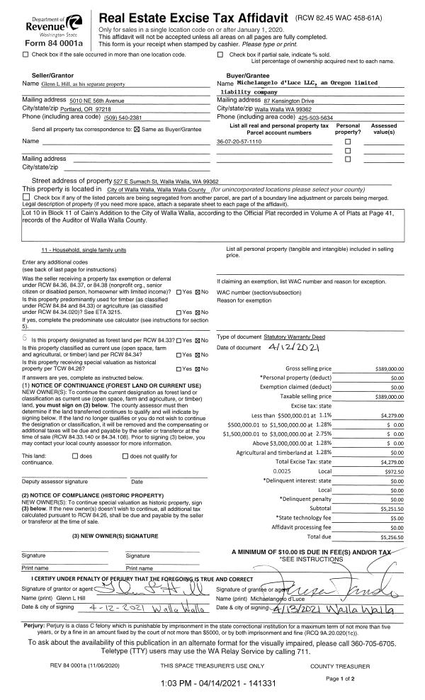
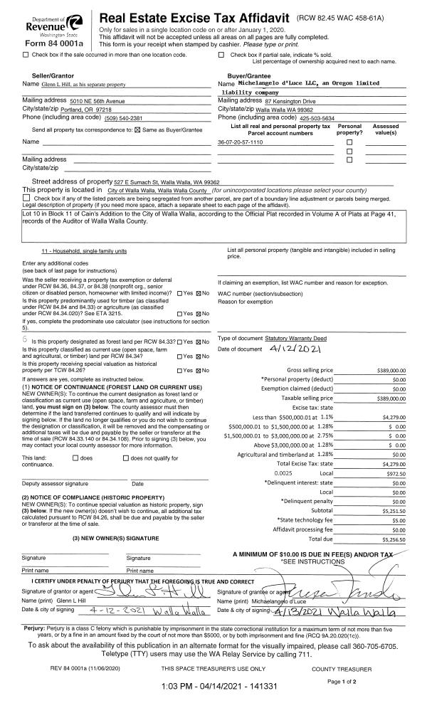
| 1 | 04/14/2021 | SWD | STATUTORY WARRANTY DEED | HILL GLENN L | MICHELANGELO D'LUCE LLC | | | $389,000.00 | 141331 | 2021-04384 |
| 2 | 11/23/2015 | DEATH CERT | DEATH CERTIFICATE | HILL KRISTINE D | | | | | 0 | 2015-10132 |
| 3 | 11/23/2015 | COMMUNITY | COMMUNITY PROPERTY AGREEMENT | HILL GLENN L & KRISTINE D | | | | | 0 | 2015-10131 |
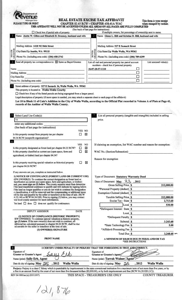
| 4 | 05/25/2012 | WARRANTY D | WARRANTY DEED | GILLEN, JUSTIN W | HILL, GLENN L & KRISTINE D | | | $212,000.00 | 121876 | 2012-04314 |
| 5 | 03/31/2011 | WARRANTY D | WARRANTY DEED | SINCLAIR, TIMOTHY P & KATHY S | GILLEN, JUSTIN W | | | $70,000.00 | 119953 | 2011-02714 |
| 6 | 07/31/2008 | QCD | QUIT CLAIM DEED | REED, ANDREW & AMY | REED, RICHARD & CAROL | | | $45,000.00 | 115418 | 2008-07922 |
| 7 | 07/31/2008 | WARRANTY D | WARRANTY DEED | REED, RICHARD & CAROL | SINCLAIR, TIMOTHY P & KATHY S | | | $85,000.00 | 115419 | 2008-07925 |
| 8 | 10/12/2007 | WARRANTY D | WARRANTY DEED | CHESTNUT, GLENN E & DE VON F | REED, ANDREW | | | $45,000.00 | 113878 | 2007-11937 |
| 9 | 06/12/1984 | WARRANTY D | WARRANTY DEED | | | | | $42,900.00 | 0 | 1448-404140 |