Property
Account |
| Property ID: | 33561 | Abbreviated Legal Description: | DENEAL-PETERSEN LOT 7 |
| Parcel Number: | 360607560007 | Agent Code: | |
| Type: | Real | | |
| Tax Area: | 101 - 140-4 | Land Use Code | 11 |
| Open Space: | N | DFL | N |
| Historic Property: | N | Remodel Property: | N |
| Multi-Family Redevelopment: | N | | |
| Township: | 6 | Section: | 7 |
| Range: | 36 |
Location |
| Address: | 1416 WHITELEY RD WA 99362 | Mapsco: | |
| Neighborhood: | CYCLE 4 EXCELLENT (A) | Map ID: | |
| Neighborhood CD: | 416012 |
Owner |
| Name: | THOMAS EDWARD D & CARMEN B | Owner ID: | 58955 |
| Mailing Address: | 1416 WHITELEY RD WALLA WALLA, WA 99362 | % Ownership: | 100.0000000000% |
| | | Exemptions: | |
Taxes and Assessment Details
Values
| (+) Improvement Homesite Value: | + | $0 | |
| (+) Improvement Non-Homesite Value: | + | $943,210 | |
| (+) Land Homesite Value: | + | $0 | |
| (+) Land Non-Homesite Value: | + | $272,970 | |
| (+) Curr Use (HS): | + | $0 | $0 |
| (+) Curr Use (NHS): | + | $0 | $0 |
| | | -------------------------- | |
| (=) Market Value: | = | $1,216,180 | |
| (–) Productivity Loss: | – | $0 | |
| | | -------------------------- | |
| (=) Subtotal: | = | $1,216,180 | |
| (+) Senior Appraised Value: | + | $0 | |
| (+) Non-Senior Appraised Value: | + | $1,216,180 | |
| | | -------------------------- | |
| (=) Total Appraised Value: | = | $1,216,180 | |
| (–) Senior Exemption Loss: | – | $0 | |
| (–) Exemption Loss: | – | $0 | |
| | | -------------------------- | |
| (=) Taxable Value: | = | $1,216,180 | |
Taxing Jurisdiction
| Owner: | THOMAS EDWARD D & CARMEN B | | |
| % Ownership: | 100.0000000000% | | |
| Total Value: | $1,216,180 | | |
| Tax Area: | 101 - 140-4 |
| CERFD | CURRENT EXPENSE REFUND 010 | 0.0000000000 | $1,216,180 | $1,216,180 | $0.00 | | |
| CURREXP | CURRENT EXPENSE 010 | 1.0175366760 | $1,216,180 | $1,216,180 | $1,237.51 | | |
| HUMNSERV | HUMAN SERVICES 119 | 0.0250000000 | $1,216,180 | $1,216,180 | $30.40 | | |
| SLDREL | SOLDIERS RELIEF 121 | 0.0155990005 | $1,216,180 | $1,216,180 | $18.97 | | |
| EMERGSER | EMS 147 | 0.3792580840 | $1,216,180 | $1,216,180 | $461.25 | | |
| EMSRFD | EMS REFUND 147 | 0.0000000000 | $1,216,180 | $1,216,180 | $0.00 | | |
| FD4EXP | FD #4 EXPENSE 686 | 0.8836993059 | $1,216,180 | $1,216,180 | $1,074.74 | | |
| RLBRFD | RURAL LIBRARY REFUND 623 | 0.0000000000 | $1,216,180 | $1,216,180 | $0.00 | | |
| RURALLIB | RURAL LIBRARY 623 | 0.3710609029 | $1,216,180 | $1,216,180 | $451.28 | | |
| PORTRFD | PORT REFUND 640 | 0.0000000000 | $1,216,180 | $1,216,180 | $0.00 | | |
| PORTWWGEN | PORT OF WW 640 | 0.2460186015 | $1,216,180 | $1,216,180 | $299.20 | | |
| SD140BOND | SD #140 BOND 764 | 0.8342371393 | $1,216,180 | $1,216,180 | $1,014.58 | | |
| SD140GEN | SD #140 GENERAL 760 | 2.0646500647 | $1,216,180 | $1,216,180 | $2,510.99 | | |
| ST2 | STATE SCHOOL PART 2 600 | 0.8131451643 | $1,216,180 | $1,216,180 | $988.93 | | |
| STATESCHL | STATE SCHOOL 600 | 1.5158548041 | $1,216,180 | $1,216,180 | $1,843.55 | | |
| STREFUND | STATE REFUND LEVY 603 | 0.0000000000 | $1,216,180 | $1,216,180 | $0.00 | | |
| COROAD | COUNTY ROAD 115 | 1.6549953990 | $1,216,180 | $1,216,180 | $2,012.77 | | |
| CRPRD | COUNTY ROAD REFUND 115 | 0.0000000000 | $1,216,180 | $1,216,180 | $0.00 | | |
| | Total Tax Rate: | 9.8210551422 | | | | | |
| | | | | Taxes w/Current Exemptions: | $11,944.17 | | |
| | | | | Taxes w/o Exemptions: | $11,944.17 | | |
Improvement / Building
| Improvement #1: | RESIDENTIAL | State Code: | 11 | 2054.0 sqft | Value: | $742,330 |
| Exterior Wall: | SIDING | Heating/Cooling: | HEAT PUMP | | Number of Bathrooms: | 2.5 | Number of Bedrooms: | 2 | | Plumbing: | 15 | Roof Covering: | METAL ROOFING |
|
| | Type | Description | Class CD | Sub Class CD | Year Built | Area |
| | MA | Main Area | 1 | 50 | 2017 | 2054.0 |
| | SI1 | SITE IMPROVEMENT | 1 | 50 | 2017 | 8.0 |
| | SMP | SWIMMING POOL | 1 | 50 | 2017 | 1.0 |
| | GFP | GAS FIREPLACE | 1 | 50 | 2017 | 1.0 |
| | SWP | Solid Wall Porch | 1 | 50 | 2017 | 88.0 |
| | RPC | OPEN PORCH W/ROOF , CEILED | 1 | 50 | 2017 | 130.0 |
| | RPC | OPEN PORCH W/ROOF , CEILED | 1 | 50 | 2017 | 293.0 |
| | ATG | Attached Garage | 1 | 50 | 2017 | 646.0 |
| | BONU | BONUS ROOM W/FINISH | 1 | 50 | 2017 | 920.0 |
| | TOOL | TOOL SHED | 1 | 50 | 2017 | 143.0 |
| Improvement #2: | RESIDENTIAL | State Code: | 11 | 655.0 sqft | Value: | $200,880 |
| Exterior Wall: | SIDING | Heating/Cooling: | HEAT PUMP | | Number of Bathrooms: | 1 | Number of Bedrooms: | 2 | | Plumbing: | 7 | Roof Covering: | METAL ROOFING |
|
| | Type | Description | Class CD | Sub Class CD | Year Built | Area |
| | MA | Main Area | 1 | 50 | 2017 | 655.0 |
| | SI1 | SITE IMPROVEMENT | 1 | 50 | 2017 | 2.0 |
| | RPC | OPEN PORCH W/ROOF , CEILED | 1 | 50 | 2017 | 24.0 |
| | ATG | Attached Garage | 1 | 50 | 2017 | 533.0 |
Sketch
Property Image
Land
| 1 | RES 1 | Converted: Residential | 10.2400 | 0.00 | 0.00 | 0.00 | 1.00 | $272,970 | $0 |
Roll Value History
| 2026 | N/A | N/A | N/A | N/A | N/A |
| 2025 | $961,670 | $272,970 | $0 | $1,234,640 | $1,234,640 |
| 2024 | $943,210 | $272,970 | $0 | $1,216,180 | $1,216,180 |
| 2023 | $943,210 | $272,970 | $0 | $1,216,180 | $1,216,180 |
| 2022 | $812,010 | $157,800 | $0 | $969,810 | $969,810 |
| 2021 | $780,780 | $157,800 | $0 | $938,580 | $938,580 |
| 2020 | $600,600 | $157,800 | $0 | $758,400 | $758,400 |
| 2019 | $600,600 | $157,800 | $0 | $758,400 | $758,400 |
| 2018 | $600,600 | $157,800 | $0 | $758,400 | $758,400 |
| 2017 | $0 | $157,800 | $0 | $157,800 | $157,800 |
| 2016 | $0 | $157,800 | $0 | $157,800 | $157,800 |
| 2015 | $0 | $157,800 | $0 | $157,800 | $157,800 |
| 2014 | $0 | $157,800 | $0 | $157,800 | $157,800 |
| 2013 | $0 | $157,800 | $0 | $157,800 | $157,800 |
| 2012 | $0 | $157,800 | $0 | $0 | $0 |
| 2011 | $0 | $157,800 | $0 | $0 | $0 |
| 2010 | $0 | $157,800 | $0 | $0 | $0 |
| 2009 | $0 | $157,800 | $0 | $0 | $0 |
| 2008 | $0 | $157,800 | $0 | $0 | $0 |
| 2007 | $0 | $14,200 | $0 | $0 | $0 |
Deed and Sales History
| 1 | 06/17/2016 | SWD | STATUTORY WARRANTY DEED | JOHNSON MICHAEL D & CAROL A | THOMAS EDWARD D & CARMEN B | | | $299,000.00 | 130443 | 2016-04678 |
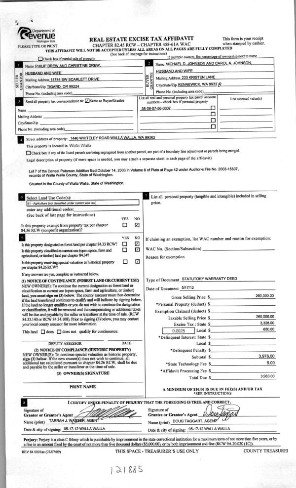
| 2 | 05/29/2012 | WARRANTY D | WARRANTY DEED | DREW, PHILIP & CHRISTINE | JOHNSON, MICHAEL D & CAROL A | | | $260,000.00 | 121885 | 2012-04418 |
| 3 | 01/31/2006 | WARRANTY D | WARRANTY DEED | PETERSEN, CLYDE E & BARBARA M | DREW, PHILIP & CHRISTINE | | | $160,000.00 | 109588 | 2006-01242 |
| 4 | 01/31/2006 | QCD | QUIT CLAIM DEED | PETERSEN, GARY D | PETERSEN, CLYDE E & BARBARA M | | | | 109587 | 2006-01241 |
Payout Agreement
| No payout information available.. |