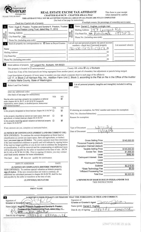
Property
Account |
| Property ID: | 33543 | Abbreviated Legal Description: | HARRISON & RAY INC ADD LOT 17 BLK 2 |
| Parcel Number: | 300812570217 | Agent Code: | |
| Type: | Real | | |
| Tax Area: | 331 - 400-M-5-W4 | Land Use Code | 11 |
| Open Space: | N | DFL | N |
| Historic Property: | N | Remodel Property: | N |
| Multi-Family Redevelopment: | N | | |
| Township: | 8 | Section: | 12 |
| Range: | 30 |
Location |
| Address: | 147 LARGENT RD WA 99323 | Mapsco: | |
| Neighborhood: | Burbank A MH | Map ID: | |
| Neighborhood CD: | 213761 |
Owner |
| Name: | HUGHES DANIEL C | Owner ID: | 58000 |
| Mailing Address: | 147 LARGENT RD BURBANK, WA 99323 | % Ownership: | 100.0000000000% |
| | | Exemptions: | |
Taxes and Assessment Details
Property Tax Information as of
02/21/2026
Click on "Statement Details" to expand or collapse a tax statement.
* Please enter a valid date ** Please enter a valid date *
Statement Details |
| | TOTAL: | $0.00 | $0.00 | $0.00 | $0.00 | $0.00 | $0.00 |
|
| | $0.00 | $0.00 | $0.00 | $0.00 | $0.00 | $0.00 |
Values
| (+) Improvement Homesite Value: | + | $0 | |
| (+) Improvement Non-Homesite Value: | + | $246,630 | |
| (+) Land Homesite Value: | + | $0 | |
| (+) Land Non-Homesite Value: | + | $61,310 | |
| (+) Curr Use (HS): | + | $0 | $0 |
| (+) Curr Use (NHS): | + | $0 | $0 |
| | | -------------------------- | |
| (=) Market Value: | = | $307,940 | |
| (–) Productivity Loss: | – | $0 | |
| | | -------------------------- | |
| (=) Subtotal: | = | $307,940 | |
| (+) Senior Appraised Value: | + | $0 | |
| (+) Non-Senior Appraised Value: | + | $307,940 | |
| | | -------------------------- | |
| (=) Total Appraised Value: | = | $307,940 | |
| (–) Senior Exemption Loss: | – | $0 | |
| (–) Exemption Loss: | – | $0 | |
| | | -------------------------- | |
| (=) Taxable Value: | = | $307,940 | |
Taxing Jurisdiction
| Owner: | HUGHES DANIEL C | | |
| % Ownership: | 100.0000000000% | | |
| Total Value: | $307,940 | | |
| Tax Area: | 331 - 400-M-5-W4 |
| CERFD | CURRENT EXPENSE REFUND 010 | 0.0000000000 | $307,940 | $307,940 | $0.00 | | |
| CURREXP | CURRENT EXPENSE 010 | 1.0175366760 | $307,940 | $307,940 | $313.34 | | |
| HUMNSERV | HUMAN SERVICES 119 | 0.0250000000 | $307,940 | $307,940 | $7.70 | | |
| SLDREL | SOLDIERS RELIEF 121 | 0.0155990005 | $307,940 | $307,940 | $4.80 | | |
| EMERGSER | EMS 147 | 0.3792580840 | $307,940 | $307,940 | $116.79 | | |
| EMSRFD | EMS REFUND 147 | 0.0000000000 | $307,940 | $307,940 | $0.00 | | |
| FD5EXP | FD #5 EXPENSE 689 | 1.2045331840 | $307,940 | $307,940 | $370.92 | | |
| RLBRFD | RURAL LIBRARY REFUND 623 | 0.0000000000 | $307,940 | $307,940 | $0.00 | | |
| RURALLIB | RURAL LIBRARY 623 | 0.3710609029 | $307,940 | $307,940 | $114.26 | | |
| PORTRFD | PORT REFUND 640 | 0.0000000000 | $307,940 | $307,940 | $0.00 | | |
| PORTWWGEN | PORT OF WW 640 | 0.2460186015 | $307,940 | $307,940 | $75.76 | | |
| SD400BOND | SD #400 BOND 793 | 0.0000000000 | $307,940 | $307,940 | $0.00 | | |
| SD400CAP | SD #400 CP 792 | 0.3443722657 | $307,940 | $307,940 | $106.05 | | |
| SD400GEN | SD #400 GENERAL 790 | 1.9278469916 | $307,940 | $307,940 | $593.66 | | |
| ST2 | STATE SCHOOL PART 2 600 | 0.8131451643 | $307,940 | $307,940 | $250.40 | | |
| STATESCHL | STATE SCHOOL 600 | 1.5158548041 | $307,940 | $307,940 | $466.79 | | |
| STREFUND | STATE REFUND LEVY 603 | 0.0000000000 | $307,940 | $307,940 | $0.00 | | |
| COROAD | COUNTY ROAD 115 | 1.6549953990 | $307,940 | $307,940 | $509.64 | | |
| CRPRD | COUNTY ROAD REFUND 115 | 0.0000000000 | $307,940 | $307,940 | $0.00 | | |
| | Total Tax Rate: | 9.5152210736 | | | | | |
| | | | | Taxes w/Current Exemptions: | $2,930.11 | | |
| | | | | Taxes w/o Exemptions: | $2,930.11 | | |
Improvement / Building
| Improvement #1: | MANUFACTURED HOME | State Code: | 11 | 1512.0 sqft | Value: | $246,630 |
| Exterior Wall: | VINYL | Heating/Cooling: | HEAT PUMP | | Number of Bathrooms: | 2 | Number of Bedrooms: | 3 | | Plumbing: | 8 | Roof Covering: | COMP SHINGLE |
|
| | Type | Description | Class CD | Sub Class CD | Year Built | Area |
| | MOBHOME | MANUFACTURD HOMES | 1 | 30 | 1984 | 1512.0 |
| | MI1 | MH SET-UP COSTS | 1 | 30 | 1984 | 1.0 |
| | POL2 | POLE BUILDING-CONCRETE | 1 | 30 | 1984 | 1080.0 |
| | CPCG | CARPORT/ GABLE ROOF | 1 | 30 | 1984 | 351.0 |
| | RPC | OPEN PORCH W/ROOF , CEILED | 1 | 30 | 1984 | 72.0 |
| | CPC | COVERED CARPORT/PATIO | 1 | 30 | 1984 | 225.0 |
Sketch
Property Image
Land
| 1 | RES 1 | Converted: Residential | 0.3931 | 17125.00 | 0.00 | 0.00 | 1.00 | $61,310 | $0 |
Roll Value History
| 2026 | N/A | N/A | N/A | N/A | N/A |
| 2025 | $258,960 | $61,310 | $0 | $320,270 | $320,270 |
| 2024 | $258,960 | $61,310 | $0 | $320,270 | $320,270 |
| 2023 | $246,630 | $61,310 | $0 | $307,940 | $307,940 |
| 2022 | $182,690 | $61,310 | $0 | $244,000 | $244,000 |
| 2021 | $166,080 | $61,310 | $0 | $227,390 | $227,390 |
| 2020 | $139,600 | $25,100 | $0 | $164,700 | $164,700 |
| 2019 | $139,600 | $25,100 | $0 | $164,700 | $164,700 |
| 2018 | $121,390 | $25,100 | $0 | $146,490 | $146,490 |
| 2017 | $121,390 | $25,100 | $0 | $146,490 | $146,490 |
| 2016 | $110,360 | $25,100 | $0 | $135,460 | $135,460 |
| 2015 | $105,100 | $25,100 | $0 | $130,200 | $130,200 |
| 2014 | $84,100 | $25,100 | $0 | $109,200 | $109,200 |
| 2013 | $84,100 | $25,100 | $0 | $109,200 | $109,200 |
| 2012 | $84,100 | $25,100 | $0 | $0 | $0 |
| 2011 | $84,100 | $25,100 | $0 | $0 | $0 |
| 2010 | $84,100 | $25,100 | $0 | $0 | $0 |
| 2009 | $77,500 | $22,200 | $0 | $0 | $0 |
| 2008 | $64,500 | $22,200 | $0 | $0 | $0 |
| 2007 | $64,500 | $22,200 | $0 | $0 | $0 |
Deed and Sales History
| 1 | 12/23/2015 | SWD | STATUTORY WARRANTY DEED | PRESTON LIVING TRUST | HUGHES DANIEL C | | | $145,000.00 | 129407 | 2015-11013 |
| 2 | 05/30/2012 | QCD | QUIT CLAIM DEED | PRESTON, HUGH E & SONDRA K | PRESTON LIVING TRUST | | | | 121892 | 2012-04439 |
| 3 | 05/18/2012 | QCD | QUIT CLAIM DEED | PRESTON, HUGH E | PRESTON, HUGH E & SONDRA K | | | | 121835 | 2012-04074 |
| 4 | 03/30/2006 | QCD | QUIT CLAIM DEED | HINDMAN, SHIRLEY A | PRESTON, HUGH E | | | | 109929 | 2006-03633 |
| 5 | 03/24/2006 | WARRANTY D | WARRANTY DEED | HINDMAN, SHIRLEY A | PRESTON, HUGH E | | | | 0 | CC #05-3--00311-6 |
| 6 | 11/29/2005 | WARRANTY D | WARRANTY DEED | PATTERSON, JOHN D | PRESTON, HUGH E | | | $93,000.00 | 109126 | 2005-14911 |
| 7 | 12/29/2003 | QCD | QUIT CLAIM DEED | PATTERSON, JOHN D LIVING TRUST | PATTERSON, JOHN D | | | | 103812 | 2003-19516 |
Payout Agreement
| No payout information available.. |