Property
Account |
| Property ID: | 33538 | Abbreviated Legal Description: | 17-7-36 TAX 2 |
| Parcel Number: | 360717440004 | Agent Code: | |
| Type: | Real | | |
| Tax Area: | 5 - OL-140 | Land Use Code | 11 |
| Open Space: | N | DFL | N |
| Historic Property: | N | Remodel Property: | N |
| Multi-Family Redevelopment: | N | | |
| Township: | 7 | Section: | 17 |
| Range: | 36 |
Location |
| Address: | 1242 E SUMACH ST WA 99362 | Mapsco: | |
| Neighborhood: | A-SFR | Map ID: | |
| Neighborhood CD: | 513011 |
Owner |
| Name: | SPARKES LIVING TRUST | Owner ID: | 58752 |
| Mailing Address: | 11621 N FAIRVIEW RD MEAD, WA 99021 | % Ownership: | 100.0000000000% |
| | | Exemptions: | |
Taxes and Assessment Details
Values
| (+) Improvement Homesite Value: | + | $0 | |
| (+) Improvement Non-Homesite Value: | + | $306,350 | |
| (+) Land Homesite Value: | + | $0 | |
| (+) Land Non-Homesite Value: | + | $64,160 | |
| (+) Curr Use (HS): | + | $0 | $0 |
| (+) Curr Use (NHS): | + | $0 | $0 |
| | | -------------------------- | |
| (=) Market Value: | = | $370,510 | |
| (–) Productivity Loss: | – | $0 | |
| | | -------------------------- | |
| (=) Subtotal: | = | $370,510 | |
| (+) Senior Appraised Value: | + | $0 | |
| (+) Non-Senior Appraised Value: | + | $370,510 | |
| | | -------------------------- | |
| (=) Total Appraised Value: | = | $370,510 | |
| (–) Senior Exemption Loss: | – | $0 | |
| (–) Exemption Loss: | – | $0 | |
| | | -------------------------- | |
| (=) Taxable Value: | = | $370,510 | |
Taxing Jurisdiction
| Owner: | SPARKES LIVING TRUST | | |
| % Ownership: | 100.0000000000% | | |
| Total Value: | $370,510 | | |
| Tax Area: | 5 - OL-140 |
| CERFD | CURRENT EXPENSE REFUND 010 | 0.0000000000 | $370,510 | $370,510 | $0.00 | | |
| CURREXP | CURRENT EXPENSE 010 | 1.0175366760 | $370,510 | $370,510 | $377.01 | | |
| HUMNSERV | HUMAN SERVICES 119 | 0.0250000000 | $370,510 | $370,510 | $9.26 | | |
| SLDREL | SOLDIERS RELIEF 121 | 0.0155990005 | $370,510 | $370,510 | $5.78 | | |
| EMERGSER | EMS 147 | 0.3792580840 | $370,510 | $370,510 | $140.52 | | |
| EMSRFD | EMS REFUND 147 | 0.0000000000 | $370,510 | $370,510 | $0.00 | | |
| PORTRFD | PORT REFUND 640 | 0.0000000000 | $370,510 | $370,510 | $0.00 | | |
| PORTWWGEN | PORT OF WW 640 | 0.2460186015 | $370,510 | $370,510 | $91.15 | | |
| SD140BOND | SD #140 BOND 764 | 0.8342371393 | $370,510 | $370,510 | $309.09 | | |
| SD140GEN | SD #140 GENERAL 760 | 2.0646500647 | $370,510 | $370,510 | $764.97 | | |
| ST2 | STATE SCHOOL PART 2 600 | 0.8131451643 | $370,510 | $370,510 | $301.28 | | |
| STATESCHL | STATE SCHOOL 600 | 1.5158548041 | $370,510 | $370,510 | $561.64 | | |
| STREFUND | STATE REFUND LEVY 603 | 0.0000000000 | $370,510 | $370,510 | $0.00 | | |
| CWWBOND | C OF WW BOND 643 | 0.2760494372 | $370,510 | $370,510 | $102.28 | | |
| CWWGEN | CITY OF WW 631 | 1.6100204973 | $370,510 | $370,510 | $596.53 | | |
| CWWRFD | CITY OF WALLA WALLA REFUND 631 | 0.0000000000 | $370,510 | $370,510 | $0.00 | | |
| | Total Tax Rate: | 8.7973694689 | | | | | |
| | | | | Taxes w/Current Exemptions: | $3,259.51 | | |
| | | | | Taxes w/o Exemptions: | $3,259.51 | | |
Improvement / Building
| Improvement #1: | RESIDENTIAL | State Code: | 11 | 2221.0 sqft | Value: | $306,350 |
| Exterior Wall: | METAL/STEEL | Heating/Cooling: | WARM & COOLED AIR | | Number of Bathrooms: | 3 | Number of Bedrooms: | 4 | | Plumbing: | 12 | Roof Covering: | COMP SHINGLE |
|
| | Type | Description | Class CD | Sub Class CD | Year Built | Area |
| | MA | Main Area | 4 | 30 | 1909 | 2221.0 |
| | SI1 | SITE IMPROVEMENT | 4 | 30 | 1909 | 1.0 |
| | BASE | BASEMENT | 4 | 30 | 1909 | 590.0 |
| | BMF | BASEMENT - MIN FINISH | 4 | 30 | 1909 | 590.0 |
| | UPFL | Upper Floor (included in main area) | 4 | 30 | 1909 | 954.0 |
| | ATG | Attached Garage | 4 | 30 | 1909 | 576.0 |
| | RPS | PORCH W/STEPS,ROOF | 4 | 30 | 1909 | 20.0 |
| | CPC | COVERED CARPORT/PATIO | 4 | 30 | 1909 | 256.0 |
| | OPS | OPEN PORCH W/STEPS | 4 | 30 | 1909 | 60.0 |
Sketch
Property Image
Land
| 1 | RES 1 | Converted: Residential | 0.3000 | 13068.00 | 0.00 | 0.00 | 1.00 | $64,160 | $0 |
Roll Value History
| 2026 | N/A | N/A | N/A | N/A | N/A |
| 2025 | $336,390 | $102,320 | $0 | $438,710 | $438,710 |
| 2024 | $336,390 | $102,320 | $0 | $438,710 | $438,710 |
| 2023 | $306,350 | $64,160 | $0 | $370,510 | $370,510 |
| 2022 | $255,290 | $64,160 | $0 | $319,450 | $319,450 |
| 2021 | $232,080 | $64,160 | $0 | $296,240 | $296,240 |
| 2020 | $178,530 | $64,160 | $0 | $242,690 | $242,690 |
| 2019 | $178,530 | $64,160 | $0 | $242,690 | $242,690 |
| 2018 | $155,240 | $64,160 | $0 | $219,400 | $219,400 |
| 2017 | $132,260 | $42,300 | $0 | $174,560 | $174,560 |
| 2016 | $120,240 | $42,300 | $0 | $162,540 | $162,540 |
| 2015 | $120,240 | $42,300 | $0 | $162,540 | $162,540 |
| 2014 | $104,100 | $42,300 | $0 | $146,400 | $146,400 |
| 2013 | $104,100 | $42,300 | $0 | $146,400 | $146,400 |
| 2012 | $102,200 | $42,300 | $0 | $0 | $0 |
| 2011 | $102,200 | $42,300 | $0 | $0 | $0 |
| 2010 | $89,100 | $42,300 | $0 | $0 | $0 |
| 2009 | $103,700 | $42,300 | $0 | $0 | $0 |
| 2008 | $103,700 | $42,300 | $0 | $0 | $0 |
| 2007 | $103,700 | $42,300 | $0 | $0 | $0 |
Deed and Sales History
| 1 | 05/16/2016 | QCD | QUIT CLAIM DEED | VALERIE A SPARKES LIVING TRUST | SPARKES LIVING TRUST | | | $0.00 | 130220 | 2016-03659 |
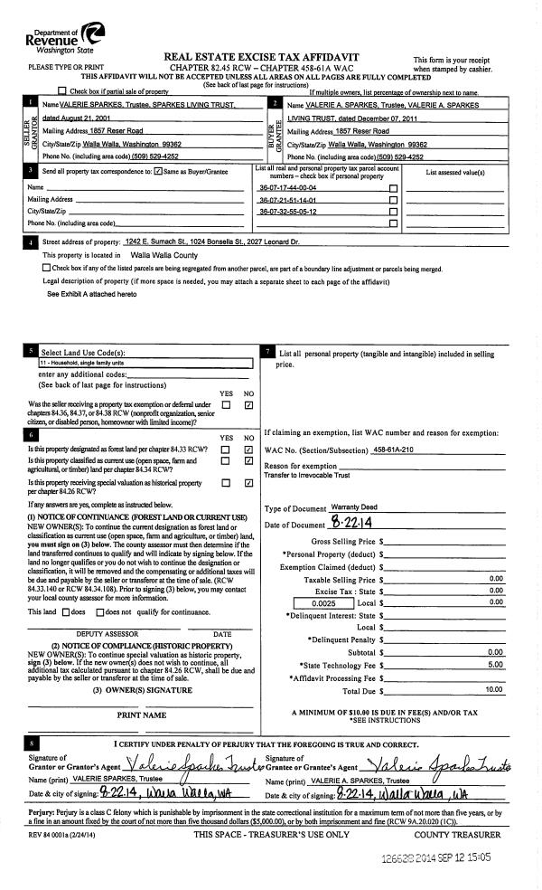
| 2 | 09/12/2014 | WARRANTY D | WARRANTY DEED | SPARKS LIVING TRUST | VALERIE A SPARKES LIVING TRUST | 3-PARCELS | | | 126628 | 2014-06693 |
| 3 | 08/28/2001 | WARRANTY D | WARRANTY DEED | SPARKES, VALERIE | SPARKS LIVING TRUST | | | | 97917 | 318-2326 |
| 4 | 09/18/1989 | WARRANTY D | WARRANTY DEED | | | | | $28,000.00 | 0 | 1788-905935 |
Payout Agreement
| No payout information available.. |