Property
Account |
| Property ID: | 33516 | Abbreviated Legal Description: | SCENIC VIEW LOT 34 AND E1/2 OF LOT 35 BLK 2 |
| Parcel Number: | 350736580234 | Agent Code: | |
| Type: | Real | | |
| Tax Area: | 75 - CP 250 | Land Use Code | 11 |
| Open Space: | N | DFL | N |
| Historic Property: | N | Remodel Property: | N |
| Multi-Family Redevelopment: | N | | |
| Township: | 7 | Section: | 36 |
| Range: | 35 |
Location |
| Address: | 123 SE MOUNTAIN VIEW DR WA 99324 | Mapsco: | |
| Neighborhood: | A SFR | Map ID: | |
| Neighborhood CD: | 113011 |
Owner |
| Name: | MORENO JOSE JERONIMO FLORES | Owner ID: | 66800 |
| Mailing Address: | TANIA FLORES CORONA 123 SE MOUNTAIN VIEW DR COLLEGE PLACE, WA 99324 | % Ownership: | 100.0000000000% |
| | | Exemptions: | |
Taxes and Assessment Details
Values
| (+) Improvement Homesite Value: | + | $0 | |
| (+) Improvement Non-Homesite Value: | + | $121,100 | |
| (+) Land Homesite Value: | + | $0 | |
| (+) Land Non-Homesite Value: | + | $60,750 | |
| (+) Curr Use (HS): | + | $0 | $0 |
| (+) Curr Use (NHS): | + | $0 | $0 |
| | | -------------------------- | |
| (=) Market Value: | = | $181,850 | |
| (–) Productivity Loss: | – | $0 | |
| | | -------------------------- | |
| (=) Subtotal: | = | $181,850 | |
| (+) Senior Appraised Value: | + | $0 | |
| (+) Non-Senior Appraised Value: | + | $181,850 | |
| | | -------------------------- | |
| (=) Total Appraised Value: | = | $181,850 | |
| (–) Senior Exemption Loss: | – | $0 | |
| (–) Exemption Loss: | – | $0 | |
| | | -------------------------- | |
| (=) Taxable Value: | = | $181,850 | |
Taxing Jurisdiction
| Owner: | MORENO JOSE JERONIMO FLORES | | |
| % Ownership: | 100.0000000000% | | |
| Total Value: | $181,850 | | |
| Tax Area: | 75 - CP 250 |
| CERFD | CURRENT EXPENSE REFUND 010 | 0.0000000000 | $181,850 | $181,850 | $0.00 | | |
| CURREXP | CURRENT EXPENSE 010 | 1.0175366760 | $181,850 | $181,850 | $185.04 | | |
| HUMNSERV | HUMAN SERVICES 119 | 0.0250000000 | $181,850 | $181,850 | $4.55 | | |
| SLDREL | SOLDIERS RELIEF 121 | 0.0155990005 | $181,850 | $181,850 | $2.84 | | |
| COLLPLBOND | C OF CP BOND 644 | 0.4374241808 | $181,850 | $181,850 | $79.55 | | |
| COLLPLGEN | CITY OF CP 632 | 1.4453819216 | $181,850 | $181,850 | $262.84 | | |
| EMERGSER | EMS 147 | 0.3792580840 | $181,850 | $181,850 | $68.97 | | |
| EMSRFD | EMS REFUND 147 | 0.0000000000 | $181,850 | $181,850 | $0.00 | | |
| RURALLIB | RURAL LIBRARY 623 | 0.3710609029 | $181,850 | $181,850 | $67.48 | | |
| PORTRFD | PORT REFUND 640 | 0.0000000000 | $181,850 | $181,850 | $0.00 | | |
| PORTWWGEN | PORT OF WW 640 | 0.2460186015 | $181,850 | $181,850 | $44.74 | | |
| SD250BOND | SD #250 BOND 773 | 1.4560608159 | $181,850 | $181,850 | $264.78 | | |
| SD250GEN | SD #250 GENERAL 770 | 2.3880724087 | $181,850 | $181,850 | $434.27 | | |
| ST2 | STATE SCHOOL PART 2 600 | 0.8131451643 | $181,850 | $181,850 | $147.87 | | |
| STATESCHL | STATE SCHOOL 600 | 1.5158548041 | $181,850 | $181,850 | $275.66 | | |
| STREFUND | STATE REFUND LEVY 603 | 0.0000000000 | $181,850 | $181,850 | $0.00 | | |
| | Total Tax Rate: | 10.1104125603 | | | | | |
| | | | | Taxes w/Current Exemptions: | $1,838.59 | | |
| | | | | Taxes w/o Exemptions: | $1,838.59 | | |
Improvement / Building
| Improvement #1: | RESIDENTIAL | State Code: | 11 | 936.0 sqft | Value: | $121,100 |
| Exterior Wall: | METAL/STEEL | Heating/Cooling: | FORCED AIR | | Number of Bathrooms: | 1 | Number of Bedrooms: | 2 | | Plumbing: | 6 | Roof Covering: | COMP SHINGLE |
|
| | Type | Description | Class CD | Sub Class CD | Year Built | Area |
| | MA | Main Area | 1 | 30 | 1960 | 936.0 |
| | SI1 | SITE IMPROVEMENT | 1 | 30 | 1960 | 1.0 |
| | BASE | BASEMENT | 1 | 30 | 1960 | 156.0 |
| | ATG | Attached Garage | 1 | 30 | 1960 | 484.0 |
| | SWP | Solid Wall Porch | 1 | 30 | 1960 | 30.0 |
| | OSP | Open | 1 | 30 | 1960 | 16.0 |
Sketch
Property Image
Land
| 1 | RES 1 | Converted: Residential | 0.2066 | 9000.00 | 0.00 | 0.00 | 1.00 | $60,750 | $0 |
Roll Value History
| 2026 | N/A | N/A | N/A | N/A | N/A |
| 2025 | $108,990 | $90,000 | $0 | $198,990 | $198,990 |
| 2024 | $121,100 | $60,750 | $0 | $181,850 | $181,850 |
| 2023 | $121,100 | $60,750 | $0 | $181,850 | $181,850 |
| 2022 | $100,910 | $60,750 | $0 | $161,660 | $161,660 |
| 2021 | $87,750 | $60,750 | $0 | $148,500 | $148,500 |
| 2020 | $50,190 | $60,750 | $0 | $110,940 | $110,940 |
| 2019 | $64,640 | $46,300 | $0 | $110,940 | $110,940 |
| 2018 | $56,210 | $46,300 | $0 | $102,510 | $102,510 |
| 2017 | $51,100 | $46,300 | $0 | $97,400 | $97,400 |
| 2016 | $51,100 | $46,300 | $0 | $97,400 | $97,400 |
| 2015 | $51,100 | $46,300 | $0 | $97,400 | $97,400 |
| 2014 | $51,100 | $46,300 | $0 | $97,400 | $97,400 |
| 2013 | $51,100 | $46,300 | $0 | $97,400 | $97,400 |
| 2012 | $51,100 | $46,300 | $0 | $0 | $0 |
| 2011 | $51,100 | $46,300 | $0 | $0 | $0 |
| 2010 | $51,100 | $46,300 | $0 | $0 | $0 |
| 2009 | $61,900 | $46,300 | $0 | $0 | $0 |
| 2008 | $59,100 | $23,800 | $0 | $0 | $0 |
| 2007 | $59,100 | $23,800 | $0 | $0 | $0 |
Deed and Sales History
| 1 | 02/27/2020 | SWD | STATUTORY WARRANTY DEED | CORONA JOSE L JR | MORENO JOSE JERONIMO FLORES | | | $165,000.00 | 138708 | 2020-01831 |
| 2 | 05/16/2012 | QCD | QUIT CLAIM DEED | TERANSKI, AUDREY JANE | WEIS, LYDIA | | | | 121824 | 2012-03966 |
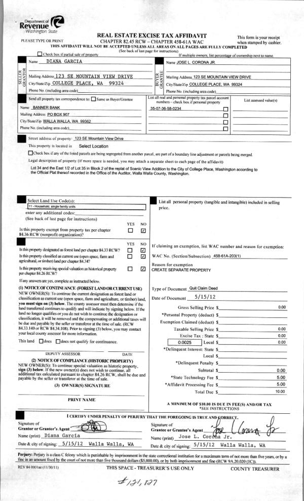
| 3 | 05/16/2012 | QCD | QUIT CLAIM DEED | GARCIA, DIANA | CORONA, JOSE L JR | | | | 121827 | 2012-03969 |
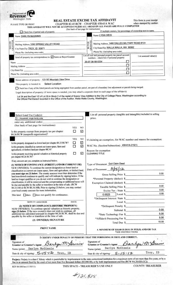
| 4 | 05/16/2012 | QCD | QUIT CLAIM DEED | MC GINNIS, DARLYN | WEIS, LYDIA | | | | 121825 | 2012-03967 |
| 5 | 05/16/2012 | WARRANTY D | WARRANTY DEED | WEIS, LYDIA | CORONA, JOSE L JR | | | $99,000.00 | 121826 | 2012-03968 |
| 6 | 07/21/1989 | QCD | QUIT CLAIM DEED | | | | | $0.00 | 0 | 1778-904504 |
Payout Agreement
| No payout information available.. |