Property
Account |
| Property ID: | 33515 | Abbreviated Legal Description: | WATERTOWN LOT 14 BLK 17 (B) |
| Parcel Number: | 360721731714 | Agent Code: | |
| Type: | Real | | |
| Tax Area: | 1 - OL-140-F | Land Use Code | 11 |
| Open Space: | N | DFL | N |
| Historic Property: | N | Remodel Property: | N |
| Multi-Family Redevelopment: | N | | |
| Township: | 7 | Section: | 21 |
| Range: | 36 |
Location |
| Address: | 1121 E ALDER ST WA 99362 | Mapsco: | |
| Neighborhood: | A-SFR | Map ID: | |
| Neighborhood CD: | 513011 |
Owner |
| Name: | DRAPER DELBERT | Owner ID: | 55273 |
| Mailing Address: | 1121 E ALDER ST WALLA WALLA, WA 99362 | % Ownership: | 100.0000000000% |
| | | Exemptions: | |
Taxes and Assessment Details
Property Tax Information as of
02/21/2026
Click on "Statement Details" to expand or collapse a tax statement.
* Please enter a valid date ** Please enter a valid date *
Statement Details |
| | TOTAL: | $0.00 | $0.00 | $0.00 | $0.00 | $0.00 | $0.00 |
|
| | $0.00 | $0.00 | $0.00 | $0.00 | $0.00 | $0.00 |
Values
| (+) Improvement Homesite Value: | + | $0 | |
| (+) Improvement Non-Homesite Value: | + | $261,630 | |
| (+) Land Homesite Value: | + | $0 | |
| (+) Land Non-Homesite Value: | + | $45,750 | |
| (+) Curr Use (HS): | + | $0 | $0 |
| (+) Curr Use (NHS): | + | $0 | $0 |
| | | -------------------------- | |
| (=) Market Value: | = | $307,380 | |
| (–) Productivity Loss: | – | $0 | |
| | | -------------------------- | |
| (=) Subtotal: | = | $307,380 | |
| (+) Senior Appraised Value: | + | $0 | |
| (+) Non-Senior Appraised Value: | + | $307,380 | |
| | | -------------------------- | |
| (=) Total Appraised Value: | = | $307,380 | |
| (–) Senior Exemption Loss: | – | $0 | |
| (–) Exemption Loss: | – | $0 | |
| | | -------------------------- | |
| (=) Taxable Value: | = | $307,380 | |
Taxing Jurisdiction
| Owner: | DRAPER DELBERT | | |
| % Ownership: | 100.0000000000% | | |
| Total Value: | $307,380 | | |
| Tax Area: | 1 - OL-140-F |
| CERFD | CURRENT EXPENSE REFUND 010 | 0.0000000000 | $307,380 | $307,380 | $0.00 | | |
| CURREXP | CURRENT EXPENSE 010 | 1.0175366760 | $307,380 | $307,380 | $312.77 | | |
| HUMNSERV | HUMAN SERVICES 119 | 0.0250000000 | $307,380 | $307,380 | $7.68 | | |
| SLDREL | SOLDIERS RELIEF 121 | 0.0155990005 | $307,380 | $307,380 | $4.79 | | |
| EMERGSER | EMS 147 | 0.3792580840 | $307,380 | $307,380 | $116.58 | | |
| EMSRFD | EMS REFUND 147 | 0.0000000000 | $307,380 | $307,380 | $0.00 | | |
| PORTRFD | PORT REFUND 640 | 0.0000000000 | $307,380 | $307,380 | $0.00 | | |
| PORTWWGEN | PORT OF WW 640 | 0.2460186015 | $307,380 | $307,380 | $75.62 | | |
| SD140BOND | SD #140 BOND 764 | 0.8342371393 | $307,380 | $307,380 | $256.43 | | |
| SD140GEN | SD #140 GENERAL 760 | 2.0646500647 | $307,380 | $307,380 | $634.63 | | |
| ST2 | STATE SCHOOL PART 2 600 | 0.8131451643 | $307,380 | $307,380 | $249.94 | | |
| STATESCHL | STATE SCHOOL 600 | 1.5158548041 | $307,380 | $307,380 | $465.94 | | |
| STREFUND | STATE REFUND LEVY 603 | 0.0000000000 | $307,380 | $307,380 | $0.00 | | |
| CWWBOND | C OF WW BOND 643 | 0.2760494372 | $307,380 | $307,380 | $84.85 | | |
| CWWGEN | CITY OF WW 631 | 1.6100204973 | $307,380 | $307,380 | $494.89 | | |
| CWWRFD | CITY OF WALLA WALLA REFUND 631 | 0.0000000000 | $307,380 | $307,380 | $0.00 | | |
| | Total Tax Rate: | 8.7973694689 | | | | | |
| | | | | Taxes w/Current Exemptions: | $2,704.12 | | |
| | | | | Taxes w/o Exemptions: | $2,704.12 | | |
Improvement / Building
| Improvement #1: | RESIDENTIAL | State Code: | 11 | 910.0 sqft | Value: | $261,630 |
| Exterior Wall: | SIDING | Heating/Cooling: | WARM & COOLED AIR | | Number of Bathrooms: | 2 | Number of Bedrooms: | 2 | | Plumbing: | 9 | Roof Covering: | COMP SHINGLE |
|
| | Type | Description | Class CD | Sub Class CD | Year Built | Area |
| | MA | Main Area | 1 | 30 | 1906 | 910.0 |
| | BASE | BASEMENT | 1 | 30 | 1906 | 700.0 |
| | BPF | BASEMENT -PARTITIONED FINISH | 1 | 30 | 1906 | 700.0 |
| | RPO | OPEN PORCH W/ROOF | 1 | 30 | 1906 | 80.0 |
| | TOOL | TOOL SHED | 1 | 30 | 1906 | 96.0 |
Sketch
Property Image
Land
| 1 | RES 1 | Converted: Residential | 0.1680 | 7320.00 | 0.00 | 0.00 | 1.00 | $45,750 | $0 |
Roll Value History
| 2026 | N/A | N/A | N/A | N/A | N/A |
| 2025 | $243,850 | $73,200 | $0 | $317,050 | $317,050 |
| 2024 | $232,240 | $73,200 | $0 | $305,440 | $305,440 |
| 2023 | $261,630 | $45,750 | $0 | $307,380 | $307,380 |
| 2022 | $249,180 | $45,750 | $0 | $294,930 | $294,930 |
| 2021 | $216,670 | $45,750 | $0 | $262,420 | $262,420 |
| 2020 | $144,450 | $45,750 | $0 | $190,200 | $190,200 |
| 2019 | $144,450 | $45,750 | $0 | $190,200 | $190,200 |
| 2018 | $137,570 | $45,750 | $0 | $183,320 | $183,320 |
| 2017 | $140,050 | $29,300 | $0 | $169,350 | $169,350 |
| 2016 | $133,380 | $29,300 | $0 | $162,680 | $162,680 |
| 2015 | $133,380 | $29,300 | $0 | $162,680 | $162,680 |
| 2014 | $102,600 | $29,300 | $0 | $131,900 | $131,900 |
| 2013 | $102,600 | $29,300 | $0 | $131,900 | $131,900 |
| 2012 | $102,600 | $29,300 | $0 | $0 | $0 |
| 2011 | $102,600 | $29,300 | $0 | $0 | $0 |
| 2010 | $96,300 | $29,300 | $0 | $0 | $0 |
| 2009 | $110,200 | $29,300 | $0 | $0 | $0 |
| 2008 | $100,000 | $32,900 | $0 | $0 | $0 |
| 2007 | $100,000 | $32,900 | $0 | $0 | $0 |
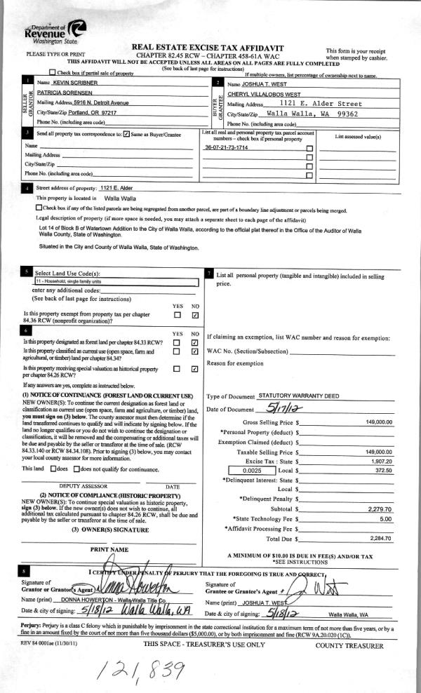
Deed and Sales History
| 1 | 07/29/2014 | QCD | QUIT CLAIM DEED | DRAPER DELBERT | | | | | 126342 | 2014-05359 |
| 2 | 07/29/2014 | SWD | STATUTORY WARRANTY DEED | WEST JOSHUA T & CHERYL VILLALOBOS | DRAPER DELBERT | | | $167,000.00 | 126341 | 2014-05358 |
| 3 | 05/18/2012 | WARRANTY D | WARRANTY DEED | SCRIBNER, KEVIN | WEST, JOSHUA T & CHERYL VILLAL | | | $149,000.00 | 121839 | 2012-04086 |
| 4 | 07/11/2005 | WARRANTY D | WARRANTY DEED | SHOEMAKE, STEPHEN & JEANINE | SCRIBNER, KEVIN | | | $135,900.00 | 107917 | 2005-08301 |
| 5 | 11/07/2000 | WARRANTY D | WARRANTY DEED | | | | | $91,000.00 | 96145 | 3040-010685 |
Payout Agreement
| No payout information available.. |