Property
Account |
| Property ID: | 33511 | Abbreviated Legal Description: | 21-7-36 TAX 76 |
| Parcel Number: | 360721230011 | Agent Code: | |
| Type: | Real | | |
| Tax Area: | 1 - OL-140-F | Land Use Code | 11 |
| Open Space: | N | DFL | N |
| Historic Property: | N | Remodel Property: | N |
| Multi-Family Redevelopment: | N | | |
| Township: | 7 | Section: | 21 |
| Range: | 36 |
Location |
| Address: | 572 UNIVERSITY ST WA 99362 | Mapsco: | |
| Neighborhood: | G Superior SFR | Map ID: | |
| Neighborhood CD: | 514211 |
Owner |
| Name: | ELIZABETH A KERR LIVING TRUST | Owner ID: | 55568 |
| Mailing Address: | ELIZABETH A KERR TRUSTEE 572 UNIVERSITY ST WALLA WALLA, WA 99362 | % Ownership: | 100.0000000000% |
| | | Exemptions: | |
Taxes and Assessment Details
Property Tax Information as of
02/21/2026
Click on "Statement Details" to expand or collapse a tax statement.
* Please enter a valid date ** Please enter a valid date *
Statement Details |
| | TOTAL: | $0.00 | $0.00 | $0.00 | $0.00 | $0.00 | $0.00 |
|
| | $0.00 | $0.00 | $0.00 | $0.00 | $0.00 | $0.00 |
Values
| (+) Improvement Homesite Value: | + | $0 | |
| (+) Improvement Non-Homesite Value: | + | $474,860 | |
| (+) Land Homesite Value: | + | $0 | |
| (+) Land Non-Homesite Value: | + | $50,900 | |
| (+) Curr Use (HS): | + | $0 | $0 |
| (+) Curr Use (NHS): | + | $0 | $0 |
| | | -------------------------- | |
| (=) Market Value: | = | $525,760 | |
| (–) Productivity Loss: | – | $0 | |
| | | -------------------------- | |
| (=) Subtotal: | = | $525,760 | |
| (+) Senior Appraised Value: | + | $0 | |
| (+) Non-Senior Appraised Value: | + | $525,760 | |
| | | -------------------------- | |
| (=) Total Appraised Value: | = | $525,760 | |
| (–) Senior Exemption Loss: | – | $0 | |
| (–) Exemption Loss: | – | $0 | |
| | | -------------------------- | |
| (=) Taxable Value: | = | $525,760 | |
Taxing Jurisdiction
| Owner: | ELIZABETH A KERR LIVING TRUST | | |
| % Ownership: | 100.0000000000% | | |
| Total Value: | $525,760 | | |
| Tax Area: | 1 - OL-140-F |
| CERFD | CURRENT EXPENSE REFUND 010 | 0.0000000000 | $525,760 | $525,760 | $0.00 | | |
| CURREXP | CURRENT EXPENSE 010 | 1.0175366760 | $525,760 | $525,760 | $534.98 | | |
| HUMNSERV | HUMAN SERVICES 119 | 0.0250000000 | $525,760 | $525,760 | $13.14 | | |
| SLDREL | SOLDIERS RELIEF 121 | 0.0155990005 | $525,760 | $525,760 | $8.20 | | |
| EMERGSER | EMS 147 | 0.3792580840 | $525,760 | $525,760 | $199.40 | | |
| EMSRFD | EMS REFUND 147 | 0.0000000000 | $525,760 | $525,760 | $0.00 | | |
| PORTRFD | PORT REFUND 640 | 0.0000000000 | $525,760 | $525,760 | $0.00 | | |
| PORTWWGEN | PORT OF WW 640 | 0.2460186015 | $525,760 | $525,760 | $129.35 | | |
| SD140BOND | SD #140 BOND 764 | 0.8342371393 | $525,760 | $525,760 | $438.61 | | |
| SD140GEN | SD #140 GENERAL 760 | 2.0646500647 | $525,760 | $525,760 | $1,085.51 | | |
| ST2 | STATE SCHOOL PART 2 600 | 0.8131451643 | $525,760 | $525,760 | $427.52 | | |
| STATESCHL | STATE SCHOOL 600 | 1.5158548041 | $525,760 | $525,760 | $796.98 | | |
| STREFUND | STATE REFUND LEVY 603 | 0.0000000000 | $525,760 | $525,760 | $0.00 | | |
| CWWBOND | C OF WW BOND 643 | 0.2760494372 | $525,760 | $525,760 | $145.14 | | |
| CWWGEN | CITY OF WW 631 | 1.6100204973 | $525,760 | $525,760 | $846.48 | | |
| CWWRFD | CITY OF WALLA WALLA REFUND 631 | 0.0000000000 | $525,760 | $525,760 | $0.00 | | |
| | Total Tax Rate: | 8.7973694689 | | | | | |
| | | | | Taxes w/Current Exemptions: | $4,625.31 | | |
| | | | | Taxes w/o Exemptions: | $4,625.31 | | |
Improvement / Building
| Improvement #1: | RESIDENTIAL | State Code: | 11 | 2188.0 sqft | Value: | $474,860 |
| Exterior Wall: | STUCCO | Heating/Cooling: | WARM & COOLED AIR | | Number of Bathrooms: | 2 | Number of Bedrooms: | 3 | | Plumbing: | 10 | Roof Covering: | CONCRETE TILE |
|
| | Type | Description | Class CD | Sub Class CD | Year Built | Area |
| | MA | Main Area | 2 | 45 | 1906 | 2188.0 |
| | SI1 | SITE IMPROVEMENT | 2 | 45 | 1906 | 2.5 |
| | BASE | BASEMENT | 2 | 45 | 1906 | 1008.0 |
| | UPFL | Upper Floor (included in main area) | 2 | 45 | 1906 | 1008.0 |
| | DTG | Detached Garage | 2 | 45 | 1906 | 420.0 |
| | RPS | PORCH W/STEPS,ROOF | 2 | 45 | 1906 | 24.0 |
| | OPS | OPEN PORCH W/STEPS | 2 | 45 | 1906 | 162.0 |
| | S2F | Single 2S Fireplace | 2 | 45 | 1906 | 1.0 |
| | RCD | WOOD DECK W/ROOF, CEILED | 2 | 45 | 1906 | 224.0 |
| | RPO | OPEN PORCH W/ROOF | 2 | 45 | 1906 | 36.0 |
| | OUT | OUTSIDE BASEMENT ENTRY | 2 | 45 | 1906 | 1.0 |
Sketch
Property Image
Land
| 1 | RES 1 | Converted: Residential | 0.1612 | 7020.00 | 0.00 | 0.00 | 1.00 | $50,900 | $0 |
Roll Value History
| 2026 | N/A | N/A | N/A | N/A | N/A |
| 2025 | $455,100 | $77,220 | $0 | $532,320 | $532,320 |
| 2024 | $455,100 | $77,220 | $0 | $532,320 | $532,320 |
| 2023 | $474,860 | $50,900 | $0 | $525,760 | $525,760 |
| 2022 | $474,860 | $50,900 | $0 | $525,760 | $525,760 |
| 2021 | $395,720 | $50,900 | $0 | $446,620 | $446,620 |
| 2020 | $344,100 | $50,900 | $0 | $395,000 | $395,000 |
| 2019 | $344,100 | $50,900 | $0 | $395,000 | $395,000 |
| 2018 | $344,100 | $50,900 | $0 | $395,000 | $395,000 |
| 2017 | $329,960 | $31,600 | $0 | $361,560 | $361,560 |
| 2016 | $314,250 | $31,600 | $0 | $345,850 | $345,850 |
| 2015 | $314,250 | $31,600 | $0 | $345,850 | $345,850 |
| 2014 | $209,500 | $31,600 | $0 | $241,100 | $241,100 |
| 2013 | $209,500 | $31,600 | $0 | $241,100 | $241,100 |
| 2012 | $205,900 | $31,600 | $0 | $0 | $0 |
| 2011 | $194,600 | $31,600 | $0 | $0 | $0 |
| 2010 | $194,600 | $31,600 | $0 | $0 | $0 |
| 2009 | $219,700 | $31,600 | $0 | $0 | $0 |
| 2008 | $219,700 | $31,600 | $0 | $0 | $0 |
| 2007 | $219,700 | $31,600 | $0 | $0 | $0 |
Deed and Sales History
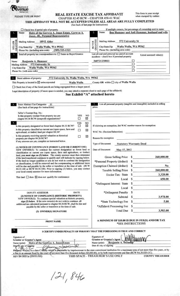
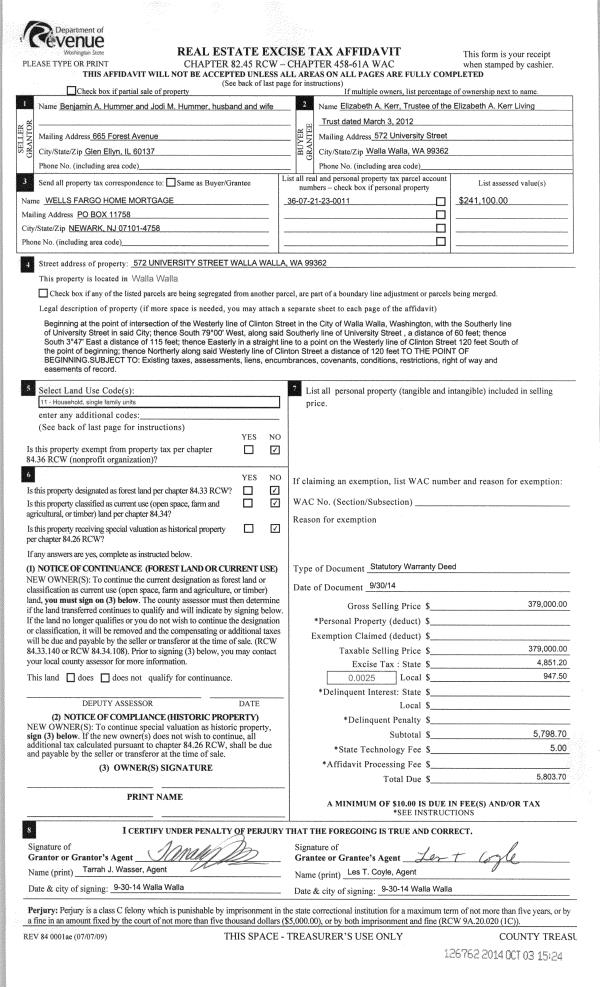
| 1 | 09/30/2014 | SWD | STATUTORY WARRANTY DEED | HUMMER BENJAMIN A & JODI M | ELIZABETH A KERR LIVING TRUST | | | $379,000.00 | 126762 | 2014-07284 |
| 2 | 05/21/2012 | WARRANTY D | WARRANTY DEED | JONES, GERWYN A ESTATE OF | HUMMER, BENJAMIN A & JODI M | | | $260,000.00 | 121846 | 2012-04178 |
| 3 | 01/01/1943 | WARRANTY D | WARRANTY DEED | | | | | $0.00 | 0 | 2030-275010 |
Payout Agreement
| No payout information available.. |