Property
Account |
| Property ID: | 33497 | Abbreviated Legal Description: | SINGLETONS 2ND TAX 5 BLK 1 |
| Parcel Number: | 360729790105 | Agent Code: | |
| Type: | Real | | |
| Tax Area: | 1 - OL-140-F | Land Use Code | 11 |
| Open Space: | N | DFL | N |
| Historic Property: | N | Remodel Property: | N |
| Multi-Family Redevelopment: | N | | |
| Township: | 7 | Section: | 29 |
| Range: | 36 |
Location |
| Address: | 155 LOCUST ST WA 99362 | Mapsco: | |
| Neighborhood: | G-SFR | Map ID: | |
| Neighborhood CD: | 514011 |
Owner |
| Name: | STRUTHERS LINDA L | Owner ID: | 73751 |
| Mailing Address: | 155 LOCUST ST WALLA WALLA, WA 99362 | % Ownership: | 100.0000000000% |
| | | Exemptions: | |
Taxes and Assessment Details
Values
| (+) Improvement Homesite Value: | + | $510,970 | |
| (+) Improvement Non-Homesite Value: | + | $0 | |
| (+) Land Homesite Value: | + | $43,620 | |
| (+) Land Non-Homesite Value: | + | $0 | |
| (+) Curr Use (HS): | + | $0 | $0 |
| (+) Curr Use (NHS): | + | $0 | $0 |
| | | -------------------------- | |
| (=) Market Value: | = | $554,590 | |
| (–) Productivity Loss: | – | $0 | |
| | | -------------------------- | |
| (=) Subtotal: | = | $554,590 | |
| (+) Senior Appraised Value: | + | $0 | |
| (+) Non-Senior Appraised Value: | + | $554,590 | |
| | | -------------------------- | |
| (=) Total Appraised Value: | = | $554,590 | |
| (–) Senior Exemption Loss: | – | $0 | |
| (–) Exemption Loss: | – | $0 | |
| | | -------------------------- | |
| (=) Taxable Value: | = | $554,590 | |
Taxing Jurisdiction
| Owner: | STRUTHERS LINDA L | | |
| % Ownership: | 100.0000000000% | | |
| Total Value: | $554,590 | | |
| Tax Area: | 1 - OL-140-F |
| CERFD | CURRENT EXPENSE REFUND 010 | 0.0000000000 | $554,590 | $554,590 | $0.00 | | |
| CURREXP | CURRENT EXPENSE 010 | 1.0175366760 | $554,590 | $554,590 | $564.32 | | |
| HUMNSERV | HUMAN SERVICES 119 | 0.0250000000 | $554,590 | $554,590 | $13.86 | | |
| SLDREL | SOLDIERS RELIEF 121 | 0.0155990005 | $554,590 | $554,590 | $8.65 | | |
| EMERGSER | EMS 147 | 0.3792580840 | $554,590 | $554,590 | $210.33 | | |
| EMSRFD | EMS REFUND 147 | 0.0000000000 | $554,590 | $554,590 | $0.00 | | |
| PORTRFD | PORT REFUND 640 | 0.0000000000 | $554,590 | $554,590 | $0.00 | | |
| PORTWWGEN | PORT OF WW 640 | 0.2460186015 | $554,590 | $554,590 | $136.44 | | |
| SD140BOND | SD #140 BOND 764 | 0.8342371393 | $554,590 | $554,590 | $462.66 | | |
| SD140GEN | SD #140 GENERAL 760 | 2.0646500647 | $554,590 | $554,590 | $1,145.03 | | |
| ST2 | STATE SCHOOL PART 2 600 | 0.8131451643 | $554,590 | $554,590 | $450.96 | | |
| STATESCHL | STATE SCHOOL 600 | 1.5158548041 | $554,590 | $554,590 | $840.68 | | |
| STREFUND | STATE REFUND LEVY 603 | 0.0000000000 | $554,590 | $554,590 | $0.00 | | |
| CWWBOND | C OF WW BOND 643 | 0.2760494372 | $554,590 | $554,590 | $153.09 | | |
| CWWGEN | CITY OF WW 631 | 1.6100204973 | $554,590 | $554,590 | $892.90 | | |
| CWWRFD | CITY OF WALLA WALLA REFUND 631 | 0.0000000000 | $554,590 | $554,590 | $0.00 | | |
| | Total Tax Rate: | 8.7973694689 | | | | | |
| | | | | Taxes w/Current Exemptions: | $4,878.92 | | |
| | | | | Taxes w/o Exemptions: | $4,878.92 | | |
Improvement / Building
| Improvement #1: | RESIDENTIAL | State Code: | 11 | 1378.0 sqft | Value: | $510,970 |
| Exterior Wall: | SIDING | Heating/Cooling: | WARM & COOLED AIR | | Number of Bathrooms: | 2.5 | Number of Bedrooms: | 2 | | Plumbing: | 13 | Roof Covering: | COMP SHINGLE |
|
| | Type | Description | Class CD | Sub Class CD | Year Built | Area |
| | MA | Main Area | 1 | 45 | 1910 | 1378.0 |
| | SI1 | SITE IMPROVEMENT | 1 | 45 | 1910 | 6.0 |
| | BASE | BASEMENT | 1 | 45 | 1910 | 1200.0 |
| | BMF | BASEMENT - MIN FINISH | 1 | 45 | 2018 | 1200.0 |
| | RCD | WOOD DECK W/ROOF, CEILED | 1 | 45 | 1910 | 210.0 |
| | DTG | Detached Garage | 1 | 45 | 1910 | 240.0 |
| | S1F | Single One Story Fireplace | 1 | 45 | 1910 | 1.0 |
Sketch
Property Image
Land
| 1 | RES 1 | Converted: Residential | 0.1381 | 6017.00 | 0.00 | 0.00 | 1.00 | $43,620 | $0 |
Roll Value History
| 2026 | N/A | N/A | N/A | N/A | N/A |
| 2025 | $753,500 | $66,190 | $0 | $819,690 | $819,690 |
| 2024 | $753,500 | $66,190 | $0 | $819,690 | $819,690 |
| 2023 | $510,970 | $43,620 | $0 | $554,590 | $554,590 |
| 2022 | $464,520 | $43,620 | $0 | $508,140 | $508,140 |
| 2021 | $422,290 | $43,620 | $0 | $465,910 | $465,910 |
| 2020 | $383,900 | $43,620 | $0 | $427,520 | $427,520 |
| 2019 | $383,900 | $43,620 | $0 | $427,520 | $427,520 |
| 2018 | $61,890 | $43,620 | $0 | $105,510 | $105,510 |
| 2017 | $155,930 | $36,100 | $0 | $192,030 | $192,030 |
| 2016 | $148,500 | $36,100 | $0 | $184,600 | $184,600 |
| 2015 | $148,500 | $36,100 | $0 | $184,600 | $184,600 |
| 2014 | $148,500 | $36,100 | $0 | $184,600 | $184,600 |
| 2013 | $148,500 | $36,100 | $0 | $184,600 | $184,600 |
| 2012 | $148,500 | $36,100 | $0 | $0 | $0 |
| 2011 | $148,500 | $36,100 | $0 | $0 | $0 |
| 2010 | $117,700 | $36,100 | $0 | $0 | $0 |
| 2009 | $144,800 | $36,100 | $0 | $0 | $0 |
| 2008 | $144,800 | $36,100 | $0 | $0 | $0 |
| 2007 | $115,800 | $12,000 | $0 | $0 | $0 |
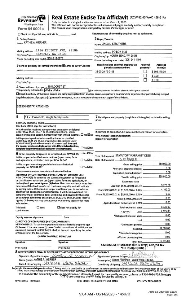
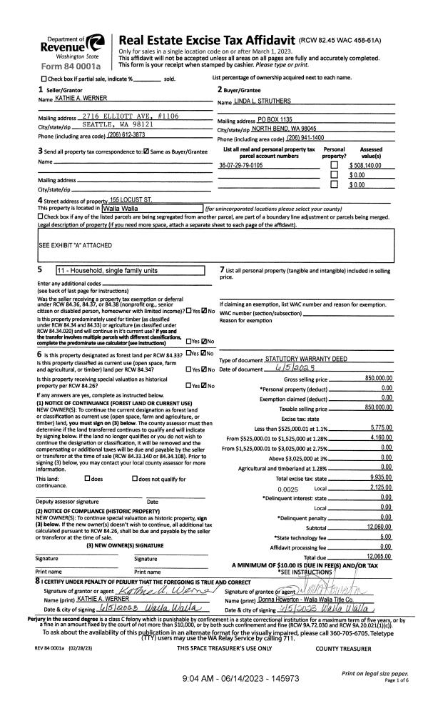
Deed and Sales History
| 1 | 06/14/2023 | SWD | STATUTORY WARRANTY DEED | WERNER KATHIE A | STRUTHERS LINDA L | | | $850,000.00 | 145973 | 2023-03258 |
| 2 | 05/03/2018 | SURVEY | SURVEY | | | 13 | 82 | | 0 | 2018-03517 |
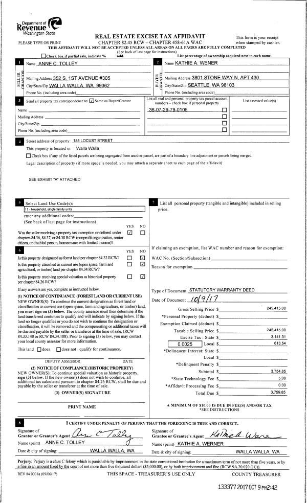
| 3 | 10/09/2017 | SWD | STATUTORY WARRANTY DEED | TOLLEY ANNE CATHERINE | WERNER KATHIE A | | | $245,415.00 | 133377 | 2017-08034 |
| 4 | 03/01/1979 | WARRANTY D | WARRANTY DEED | | | | | $43,500.00 | 71244 | 8878-07385 |
Payout Agreement
| No payout information available.. |