Property
Account |
| Property ID: | 33494 | Abbreviated Legal Description: | 36-7-35 LOT 1 OF S/P (WLY PTN TAX 5D WITHIN N1/2NW1/4) |
| Parcel Number: | 350736210057 | Agent Code: | |
| Type: | Real | | |
| Tax Area: | 75 - CP 250 | Land Use Code | 11 |
| Open Space: | N | DFL | N |
| Historic Property: | N | Remodel Property: | N |
| Multi-Family Redevelopment: | N | | |
| Township: | 7 | Section: | 36 |
| Range: | 35 |
Location |
| Address: | 418 SE 3RD ST WA 99324 | Mapsco: | |
| Neighborhood: | A SFR | Map ID: | |
| Neighborhood CD: | 113011 |
Owner |
| Name: | JACOBSON LIVING TRUST | Owner ID: | 67000 |
| Mailing Address: | 418 SE 3RD ST COLLEGE PLACE, WA 99324 | % Ownership: | 100.0000000000% |
| | | Exemptions: | |
Taxes and Assessment Details
Values
| (+) Improvement Homesite Value: | + | $303,840 | |
| (+) Improvement Non-Homesite Value: | + | $0 | |
| (+) Land Homesite Value: | + | $61,440 | |
| (+) Land Non-Homesite Value: | + | $0 | |
| (+) Curr Use (HS): | + | $0 | $0 |
| (+) Curr Use (NHS): | + | $0 | $0 |
| | | -------------------------- | |
| (=) Market Value: | = | $365,280 | |
| (–) Productivity Loss: | – | $0 | |
| | | -------------------------- | |
| (=) Subtotal: | = | $365,280 | |
| (+) Senior Appraised Value: | + | $0 | |
| (+) Non-Senior Appraised Value: | + | $365,280 | |
| | | -------------------------- | |
| (=) Total Appraised Value: | = | $365,280 | |
| (–) Senior Exemption Loss: | – | $0 | |
| (–) Exemption Loss: | – | $0 | |
| | | -------------------------- | |
| (=) Taxable Value: | = | $365,280 | |
Taxing Jurisdiction
| Owner: | JACOBSON LIVING TRUST | | |
| % Ownership: | 100.0000000000% | | |
| Total Value: | $365,280 | | |
| Tax Area: | 75 - CP 250 |
| CERFD | CURRENT EXPENSE REFUND 010 | 0.0000000000 | $365,280 | $365,280 | $0.00 | | |
| CURREXP | CURRENT EXPENSE 010 | 1.0175366760 | $365,280 | $365,280 | $371.69 | | |
| HUMNSERV | HUMAN SERVICES 119 | 0.0250000000 | $365,280 | $365,280 | $9.13 | | |
| SLDREL | SOLDIERS RELIEF 121 | 0.0155990005 | $365,280 | $365,280 | $5.70 | | |
| COLLPLBOND | C OF CP BOND 644 | 0.4374241808 | $365,280 | $365,280 | $159.78 | | |
| COLLPLGEN | CITY OF CP 632 | 1.4453819216 | $365,280 | $365,280 | $527.97 | | |
| EMERGSER | EMS 147 | 0.3792580840 | $365,280 | $365,280 | $138.54 | | |
| EMSRFD | EMS REFUND 147 | 0.0000000000 | $365,280 | $365,280 | $0.00 | | |
| RURALLIB | RURAL LIBRARY 623 | 0.3710609029 | $365,280 | $365,280 | $135.54 | | |
| PORTRFD | PORT REFUND 640 | 0.0000000000 | $365,280 | $365,280 | $0.00 | | |
| PORTWWGEN | PORT OF WW 640 | 0.2460186015 | $365,280 | $365,280 | $89.87 | | |
| SD250BOND | SD #250 BOND 773 | 1.4560608159 | $365,280 | $365,280 | $531.87 | | |
| SD250GEN | SD #250 GENERAL 770 | 2.3880724087 | $365,280 | $365,280 | $872.32 | | |
| ST2 | STATE SCHOOL PART 2 600 | 0.8131451643 | $365,280 | $365,280 | $297.03 | | |
| STATESCHL | STATE SCHOOL 600 | 1.5158548041 | $365,280 | $365,280 | $553.71 | | |
| STREFUND | STATE REFUND LEVY 603 | 0.0000000000 | $365,280 | $365,280 | $0.00 | | |
| | Total Tax Rate: | 10.1104125603 | | | | | |
| | | | | Taxes w/Current Exemptions: | $3,693.15 | | |
| | | | | Taxes w/o Exemptions: | $3,693.15 | | |
Improvement / Building
| Improvement #1: | RESIDENTIAL | State Code: | 11 | 1421.0 sqft | Value: | $303,840 |
| Exterior Wall: | PLYWOOD | Heating/Cooling: | WARM & COOLED AIR | | Number of Bathrooms: | 2 | Number of Bedrooms: | 3 | | Plumbing: | 9 | Roof Covering: | COMP SHINGLE |
|
| | Type | Description | Class CD | Sub Class CD | Year Built | Area |
| | MA | Main Area | 1 | 35 | 1993 | 1421.0 |
| | SI1 | SITE IMPROVEMENT | 1 | 35 | 1993 | 2.0 |
| | ATG | Attached Garage | 1 | 35 | 1993 | 484.0 |
| | RPS | PORCH W/STEPS,ROOF | 1 | 35 | 1993 | 35.0 |
| | WOD | Wood Deck | 1 | 35 | 1993 | 287.0 |
| | DTG | Detached Garage | 1 | 35 | 1993 | 540.0 |
| | TOOL | TOOL SHED | 1 | 35 | 1993 | 100.0 |
Sketch
Property Image
Land
| 1 | RES 1 | Converted: Residential | 0.2331 | 10155.00 | 0.00 | 0.00 | 1.00 | $61,440 | $0 |
Roll Value History
| 2026 | N/A | N/A | N/A | N/A | N/A |
| 2025 | $293,040 | $91,400 | $0 | $384,440 | $384,440 |
| 2024 | $303,840 | $61,440 | $0 | $365,280 | $365,280 |
| 2023 | $303,840 | $61,440 | $0 | $365,280 | $365,280 |
| 2022 | $276,210 | $61,440 | $0 | $337,650 | $337,650 |
| 2021 | $230,180 | $61,440 | $0 | $291,620 | $291,620 |
| 2020 | $177,060 | $61,440 | $0 | $238,500 | $238,500 |
| 2019 | $191,200 | $47,300 | $0 | $238,500 | $238,500 |
| 2018 | $191,200 | $47,300 | $0 | $238,500 | $238,500 |
| 2017 | $182,090 | $47,300 | $0 | $229,390 | $229,390 |
| 2016 | $182,090 | $47,300 | $0 | $229,390 | $229,390 |
| 2015 | $173,420 | $47,300 | $0 | $220,720 | $220,720 |
| 2014 | $150,800 | $47,300 | $0 | $198,100 | $198,100 |
| 2013 | $150,800 | $47,300 | $0 | $198,100 | $79,240 |
| 2012 | $150,800 | $47,300 | $0 | $0 | $0 |
| 2011 | $150,800 | $47,300 | $0 | $0 | $0 |
| 2010 | $150,800 | $47,300 | $0 | $0 | $0 |
| 2009 | $172,800 | $47,300 | $0 | $0 | $0 |
| 2008 | $117,400 | $24,900 | $0 | $0 | $0 |
| 2007 | $117,400 | $24,900 | $0 | $0 | $0 |
Deed and Sales History
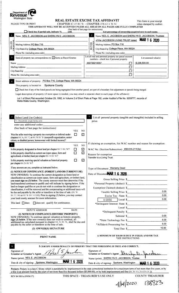
| 1 | 03/16/2020 | WARRANTY D | WARRANTY DEED | JACOBSON NEIL E & SHERILYN D | JACOBSON LIVING TRUST | | | $0.00 | 138923 | 2020-03170 |
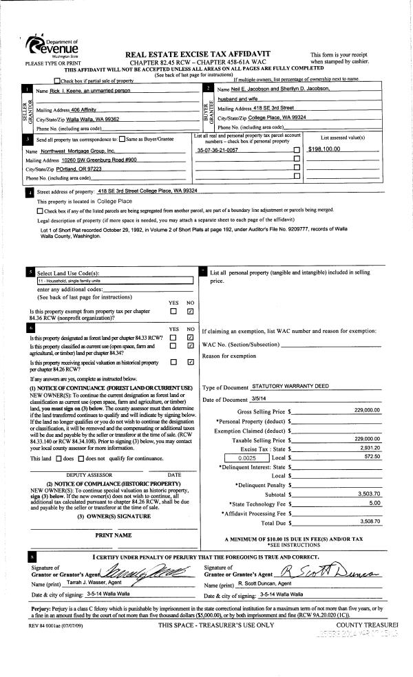
| 2 | 03/07/2014 | SWD | STATUTORY WARRANTY DEED | KEENE RICK I | JACOBSON NEIL E & SHERILYN D | | | $229,000.00 | 125532 | 2014-01596 |
| 3 | 10/26/2011 | WARRANTY D | WARRANTY DEED | HURSON, DAVID F & SALLY I | KEENE, RICK I | | | $220,000.00 | 120875 | 2011-08356 |
| 4 | 11/07/2005 | WARRANTY D | WARRANTY DEED | HURSON, DAVID F | HURSON, DAVID F & SALLY I | | | | 108967 | 2005-14070 |
| 5 | 09/29/1993 | WARRANTY D | WARRANTY DEED | | | | | $95,000.00 | 80136 | 2119-310106 |
Payout Agreement
| No payout information available.. |