Property
Account |
| Property ID: | 33488 | Abbreviated Legal Description: | 35-7-33 S1/2E1/3SW1/4; S1/2W1/2E2/3SW1/4; ALL IN 26-7-33; NLY 1402'OF W1/2E2/3 OF NW1/4 SEC 35-7-33; NLY 934' +OR- OF E2/3NW1/435-7-33 |
| Parcel Number: | 330735210006 | Agent Code: | |
| Type: | Real | | |
| Tax Area: | 318 - 300-6-TM | Land Use Code | 83 |
| Open Space: | Y | DFL | N |
| Historic Property: | N | Remodel Property: | N |
| Multi-Family Redevelopment: | N | | |
| Township: | 7 | Section: | 35 |
| Range: | 33 |
Location |
| Address: | 330 LARRABEE RD WA 99360 | Mapsco: | |
| Neighborhood: | 0 Farm | Map ID: | |
| Neighborhood CD: | 2220 |
Owner |
| Name: | BAUMANN BENJAMIN K | Owner ID: | 49218 |
| Mailing Address: | 1277 WOODWARD CANYON RD TOUCHET, WA 99360 | % Ownership: | 100.0000000000% |
| | | Exemptions: | |
Taxes and Assessment Details
Values
| (+) Improvement Homesite Value: | + | N/A | |
| (+) Improvement Non-Homesite Value: | + | N/A | |
| (+) Land Homesite Value: | + | N/A | |
| (+) Land Non-Homesite Value: | + | N/A | Ag / Timber Use Value |
| (+) Curr Use (HS): | + | N/A | N/A |
| (+) Curr Use (NHS): | + | N/A | N/A |
| | | -------------------------- | |
| (=) Market Value: | = | N/A | |
| (–) Productivity Loss: | – | N/A | |
| | | -------------------------- | |
| (=) Subtotal: | = | N/A | |
| (+) Senior Appraised Value: | + | N/A | |
| (+) Non-Senior Appraised Value: | + | N/A | |
| | | -------------------------- | |
| (=) Total Appraised Value: | = | N/A | |
| (–) Senior Exemption Loss: | – | N/A | |
| (–) Exemption Loss: | – | N/A | |
| | | -------------------------- | |
| (=) Taxable Value: | = | N/A | |
Taxing Jurisdiction
| Owner: | BAUMANN BENJAMIN K | | |
| % Ownership: | 100.0000000000% | | |
| Total Value: | N/A | | |
| Tax Area: | 318 - 300-6-TM |
| CERFD | CURRENT EXPENSE REFUND 010 | N/A | N/A | N/A | N/A | | |
| CURREXP | CURRENT EXPENSE 010 | N/A | N/A | N/A | N/A | | |
| HUMNSERV | HUMAN SERVICES 119 | N/A | N/A | N/A | N/A | | |
| SLDREL | SOLDIERS RELIEF 121 | N/A | N/A | N/A | N/A | | |
| EMERGSER | EMS 147 | N/A | N/A | N/A | N/A | | |
| EMSRFD | EMS REFUND 147 | N/A | N/A | N/A | N/A | | |
| FD6EXP | FD #6 EXPENSE 693 | N/A | N/A | N/A | N/A | | |
| RLBRFD | RURAL LIBRARY REFUND 623 | N/A | N/A | N/A | N/A | | |
| RURALLIB | RURAL LIBRARY 623 | N/A | N/A | N/A | N/A | | |
| PORTRFD | PORT REFUND 640 | N/A | N/A | N/A | N/A | | |
| PORTWWGEN | PORT OF WW 640 | N/A | N/A | N/A | N/A | | |
| SD300BOND | SD #300 BOND 783 | N/A | N/A | N/A | N/A | | |
| SD300GEN | SD #300 GENERAL 780 | N/A | N/A | N/A | N/A | | |
| ST2 | STATE SCHOOL PART 2 600 | N/A | N/A | N/A | N/A | | |
| STATESCHL | STATE SCHOOL 600 | N/A | N/A | N/A | N/A | | |
| STREFUND | STATE REFUND LEVY 603 | N/A | N/A | N/A | N/A | | |
| COROAD | COUNTY ROAD 115 | N/A | N/A | N/A | N/A | | |
| CRPRD | COUNTY ROAD REFUND 115 | N/A | N/A | N/A | N/A | | |
| | Total Tax Rate: | N/A | | | | | |
| | | | | Taxes w/Current Exemptions: | N/A | | |
| | | | | Taxes w/o Exemptions: | N/A | | |
Improvement / Building
| Improvement #1: | RESIDENTIAL | State Code: | 83 | 2098.0 sqft | Value: | N/A |
| Exterior Wall: | VINYL | Heating/Cooling: | FORCED AIR | | Number of Bathrooms: | 2 | Number of Bedrooms: | 4 | | Plumbing: | 9 | Roof Covering: | COMP SHINGLE |
|
| | Type | Description | Class CD | Sub Class CD | Year Built | Area |
| | MA | Main Area | 4 | 30 | 1950 | 2098.0 |
| | DTG | Detached Garage | 4 | 20 | 1940 | 576.0 |
| | SI1 | SITE IMPROVEMENT | 4 | 20 | 1950 | 1.0 |
| | BASE | BASEMENT | 4 | 30 | 1950 | 1075.0 |
| | WOD | Wood Deck | 4 | 30 | 1950 | 125.0 |
| | UTIL-STOR | UTILITY STORAGE | 1 | 20 | 1950 | 1200.0 |
| | POLE | POLE UTILITY BUILDING | 1 | 20 | 1950 | 1200.0 |
| | UTILITY | UTILITY BUILDING | 1 | 20 | 1940 | 1200.0 |
| | IMPL-SHED | IMPLEMENT SHED | 1 | 20 | 1940 | 1200.0 |
| | BMF | BASEMENT - MIN FINISH | 4 | 30 | 1950 | 1053.0 |
| | LNTD | LEAN TO DIRT FLOOR | 1 | 20 | 1950 | 600.0 |
| | CPCG | CARPORT/ GABLE ROOF | 1 | 30 | 2014 | 576.0 |
| | UPFL | Upper Floor (included in main area) | 4 | 20 | 1950 | 500.0 |
Sketch
Property Image
Land
| 1 | C2-I | Class 2 Irrigated | 99.3100 | 0.00 | 0.00 | 0.00 | 1.00 | N/A | N/A |
| 2 | 60,000-HS2 | Homesite Use Value | 1.0000 | 0.00 | 0.00 | 0.00 | 1.00 | N/A | N/A |
Roll Value History
| 2026 | N/A | N/A | N/A | N/A | N/A |
| 2025 | $145,400 | $636,000 | $111,570 | $256,970 | $256,970 |
| 2024 | $145,400 | $616,140 | $113,660 | $259,060 | $259,060 |
| 2023 | $145,400 | $596,270 | $112,990 | $258,390 | $258,390 |
| 2022 | $145,400 | $556,550 | $109,020 | $254,420 | $254,420 |
| 2021 | $145,400 | $506,900 | $111,100 | $256,500 | $256,500 |
| 2020 | $115,060 | $402,520 | $113,400 | $228,460 | $228,460 |
| 2019 | $115,060 | $362,790 | $116,990 | $232,050 | $232,050 |
| 2018 | $115,060 | $352,860 | $119,190 | $234,250 | $234,250 |
| 2017 | $115,060 | $352,860 | $122,960 | $238,020 | $238,020 |
| 2016 | $115,060 | $352,860 | $123,440 | $238,500 | $238,500 |
| 2015 | $115,060 | $313,140 | $112,410 | $227,470 | $227,470 |
| 2014 | $97,100 | $313,140 | $112,470 | $209,570 | $209,570 |
| 2013 | $97,100 | $303,200 | $96,500 | $193,600 | $193,600 |
| 2012 | $97,100 | $303,200 | $0 | $0 | $0 |
Deed and Sales History
| 1 | 04/25/2019 | WARRANTY D | WARRANTY DEED | BAUMANN BENJAMIN K | WASH DEPT OF TRANSPORTATION | | 6-PARCELS | $220,000.00 | 136747 | 2019-02636 |
|   | |
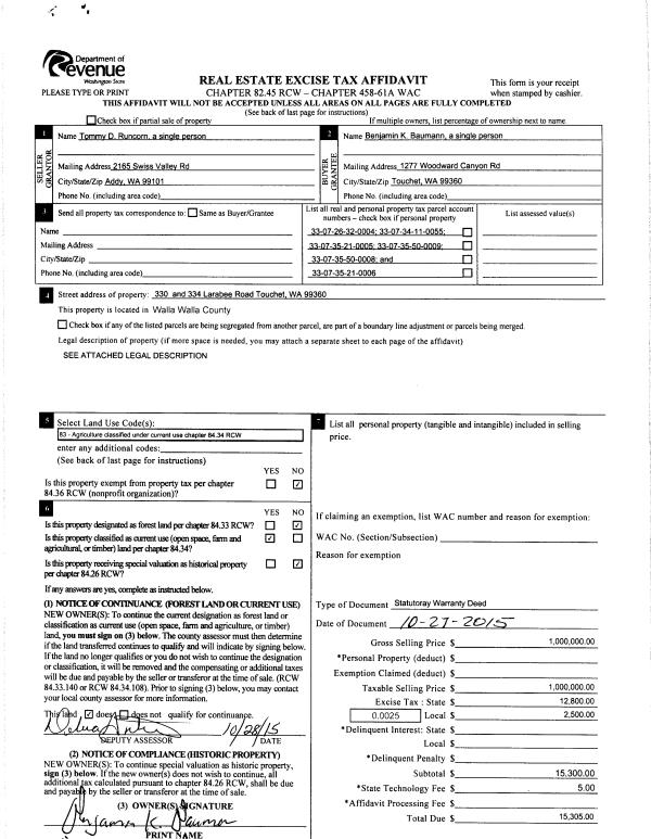
| 2 | 10/27/2015 | SWD | STATUTORY WARRANTY DEED | RUNCORN TOMMY D | BAUMANN BENJAMIN K | | 6-PARCELS | $1,000,000.00 | 129090 | 2015-09458 |
|   | |
| 3 | 05/29/2012 | WARRANTY D | WARRANTY DEED | HINDMAN, SHIRLEY | RUNCORN, TOMMY D | | | $485,000.00 | 121889 | 2012--04428 |
Payout Agreement
| No payout information available.. |