Property
Account |
| Property ID: | 33473 | Abbreviated Legal Description: | REPLAT OF BLK 2 OF ISLAND PARK ADDN (TRACT 4 OF S/P) ELY 100' OFLOT 6 |
| Parcel Number: | 360722590217 | Agent Code: | |
| Type: | Real | | |
| Tax Area: | 1 - OL-140-F | Land Use Code | 11 |
| Open Space: | N | DFL | N |
| Historic Property: | N | Remodel Property: | N |
| Multi-Family Redevelopment: | N | | |
| Township: | 7 | Section: | 22 |
| Range: | 36 |
Location |
| Address: | 2050 WALLACE ST WA 99362 | Mapsco: | |
| Neighborhood: | G SFR | Map ID: | |
| Neighborhood CD: | 414011 |
Owner |
| Name: | JAMES RYAN L & JILLIAN K | Owner ID: | 60068 |
| Mailing Address: | 2050 WALLACE ST WALLA WALLA, WA 99362 | % Ownership: | 100.0000000000% |
| | | Exemptions: | |
Taxes and Assessment Details
Values
| (+) Improvement Homesite Value: | + | $392,360 | |
| (+) Improvement Non-Homesite Value: | + | $0 | |
| (+) Land Homesite Value: | + | $150,000 | |
| (+) Land Non-Homesite Value: | + | $0 | |
| (+) Curr Use (HS): | + | $0 | $0 |
| (+) Curr Use (NHS): | + | $0 | $0 |
| | | -------------------------- | |
| (=) Market Value: | = | $542,360 | |
| (–) Productivity Loss: | – | $0 | |
| | | -------------------------- | |
| (=) Subtotal: | = | $542,360 | |
| (+) Senior Appraised Value: | + | $0 | |
| (+) Non-Senior Appraised Value: | + | $542,360 | |
| | | -------------------------- | |
| (=) Total Appraised Value: | = | $542,360 | |
| (–) Senior Exemption Loss: | – | $0 | |
| (–) Exemption Loss: | – | $0 | |
| | | -------------------------- | |
| (=) Taxable Value: | = | $542,360 | |
Taxing Jurisdiction
| Owner: | JAMES RYAN L & JILLIAN K | | |
| % Ownership: | 100.0000000000% | | |
| Total Value: | $542,360 | | |
| Tax Area: | 1 - OL-140-F |
| CERFD | CURRENT EXPENSE REFUND 010 | 0.0000000000 | $542,360 | $542,360 | $0.00 | | |
| CURREXP | CURRENT EXPENSE 010 | 1.0175366760 | $542,360 | $542,360 | $551.87 | | |
| HUMNSERV | HUMAN SERVICES 119 | 0.0250000000 | $542,360 | $542,360 | $13.56 | | |
| SLDREL | SOLDIERS RELIEF 121 | 0.0155990005 | $542,360 | $542,360 | $8.46 | | |
| EMERGSER | EMS 147 | 0.3792580840 | $542,360 | $542,360 | $205.69 | | |
| EMSRFD | EMS REFUND 147 | 0.0000000000 | $542,360 | $542,360 | $0.00 | | |
| PORTRFD | PORT REFUND 640 | 0.0000000000 | $542,360 | $542,360 | $0.00 | | |
| PORTWWGEN | PORT OF WW 640 | 0.2460186015 | $542,360 | $542,360 | $133.43 | | |
| SD140BOND | SD #140 BOND 764 | 0.8342371393 | $542,360 | $542,360 | $452.46 | | |
| SD140GEN | SD #140 GENERAL 760 | 2.0646500647 | $542,360 | $542,360 | $1,119.78 | | |
| ST2 | STATE SCHOOL PART 2 600 | 0.8131451643 | $542,360 | $542,360 | $441.02 | | |
| STATESCHL | STATE SCHOOL 600 | 1.5158548041 | $542,360 | $542,360 | $822.14 | | |
| STREFUND | STATE REFUND LEVY 603 | 0.0000000000 | $542,360 | $542,360 | $0.00 | | |
| CWWBOND | C OF WW BOND 643 | 0.2760494372 | $542,360 | $542,360 | $149.72 | | |
| CWWGEN | CITY OF WW 631 | 1.6100204973 | $542,360 | $542,360 | $873.21 | | |
| CWWRFD | CITY OF WALLA WALLA REFUND 631 | 0.0000000000 | $542,360 | $542,360 | $0.00 | | |
| | Total Tax Rate: | 8.7973694689 | | | | | |
| | | | | Taxes w/Current Exemptions: | $4,771.34 | | |
| | | | | Taxes w/o Exemptions: | $4,771.34 | | |
Improvement / Building
| Improvement #1: | RESIDENTIAL | State Code: | 11 | 1837.0 sqft | Value: | $392,360 |
| Exterior Wall: | SIDING | Heating/Cooling: | WARM & COOLED AIR | | Number of Bathrooms: | 2 | Number of Bedrooms: | 3 | | Plumbing: | 10 | Roof Covering: | COMP SHINGLE |
|
| | Type | Description | Class CD | Sub Class CD | Year Built | Area |
| | MA | Main Area | 1 | 40 | 1993 | 1837.0 |
| | CPC | COVERED CARPORT/PATIO | 1 | 40 | 0 | 240.0 |
| | SI1 | SITE IMPROVEMENT | 1 | 40 | 0 | 4.5 |
| | ATG | Attached Garage | 1 | 40 | 1993 | 594.0 |
| | RPS | PORCH W/STEPS,ROOF | 1 | 40 | 1993 | 70.0 |
| | S1F | Single One Story Fireplace | 1 | 40 | 1993 | 1.0 |
| | UTST | Utility Storage Shed | 1 | 40 | 1993 | 112.0 |
Sketch
Property Image
Land
| 1 | RES 1 | Converted: Residential | 0.2524 | 10994.00 | 0.00 | 0.00 | 1.00 | $150,000 | $0 |
Roll Value History
| 2026 | N/A | N/A | N/A | N/A | N/A |
| 2025 | $392,360 | $150,000 | $0 | $542,360 | $542,360 |
| 2024 | $392,360 | $150,000 | $0 | $542,360 | $542,360 |
| 2023 | $392,360 | $150,000 | $0 | $542,360 | $542,360 |
| 2022 | $388,360 | $65,000 | $0 | $453,360 | $453,360 |
| 2021 | $258,910 | $65,000 | $0 | $323,910 | $323,910 |
| 2020 | $215,760 | $65,000 | $0 | $280,760 | $280,760 |
| 2019 | $215,760 | $65,000 | $0 | $280,760 | $280,760 |
| 2018 | $187,610 | $65,000 | $0 | $252,610 | $252,610 |
| 2017 | $178,680 | $65,000 | $0 | $243,680 | $243,680 |
| 2016 | $178,680 | $65,000 | $0 | $243,680 | $243,680 |
| 2015 | $178,680 | $65,000 | $0 | $243,680 | $243,680 |
| 2014 | $148,900 | $65,000 | $0 | $213,900 | $213,900 |
| 2013 | $148,900 | $65,000 | $0 | $213,900 | $85,560 |
| 2012 | $160,200 | $65,000 | $0 | $0 | $0 |
| 2011 | $175,300 | $65,000 | $0 | $0 | $0 |
| 2010 | $175,300 | $65,000 | $0 | $0 | $0 |
| 2009 | $187,900 | $65,000 | $0 | $0 | $0 |
| 2008 | $187,900 | $65,000 | $0 | $0 | $0 |
| 2007 | $187,900 | $65,000 | $0 | $0 | $0 |
Deed and Sales History
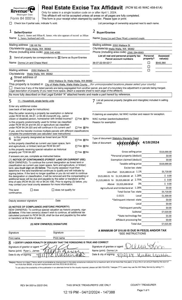
| 1 | 04/12/2024 | SWD | STATUTORY WARRANTY DEED | JAMES RYAN L & JILLIAN K | LIN DONNA & CHASE WARD | | | $520,000.00 | 147388 | 2024-01818 |
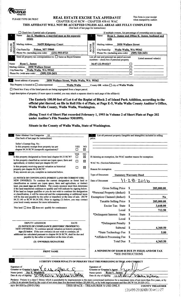
| 2 | 11/30/2016 | SWD | STATUTORY WARRANTY DEED | MADDERN JAY E | JAMES RYAN L & JILLIAN K | | | $285,000.00 | 131499 | 2016-09790 |
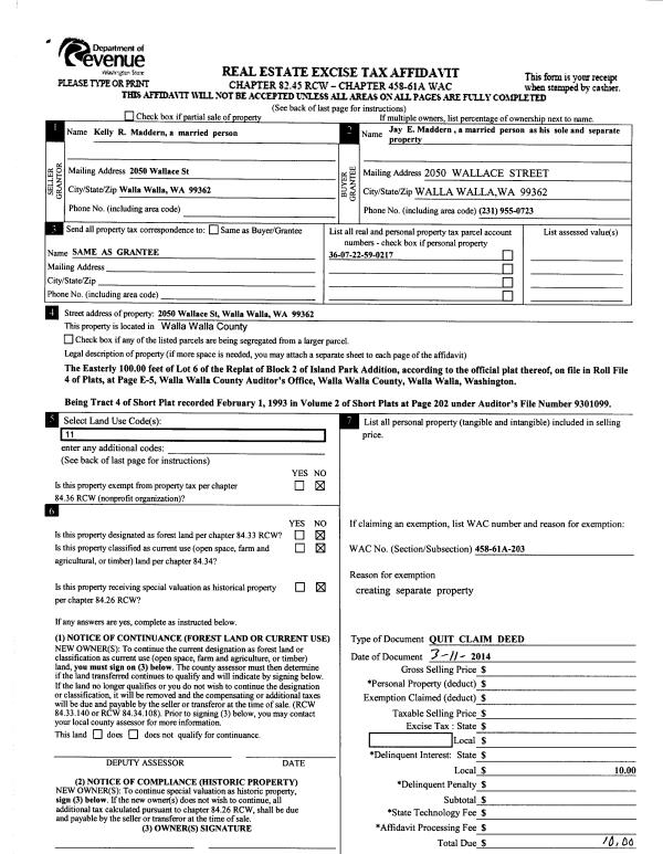
| 3 | 03/12/2014 | QCD | QUIT CLAIM DEED | MADDERN KELLY R | MADDERN JAY E | | | | 125562 | 2014-01706 |
| 4 | 03/12/2014 | SWD | STATUTORY WARRANTY DEED | BERGEVIN CLARO E | MADDERN JAY E | | | $243,900.00 | 125561 | 2014-01705 |
| 5 | 12/19/2008 | QCD | QUIT CLAIM DEED | BERGEVIN, CLARO E | BERGEVIN, CLARO E | | | | 116106 | 2008-12442 |
| 6 | 06/28/1994 | WARRANTY D | WARRANTY DEED | | | | | $179,900.00 | 81984 | 2209-407589 |
Payout Agreement
| No payout information available.. |