Property
Account |
| Property ID: | 33459 | Abbreviated Legal Description: | MELODY PARK LOT 18 BLK 2 |
| Parcel Number: | 360716530218 | Agent Code: | |
| Type: | Real | | |
| Tax Area: | 5 - OL-140 | Land Use Code | 11 |
| Open Space: | N | DFL | N |
| Historic Property: | N | Remodel Property: | N |
| Multi-Family Redevelopment: | N | | |
| Township: | 7 | Section: | 16 |
| Range: | 36 |
Location |
| Address: | 2056 LARK DR WA 99362 | Mapsco: | |
| Neighborhood: | A-Superior SFR | Map ID: | |
| Neighborhood CD: | 513211 |
Owner |
| Name: | BOSTWICK ANNA | Owner ID: | 70448 |
| Mailing Address: | 2056 LARK DR WALLA WALLA, WA 99362 | % Ownership: | 100.0000000000% |
| | | Exemptions: | |
Taxes and Assessment Details
Values
| (+) Improvement Homesite Value: | + | $0 | |
| (+) Improvement Non-Homesite Value: | + | $287,130 | |
| (+) Land Homesite Value: | + | $0 | |
| (+) Land Non-Homesite Value: | + | $43,310 | |
| (+) Curr Use (HS): | + | $0 | $0 |
| (+) Curr Use (NHS): | + | $0 | $0 |
| | | -------------------------- | |
| (=) Market Value: | = | $330,440 | |
| (–) Productivity Loss: | – | $0 | |
| | | -------------------------- | |
| (=) Subtotal: | = | $330,440 | |
| (+) Senior Appraised Value: | + | $0 | |
| (+) Non-Senior Appraised Value: | + | $330,440 | |
| | | -------------------------- | |
| (=) Total Appraised Value: | = | $330,440 | |
| (–) Senior Exemption Loss: | – | $0 | |
| (–) Exemption Loss: | – | $0 | |
| | | -------------------------- | |
| (=) Taxable Value: | = | $330,440 | |
Taxing Jurisdiction
| Owner: | BOSTWICK ANNA | | |
| % Ownership: | 100.0000000000% | | |
| Total Value: | $330,440 | | |
| Tax Area: | 5 - OL-140 |
| CERFD | CURRENT EXPENSE REFUND 010 | 0.0000000000 | $330,440 | $330,440 | $0.00 | | |
| CURREXP | CURRENT EXPENSE 010 | 1.0175366760 | $330,440 | $330,440 | $336.23 | | |
| HUMNSERV | HUMAN SERVICES 119 | 0.0250000000 | $330,440 | $330,440 | $8.26 | | |
| SLDREL | SOLDIERS RELIEF 121 | 0.0155990005 | $330,440 | $330,440 | $5.15 | | |
| EMERGSER | EMS 147 | 0.3792580840 | $330,440 | $330,440 | $125.32 | | |
| EMSRFD | EMS REFUND 147 | 0.0000000000 | $330,440 | $330,440 | $0.00 | | |
| PORTRFD | PORT REFUND 640 | 0.0000000000 | $330,440 | $330,440 | $0.00 | | |
| PORTWWGEN | PORT OF WW 640 | 0.2460186015 | $330,440 | $330,440 | $81.29 | | |
| SD140BOND | SD #140 BOND 764 | 0.8342371393 | $330,440 | $330,440 | $275.67 | | |
| SD140GEN | SD #140 GENERAL 760 | 2.0646500647 | $330,440 | $330,440 | $682.24 | | |
| ST2 | STATE SCHOOL PART 2 600 | 0.8131451643 | $330,440 | $330,440 | $268.70 | | |
| STATESCHL | STATE SCHOOL 600 | 1.5158548041 | $330,440 | $330,440 | $500.90 | | |
| STREFUND | STATE REFUND LEVY 603 | 0.0000000000 | $330,440 | $330,440 | $0.00 | | |
| CWWBOND | C OF WW BOND 643 | 0.2760494372 | $330,440 | $330,440 | $91.22 | | |
| CWWGEN | CITY OF WW 631 | 1.6100204973 | $330,440 | $330,440 | $532.02 | | |
| CWWRFD | CITY OF WALLA WALLA REFUND 631 | 0.0000000000 | $330,440 | $330,440 | $0.00 | | |
| | Total Tax Rate: | 8.7973694689 | | | | | |
| | | | | Taxes w/Current Exemptions: | $2,907.00 | | |
| | | | | Taxes w/o Exemptions: | $2,907.00 | | |
Improvement / Building
| Improvement #1: | RESIDENTIAL | State Code: | 11 | 960.0 sqft | Value: | $287,130 |
| Exterior Wall: | SIDING | Heating/Cooling: | WARM & COOLED AIR | | Number of Bathrooms: | 1 | Number of Bedrooms: | 3 | | Plumbing: | 6 | Roof Covering: | CLAY TILE |
|
| | Type | Description | Class CD | Sub Class CD | Year Built | Area |
| | MA | Main Area | 1 | 30 | 1959 | 960.0 |
| | SI1 | SITE IMPROVEMENT | 1 | 30 | 1959 | 1.5 |
| | BASE | BASEMENT | 1 | 30 | 1959 | 960.0 |
| | BPF | BASEMENT -PARTITIONED FINISH | 1 | 30 | 1959 | 480.0 |
| | SMP | SWIMMING POOL | 1 | 30 | 1959 | 1.0 |
| | RPS | PORCH W/STEPS,ROOF | 1 | 30 | 1959 | 40.0 |
| | SWP | Solid Wall Porch | 1 | 30 | 1959 | 319.0 |
Sketch
Property Image
Land
| 1 | RES 1 | Converted: Residential | 0.1591 | 6930.00 | 0.00 | 0.00 | 1.00 | $43,310 | $0 |
Roll Value History
| 2026 | N/A | N/A | N/A | N/A | N/A |
| 2025 | $311,320 | $69,300 | $0 | $380,620 | $380,620 |
| 2024 | $270,710 | $69,300 | $0 | $340,010 | $340,010 |
| 2023 | $287,130 | $43,310 | $0 | $330,440 | $330,440 |
| 2022 | $261,030 | $43,310 | $0 | $304,340 | $304,340 |
| 2021 | $226,980 | $43,310 | $0 | $270,290 | $270,290 |
| 2020 | $174,600 | $43,310 | $0 | $217,910 | $217,910 |
| 2019 | $174,600 | $43,310 | $0 | $217,910 | $217,910 |
| 2018 | $145,500 | $43,310 | $0 | $188,810 | $188,810 |
| 2017 | $154,680 | $27,700 | $0 | $182,380 | $182,380 |
| 2016 | $128,900 | $27,700 | $0 | $156,600 | $156,600 |
| 2015 | $128,900 | $27,700 | $0 | $156,600 | $156,600 |
| 2014 | $128,900 | $27,700 | $0 | $156,600 | $156,600 |
| 2013 | $128,900 | $27,700 | $0 | $156,600 | $156,600 |
| 2012 | $128,900 | $27,700 | $0 | $0 | $0 |
| 2011 | $128,900 | $27,700 | $0 | $0 | $0 |
| 2010 | $121,400 | $27,700 | $0 | $0 | $0 |
| 2009 | $138,000 | $27,700 | $0 | $0 | $0 |
| 2008 | $116,400 | $27,700 | $0 | $0 | $0 |
| 2007 | $116,400 | $27,700 | $0 | $0 | $0 |
Deed and Sales History
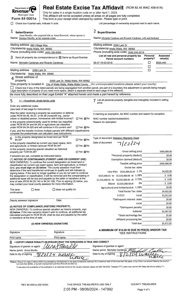
| 1 | 08/06/2024 | SWD | STATUTORY WARRANTY DEED | BOSTWICK ANNA | CARDENAS MICHELLE & RICARDO | | | $405,000.00 | 147992 | 2024-04323 |
| 2 | 10/13/2021 | SWD | STATUTORY WARRANTY DEED | HOLLAND HOWARD R | BOSTWICK ANNA | | | $315,000.00 | 142660 | 2021-12461 |
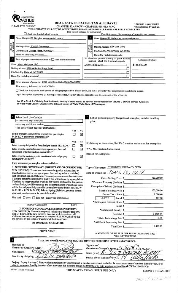
| 3 | 06/13/2014 | SWD | STATUTORY WARRANTY DEED | DOUGLAS MARGARET | HOLLAND HOWARD R | | | $163,000.00 | 126071 | 2014-04099 |
| 4 | 05/07/1973 | QCD | QUIT CLAIM DEED | | | | | $19,825.00 | 0 | 1889-102794 |
Payout Agreement
| No payout information available.. |