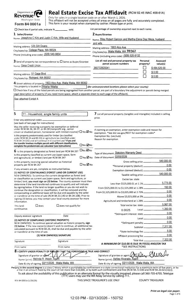
| 1 | 02/13/2026 | SWD | STATUTORY WARRANTY DEED | KIRK JOSEPHINE C & JUSTIN C | GANNON RILEY ROBERT & MARTHA ELENA DIAZ MEZA | | | $540,000.00 | 150752 | 2026-00888 |
| 2 | 07/06/2021 | SWD | STATUTORY WARRANTY DEED | LOUDERMILK MICHAEL DAVID & AHNALISIA R | KIRK JOSEPHINE C & JUSTIN C | | | $430,000.00 | 141979 | 2021-08179 |
| 3 | 06/15/2017 | SWD | STATUTORY WARRANTY DEED | COLEMAN GARY J & JENNIFER L | LOUDERMILK MICHAEL DAVID & AHNALISIA R | | | $279,900.00 | 132612 | 2017-04571 |
| 4 | 06/18/2015 | SWD | STATUTORY WARRANTY DEED | TORRISI CHRIS S | COLEMAN GARY J & JENNIFER L | | | $245,000.00 | 128191 | 2015-05134 |
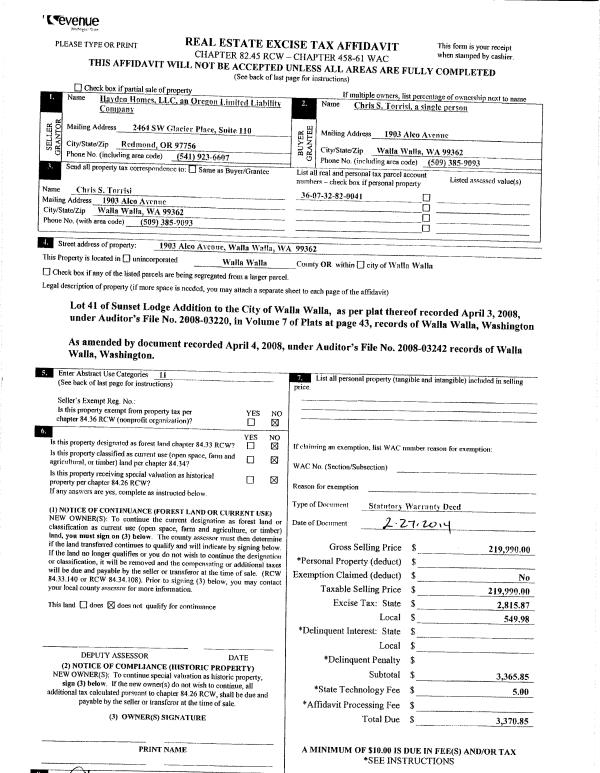
| 5 | 03/04/2014 | SWD | STATUTORY WARRANTY DEED | HAYDEN HOMES LLC | TORRISI CHRIS S | | | $219,990.00 | 125518 | 2014-01507 |
| 6 | 06/20/2013 | WARRANTY D | WARRANTY DEED | TE AMO RAPIDO LLC | HAYDEN HOMES LLC | 17-PARCELS | | $290,000.00 | 124154 | 2013-06199 |
|   | |
| 7 | 05/15/2012 | WARRANTY D | WARRANTY DEED | COLUMBIA BANK | TE AMO RAPIDO LLC | | | $750,000.00 | 121813 | 2012-03931 |
|   |
| 33426 | 1905 BERNARD ST
WA 99362 | SUNSET LODGE ADDITION LOT 3 |
| 33427 | 203 MARJORIE PL
WALLA WALLA, WA 99362 | SUNSET LODGE ADDITION LOT 4 |
| 33428 | 217 MARJORIE PL
WALLA WALLA, WA 99362 | SUNSET LODGE ADDITION LOT 7 |
| 33429 | 218 MARJORIE PL
WALLA WALLA, WA 99362 | SUNSET LODGE ADDITION LOT 8 |
| 33430 | 214 MARJORIE PL
WA 99362 | SUNSET LODGE ADDITION LOT 9 |
| 33431 | 1931 BERNARD ST
WA 99362 | SUNSET LODGE ADDITION LOT 13 |
| 33432 | 1914 BERNARD ST
WA 99362 | SUNSET LODGE ADDITION LOT 16 |
| 33433 | 1908 BERNARD ST
WA 99362 | SUNSET LODGE ADDITION LOT 17 |
| 33435 | 1905 STEVENS ST
WA 99362 | SUNSET LODGE ADDITION LOT 20 |
| 33436 | 1943 BERNARD ST
WA 99362 | SUNSET LODGE ADDITION LOT 25 |
| 33437 | 1949 BERNARD ST
WA 99362 | SUNSET LODGE ADDITION LOT 26 |
| 33438 | 1987 ALCO AVE
WALLA WALLA, WA 99362 | SUNSET LODGE ADDITION LOT 28 |
| 33439 | 1979 ALCO AVE
WA 99362 | SUNSET LODGE ADDITION LOT 29 |
| 33440 | 1973 ALCO AVE
WA 99362 | SUNSET LODGE ADDITION LOT 30 |
| 33441 | 1924 STEVENS ST
WA 99362 | SUNSET LODGE ADDITION LOT 32 |
| 33442 | 1939 ALCO AVE
WA 99362 | SUNSET LODGE ADDITION LOT 34 |
| 33443 | 1923 ALCO AVE
WA 99362 | SUNSET LODGE ADDITION LOT 38 |
| 33445 | 1915 ALCO AVE
WALLA WALLA, WA 99362 | SUNSET LODGE ADDITION LOT 42 |
| 33446 | 1906 ALCO AVE
WALLA WALLA, WA 99362 | SUNSET LODGE ADDITION LOT 43 |
| 33447 | 1910 ALCO AVE
WA 99362 | SUNSET LODGE ADDITION LOT 44 |
| 33448 | 1916 ALCO AVE
WALLA WALLA, WA 99362 | SUNSET LODGE ADDITION LOT 45 |
| 33449 | 1920 ALCO AVE
WA 99362 | SUNSET LODGE ADDITION LOT 46 |
| 33450 | 1926 ALCO AVE
WA 99362 | SUNSET LODGE ADDITION LOT 47 |
| 33451 | 1938 ALCO AVE
WA 99362 | SUNSET LODGE ADDITION LOT 49 |
| 33452 | 1946 ALCO AVE
WA 99362 | SUNSET LODGE ADDITION LOT 50 |
| 33453 | 1958 ALCO AVE
WA 99362 | SUNSET LODGE ADDITION LOT 52 |
| 33454 | 1962 ALCO AVE
WA 99362 | SUNSET LODGE ADDITION LOT 53 |
| 33455 | 1974 ALCO AVE
WA 99362 | SUNSET LODGE ADDITION LOT 54 |
| 33456 | 1978 ALCO AVE
WA 99362 | SUNSET LODGE ADDITION LOT 55 |
| 33457 | 1986 ALCO AVE
WA 99362 | SUNSET LODGE ADDITION LOT 56 |
| 33823 | 204 MARJORIE PL
WA 99362 | SUNSET LODGE ADDITION LOT 11 |
| 33824 | 206 MARJORIE PL
WALLA WALLA, WA 99362 | SUNSET LODGE ADDITION LOT 10 |
| 33928 | 211 MARJORIE PL
WA 99362 | SUNSET LODGE ADDITION LOT 6 |
| 33997 | 207 MARJORIE PL
WA 99362 | SUNSET LODGE ADDITION LOT 5 |
| 34811 | 1920 BERNARD ST
WA 99362 | SUNSET LODGE ADDITION LOT 15 |
| 34839 | 1932 ALCO AVE
WA 99362 | SUNSET LODGE ADDITION LOT 48 |
| 35021 | 1925 BERNARD ST
WA 99362 | SUNSET LODGE ADDITION LOT 12 |
| 35150 | 1926 BERNARD ST
WA 99362 | SUNSET LODGE ADDITION LOT 14 |
| 35156 | 1911 STEVENS ST
WA 99362 | SUNSET LODGE ADDITION LOT 21 |
| 35167 | 1952 ALCO AVE
WA 99362 | SUNSET LODGE ADDITION LOT 51 |
| 35341 | 1957 BERNARD ST
WA 99362 | SUNSET LODGE ADDITION LOT 27 |
| 35345 | 1961 ALCO AVE
WA 99362 | SUNSET LODGE ADDITION LOT 31 |
| 35550 | 1902 BERNARD ST
WA 99362 | SUNSET LODGE ADDITION LOT 18 |
| 35627 | 1923 STEVENS ST
WA 99362 | SUNSET LODGE ADDITION LOT 23 |
| 35964 | 1917 STEVENS ST
WA 99362 | SUNSET LODGE ADDITION LOT 22 |
| 35970 | 1966 BERNARD ST
WA 99362 | SUNSET LODGE ADDITION LOT 33 |
| 36169 | 1929 STEVENS ST
WA 99362 | SUNSET LODGE ADDITION LOT 24 |
|
| 8 | 12/28/2010 | WARRANTY D | WARRANTY DEED | MAJERUS, DOUGLAS | COLUMBIA BANK | | | $1,142,000.00 | 119526 | 2010-10769 |
|   |
| 33426 | 1905 BERNARD ST
WA 99362 | SUNSET LODGE ADDITION LOT 3 |
| 33427 | 203 MARJORIE PL
WALLA WALLA, WA 99362 | SUNSET LODGE ADDITION LOT 4 |
| 33428 | 217 MARJORIE PL
WALLA WALLA, WA 99362 | SUNSET LODGE ADDITION LOT 7 |
| 33429 | 218 MARJORIE PL
WALLA WALLA, WA 99362 | SUNSET LODGE ADDITION LOT 8 |
| 33430 | 214 MARJORIE PL
WA 99362 | SUNSET LODGE ADDITION LOT 9 |
| 33431 | 1931 BERNARD ST
WA 99362 | SUNSET LODGE ADDITION LOT 13 |
| 33432 | 1914 BERNARD ST
WA 99362 | SUNSET LODGE ADDITION LOT 16 |
| 33433 | 1908 BERNARD ST
WA 99362 | SUNSET LODGE ADDITION LOT 17 |
| 33435 | 1905 STEVENS ST
WA 99362 | SUNSET LODGE ADDITION LOT 20 |
| 33436 | 1943 BERNARD ST
WA 99362 | SUNSET LODGE ADDITION LOT 25 |
| 33437 | 1949 BERNARD ST
WA 99362 | SUNSET LODGE ADDITION LOT 26 |
| 33438 | 1987 ALCO AVE
WALLA WALLA, WA 99362 | SUNSET LODGE ADDITION LOT 28 |
| 33439 | 1979 ALCO AVE
WA 99362 | SUNSET LODGE ADDITION LOT 29 |
| 33440 | 1973 ALCO AVE
WA 99362 | SUNSET LODGE ADDITION LOT 30 |
| 33441 | 1924 STEVENS ST
WA 99362 | SUNSET LODGE ADDITION LOT 32 |
| 33442 | 1939 ALCO AVE
WA 99362 | SUNSET LODGE ADDITION LOT 34 |
| 33443 | 1923 ALCO AVE
WA 99362 | SUNSET LODGE ADDITION LOT 38 |
| 33445 | 1915 ALCO AVE
WALLA WALLA, WA 99362 | SUNSET LODGE ADDITION LOT 42 |
| 33446 | 1906 ALCO AVE
WALLA WALLA, WA 99362 | SUNSET LODGE ADDITION LOT 43 |
| 33447 | 1910 ALCO AVE
WA 99362 | SUNSET LODGE ADDITION LOT 44 |
| 33448 | 1916 ALCO AVE
WALLA WALLA, WA 99362 | SUNSET LODGE ADDITION LOT 45 |
| 33449 | 1920 ALCO AVE
WA 99362 | SUNSET LODGE ADDITION LOT 46 |
| 33450 | 1926 ALCO AVE
WA 99362 | SUNSET LODGE ADDITION LOT 47 |
| 33451 | 1938 ALCO AVE
WA 99362 | SUNSET LODGE ADDITION LOT 49 |
| 33452 | 1946 ALCO AVE
WA 99362 | SUNSET LODGE ADDITION LOT 50 |
| 33453 | 1958 ALCO AVE
WA 99362 | SUNSET LODGE ADDITION LOT 52 |
| 33454 | 1962 ALCO AVE
WA 99362 | SUNSET LODGE ADDITION LOT 53 |
| 33455 | 1974 ALCO AVE
WA 99362 | SUNSET LODGE ADDITION LOT 54 |
| 33456 | 1978 ALCO AVE
WA 99362 | SUNSET LODGE ADDITION LOT 55 |
| 33457 | 1986 ALCO AVE
WA 99362 | SUNSET LODGE ADDITION LOT 56 |
| 33823 | 204 MARJORIE PL
WA 99362 | SUNSET LODGE ADDITION LOT 11 |
| 33824 | 206 MARJORIE PL
WALLA WALLA, WA 99362 | SUNSET LODGE ADDITION LOT 10 |
| 33928 | 211 MARJORIE PL
WA 99362 | SUNSET LODGE ADDITION LOT 6 |
| 33997 | 207 MARJORIE PL
WA 99362 | SUNSET LODGE ADDITION LOT 5 |
| 34811 | 1920 BERNARD ST
WA 99362 | SUNSET LODGE ADDITION LOT 15 |
| 34839 | 1932 ALCO AVE
WA 99362 | SUNSET LODGE ADDITION LOT 48 |
| 35021 | 1925 BERNARD ST
WA 99362 | SUNSET LODGE ADDITION LOT 12 |
| 35150 | 1926 BERNARD ST
WA 99362 | SUNSET LODGE ADDITION LOT 14 |
| 35156 | 1911 STEVENS ST
WA 99362 | SUNSET LODGE ADDITION LOT 21 |
| 35167 | 1952 ALCO AVE
WA 99362 | SUNSET LODGE ADDITION LOT 51 |
| 35341 | 1957 BERNARD ST
WA 99362 | SUNSET LODGE ADDITION LOT 27 |
| 35345 | 1961 ALCO AVE
WA 99362 | SUNSET LODGE ADDITION LOT 31 |
| 35550 | 1902 BERNARD ST
WA 99362 | SUNSET LODGE ADDITION LOT 18 |
| 35627 | 1923 STEVENS ST
WA 99362 | SUNSET LODGE ADDITION LOT 23 |
| 35964 | 1917 STEVENS ST
WA 99362 | SUNSET LODGE ADDITION LOT 22 |
| 35970 | 1966 BERNARD ST
WA 99362 | SUNSET LODGE ADDITION LOT 33 |
| 36169 | 1929 STEVENS ST
WA 99362 | SUNSET LODGE ADDITION LOT 24 |
|