Property
Account |
| Property ID: | 33405 | Abbreviated Legal Description: | LARCH PLACE LT8 |
| Parcel Number: | 350725690008 | Agent Code: | |
| Type: | Real | | |
| Tax Area: | 77 - CP-250-F | Land Use Code | 11 |
| Open Space: | N | DFL | N |
| Historic Property: | N | Remodel Property: | N |
| Multi-Family Redevelopment: | N | | |
| Township: | 7 | Section: | 25 |
| Range: | 35 |
Location |
| Address: | 254 NE FLOWERS LN WA 99324 | Mapsco: | |
| Neighborhood: | A SFR | Map ID: | |
| Neighborhood CD: | 113011 |
Owner |
| Name: | BRUNS GENE L & JILL L | Owner ID: | 58853 |
| Mailing Address: | 329 COUNTY RD 448 WALLA WALLA, WA 99362 | % Ownership: | 100.0000000000% |
| | | Exemptions: | |
Taxes and Assessment Details
Property Tax Information as of
02/21/2026
Click on "Statement Details" to expand or collapse a tax statement.
* Please enter a valid date ** Please enter a valid date *
Statement Details |
| | TOTAL: | $0.00 | $0.00 | $0.00 | $0.00 | $0.00 | $0.00 |
|
| | $0.00 | $0.00 | $0.00 | $0.00 | $0.00 | $0.00 |
Values
| (+) Improvement Homesite Value: | + | $0 | |
| (+) Improvement Non-Homesite Value: | + | $285,770 | |
| (+) Land Homesite Value: | + | $0 | |
| (+) Land Non-Homesite Value: | + | $125,000 | |
| (+) Curr Use (HS): | + | $0 | $0 |
| (+) Curr Use (NHS): | + | $0 | $0 |
| | | -------------------------- | |
| (=) Market Value: | = | $410,770 | |
| (–) Productivity Loss: | – | $0 | |
| | | -------------------------- | |
| (=) Subtotal: | = | $410,770 | |
| (+) Senior Appraised Value: | + | $0 | |
| (+) Non-Senior Appraised Value: | + | $410,770 | |
| | | -------------------------- | |
| (=) Total Appraised Value: | = | $410,770 | |
| (–) Senior Exemption Loss: | – | $0 | |
| (–) Exemption Loss: | – | $0 | |
| | | -------------------------- | |
| (=) Taxable Value: | = | $410,770 | |
Taxing Jurisdiction
| Owner: | BRUNS GENE L & JILL L | | |
| % Ownership: | 100.0000000000% | | |
| Total Value: | $410,770 | | |
| Tax Area: | 77 - CP-250-F |
| CERFD | CURRENT EXPENSE REFUND 010 | 0.0000000000 | $410,770 | $410,770 | $0.00 | | |
| CURREXP | CURRENT EXPENSE 010 | 0.9851088983 | $410,770 | $410,770 | $404.65 | | |
| HUMNSERV | HUMAN SERVICES 119 | 0.0250000000 | $410,770 | $410,770 | $10.27 | | |
| SLDREL | SOLDIERS RELIEF 121 | 0.0155990000 | $410,770 | $410,770 | $6.41 | | |
| COLLPLBOND | C OF CP BOND 644 | 0.3846009312 | $410,770 | $410,770 | $157.98 | | |
| COLLPLGEN | CITY OF CP 632 | 1.4193088888 | $410,770 | $410,770 | $583.01 | | |
| EMERGSER | EMS 147 | 0.3676811629 | $410,770 | $410,770 | $151.03 | | |
| EMSRFD | EMS REFUND 147 | 0.0000000000 | $410,770 | $410,770 | $0.00 | | |
| RLBRFD | RURAL LIBRARY REFUND 623 | 0.0000000000 | $410,770 | $0 | $0.00 | | |
| RURALLIB | RURAL LIBRARY 623 | 0.0000000000 | $410,770 | $0 | $0.00 | | |
| PORTRFD | PORT REFUND 640 | 0.0000000000 | $410,770 | $410,770 | $0.00 | | |
| PORTWWGEN | PORT OF WW 640 | 0.2344301070 | $410,770 | $410,770 | $96.30 | | |
| SD250BOND | SD #250 BOND 773 | 1.3740031235 | $410,770 | $410,770 | $564.40 | | |
| SD250GEN | SD #250 GENERAL 770 | 2.4999999988 | $410,770 | $410,770 | $1,026.93 | | |
| ST2 | STATE SCHOOL PART 2 600 | 0.8853714103 | $410,770 | $410,770 | $363.68 | | |
| STATESCHL | STATE SCHOOL 600 | 1.6424571473 | $410,770 | $410,770 | $674.67 | | |
| STREFUND | STATE REFUND LEVY 603 | 0.0000000000 | $410,770 | $410,770 | $0.00 | | |
| | Total Tax Rate: | 9.8335606681 | | | | | |
| | | | | Taxes w/Current Exemptions: | $4,039.33 | | |
| | | | | Taxes w/o Exemptions: | $4,039.33 | | |
Improvement / Building
| Improvement #1: | RESIDENTIAL | State Code: | 11 | 1493.0 sqft | Value: | $285,770 |
| Exterior Wall: | PLYWOOD | Heating/Cooling: | WARM & COOLED AIR | | Number of Bathrooms: | 2 | Number of Bedrooms: | 3 | | Plumbing: | 9 | Roof Covering: | COMP SHINGLE |
|
| | Type | Description | Class CD | Sub Class CD | Year Built | Area |
| | MA | Main Area | 1 | 30 | 2003 | 1493.0 |
| | SI1 | SITE IMPROVEMENT | 1 | 30 | 2003 | 2.0 |
| | ATG | Attached Garage | 1 | 30 | 2003 | 400.0 |
| | RPC | OPEN PORCH W/ROOF , CEILED | 1 | 30 | 2003 | 25.0 |
| | OSP | Open | 1 | 30 | 2003 | 408.0 |
| | GFP | GAS FIREPLACE | 1 | 30 | 2003 | 1.0 |
Sketch
Property Image
Land
| 1 | RES 1 | Converted: Residential | 0.1902 | 8285.00 | 0.00 | 0.00 | 1.00 | $125,000 | $0 |
Roll Value History
| 2026 | N/A | N/A | N/A | N/A | N/A |
| 2025 | $285,770 | $125,000 | $0 | $410,770 | $410,770 |
| 2024 | $317,520 | $60,000 | $0 | $377,520 | $377,520 |
| 2023 | $317,520 | $60,000 | $0 | $377,520 | $377,520 |
| 2022 | $317,520 | $60,000 | $0 | $377,520 | $377,520 |
| 2021 | $211,680 | $60,000 | $0 | $271,680 | $271,680 |
| 2020 | $151,200 | $60,000 | $0 | $211,200 | $211,200 |
| 2019 | $156,200 | $55,000 | $0 | $211,200 | $211,200 |
| 2018 | $135,830 | $55,000 | $0 | $190,830 | $190,830 |
| 2017 | $129,360 | $55,000 | $0 | $184,360 | $184,360 |
| 2016 | $117,600 | $55,000 | $0 | $172,600 | $172,600 |
| 2015 | $112,000 | $55,000 | $0 | $167,000 | $167,000 |
| 2014 | $112,000 | $55,000 | $0 | $167,000 | $167,000 |
| 2013 | $112,000 | $55,000 | $0 | $167,000 | $167,000 |
| 2012 | $112,000 | $55,000 | $0 | $0 | $0 |
| 2011 | $102,500 | $55,000 | $0 | $0 | $0 |
| 2010 | $120,000 | $55,000 | $0 | $0 | $0 |
| 2009 | $163,500 | $55,000 | $0 | $0 | $0 |
| 2008 | $115,000 | $30,000 | $0 | $0 | $0 |
| 2007 | $115,000 | $30,000 | $0 | $0 | $0 |
Deed and Sales History
| 1 | 08/23/2016 | SWD | STATUTORY WARRANTY DEED | KOPERSKI-STEVENS DONNA M | BRUNS GENE L & JILL L | | | $200,000.00 | 130875 | 2016-06768 |
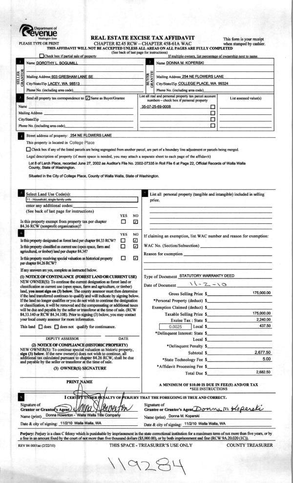
| 2 | 11/04/2010 | WARRANTY D | WARRANTY DEED | BOGUMILL, DOROTHY | KOPERSKI, DONNA M | | | $175,000.00 | 119284 | 2010-08967 |
| 3 | 08/26/2004 | QCD | QUIT CLAIM DEED | BOGUMILL, JOSEPH S & DOROTHY L | BOGUMILL, JOSEPH S | | | | 105586 | 2004-09881 |
| 4 | 06/09/2003 | WARRANTY D | WARRANTY DEED | ROFF HOMES INC | BOGUMILL, JOSEPH S | | | $149,230.00 | 102293 | 2003-08510 |
| 5 | 10/15/2002 | WARRANTY D | WARRANTY DEED | BOTIMER, DOUGLAS & GLORIA | ROFF HOMES INC | | | $180,633.00 | 100612 | 2002-11632 |
|   | |
| 6 | 07/09/2002 | WARRANTY D | WARRANTY DEED | | | | | | 99901 | 2002-0007795 |
Payout Agreement
| No payout information available.. |