Property
Account |
| Property ID: | 33374 | Abbreviated Legal Description: | GREEN PARK LOT 4 BLK 3 |
| Parcel Number: | 360720510310 | Agent Code: | |
| Type: | Real | | |
| Tax Area: | 1 - OL-140-F | Land Use Code | 11 |
| Open Space: | N | DFL | N |
| Historic Property: | N | Remodel Property: | N |
| Multi-Family Redevelopment: | N | | |
| Township: | 7 | Section: | 20 |
| Range: | 36 |
Location |
| Address: | 826 ALVARADO TER WALLA WALLA, WA 99362 | Mapsco: | |
| Neighborhood: | G-SFR | Map ID: | |
| Neighborhood CD: | 514011 |
Owner |
| Name: | ESPINOZA BARBARA M | Owner ID: | 73090 |
| Mailing Address: | 4617 140TH AVE NE BELLEVUE, WA 98005 | % Ownership: | 100.0000000000% |
| | | Exemptions: | |
Taxes and Assessment Details
Values
| (+) Improvement Homesite Value: | + | $0 | |
| (+) Improvement Non-Homesite Value: | + | $185,770 | |
| (+) Land Homesite Value: | + | $0 | |
| (+) Land Non-Homesite Value: | + | $69,380 | |
| (+) Curr Use (HS): | + | $0 | $0 |
| (+) Curr Use (NHS): | + | $0 | $0 |
| | | -------------------------- | |
| (=) Market Value: | = | $255,150 | |
| (–) Productivity Loss: | – | $0 | |
| | | -------------------------- | |
| (=) Subtotal: | = | $255,150 | |
| (+) Senior Appraised Value: | + | $0 | |
| (+) Non-Senior Appraised Value: | + | $255,150 | |
| | | -------------------------- | |
| (=) Total Appraised Value: | = | $255,150 | |
| (–) Senior Exemption Loss: | – | $0 | |
| (–) Exemption Loss: | – | $0 | |
| | | -------------------------- | |
| (=) Taxable Value: | = | $255,150 | |
Taxing Jurisdiction
| Owner: | ESPINOZA BARBARA M | | |
| % Ownership: | 100.0000000000% | | |
| Total Value: | $255,150 | | |
| Tax Area: | 1 - OL-140-F |
| CERFD | CURRENT EXPENSE REFUND 010 | 0.0000000000 | $255,150 | $255,150 | $0.00 | | |
| CURREXP | CURRENT EXPENSE 010 | 1.0175366760 | $255,150 | $255,150 | $259.62 | | |
| HUMNSERV | HUMAN SERVICES 119 | 0.0250000000 | $255,150 | $255,150 | $6.38 | | |
| SLDREL | SOLDIERS RELIEF 121 | 0.0155990005 | $255,150 | $255,150 | $3.98 | | |
| EMERGSER | EMS 147 | 0.3792580840 | $255,150 | $255,150 | $96.77 | | |
| EMSRFD | EMS REFUND 147 | 0.0000000000 | $255,150 | $255,150 | $0.00 | | |
| PORTRFD | PORT REFUND 640 | 0.0000000000 | $255,150 | $255,150 | $0.00 | | |
| PORTWWGEN | PORT OF WW 640 | 0.2460186015 | $255,150 | $255,150 | $62.77 | | |
| SD140BOND | SD #140 BOND 764 | 0.8342371393 | $255,150 | $255,150 | $212.86 | | |
| SD140GEN | SD #140 GENERAL 760 | 2.0646500647 | $255,150 | $255,150 | $526.80 | | |
| ST2 | STATE SCHOOL PART 2 600 | 0.8131451643 | $255,150 | $255,150 | $207.47 | | |
| STATESCHL | STATE SCHOOL 600 | 1.5158548041 | $255,150 | $255,150 | $386.77 | | |
| STREFUND | STATE REFUND LEVY 603 | 0.0000000000 | $255,150 | $255,150 | $0.00 | | |
| CWWBOND | C OF WW BOND 643 | 0.2760494372 | $255,150 | $255,150 | $70.43 | | |
| CWWGEN | CITY OF WW 631 | 1.6100204973 | $255,150 | $255,150 | $410.80 | | |
| CWWRFD | CITY OF WALLA WALLA REFUND 631 | 0.0000000000 | $255,150 | $255,150 | $0.00 | | |
| | Total Tax Rate: | 8.7973694689 | | | | | |
| | | | | Taxes w/Current Exemptions: | $2,244.65 | | |
| | | | | Taxes w/o Exemptions: | $2,244.65 | | |
Improvement / Building
| Improvement #1: | RESIDENTIAL | State Code: | 11 | 1111.0 sqft | Value: | $185,770 |
| Exterior Wall: | SIDING | Heating/Cooling: | FORCED AIR | | Number of Bathrooms: | 2 | Number of Bedrooms: | 2 | | Plumbing: | 9 | Roof Covering: | COMP SHINGLE |
|
| | Type | Description | Class CD | Sub Class CD | Year Built | Area |
| | MA | Main Area | 4 | 30 | 1936 | 1111.0 |
| | UPFL | Upper Floor (included in main area) | 4 | 30 | 1936 | 400.0 |
| | SI1 | SITE IMPROVEMENT | 4 | 30 | 1936 | 1.0 |
| | BASE | BASEMENT | 4 | 30 | 1936 | 711.0 |
| | DTG | Detached Garage | 4 | 30 | 1936 | 400.0 |
| | OPS | OPEN PORCH W/STEPS | 4 | 30 | 1936 | 49.0 |
Sketch
Property Image
Land
| 1 | RES 1 | Converted: Residential | 0.2197 | 9570.00 | 0.00 | 0.00 | 1.00 | $69,380 | $0 |
Roll Value History
| 2026 | N/A | N/A | N/A | N/A | N/A |
| 2025 | $250,180 | $105,270 | $0 | $355,450 | $355,450 |
| 2024 | $250,180 | $105,270 | $0 | $355,450 | $355,450 |
| 2023 | $185,770 | $69,380 | $0 | $255,150 | $255,150 |
| 2022 | $185,770 | $69,380 | $0 | $255,150 | $255,150 |
| 2021 | $168,880 | $69,380 | $0 | $238,260 | $238,260 |
| 2020 | $135,100 | $69,380 | $0 | $204,480 | $204,480 |
| 2019 | $135,100 | $69,380 | $0 | $204,480 | $204,480 |
| 2018 | $122,820 | $69,380 | $0 | $192,200 | $192,200 |
| 2017 | $99,920 | $43,100 | $0 | $143,020 | $143,020 |
| 2016 | $76,860 | $43,100 | $0 | $119,960 | $119,960 |
| 2015 | $73,200 | $43,100 | $0 | $116,300 | $116,300 |
| 2014 | $73,200 | $43,100 | $0 | $116,300 | $116,300 |
| 2013 | $73,200 | $43,100 | $0 | $116,300 | $116,300 |
| 2012 | $73,200 | $43,100 | $0 | $0 | $0 |
| 2011 | $73,200 | $43,100 | $0 | $0 | $0 |
| 2010 | $67,700 | $43,100 | $0 | $0 | $0 |
| 2009 | $80,000 | $43,100 | $0 | $0 | $0 |
| 2008 | $74,100 | $43,100 | $0 | $0 | $0 |
| 2007 | $74,100 | $43,100 | $0 | $0 | $0 |
Deed and Sales History
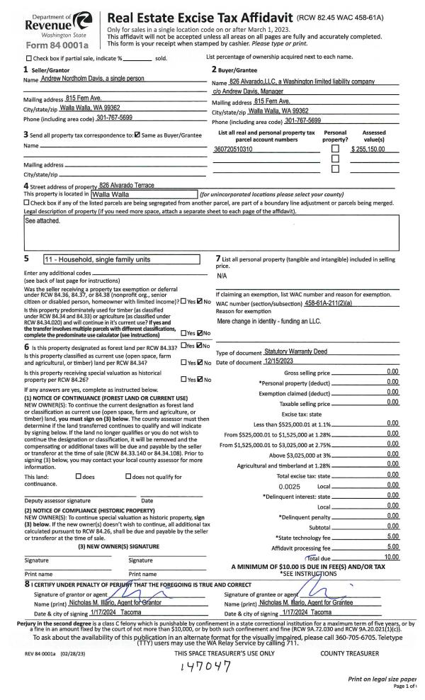
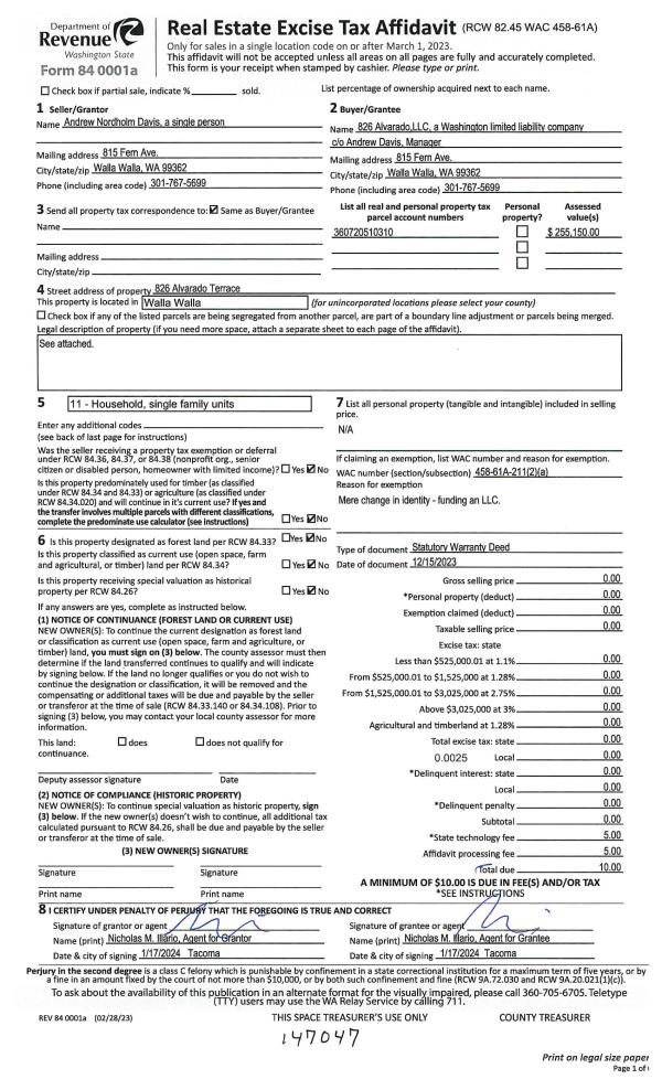
| 1 | 01/22/2024 | WARRANTY D | WARRANTY DEED | DAVIS ANDREW NORDHOLM | 826 ALVARADO LLC | | | | 147047 | 2024-00337 |
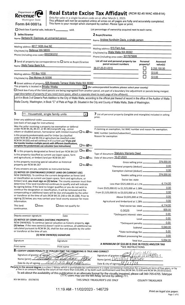
| 2 | 11/02/2023 | SWD | STATUTORY WARRANTY DEED | ESPINOZA BARBARA M | DAVIS ANDREW NORDHOLM | | | $374,000.00 | 146729 | 2023-06425 |
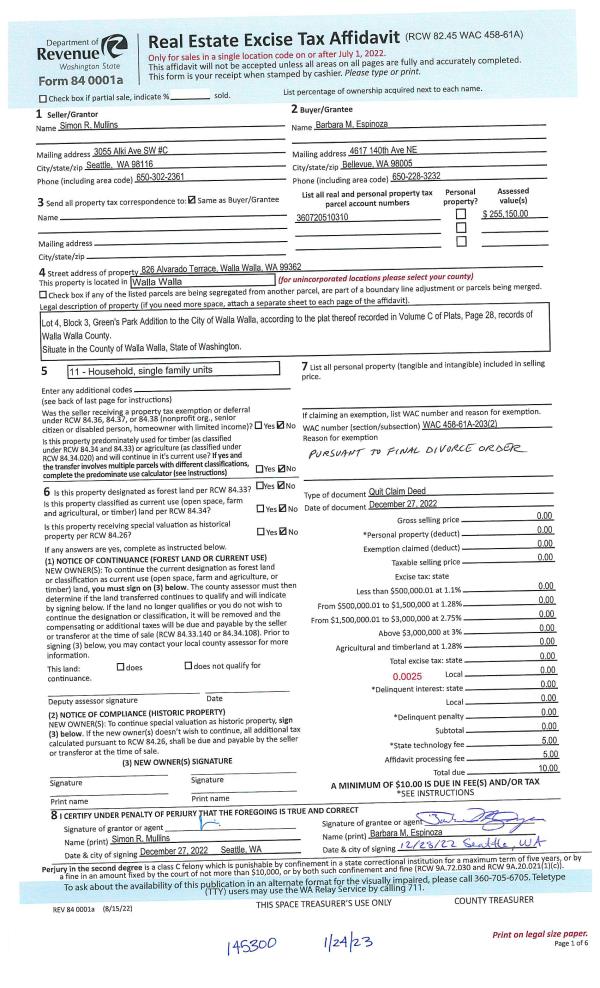
| 3 | 01/24/2023 | QCD | QUIT CLAIM DEED | MULLINS SIMON & BARBARA ESPINOZA | ESPINOZA BARBARA M | | | $0.00 | 145300 | 2023-00359 |
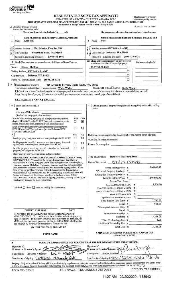
| 4 | 02/20/2020 | SWD | STATUTORY WARRANTY DEED | ROBTOY ZACHARY N & LISA M | MULLINS SIMON & BARBARA ESPINOZA | | | $246,000.00 | 138640 | 2020-01574 |
| 5 | 12/01/2017 | SWD | STATUTORY WARRANTY DEED | CRUMPACKER BRENDA M | ROBTOY ZACHARY N & LISA M | | | $197,500.00 | 133726 | 2017-09644 |
| 6 | 10/01/1996 | WARRANTY D | WARRANTY DEED | | | | | $76,500.00 | 86956 | 2459-609937 |
Payout Agreement
| No payout information available.. |