Property
Account |
| Property ID: | 33351 | Abbreviated Legal Description: | ENNIS ANNEX TAX 9 LOT 3 BLK 8 |
| Parcel Number: | 360721550819 | Agent Code: | |
| Type: | Real | | |
| Tax Area: | 1 - OL-140-F | Land Use Code | 11 |
| Open Space: | N | DFL | N |
| Historic Property: | N | Remodel Property: | N |
| Multi-Family Redevelopment: | N | | |
| Township: | 7 | Section: | 21 |
| Range: | 36 |
Location |
| Address: | 1117 BOYER AVE WA 99362 | Mapsco: | |
| Neighborhood: | A-SFR | Map ID: | |
| Neighborhood CD: | 513011 |
Owner |
| Name: | CARVALHO EDWARD P | Owner ID: | 51957 |
| Mailing Address: | 1117 BOYER AVE WALLA WALLA, WA 99362 | % Ownership: | 100.0000000000% |
| | | Exemptions: | |
Taxes and Assessment Details
Property Tax Information as of
02/21/2026
Click on "Statement Details" to expand or collapse a tax statement.
* Please enter a valid date ** Please enter a valid date *
Statement Details |
| | TOTAL: | $0.00 | $0.00 | $0.00 | $0.00 | $0.00 | $0.00 |
|
| | $0.00 | $0.00 | $0.00 | $0.00 | $0.00 | $0.00 |
Values
| (+) Improvement Homesite Value: | + | $0 | |
| (+) Improvement Non-Homesite Value: | + | $368,320 | |
| (+) Land Homesite Value: | + | $0 | |
| (+) Land Non-Homesite Value: | + | $51,500 | |
| (+) Curr Use (HS): | + | $0 | $0 |
| (+) Curr Use (NHS): | + | $0 | $0 |
| | | -------------------------- | |
| (=) Market Value: | = | $419,820 | |
| (–) Productivity Loss: | – | $0 | |
| | | -------------------------- | |
| (=) Subtotal: | = | $419,820 | |
| (+) Senior Appraised Value: | + | $0 | |
| (+) Non-Senior Appraised Value: | + | $419,820 | |
| | | -------------------------- | |
| (=) Total Appraised Value: | = | $419,820 | |
| (–) Senior Exemption Loss: | – | $0 | |
| (–) Exemption Loss: | – | $0 | |
| | | -------------------------- | |
| (=) Taxable Value: | = | $419,820 | |
Taxing Jurisdiction
| Owner: | CARVALHO EDWARD P | | |
| % Ownership: | 100.0000000000% | | |
| Total Value: | $419,820 | | |
| Tax Area: | 1 - OL-140-F |
| CERFD | CURRENT EXPENSE REFUND 010 | 0.0000000000 | $419,820 | $419,820 | $0.00 | | |
| CURREXP | CURRENT EXPENSE 010 | 1.0175366760 | $419,820 | $419,820 | $427.18 | | |
| HUMNSERV | HUMAN SERVICES 119 | 0.0250000000 | $419,820 | $419,820 | $10.50 | | |
| SLDREL | SOLDIERS RELIEF 121 | 0.0155990005 | $419,820 | $419,820 | $6.55 | | |
| EMERGSER | EMS 147 | 0.3792580840 | $419,820 | $419,820 | $159.22 | | |
| EMSRFD | EMS REFUND 147 | 0.0000000000 | $419,820 | $419,820 | $0.00 | | |
| PORTRFD | PORT REFUND 640 | 0.0000000000 | $419,820 | $419,820 | $0.00 | | |
| PORTWWGEN | PORT OF WW 640 | 0.2460186015 | $419,820 | $419,820 | $103.28 | | |
| SD140BOND | SD #140 BOND 764 | 0.8342371393 | $419,820 | $419,820 | $350.23 | | |
| SD140GEN | SD #140 GENERAL 760 | 2.0646500647 | $419,820 | $419,820 | $866.78 | | |
| ST2 | STATE SCHOOL PART 2 600 | 0.8131451643 | $419,820 | $419,820 | $341.37 | | |
| STATESCHL | STATE SCHOOL 600 | 1.5158548041 | $419,820 | $419,820 | $636.39 | | |
| STREFUND | STATE REFUND LEVY 603 | 0.0000000000 | $419,820 | $419,820 | $0.00 | | |
| CWWBOND | C OF WW BOND 643 | 0.2760494372 | $419,820 | $419,820 | $115.89 | | |
| CWWGEN | CITY OF WW 631 | 1.6100204973 | $419,820 | $419,820 | $675.92 | | |
| CWWRFD | CITY OF WALLA WALLA REFUND 631 | 0.0000000000 | $419,820 | $419,820 | $0.00 | | |
| | Total Tax Rate: | 8.7973694689 | | | | | |
| | | | | Taxes w/Current Exemptions: | $3,693.31 | | |
| | | | | Taxes w/o Exemptions: | $3,693.31 | | |
Improvement / Building
| Improvement #1: | RESIDENTIAL | State Code: | 11 | 2205.0 sqft | Value: | $368,320 |
| Exterior Wall: | PLYWOOD | Heating/Cooling: | WARM & COOLED AIR | | Number of Bathrooms: | 2 | Number of Bedrooms: | 5 | | Plumbing: | 9 | Roof Covering: | COMP SHINGLE |
|
| | Type | Description | Class CD | Sub Class CD | Year Built | Area |
| | MA | Main Area | 4 | 30 | 1949 | 2205.0 |
| | SI1 | SITE IMPROVEMENT | 4 | 30 | 0 | 1.5 |
| | RPS | PORCH W/STEPS,ROOF | 4 | 30 | 1949 | 96.0 |
| | UPFL | Upper Floor (included in main area) | 4 | 30 | 1949 | 286.0 |
| | RPC | OPEN PORCH W/ROOF , CEILED | 4 | 30 | 1949 | 88.0 |
Sketch
Property Image
Land
| 1 | RES 1 | Converted: Residential | 0.1892 | 8240.00 | 0.00 | 0.00 | 1.00 | $51,500 | $0 |
Roll Value History
| 2026 | N/A | N/A | N/A | N/A | N/A |
| 2025 | $353,510 | $82,400 | $0 | $435,910 | $435,910 |
| 2024 | $353,510 | $82,400 | $0 | $435,910 | $435,910 |
| 2023 | $368,320 | $51,500 | $0 | $419,820 | $419,820 |
| 2022 | $368,320 | $51,500 | $0 | $419,820 | $419,820 |
| 2021 | $272,830 | $51,500 | $0 | $324,330 | $324,330 |
| 2020 | $194,880 | $51,500 | $0 | $246,380 | $246,380 |
| 2019 | $194,880 | $51,500 | $0 | $246,380 | $246,380 |
| 2018 | $189,200 | $51,500 | $0 | $240,700 | $240,700 |
| 2017 | $183,500 | $33,000 | $0 | $216,500 | $216,500 |
| 2016 | $166,820 | $33,000 | $0 | $199,820 | $199,820 |
| 2015 | $166,820 | $33,000 | $0 | $199,820 | $199,820 |
| 2014 | $149,000 | $33,000 | $0 | $182,000 | $182,000 |
| 2013 | $149,000 | $33,000 | $0 | $182,000 | $182,000 |
| 2012 | $162,800 | $33,000 | $0 | $0 | $0 |
| 2011 | $173,100 | $33,000 | $0 | $0 | $0 |
| 2010 | $146,200 | $33,000 | $0 | $0 | $0 |
| 2009 | $166,100 | $33,000 | $0 | $0 | $0 |
| 2008 | $132,900 | $33,000 | $0 | $0 | $0 |
| 2007 | $132,900 | $33,000 | $0 | $0 | $0 |
Deed and Sales History
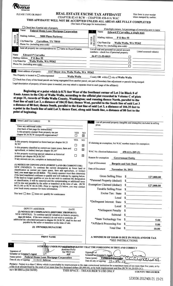
| 1 | 11/21/2012 | WARRANTY D | WARRANTY DEED | FEDERAL HOME LOAN MORTGAGE COR | CARVALHO, EDWARD P | | | $127,000.00 | 123036 | 2012-10395 |
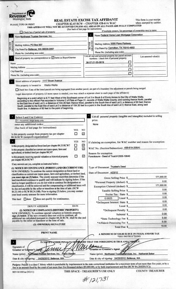
| 2 | 04/30/2012 | WARRANTY D | WARRANTY DEED | NORTHWEST TRUSTEE SERVICES INC | FEDERAL HOME LOAN MORTGAGE COR | | | $171,000.00 | 121731 | 2012-03398 |
| 3 | 06/18/2010 | WARRANTY D | WARRANTY DEED | MC KEOWN, LAURA A | MC KEOWN, PATRICK K | | | | 0 | CC #09-3-00261-9 |
| 4 | 07/01/1999 | WARRANTY D | WARRANTY DEED | | | | | $123,000.00 | 93082 | 2869-907774 |
Payout Agreement
| No payout information available.. |