Property
Account |
| Property ID: | 33350 | Abbreviated Legal Description: | YELLOWHAWK CREEK SUBD PHASE 1 LOT 13 BLK 2 |
| Parcel Number: | 360722610213 | Agent Code: | |
| Type: | Real | | |
| Tax Area: | 1 - OL-140-F | Land Use Code | 11 |
| Open Space: | N | DFL | N |
| Historic Property: | N | Remodel Property: | N |
| Multi-Family Redevelopment: | N | | |
| Township: | 7 | Section: | 22 |
| Range: | 36 |
Location |
| Address: | 107 MERRILL RD WA 99362 | Mapsco: | |
| Neighborhood: | A Superior MH | Map ID: | |
| Neighborhood CD: | 413261 |
Owner |
| Name: | RIME RICHARD H & ANNETTE E REVOCABLE LIVING TRUST | Owner ID: | 54280 |
| Mailing Address: | 107 MERRILL RD WALLA WALLA, WA 99362 | % Ownership: | 100.0000000000% |
| | | Exemptions: | |
Taxes and Assessment Details
Property Tax Information as of
02/21/2026
Click on "Statement Details" to expand or collapse a tax statement.
* Please enter a valid date ** Please enter a valid date *
Statement Details |
| | TOTAL: | $0.00 | $0.00 | $0.00 | $0.00 | $0.00 | $0.00 |
|
| | $0.00 | $0.00 | $0.00 | $0.00 | $0.00 | $0.00 |
Values
| (+) Improvement Homesite Value: | + | $0 | |
| (+) Improvement Non-Homesite Value: | + | $190,000 | |
| (+) Land Homesite Value: | + | $0 | |
| (+) Land Non-Homesite Value: | + | $80,000 | |
| (+) Curr Use (HS): | + | $0 | $0 |
| (+) Curr Use (NHS): | + | $0 | $0 |
| | | -------------------------- | |
| (=) Market Value: | = | $270,000 | |
| (–) Productivity Loss: | – | $0 | |
| | | -------------------------- | |
| (=) Subtotal: | = | $270,000 | |
| (+) Senior Appraised Value: | + | $0 | |
| (+) Non-Senior Appraised Value: | + | $270,000 | |
| | | -------------------------- | |
| (=) Total Appraised Value: | = | $270,000 | |
| (–) Senior Exemption Loss: | – | $0 | |
| (–) Exemption Loss: | – | $0 | |
| | | -------------------------- | |
| (=) Taxable Value: | = | $270,000 | |
Taxing Jurisdiction
| Owner: | RIME RICHARD H & ANNETTE E REVOCABLE LIVING TRUST | | |
| % Ownership: | 100.0000000000% | | |
| Total Value: | $270,000 | | |
| Tax Area: | 1 - OL-140-F |
| CERFD | CURRENT EXPENSE REFUND 010 | 0.0000000000 | $270,000 | $270,000 | $0.00 | | |
| CURREXP | CURRENT EXPENSE 010 | 1.0175366760 | $270,000 | $270,000 | $274.73 | | |
| HUMNSERV | HUMAN SERVICES 119 | 0.0250000000 | $270,000 | $270,000 | $6.75 | | |
| SLDREL | SOLDIERS RELIEF 121 | 0.0155990005 | $270,000 | $270,000 | $4.21 | | |
| EMERGSER | EMS 147 | 0.3792580840 | $270,000 | $270,000 | $102.40 | | |
| EMSRFD | EMS REFUND 147 | 0.0000000000 | $270,000 | $270,000 | $0.00 | | |
| PORTRFD | PORT REFUND 640 | 0.0000000000 | $270,000 | $270,000 | $0.00 | | |
| PORTWWGEN | PORT OF WW 640 | 0.2460186015 | $270,000 | $270,000 | $66.43 | | |
| SD140BOND | SD #140 BOND 764 | 0.8342371393 | $270,000 | $270,000 | $225.24 | | |
| SD140GEN | SD #140 GENERAL 760 | 2.0646500647 | $270,000 | $270,000 | $557.46 | | |
| ST2 | STATE SCHOOL PART 2 600 | 0.8131451643 | $270,000 | $270,000 | $219.55 | | |
| STATESCHL | STATE SCHOOL 600 | 1.5158548041 | $270,000 | $270,000 | $409.28 | | |
| STREFUND | STATE REFUND LEVY 603 | 0.0000000000 | $270,000 | $270,000 | $0.00 | | |
| CWWBOND | C OF WW BOND 643 | 0.2760494372 | $270,000 | $270,000 | $74.53 | | |
| CWWGEN | CITY OF WW 631 | 1.6100204973 | $270,000 | $270,000 | $434.71 | | |
| CWWRFD | CITY OF WALLA WALLA REFUND 631 | 0.0000000000 | $270,000 | $270,000 | $0.00 | | |
| | Total Tax Rate: | 8.7973694689 | | | | | |
| | | | | Taxes w/Current Exemptions: | $2,375.29 | | |
| | | | | Taxes w/o Exemptions: | $2,375.29 | | |
Improvement / Building
| Improvement #1: | MANUFACTURED HOME | State Code: | 11 | 1464.0 sqft | Value: | $190,000 |
| Exterior Wall: | HARDBOARD | Heating/Cooling: | WARM & COOLED AIR | | Number of Bathrooms: | 2 | Number of Bedrooms: | 2 | | Plumbing: | 8 | Roof Covering: | COMP SHINGLE |
|
| | Type | Description | Class CD | Sub Class CD | Year Built | Area |
| | MOBHOME | MANUFACTURD HOMES | 1 | 40 | 1998 | 1464.0 |
| | MI1 | MH SET-UP COSTS | 1 | 40 | 0 | 1.0 |
| | RPO | OPEN PORCH W/ROOF | 1 | 40 | 1998 | 60.0 |
| | WOD | Wood Deck | 1 | 40 | 1998 | 480.0 |
| | ATG | Attached Garage | 1 | 40 | 1998 | 440.0 |
Sketch
Property Image
Land
| 1 | RES 1 | Converted: Residential | 0.2078 | 9050.00 | 0.00 | 0.00 | 1.00 | $80,000 | $0 |
Roll Value History
| 2026 | N/A | N/A | N/A | N/A | N/A |
| 2025 | $266,000 | $80,000 | $0 | $346,000 | $346,000 |
| 2024 | $190,000 | $80,000 | $0 | $270,000 | $270,000 |
| 2023 | $190,000 | $80,000 | $0 | $270,000 | $270,000 |
| 2022 | $216,680 | $50,000 | $0 | $266,680 | $266,680 |
| 2021 | $166,670 | $50,000 | $0 | $216,670 | $216,670 |
| 2020 | $107,530 | $50,000 | $0 | $157,530 | $157,530 |
| 2019 | $107,530 | $50,000 | $0 | $157,530 | $157,530 |
| 2018 | $102,410 | $50,000 | $0 | $152,410 | $152,410 |
| 2017 | $102,410 | $50,000 | $0 | $152,410 | $152,410 |
| 2016 | $102,410 | $40,000 | $0 | $142,410 | $142,410 |
| 2015 | $102,410 | $40,000 | $0 | $142,410 | $142,410 |
| 2014 | $93,100 | $40,000 | $0 | $133,100 | $133,100 |
| 2013 | $93,100 | $40,000 | $0 | $133,100 | $133,100 |
| 2012 | $100,100 | $40,000 | $0 | $0 | $0 |
| 2011 | $108,100 | $40,000 | $0 | $0 | $0 |
| 2010 | $108,100 | $40,000 | $0 | $0 | $0 |
| 2009 | $124,600 | $40,000 | $0 | $0 | $0 |
| 2008 | $91,700 | $40,000 | $0 | $0 | $0 |
| 2007 | $91,700 | $40,000 | $0 | $0 | $0 |
Deed and Sales History
| 1 | 07/22/2024 | SWD | STATUTORY WARRANTY DEED | RIME RICHARD H & ANNETTE E REVOCABLE LIVING TRUST | MINNER MICHELE | | | $355,000.00 | 147904 | 2024-03958 |
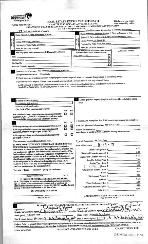
| 2 | 12/10/2013 | QCD | QUIT CLAIM DEED | RIME RICHARD & ANNETTE | RIME RICHARD H & ANNETTE E REVOCABLE LIVING TRUST | | | | 125075 | 2013-11824 |
| 3 | 04/27/2012 | WARRANTY D | WARRANTY DEED | BUNDY, RICHARD | RIME, RICHARD & ANNETTE | | | $135,000.00 | 121729 | 2012-03374 |
Payout Agreement
| No payout information available.. |