Property
Account |
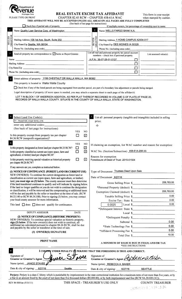
| Property ID: | 33342 | Abbreviated Legal Description: | ANDERSON LOT 7 BLK 1 |
| Parcel Number: | 360728510107 | Agent Code: | |
| Type: | Real | | |
| Tax Area: | 105 - 140-F-4 | Land Use Code | 11 |
| Open Space: | N | DFL | N |
| Historic Property: | N | Remodel Property: | N |
| Multi-Family Redevelopment: | N | | |
| Township: | 7 | Section: | 28 |
| Range: | 36 |
Location |
| Address: | 1158 CHESTNUT DR WA 99362 | Mapsco: | |
| Neighborhood: | G Res | Map ID: | |
| Neighborhood CD: | 614011 |
Owner |
| Name: | WILLIAMS ALSTON FLEMING | Owner ID: | 60516 |
| Mailing Address: | VERONICA YVONNE WILLIAMS 1158 CHESTNUT DR WALLA WALLA, WA 99362 | % Ownership: | 100.0000000000% |
| | | Exemptions: | |
Taxes and Assessment Details
Property Tax Information as of
02/21/2026
Click on "Statement Details" to expand or collapse a tax statement.
* Please enter a valid date ** Please enter a valid date *
Statement Details |
| | TOTAL: | $0.00 | $0.00 | $0.00 | $0.00 | $0.00 | $0.00 |
|
| | $0.00 | $0.00 | $0.00 | $0.00 | $0.00 | $0.00 |
Values
| (+) Improvement Homesite Value: | + | $0 | |
| (+) Improvement Non-Homesite Value: | + | $379,670 | |
| (+) Land Homesite Value: | + | $0 | |
| (+) Land Non-Homesite Value: | + | $112,500 | |
| (+) Curr Use (HS): | + | $0 | $0 |
| (+) Curr Use (NHS): | + | $0 | $0 |
| | | -------------------------- | |
| (=) Market Value: | = | $492,170 | |
| (–) Productivity Loss: | – | $0 | |
| | | -------------------------- | |
| (=) Subtotal: | = | $492,170 | |
| (+) Senior Appraised Value: | + | $0 | |
| (+) Non-Senior Appraised Value: | + | $492,170 | |
| | | -------------------------- | |
| (=) Total Appraised Value: | = | $492,170 | |
| (–) Senior Exemption Loss: | – | $0 | |
| (–) Exemption Loss: | – | $0 | |
| | | -------------------------- | |
| (=) Taxable Value: | = | $492,170 | |
Taxing Jurisdiction
| Owner: | WILLIAMS ALSTON FLEMING | | |
| % Ownership: | 100.0000000000% | | |
| Total Value: | $492,170 | | |
| Tax Area: | 105 - 140-F-4 |
| CERFD | CURRENT EXPENSE REFUND 010 | 0.0000000000 | $492,170 | $492,170 | $0.00 | | |
| CURREXP | CURRENT EXPENSE 010 | 1.0175366760 | $492,170 | $492,170 | $500.80 | | |
| HUMNSERV | HUMAN SERVICES 119 | 0.0250000000 | $492,170 | $492,170 | $12.30 | | |
| SLDREL | SOLDIERS RELIEF 121 | 0.0155990005 | $492,170 | $492,170 | $7.68 | | |
| EMERGSER | EMS 147 | 0.3792580840 | $492,170 | $492,170 | $186.66 | | |
| EMSRFD | EMS REFUND 147 | 0.0000000000 | $492,170 | $492,170 | $0.00 | | |
| FD4EXP | FD #4 EXPENSE 686 | 0.8836993059 | $492,170 | $492,170 | $434.93 | | |
| RLBRFD | RURAL LIBRARY REFUND 623 | 0.0000000000 | $492,170 | $492,170 | $0.00 | | |
| RURALLIB | RURAL LIBRARY 623 | 0.3710609029 | $492,170 | $492,170 | $182.63 | | |
| PORTRFD | PORT REFUND 640 | 0.0000000000 | $492,170 | $492,170 | $0.00 | | |
| PORTWWGEN | PORT OF WW 640 | 0.2460186015 | $492,170 | $492,170 | $121.08 | | |
| SD140BOND | SD #140 BOND 764 | 0.8342371393 | $492,170 | $492,170 | $410.59 | | |
| SD140GEN | SD #140 GENERAL 760 | 2.0646500647 | $492,170 | $492,170 | $1,016.16 | | |
| ST2 | STATE SCHOOL PART 2 600 | 0.8131451643 | $492,170 | $492,170 | $400.21 | | |
| STATESCHL | STATE SCHOOL 600 | 1.5158548041 | $492,170 | $492,170 | $746.06 | | |
| STREFUND | STATE REFUND LEVY 603 | 0.0000000000 | $492,170 | $492,170 | $0.00 | | |
| COROAD | COUNTY ROAD 115 | 1.6549953990 | $492,170 | $492,170 | $814.54 | | |
| CRPRD | COUNTY ROAD REFUND 115 | 0.0000000000 | $492,170 | $492,170 | $0.00 | | |
| | Total Tax Rate: | 9.8210551422 | | | | | |
| | | | | Taxes w/Current Exemptions: | $4,833.64 | | |
| | | | | Taxes w/o Exemptions: | $4,833.64 | | |
Improvement / Building
| Improvement #1: | RESIDENTIAL | State Code: | 11 | 2472.0 sqft | Value: | $379,670 |
| Exterior Wall: | PLYWOOD | Foundation: | SLAB FOUNDATION | | Heating/Cooling: | WARM & COOLED AIR | Number of Bathrooms: | 3 | | Number of Bedrooms: | 4 | Plumbing: | 14 | | Roof Covering: | COMP SHINGLE |   |   |
|
| | Type | Description | Class CD | Sub Class CD | Year Built | Area |
| | MA | Main Area | 3 | 35 | 1966 | 2472.0 |
| | UPFL | Upper Floor (included in main area) | 3 | 35 | 1966 | 528.0 |
| | SI1 | SITE IMPROVEMENT | 3 | 35 | 1966 | 3.0 |
| | BASE | BASEMENT | 3 | 35 | 1966 | 504.0 |
| | BPF | BASEMENT -PARTITIONED FINISH | 3 | 35 | 1966 | 504.0 |
| | ATG | Attached Garage | 3 | 35 | 1966 | 480.0 |
| | S1F | Single One Story Fireplace | 3 | 35 | 1966 | 1.0 |
| | CPC | COVERED CARPORT/PATIO | 3 | 35 | 1966 | 364.0 |
| | TOOL | TOOL SHED | 3 | 35 | 1966 | 96.0 |
| | RPC | OPEN PORCH W/ROOF , CEILED | 3 | 35 | 1966 | 25.0 |
Sketch
Property Image
Land
| 1 | RES 1 | Converted: Residential | 0.2583 | 11250.00 | 0.00 | 0.00 | 1.00 | $112,500 | $0 |
Roll Value History
| 2026 | N/A | N/A | N/A | N/A | N/A |
| 2025 | $366,220 | $135,000 | $0 | $501,220 | $501,220 |
| 2024 | $379,670 | $112,500 | $0 | $492,170 | $492,170 |
| 2023 | $379,670 | $112,500 | $0 | $492,170 | $492,170 |
| 2022 | $379,670 | $92,810 | $0 | $472,480 | $472,480 |
| 2021 | $253,110 | $92,810 | $0 | $345,920 | $345,920 |
| 2020 | $194,700 | $92,810 | $0 | $287,510 | $287,510 |
| 2019 | $194,700 | $92,810 | $0 | $287,510 | $287,510 |
| 2018 | $207,390 | $48,200 | $0 | $255,590 | $255,590 |
| 2017 | $207,390 | $48,200 | $0 | $255,590 | $255,590 |
| 2016 | $296,270 | $48,200 | $0 | $344,470 | $344,470 |
| 2015 | $296,270 | $48,200 | $0 | $344,470 | $344,470 |
| 2014 | $227,900 | $48,200 | $0 | $276,100 | $276,100 |
| 2013 | $227,900 | $48,200 | $0 | $276,100 | $276,100 |
| 2012 | $181,700 | $48,200 | $0 | $0 | $0 |
| 2011 | $181,700 | $48,200 | $0 | $0 | $0 |
| 2010 | $181,700 | $48,200 | $0 | $0 | $0 |
| 2009 | $207,200 | $48,200 | $0 | $0 | $0 |
| 2008 | $207,200 | $48,200 | $0 | $0 | $0 |
| 2007 | $162,500 | $25,700 | $0 | $0 | $0 |
Deed and Sales History
| 1 | 01/12/2024 | SWD | STATUTORY WARRANTY DEED | WILLIAMS ALSTON FLEMING | LOPEZ JOLENE J | | | $525,000.00 | 147011 | 2024-00175 |
| 2 | 03/08/2017 | SWP | Special Warranty Deed | SECRETARY OF VETERANS AFFAIRS | WILLIAMS ALSTON FLEMING | | | $209,000.00 | 132000 | 2017-01803 |
| 3 | 07/21/2016 | WARRANTY D | WARRANTY DEED | WELLS FARGO BANK NA | SECRETARY OF VETERANS AFFAIRS | | | $206,763.00 | 130676 | 2016-05709 |
| 4 | 06/29/2016 | TRUSTEES D | TRUSTEE'S DEED | BLISS MICHAEL AARON | WELLS FARGO BANK NA | | | $206,763.00 | 130520 | 2016-05025 |
| 5 | 04/17/2012 | WARRANTY D | WARRANTY DEED | KINZER, MILES G & BONNIE | BLISS, MICHAEL AARON | | | $289,000.00 | 121685 | 2012-03101 |
| 6 | 07/01/1966 | WARRANTY D | WARRANTY DEED | | | | | $2,700.00 | 0 | 3190-477930 |
Payout Agreement
| No payout information available.. |