Property
Account |
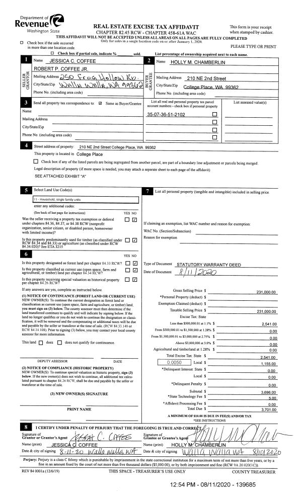
| Property ID: | 33338 | Abbreviated Legal Description: | CP #1 TAX 1A & 1F BLK 21 |
| Parcel Number: | 350736512102 | Agent Code: | |
| Type: | Real | | |
| Tax Area: | 75 - CP 250 | Land Use Code | 11 |
| Open Space: | N | DFL | N |
| Historic Property: | N | Remodel Property: | N |
| Multi-Family Redevelopment: | N | | |
| Township: | 7 | Section: | 36 |
| Range: | 35 |
Location |
| Address: | 210 SE 2ND ST WA 99324 | Mapsco: | |
| Neighborhood: | A SFR | Map ID: | |
| Neighborhood CD: | 113011 |
Owner |
| Name: | CHAMBERLIN HOLLY M | Owner ID: | 67764 |
| Mailing Address: | 210 SE 2ND ST COLLEGE PLACE, WA 99324 | % Ownership: | 100.0000000000% |
| | | Exemptions: | |
Taxes and Assessment Details
Values
| (+) Improvement Homesite Value: | + | $0 | |
| (+) Improvement Non-Homesite Value: | + | $229,490 | |
| (+) Land Homesite Value: | + | $0 | |
| (+) Land Non-Homesite Value: | + | $48,600 | |
| (+) Curr Use (HS): | + | $0 | $0 |
| (+) Curr Use (NHS): | + | $0 | $0 |
| | | -------------------------- | |
| (=) Market Value: | = | $278,090 | |
| (–) Productivity Loss: | – | $0 | |
| | | -------------------------- | |
| (=) Subtotal: | = | $278,090 | |
| (+) Senior Appraised Value: | + | $0 | |
| (+) Non-Senior Appraised Value: | + | $278,090 | |
| | | -------------------------- | |
| (=) Total Appraised Value: | = | $278,090 | |
| (–) Senior Exemption Loss: | – | $0 | |
| (–) Exemption Loss: | – | $0 | |
| | | -------------------------- | |
| (=) Taxable Value: | = | $278,090 | |
Taxing Jurisdiction
| Owner: | CHAMBERLIN HOLLY M | | |
| % Ownership: | 100.0000000000% | | |
| Total Value: | $278,090 | | |
| Tax Area: | 75 - CP 250 |
| CERFD | CURRENT EXPENSE REFUND 010 | 0.0000000000 | $278,090 | $278,090 | $0.00 | | |
| CURREXP | CURRENT EXPENSE 010 | 1.0175366760 | $278,090 | $278,090 | $282.97 | | |
| HUMNSERV | HUMAN SERVICES 119 | 0.0250000000 | $278,090 | $278,090 | $6.95 | | |
| SLDREL | SOLDIERS RELIEF 121 | 0.0155990005 | $278,090 | $278,090 | $4.34 | | |
| COLLPLBOND | C OF CP BOND 644 | 0.4374241808 | $278,090 | $278,090 | $121.64 | | |
| COLLPLGEN | CITY OF CP 632 | 1.4453819216 | $278,090 | $278,090 | $401.95 | | |
| EMERGSER | EMS 147 | 0.3792580840 | $278,090 | $278,090 | $105.47 | | |
| EMSRFD | EMS REFUND 147 | 0.0000000000 | $278,090 | $278,090 | $0.00 | | |
| RURALLIB | RURAL LIBRARY 623 | 0.3710609029 | $278,090 | $278,090 | $103.19 | | |
| PORTRFD | PORT REFUND 640 | 0.0000000000 | $278,090 | $278,090 | $0.00 | | |
| PORTWWGEN | PORT OF WW 640 | 0.2460186015 | $278,090 | $278,090 | $68.42 | | |
| SD250BOND | SD #250 BOND 773 | 1.4560608159 | $278,090 | $278,090 | $404.92 | | |
| SD250GEN | SD #250 GENERAL 770 | 2.3880724087 | $278,090 | $278,090 | $664.10 | | |
| ST2 | STATE SCHOOL PART 2 600 | 0.8131451643 | $278,090 | $278,090 | $226.13 | | |
| STATESCHL | STATE SCHOOL 600 | 1.5158548041 | $278,090 | $278,090 | $421.54 | | |
| STREFUND | STATE REFUND LEVY 603 | 0.0000000000 | $278,090 | $278,090 | $0.00 | | |
| | Total Tax Rate: | 10.1104125603 | | | | | |
| | | | | Taxes w/Current Exemptions: | $2,811.62 | | |
| | | | | Taxes w/o Exemptions: | $2,811.62 | | |
Improvement / Building
| Improvement #1: | RESIDENTIAL | State Code: | 11 | 1153.0 sqft | Value: | $229,490 |
| Exterior Wall: | PLYWOOD | Foundation: | SLAB FOUNDATION | | Heating/Cooling: | MINI-SPLIT HP SYSTEM | Number of Bathrooms: | 2 | | Number of Bedrooms: | 2 | Plumbing: | 9 | | Roof Covering: | COMP SHINGLE |   |   |
|
| | Type | Description | Class CD | Sub Class CD | Year Built | Area |
| | MA | Main Area | 1 | 30 | 1947 | 1153.0 |
| | SI1 | SITE IMPROVEMENT | 1 | 30 | 1947 | 1.0 |
| | S1F | Single One Story Fireplace | 1 | 30 | 1947 | 1.0 |
| | RPO | OPEN PORCH W/ROOF | 1 | 30 | 1947 | 60.0 |
Sketch
Property Image
Land
| 1 | RES 1 | Converted: Residential | 0.1653 | 7200.00 | 0.00 | 0.00 | 1.00 | $48,600 | $0 |
Roll Value History
| 2026 | N/A | N/A | N/A | N/A | N/A |
| 2025 | $216,870 | $72,000 | $0 | $288,870 | $288,870 |
| 2024 | $240,960 | $48,600 | $0 | $289,560 | $289,560 |
| 2023 | $229,490 | $48,600 | $0 | $278,090 | $278,090 |
| 2022 | $199,560 | $48,600 | $0 | $248,160 | $248,160 |
| 2021 | $166,300 | $48,600 | $0 | $214,900 | $214,900 |
| 2020 | $127,920 | $48,600 | $0 | $176,520 | $176,520 |
| 2019 | $133,320 | $43,200 | $0 | $176,520 | $176,520 |
| 2018 | $121,200 | $43,200 | $0 | $164,400 | $164,400 |
| 2017 | $93,230 | $43,200 | $0 | $136,430 | $136,430 |
| 2016 | $81,070 | $43,200 | $0 | $124,270 | $124,270 |
| 2015 | $73,700 | $43,200 | $0 | $116,900 | $116,900 |
| 2014 | $73,700 | $43,200 | $0 | $116,900 | $116,900 |
| 2013 | $73,700 | $43,200 | $0 | $116,900 | $116,900 |
| 2012 | $73,700 | $43,200 | $0 | $0 | $0 |
| 2011 | $73,700 | $43,200 | $0 | $0 | $0 |
| 2010 | $57,400 | $43,200 | $0 | $0 | $0 |
| 2009 | $68,600 | $43,200 | $0 | $0 | $0 |
| 2008 | $47,400 | $21,600 | $0 | $0 | $0 |
| 2007 | $47,400 | $21,600 | $0 | $0 | $0 |
Deed and Sales History
| 1 | 08/29/2025 | OCN | ORDER CHGING NAME | CHAMBERLIN HOLLY M | TAYLOR HOLLY M | | | | 0 | 2025-05198 |
| 2 | 08/11/2020 | SWD | STATUTORY WARRANTY DEED | COFFEE ROBERT P JR & JESSICA C | CHAMBERLIN HOLLY M | | | $231,000.00 | 139685 | 2020-07914 |
| 3 | 04/16/2012 | QCD | QUIT CLAIM DEED | CRAIK, JESSICA C | COFFEE, ROBERT P JR & JESSICA | | | $48,317.00 | 121677 | 2012-03072 |
| 4 | 06/01/2006 | WARRANTY D | WARRANTY DEED | SCHARFFENBERG, SUSAN C | CRAIK, JESSICA C | | | $115,500.00 | 110430 | 2006-06389 |
| 5 | 06/01/2006 | QCD | QUIT CLAIM DEED | COFFEE, ROBERT P | CRAIK, JESSICA C | | | | 110431 | 2006-06390 |
| 6 | 05/15/2003 | QCD | QUIT CLAIM DEED | DIXON, BRUCE K & SUSAN C | DIXON, SUSAN C | | | | 102035 | 2003-07055 |
| 7 | 08/25/1986 | WARRANTY D | WARRANTY DEED | | | | | $29,000.00 | 0 | 1588-606525 |
Payout Agreement
| No payout information available.. |