Property
Account |
| Property ID: | 33297 | Abbreviated Legal Description: | VILGS OF GARRISON CREEK PHASE V LT 54 |
| Parcel Number: | 350736920008 | Agent Code: | |
| Type: | Real | | |
| Tax Area: | 77 - CP-250-F | Land Use Code | 11 |
| Open Space: | N | DFL | N |
| Historic Property: | N | Remodel Property: | N |
| Multi-Family Redevelopment: | N | | |
| Township: | 7 | Section: | 36 |
| Range: | 35 |
Location |
| Address: | 815 SE CREEKSIDE DR WA 99324 | Mapsco: | |
| Neighborhood: | G Inferior SFR | Map ID: | |
| Neighborhood CD: | 114111 |
Owner |
| Name: | ROBERTS ANGELA CAROL | Owner ID: | 66934 |
| Mailing Address: | 815 SE CREEKSIDE DR COLLEGE PLACE, WA 99324 | % Ownership: | 100.0000000000% |
| | | Exemptions: | |
Taxes and Assessment Details
Values
| (+) Improvement Homesite Value: | + | $0 | |
| (+) Improvement Non-Homesite Value: | + | $261,560 | |
| (+) Land Homesite Value: | + | $0 | |
| (+) Land Non-Homesite Value: | + | $60,000 | |
| (+) Curr Use (HS): | + | $0 | $0 |
| (+) Curr Use (NHS): | + | $0 | $0 |
| | | -------------------------- | |
| (=) Market Value: | = | $321,560 | |
| (–) Productivity Loss: | – | $0 | |
| | | -------------------------- | |
| (=) Subtotal: | = | $321,560 | |
| (+) Senior Appraised Value: | + | $0 | |
| (+) Non-Senior Appraised Value: | + | $321,560 | |
| | | -------------------------- | |
| (=) Total Appraised Value: | = | $321,560 | |
| (–) Senior Exemption Loss: | – | $0 | |
| (–) Exemption Loss: | – | $0 | |
| | | -------------------------- | |
| (=) Taxable Value: | = | $321,560 | |
Taxing Jurisdiction
| Owner: | ROBERTS ANGELA CAROL | | |
| % Ownership: | 100.0000000000% | | |
| Total Value: | $321,560 | | |
| Tax Area: | 77 - CP-250-F |
| CERFD | CURRENT EXPENSE REFUND 010 | 0.0000000000 | $321,560 | $321,560 | $0.00 | | |
| CURREXP | CURRENT EXPENSE 010 | 1.0175366760 | $321,560 | $321,560 | $327.20 | | |
| HUMNSERV | HUMAN SERVICES 119 | 0.0250000000 | $321,560 | $321,560 | $8.04 | | |
| SLDREL | SOLDIERS RELIEF 121 | 0.0155990005 | $321,560 | $321,560 | $5.02 | | |
| COLLPLBOND | C OF CP BOND 644 | 0.4374241808 | $321,560 | $321,560 | $140.66 | | |
| COLLPLGEN | CITY OF CP 632 | 1.4453819216 | $321,560 | $321,560 | $464.78 | | |
| EMERGSER | EMS 147 | 0.3792580840 | $321,560 | $321,560 | $121.95 | | |
| EMSRFD | EMS REFUND 147 | 0.0000000000 | $321,560 | $321,560 | $0.00 | | |
| RURALLIB | RURAL LIBRARY 623 | 0.3710609029 | $321,560 | $321,560 | $119.32 | | |
| PORTRFD | PORT REFUND 640 | 0.0000000000 | $321,560 | $321,560 | $0.00 | | |
| PORTWWGEN | PORT OF WW 640 | 0.2460186015 | $321,560 | $321,560 | $79.11 | | |
| SD250BOND | SD #250 BOND 773 | 1.4560608159 | $321,560 | $321,560 | $468.21 | | |
| SD250GEN | SD #250 GENERAL 770 | 2.3880724087 | $321,560 | $321,560 | $767.91 | | |
| ST2 | STATE SCHOOL PART 2 600 | 0.8131451643 | $321,560 | $321,560 | $261.47 | | |
| STATESCHL | STATE SCHOOL 600 | 1.5158548041 | $321,560 | $321,560 | $487.44 | | |
| STREFUND | STATE REFUND LEVY 603 | 0.0000000000 | $321,560 | $321,560 | $0.00 | | |
| | Total Tax Rate: | 10.1104125603 | | | | | |
| | | | | Taxes w/Current Exemptions: | $3,251.11 | | |
| | | | | Taxes w/o Exemptions: | $3,251.11 | | |
Improvement / Building
| Improvement #1: | RESIDENTIAL | State Code: | 11 | 1192.0 sqft | Value: | $261,560 |
| Exterior Wall: | PLYWOOD | Heating/Cooling: | WARM & COOLED AIR | | Number of Bathrooms: | 2 | Number of Bedrooms: | 2 | | Plumbing: | 9 | Roof Covering: | COMP SHINGLE |
|
| | Type | Description | Class CD | Sub Class CD | Year Built | Area |
| | MA | Main Area | 1 | 40 | 2003 | 1192.0 |
| | SI1 | SITE IMPROVEMENT | 1 | 40 | 2003 | 1.5 |
| | ATG | Attached Garage | 1 | 40 | 2003 | 317.0 |
| | RPO | OPEN PORCH W/ROOF | 1 | 40 | 2003 | 50.0 |
| | RPO | OPEN PORCH W/ROOF | 1 | 40 | 2003 | 128.0 |
| | GFP | GAS FIREPLACE | 1 | 40 | 2003 | 1.0 |
Sketch
Property Image
Land
| 1 | RES 1 | Converted: Residential | 0.0584 | 2543.00 | 0.00 | 0.00 | 1.00 | $60,000 | $0 |
Roll Value History
| 2026 | N/A | N/A | N/A | N/A | N/A |
| 2025 | $201,400 | $150,000 | $0 | $351,400 | $351,400 |
| 2024 | $287,710 | $60,000 | $0 | $347,710 | $347,710 |
| 2023 | $261,560 | $60,000 | $0 | $321,560 | $321,560 |
| 2022 | $261,560 | $60,000 | $0 | $321,560 | $321,560 |
| 2021 | $186,830 | $60,000 | $0 | $246,830 | $246,830 |
| 2020 | $177,930 | $60,000 | $0 | $237,930 | $237,930 |
| 2019 | $192,930 | $45,000 | $0 | $237,930 | $71,560 |
| 2018 | $160,780 | $45,000 | $0 | $205,780 | $71,560 |
| 2017 | $133,980 | $45,000 | $0 | $178,980 | $71,560 |
| 2016 | $121,800 | $45,000 | $0 | $166,800 | $66,720 |
| 2015 | $121,800 | $45,000 | $0 | $166,800 | $66,720 |
| 2014 | $116,000 | $45,000 | $0 | $161,000 | $64,400 |
| 2013 | $116,000 | $45,000 | $0 | $161,000 | $64,400 |
| 2012 | $133,900 | $45,000 | $0 | $0 | $0 |
| 2011 | $133,900 | $45,000 | $0 | $0 | $0 |
| 2010 | $133,900 | $45,000 | $0 | $0 | $0 |
| 2009 | $143,300 | $45,000 | $0 | $0 | $0 |
| 2008 | $100,500 | $18,000 | $0 | $0 | $0 |
| 2007 | $100,500 | $18,000 | $0 | $0 | $0 |
Deed and Sales History
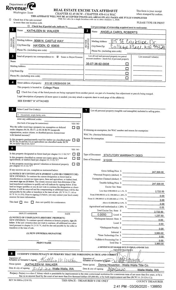
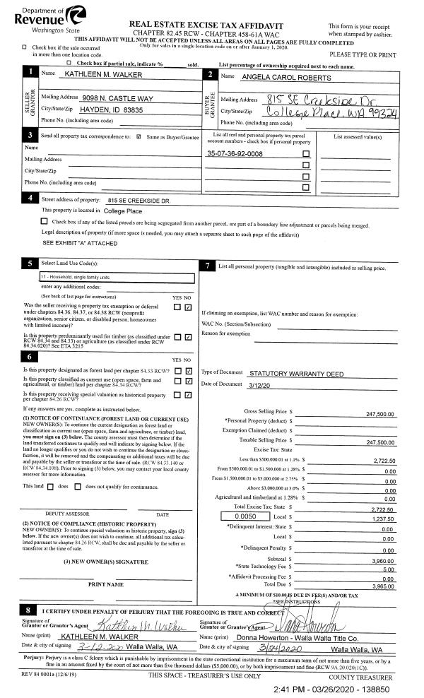
| 1 | 03/26/2020 | SWD | STATUTORY WARRANTY DEED | WALKER KATHLEEN M | ROBERTS ANGELA CAROL | | | $247,500.00 | 138850 | 2020-02674 |
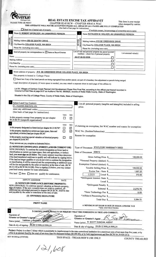
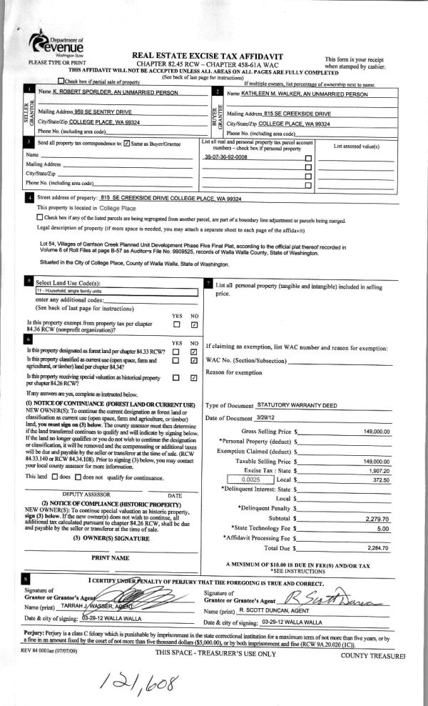
| 2 | 03/30/2012 | WARRANTY D | WARRANTY DEED | SPORLEDER, K ROBERT | WALKER, KATHLEEN M | | | $149,000.00 | 121608 | 2012-02598 |
| 3 | 09/22/2005 | WARRANTY D | WARRANTY DEED | WONG, THERESA K I | SPORLEDER, K ROBERT | | | $162,000.00 | 108558 | 2005-11833 |
| 4 | 09/22/2005 | QCD | QUIT CLAIM DEED | SPORLEDER, K ROBERT & ALICE | SPORLEDER, K ROBERT | | | | 108559 | 2005-11834 |
| 5 | 09/23/2002 | WARRANTY D | WARRANTY DEED | PHASE FIVE DEVELOPMENT LLC | WONG, THERESA K I | | | $109,900.00 | 100428 | 2002-10653 |
Payout Agreement
| No payout information available.. |