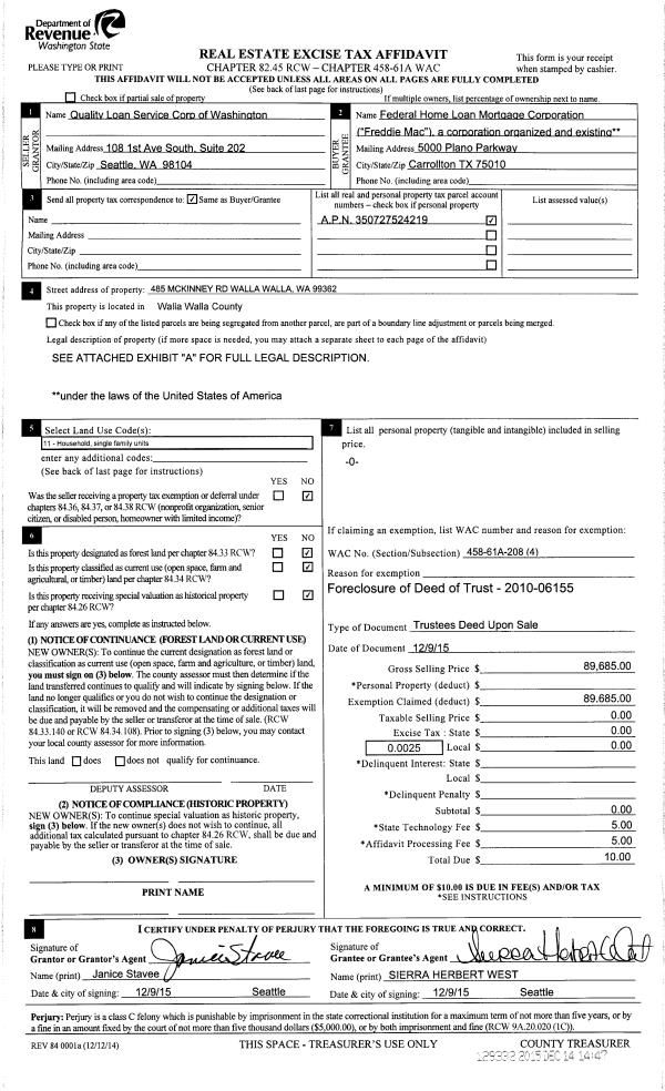
Property
Account |
| Property ID: | 33244 | Abbreviated Legal Description: | BLALOCK ORCHARDS TAX 14 BLK 42 |
| Parcel Number: | 350727524219 | Agent Code: | |
| Type: | Real | | |
| Tax Area: | 311 - 250-4 | Land Use Code | 11 |
| Open Space: | N | DFL | N |
| Historic Property: | N | Remodel Property: | N |
| Multi-Family Redevelopment: | N | | |
| Township: | 7 | Section: | 27 |
| Range: | 35 |
Location |
| Address: | 485 MCKINNEY RD WA 99324 | Mapsco: | |
| Neighborhood: | A SFR Rural/City Infl | Map ID: | |
| Neighborhood CD: | 313012 |
Owner |
| Name: | AMICK KIRK A & COURTNEY L | Owner ID: | 60188 |
| Mailing Address: | 485 MCKINNEY RD WALLA WALLA, WA 99362 | % Ownership: | 100.0000000000% |
| | | Exemptions: | |
Taxes and Assessment Details
Property Tax Information as of
04/19/2026
Click on "Statement Details" to expand or collapse a tax statement.
* Please enter a valid date ** Please enter a valid date *
Statement Details |
| | TOTAL: | $0.00 | $0.00 | $0.00 | $0.00 | $0.00 | $0.00 |
|
| | $0.00 | $0.00 | $0.00 | $0.00 | $0.00 | $0.00 |
Values
| (+) Improvement Homesite Value: | + | $0 | |
| (+) Improvement Non-Homesite Value: | + | $500,640 | |
| (+) Land Homesite Value: | + | $0 | |
| (+) Land Non-Homesite Value: | + | $146,250 | |
| (+) Curr Use (HS): | + | $0 | $0 |
| (+) Curr Use (NHS): | + | $0 | $0 |
| | | -------------------------- | |
| (=) Market Value: | = | $646,890 | |
| (–) Productivity Loss: | – | $0 | |
| | | -------------------------- | |
| (=) Subtotal: | = | $646,890 | |
| (+) Senior Appraised Value: | + | $0 | |
| (+) Non-Senior Appraised Value: | + | $646,890 | |
| | | -------------------------- | |
| (=) Total Appraised Value: | = | $646,890 | |
| (–) Senior Exemption Loss: | – | $0 | |
| (–) Exemption Loss: | – | $0 | |
| | | -------------------------- | |
| (=) Taxable Value: | = | $646,890 | |
Taxing Jurisdiction
| Owner: | AMICK KIRK A & COURTNEY L | | |
| % Ownership: | 100.0000000000% | | |
| Total Value: | $646,890 | | |
| Tax Area: | 311 - 250-4 |
| CERFD | CURRENT EXPENSE REFUND 010 | 0.0000000000 | $646,890 | $646,890 | $0.00 | | |
| CURREXP | CURRENT EXPENSE 010 | 1.0175366760 | $646,890 | $646,890 | $658.23 | | |
| HUMNSERV | HUMAN SERVICES 119 | 0.0250000000 | $646,890 | $646,890 | $16.17 | | |
| SLDREL | SOLDIERS RELIEF 121 | 0.0155990005 | $646,890 | $646,890 | $10.09 | | |
| EMERGSER | EMS 147 | 0.3792580840 | $646,890 | $646,890 | $245.34 | | |
| EMSRFD | EMS REFUND 147 | 0.0000000000 | $646,890 | $646,890 | $0.00 | | |
| FD4EXP | FD #4 EXPENSE 686 | 0.8836993059 | $646,890 | $646,890 | $571.66 | | |
| RLBRFD | RURAL LIBRARY REFUND 623 | 0.0000000000 | $646,890 | $646,890 | $0.00 | | |
| RURALLIB | RURAL LIBRARY 623 | 0.3710609029 | $646,890 | $646,890 | $240.04 | | |
| PORTRFD | PORT REFUND 640 | 0.0000000000 | $646,890 | $646,890 | $0.00 | | |
| PORTWWGEN | PORT OF WW 640 | 0.2460186015 | $646,890 | $646,890 | $159.15 | | |
| SD250BOND | SD #250 BOND 773 | 1.4560608159 | $646,890 | $646,890 | $941.91 | | |
| SD250GEN | SD #250 GENERAL 770 | 2.3880724087 | $646,890 | $646,890 | $1,544.82 | | |
| ST2 | STATE SCHOOL PART 2 600 | 0.8131451643 | $646,890 | $646,890 | $526.02 | | |
| STATESCHL | STATE SCHOOL 600 | 1.5158548041 | $646,890 | $646,890 | $980.59 | | |
| STREFUND | STATE REFUND LEVY 603 | 0.0000000000 | $646,890 | $646,890 | $0.00 | | |
| COROAD | COUNTY ROAD 115 | 1.6549953990 | $646,890 | $646,890 | $1,070.60 | | |
| CRPRD | COUNTY ROAD REFUND 115 | 0.0000000000 | $646,890 | $646,890 | $0.00 | | |
| | Total Tax Rate: | 10.7663011628 | | | | | |
| | | | | Taxes w/Current Exemptions: | $6,964.62 | | |
| | | | | Taxes w/o Exemptions: | $6,964.62 | | |
Improvement / Building
| Improvement #1: | RESIDENTIAL | State Code: | 11 | 3552.0 sqft | Value: | $500,640 |
| Exterior Wall: | CEMENT FIBER | Heating/Cooling: | WARM & COOLED AIR | | Number of Bathrooms: | 3.5 | Number of Bedrooms: | 4 | | Plumbing: | 18 | Roof Covering: | METAL ROOFING |
|
| | Type | Description | Class CD | Sub Class CD | Year Built | Area |
| | MA | Main Area | 2 | 40 | 2018 | 3552.0 |
| | RPO | OPEN PORCH W/ROOF | 2 | 40 | 2018 | 890.0 |
| | RPO | OPEN PORCH W/ROOF | 2 | 40 | 2018 | 890.0 |
| | S1F | Single One Story Fireplace | 2 | 40 | 2018 | 1.0 |
| | UPFL | Upper Floor (included in main area) | 2 | 40 | 2018 | 1416.0 |
| | DTG | Detached Garage | 2 | 30 | 1946 | 650.0 |
| | BNV | BUILDING NO VALUE | 2 | 40 | 1946 | 1.0 |
| | SI1 | SITE IMPROVEMENT | 2 | 40 | 2018 | 4.0 |
Sketch
Property Image
Land
| 1 | RES 1 | Converted: Residential | 4.2500 | 0.00 | 0.00 | 0.00 | 1.00 | $146,250 | $0 |
Roll Value History
| 2026 | N/A | N/A | N/A | N/A | N/A |
| 2025 | $500,640 | $146,250 | $0 | $646,890 | $646,890 |
| 2024 | $500,640 | $146,250 | $0 | $646,890 | $646,890 |
| 2023 | $500,640 | $146,250 | $0 | $646,890 | $646,890 |
| 2022 | $500,640 | $146,250 | $0 | $646,890 | $646,890 |
| 2021 | $435,390 | $101,000 | $0 | $536,390 | $536,390 |
| 2020 | $435,390 | $101,000 | $0 | $536,390 | $536,390 |
| 2019 | $435,390 | $101,000 | $0 | $536,390 | $536,390 |
| 2018 | $378,600 | $101,000 | $0 | $479,600 | $479,600 |
| 2017 | $7,980 | $101,000 | $0 | $108,980 | $108,980 |
| 2016 | $39,430 | $101,000 | $0 | $140,430 | $140,430 |
| 2015 | $33,400 | $101,000 | $0 | $134,400 | $134,400 |
| 2014 | $33,400 | $101,000 | $0 | $134,400 | $134,400 |
| 2013 | $33,400 | $101,000 | $0 | $134,400 | $134,400 |
| 2012 | $33,400 | $101,000 | $0 | $0 | $0 |
| 2011 | $33,400 | $101,000 | $0 | $0 | $0 |
| 2010 | $34,000 | $101,000 | $0 | $0 | $0 |
| 2009 | $92,000 | $58,000 | $0 | $0 | $0 |
| 2008 | $62,000 | $58,000 | $0 | $0 | $0 |
| 2007 | $62,000 | $58,000 | $0 | $0 | $0 |
Deed and Sales History
| 1 | 12/20/2016 | SWD | STATUTORY WARRANTY DEED | SK REALTY FUND LLC | AMICK KIRK A & COURTNEY L | | | $142,500.00 | 131632 | 2016-10480 |
| 2 | 04/18/2016 | WARRANTY D | WARRANTY DEED | FEDERAL HOME LOAN MORTGAGE CORP | SK REALTY FUND LLC | | | | 130103 | 2016-03110 |
| 3 | 12/14/2015 | TRUSTEES D | TRUSTEE'S DEED | EVANS KATHLEEN | FEDERAL HOME LOAN MORTGAGE CORP | | | $89,685.00 | 129332 | 2015-10670 |
| 4 | 07/11/1977 | WARRANTY D | WARRANTY DEED | | | | | $45,000.00 | 0 | 6305-66710 |
Payout Agreement
| No payout information available.. |