Property
Account |
| Property ID: | 33198 | Abbreviated Legal Description: | HIGHLAND PARK LOT 2 BLK 1 |
| Parcel Number: | 350736540102 | Agent Code: | |
| Type: | Real | | |
| Tax Area: | 77 - CP-250-F | Land Use Code | 11 |
| Open Space: | N | DFL | N |
| Historic Property: | N | Remodel Property: | N |
| Multi-Family Redevelopment: | N | | |
| Township: | 7 | Section: | 36 |
| Range: | 35 |
Location |
| Address: | 805 SE 4TH ST WA 99324 | Mapsco: | |
| Neighborhood: | A Superior SFR | Map ID: | |
| Neighborhood CD: | 113211 |
Owner |
| Name: | HERNANDEZ AARON & NORMA LOLITA | Owner ID: | 61764 |
| Mailing Address: | 805 SE 4TH ST COLLEGE PLACE, WA 99324 | % Ownership: | 100.0000000000% |
| | | Exemptions: | |
Taxes and Assessment Details
Values
| (+) Improvement Homesite Value: | + | $446,350 | |
| (+) Improvement Non-Homesite Value: | + | $0 | |
| (+) Land Homesite Value: | + | $75,000 | |
| (+) Land Non-Homesite Value: | + | $0 | |
| (+) Curr Use (HS): | + | $0 | $0 |
| (+) Curr Use (NHS): | + | $0 | $0 |
| | | -------------------------- | |
| (=) Market Value: | = | $521,350 | |
| (–) Productivity Loss: | – | $0 | |
| | | -------------------------- | |
| (=) Subtotal: | = | $521,350 | |
| (+) Senior Appraised Value: | + | $0 | |
| (+) Non-Senior Appraised Value: | + | $521,350 | |
| | | -------------------------- | |
| (=) Total Appraised Value: | = | $521,350 | |
| (–) Senior Exemption Loss: | – | $0 | |
| (–) Exemption Loss: | – | $0 | |
| | | -------------------------- | |
| (=) Taxable Value: | = | $521,350 | |
Taxing Jurisdiction
| Owner: | HERNANDEZ AARON & NORMA LOLITA | | |
| % Ownership: | 100.0000000000% | | |
| Total Value: | $521,350 | | |
| Tax Area: | 77 - CP-250-F |
| CERFD | CURRENT EXPENSE REFUND 010 | 0.0000000000 | $521,350 | $521,350 | $0.00 | | |
| CURREXP | CURRENT EXPENSE 010 | 1.0175366760 | $521,350 | $521,350 | $530.49 | | |
| HUMNSERV | HUMAN SERVICES 119 | 0.0250000000 | $521,350 | $521,350 | $13.03 | | |
| SLDREL | SOLDIERS RELIEF 121 | 0.0155990005 | $521,350 | $521,350 | $8.13 | | |
| COLLPLBOND | C OF CP BOND 644 | 0.4374241808 | $521,350 | $521,350 | $228.05 | | |
| COLLPLGEN | CITY OF CP 632 | 1.4453819216 | $521,350 | $521,350 | $753.55 | | |
| EMERGSER | EMS 147 | 0.3792580840 | $521,350 | $521,350 | $197.73 | | |
| EMSRFD | EMS REFUND 147 | 0.0000000000 | $521,350 | $521,350 | $0.00 | | |
| RURALLIB | RURAL LIBRARY 623 | 0.3710609029 | $521,350 | $521,350 | $193.45 | | |
| PORTRFD | PORT REFUND 640 | 0.0000000000 | $521,350 | $521,350 | $0.00 | | |
| PORTWWGEN | PORT OF WW 640 | 0.2460186015 | $521,350 | $521,350 | $128.26 | | |
| SD250BOND | SD #250 BOND 773 | 1.4560608159 | $521,350 | $521,350 | $759.12 | | |
| SD250GEN | SD #250 GENERAL 770 | 2.3880724087 | $521,350 | $521,350 | $1,245.02 | | |
| ST2 | STATE SCHOOL PART 2 600 | 0.8131451643 | $521,350 | $521,350 | $423.93 | | |
| STATESCHL | STATE SCHOOL 600 | 1.5158548041 | $521,350 | $521,350 | $790.29 | | |
| STREFUND | STATE REFUND LEVY 603 | 0.0000000000 | $521,350 | $521,350 | $0.00 | | |
| | Total Tax Rate: | 10.1104125603 | | | | | |
| | | | | Taxes w/Current Exemptions: | $5,271.05 | | |
| | | | | Taxes w/o Exemptions: | $5,271.05 | | |
Improvement / Building
| Improvement #1: | RESIDENTIAL | State Code: | 11 | 2241.0 sqft | Value: | $446,350 |
| Exterior Wall: | PLYWOOD | Foundation: | SLAB FOUNDATION | | Heating/Cooling: | WARM & COOLED AIR | Number of Bathrooms: | 3 | | Number of Bedrooms: | 4 | Plumbing: | 11 | | Roof Covering: | COMP SHINGLE |   |   |
|
| | Type | Description | Class CD | Sub Class CD | Year Built | Area |
| | MA | Main Area | 3 | 35 | 1968 | 2241.0 |
| | SI1 | SITE IMPROVEMENT | 3 | 35 | 1968 | 2.0 |
| | UPFL | Upper Floor (included in main area) | 3 | 35 | 1968 | 720.0 |
| | ATG | Attached Garage | 3 | 35 | 1968 | 624.0 |
| | S1F | Single One Story Fireplace | 3 | 35 | 1968 | 1.0 |
| | CPC | COVERED CARPORT/PATIO | 3 | 35 | 1968 | 505.0 |
| | RPC | OPEN PORCH W/ROOF , CEILED | 3 | 35 | 1968 | 21.0 |
| | RESUTST | RESIDENTIAL UTILITY STORAGE | 3 | 35 | 1968 | 480.0 |
Sketch
Property Image
Land
| 1 | RES 1 | Converted: Residential | 0.3030 | 13200.00 | 0.00 | 0.00 | 1.00 | $75,000 | $0 |
Roll Value History
| 2026 | N/A | N/A | N/A | N/A | N/A |
| 2025 | $441,440 | $140,000 | $0 | $581,440 | $581,440 |
| 2024 | $513,300 | $75,000 | $0 | $588,300 | $588,300 |
| 2023 | $446,350 | $75,000 | $0 | $521,350 | $521,350 |
| 2022 | $343,340 | $75,000 | $0 | $418,340 | $418,340 |
| 2021 | $286,120 | $75,000 | $0 | $361,120 | $361,120 |
| 2020 | $204,370 | $75,000 | $0 | $279,370 | $279,370 |
| 2019 | $219,370 | $60,000 | $0 | $279,370 | $279,370 |
| 2018 | $208,920 | $60,000 | $0 | $268,920 | $268,920 |
| 2017 | $198,980 | $60,000 | $0 | $258,980 | $258,980 |
| 2016 | $189,500 | $60,000 | $0 | $249,500 | $99,800 |
| 2015 | $189,500 | $60,000 | $0 | $249,500 | $99,800 |
| 2014 | $189,500 | $60,000 | $0 | $249,500 | $179,500 |
| 2013 | $189,500 | $60,000 | $0 | $249,500 | $179,500 |
| 2012 | $189,500 | $60,000 | $0 | $0 | $0 |
| 2011 | $177,600 | $60,000 | $0 | $0 | $0 |
| 2010 | $177,600 | $60,000 | $0 | $0 | $0 |
| 2009 | $190,100 | $60,000 | $0 | $0 | $0 |
| 2008 | $159,700 | $30,000 | $0 | $0 | $0 |
| 2007 | $159,700 | $30,000 | $0 | $0 | $0 |
Deed and Sales History
| 1 | 09/18/2017 | SWD | STATUTORY WARRANTY DEED | ROUSE CHARLOTTE RAE | HERNANDEZ AARON & NORMA LOLITA | | | $275,000.00 | 133246 | 2017-07313 |
| 2 | 05/22/2017 | QCD | QUIT CLAIM DEED | ROUSE CHARLOTTE RAE LIFE ESTATE | ROUSE CHARLOTTE RAE | | | $0.00 | 132441 | 2017-03893 |
| 3 | 03/05/2014 | QCD | QUIT CLAIM DEED | ROUSE CHARLOTTE RAE LIFE ESTATE | | | | | 125524 | 2014-01542 |
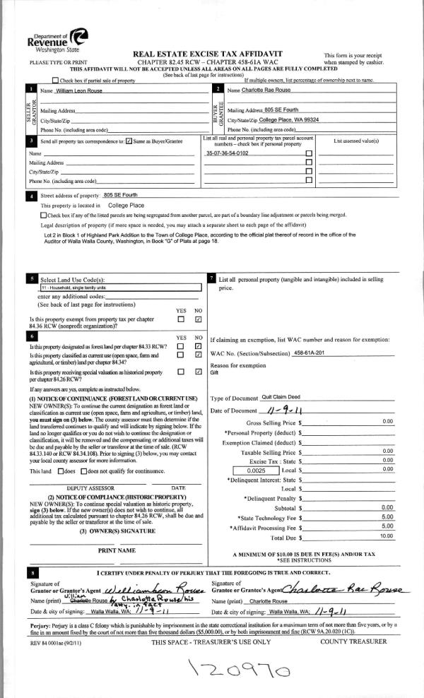
| 4 | 11/10/2011 | QCD | QUIT CLAIM DEED | ROUSE, WILLIAM L | ROUSE, CHARLOTTE RAE | | | $0.00 | 120970 | 2011-08878 |
| 5 | 11/27/1984 | WARRANTY D | WARRANTY DEED | | | | | $87,500.00 | 0 | 1478-408029 |
Payout Agreement
| No payout information available.. |