Property
Account |
| Property ID: | 33172 | Abbreviated Legal Description: | 14-6-35 TAX 11; TAX 20 LESS PTN TO WW CO FOR RD PURPOSES |
| Parcel Number: | 350614220012 | Agent Code: | |
| Type: | Real | | |
| Tax Area: | 311 - 250-4 | Land Use Code | 11 |
| Open Space: | N | DFL | N |
| Historic Property: | N | Remodel Property: | N |
| Multi-Family Redevelopment: | N | | |
| Township: | 6 | Section: | 14 |
| Range: | 35 |
Location |
| Address: | 4184 OLD MILTON HWY WA 99324 | Mapsco: | |
| Neighborhood: | G SFR Rural | Map ID: | |
| Neighborhood CD: | 214013 |
Owner |
| Name: | FARLEY CHRISTOPHER H & BETTY L | Owner ID: | 64274 |
| Mailing Address: | 4184 OLD MILTON HWY WALLA WALLA, WA 99362 | % Ownership: | 100.0000000000% |
| | | Exemptions: | |
Taxes and Assessment Details
Property Tax Information as of
02/21/2026
Click on "Statement Details" to expand or collapse a tax statement.
* Please enter a valid date ** Please enter a valid date *
Statement Details |
| | TOTAL: | $0.00 | $0.00 | $0.00 | $0.00 | $0.00 | $0.00 |
|
| | $0.00 | $0.00 | $0.00 | $0.00 | $0.00 | $0.00 |
Values
| (+) Improvement Homesite Value: | + | $0 | |
| (+) Improvement Non-Homesite Value: | + | $307,900 | |
| (+) Land Homesite Value: | + | $0 | |
| (+) Land Non-Homesite Value: | + | $113,950 | |
| (+) Curr Use (HS): | + | $0 | $0 |
| (+) Curr Use (NHS): | + | $0 | $0 |
| | | -------------------------- | |
| (=) Market Value: | = | $421,850 | |
| (–) Productivity Loss: | – | $0 | |
| | | -------------------------- | |
| (=) Subtotal: | = | $421,850 | |
| (+) Senior Appraised Value: | + | $0 | |
| (+) Non-Senior Appraised Value: | + | $421,850 | |
| | | -------------------------- | |
| (=) Total Appraised Value: | = | $421,850 | |
| (–) Senior Exemption Loss: | – | $0 | |
| (–) Exemption Loss: | – | $0 | |
| | | -------------------------- | |
| (=) Taxable Value: | = | $421,850 | |
Taxing Jurisdiction
| Owner: | FARLEY CHRISTOPHER H & BETTY L | | |
| % Ownership: | 100.0000000000% | | |
| Total Value: | $421,850 | | |
| Tax Area: | 311 - 250-4 |
| CERFD | CURRENT EXPENSE REFUND 010 | 0.0000000000 | $421,850 | $421,850 | $0.00 | | |
| CURREXP | CURRENT EXPENSE 010 | 1.0175366760 | $421,850 | $421,850 | $429.25 | | |
| HUMNSERV | HUMAN SERVICES 119 | 0.0250000000 | $421,850 | $421,850 | $10.55 | | |
| SLDREL | SOLDIERS RELIEF 121 | 0.0155990005 | $421,850 | $421,850 | $6.58 | | |
| EMERGSER | EMS 147 | 0.3792580840 | $421,850 | $421,850 | $159.99 | | |
| EMSRFD | EMS REFUND 147 | 0.0000000000 | $421,850 | $421,850 | $0.00 | | |
| FD4EXP | FD #4 EXPENSE 686 | 0.8836993059 | $421,850 | $421,850 | $372.79 | | |
| RLBRFD | RURAL LIBRARY REFUND 623 | 0.0000000000 | $421,850 | $421,850 | $0.00 | | |
| RURALLIB | RURAL LIBRARY 623 | 0.3710609029 | $421,850 | $421,850 | $156.53 | | |
| PORTRFD | PORT REFUND 640 | 0.0000000000 | $421,850 | $421,850 | $0.00 | | |
| PORTWWGEN | PORT OF WW 640 | 0.2460186015 | $421,850 | $421,850 | $103.78 | | |
| SD250BOND | SD #250 BOND 773 | 1.4560608159 | $421,850 | $421,850 | $614.24 | | |
| SD250GEN | SD #250 GENERAL 770 | 2.3880724087 | $421,850 | $421,850 | $1,007.41 | | |
| ST2 | STATE SCHOOL PART 2 600 | 0.8131451643 | $421,850 | $421,850 | $343.03 | | |
| STATESCHL | STATE SCHOOL 600 | 1.5158548041 | $421,850 | $421,850 | $639.46 | | |
| STREFUND | STATE REFUND LEVY 603 | 0.0000000000 | $421,850 | $421,850 | $0.00 | | |
| COROAD | COUNTY ROAD 115 | 1.6549953990 | $421,850 | $421,850 | $698.16 | | |
| CRPRD | COUNTY ROAD REFUND 115 | 0.0000000000 | $421,850 | $421,850 | $0.00 | | |
| | Total Tax Rate: | 10.7663011628 | | | | | |
| | | | | Taxes w/Current Exemptions: | $4,541.77 | | |
| | | | | Taxes w/o Exemptions: | $4,541.77 | | |
Improvement / Building
| Improvement #1: | RESIDENTIAL | State Code: | 11 | 1785.0 sqft | Value: | $307,900 |
| Exterior Wall: | SIDING | Heating/Cooling: | HEAT PUMP | | Number of Bathrooms: | 2 | Number of Bedrooms: | 3 | | Plumbing: | 11 | Roof Covering: | COMP SHINGLE |
|
| | Type | Description | Class CD | Sub Class CD | Year Built | Area |
| | MA | Main Area | 1 | 30 | 1940 | 1785.0 |
| | SI1 | SITE IMPROVEMENT | 1 | 30 | 1940 | 2.0 |
| | RPC | OPEN PORCH W/ROOF , CEILED | 1 | 30 | 1940 | 90.0 |
| | WOD | Wood Deck | 1 | 30 | 1940 | 42.0 |
| | RPO | OPEN PORCH W/ROOF | 1 | 30 | 1940 | 20.0 |
| | GUH | GUEST HOUSE | 1 | 30 | 2017 | 576.0 |
| | DTG | Detached Garage | 1 | 30 | 2017 | 832.0 |
Sketch
Property Image
Land
| 1 | RES 1 | Converted: Residential | 0.8000 | 34848.00 | 0.00 | 0.00 | 1.00 | $113,950 | $0 |
Roll Value History
| 2026 | N/A | N/A | N/A | N/A | N/A |
| 2025 | $318,150 | $113,950 | $0 | $432,100 | $432,100 |
| 2024 | $312,300 | $113,950 | $0 | $426,250 | $426,250 |
| 2023 | $307,900 | $113,950 | $0 | $421,850 | $421,850 |
| 2022 | $293,240 | $113,950 | $0 | $407,190 | $407,190 |
| 2021 | $225,570 | $113,950 | $0 | $339,520 | $339,520 |
| 2020 | $244,450 | $44,900 | $0 | $289,350 | $289,350 |
| 2019 | $244,450 | $44,900 | $0 | $289,350 | $289,350 |
| 2018 | $222,230 | $44,900 | $0 | $267,130 | $267,130 |
| 2017 | $178,090 | $44,900 | $0 | $222,990 | $222,990 |
| 2016 | $32,240 | $44,900 | $0 | $77,140 | $77,140 |
| 2015 | $32,240 | $44,900 | $0 | $77,140 | $77,140 |
| 2014 | $24,800 | $44,900 | $0 | $69,700 | $69,700 |
| 2013 | $24,800 | $44,900 | $0 | $69,700 | $69,700 |
| 2012 | $24,800 | $44,900 | $0 | $0 | $0 |
| 2011 | $24,800 | $44,900 | $0 | $0 | $0 |
| 2010 | $24,800 | $44,900 | $0 | $0 | $0 |
| 2009 | $88,800 | $45,000 | $0 | $0 | $0 |
| 2008 | $76,600 | $45,000 | $0 | $0 | $0 |
| 2007 | $76,600 | $45,000 | $0 | $0 | $0 |
Deed and Sales History
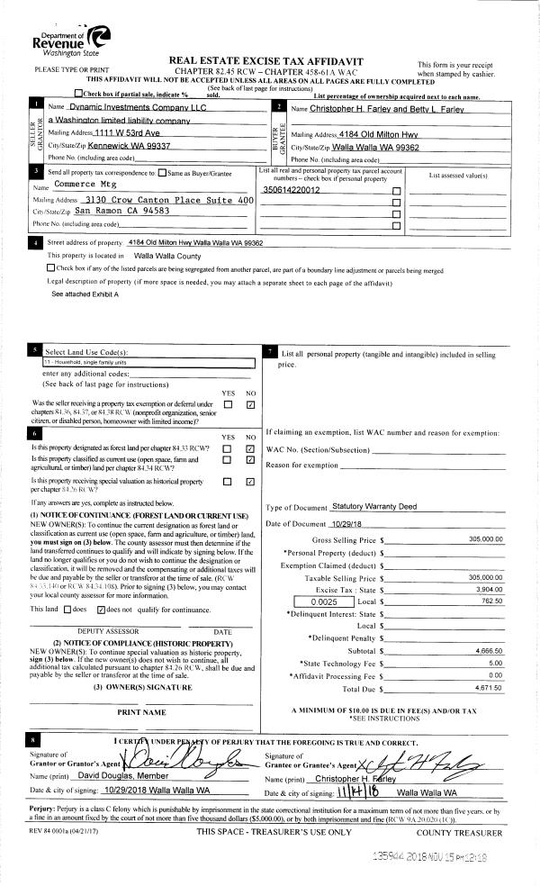
| 1 | 11/15/2018 | SWD | STATUTORY WARRANTY DEED | DYNAMIC INVESTMENTS COMPANY LLC | FARLEY CHRISTOPHER H & BETTY L | | | $305,000.00 | 135944 | 2018-09464 |
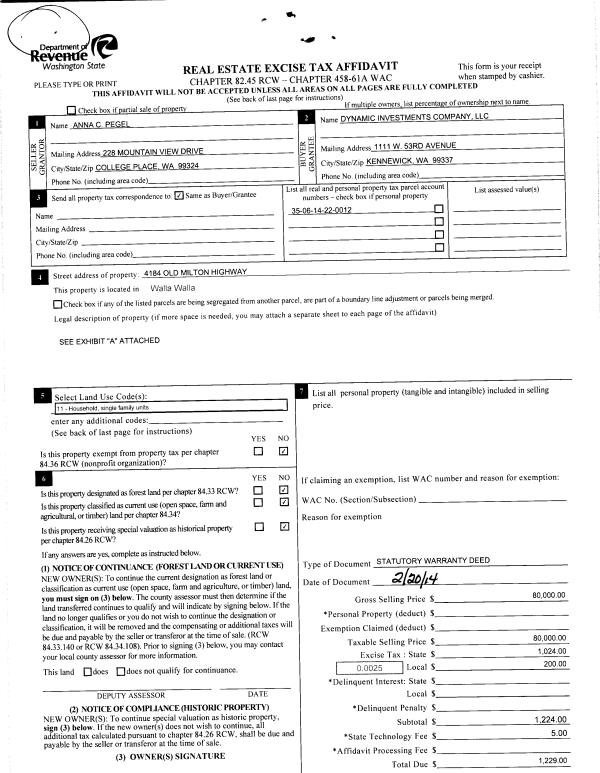
| 2 | 02/20/2014 | SWD | STATUTORY WARRANTY DEED | PEGEL DEAN E & ANNA C | DYNAMIC INVESTMENTS COMPANY LLC | | | $80,000.00 | 125455 | |
| 3 | 03/02/2007 | COMMUNITY | COMMUNITY PROPERTY AGREEMENT | PEGEL DEAN E & ANNA C | | | | | 0 | 2007-02416 |
| 4 | 05/24/2006 | QCD | QUIT CLAIM DEED | PEGEL, DEAN E & ANNA C | WALLA WALLA COUNTY | | | | 110326 | 2006-05973 |
| 5 | 10/18/1974 | WARRANTY D | WARRANTY DEED | | | | | $12,000.00 | 0 | 4803-39000 |
Payout Agreement
| No payout information available.. |