Property
Account |
| Property ID: | 33168 | Abbreviated Legal Description: | NIXONS TAX 18 |
| Parcel Number: | 360716550009 | Agent Code: | |
| Type: | Real | | |
| Tax Area: | 5 - OL-140 | Land Use Code | 11 |
| Open Space: | N | DFL | N |
| Historic Property: | N | Remodel Property: | N |
| Multi-Family Redevelopment: | N | | |
| Township: | 7 | Section: | 16 |
| Range: | 36 |
Location |
| Address: | 1415 BONSELLA ST WA 99362 | Mapsco: | |
| Neighborhood: | A-SFR | Map ID: | |
| Neighborhood CD: | 513011 |
Owner |
| Name: | MORAN DEAN A & VALERIE J | Owner ID: | 60254 |
| Mailing Address: | 1415 BONSELLA ST WALLA WALLA, WA 99362 | % Ownership: | 100.0000000000% |
| | | Exemptions: | |
Taxes and Assessment Details
Property Tax Information as of
02/21/2026
Click on "Statement Details" to expand or collapse a tax statement.
* Please enter a valid date ** Please enter a valid date *
Statement Details |
| | TOTAL: | $0.00 | $0.00 | $0.00 | $0.00 | $0.00 | $0.00 |
|
| | $0.00 | $0.00 | $0.00 | $0.00 | $0.00 | $0.00 |
Values
| (+) Improvement Homesite Value: | + | $0 | |
| (+) Improvement Non-Homesite Value: | + | $293,080 | |
| (+) Land Homesite Value: | + | $0 | |
| (+) Land Non-Homesite Value: | + | $62,990 | |
| (+) Curr Use (HS): | + | $0 | $0 |
| (+) Curr Use (NHS): | + | $0 | $0 |
| | | -------------------------- | |
| (=) Market Value: | = | $356,070 | |
| (–) Productivity Loss: | – | $0 | |
| | | -------------------------- | |
| (=) Subtotal: | = | $356,070 | |
| (+) Senior Appraised Value: | + | $0 | |
| (+) Non-Senior Appraised Value: | + | $356,070 | |
| | | -------------------------- | |
| (=) Total Appraised Value: | = | $356,070 | |
| (–) Senior Exemption Loss: | – | $0 | |
| (–) Exemption Loss: | – | $0 | |
| | | -------------------------- | |
| (=) Taxable Value: | = | $356,070 | |
Taxing Jurisdiction
| Owner: | MORAN DEAN A & VALERIE J | | |
| % Ownership: | 100.0000000000% | | |
| Total Value: | $356,070 | | |
| Tax Area: | 5 - OL-140 |
| CERFD | CURRENT EXPENSE REFUND 010 | 0.0000000000 | $356,070 | $356,070 | $0.00 | | |
| CURREXP | CURRENT EXPENSE 010 | 1.0175366760 | $356,070 | $356,070 | $362.31 | | |
| HUMNSERV | HUMAN SERVICES 119 | 0.0250000000 | $356,070 | $356,070 | $8.90 | | |
| SLDREL | SOLDIERS RELIEF 121 | 0.0155990005 | $356,070 | $356,070 | $5.55 | | |
| EMERGSER | EMS 147 | 0.3792580840 | $356,070 | $356,070 | $135.04 | | |
| EMSRFD | EMS REFUND 147 | 0.0000000000 | $356,070 | $356,070 | $0.00 | | |
| PORTRFD | PORT REFUND 640 | 0.0000000000 | $356,070 | $356,070 | $0.00 | | |
| PORTWWGEN | PORT OF WW 640 | 0.2460186015 | $356,070 | $356,070 | $87.60 | | |
| SD140BOND | SD #140 BOND 764 | 0.8342371393 | $356,070 | $356,070 | $297.05 | | |
| SD140GEN | SD #140 GENERAL 760 | 2.0646500647 | $356,070 | $356,070 | $735.16 | | |
| ST2 | STATE SCHOOL PART 2 600 | 0.8131451643 | $356,070 | $356,070 | $289.54 | | |
| STATESCHL | STATE SCHOOL 600 | 1.5158548041 | $356,070 | $356,070 | $539.75 | | |
| STREFUND | STATE REFUND LEVY 603 | 0.0000000000 | $356,070 | $356,070 | $0.00 | | |
| CWWBOND | C OF WW BOND 643 | 0.2760494372 | $356,070 | $356,070 | $98.29 | | |
| CWWGEN | CITY OF WW 631 | 1.6100204973 | $356,070 | $356,070 | $573.28 | | |
| CWWRFD | CITY OF WALLA WALLA REFUND 631 | 0.0000000000 | $356,070 | $356,070 | $0.00 | | |
| | Total Tax Rate: | 8.7973694689 | | | | | |
| | | | | Taxes w/Current Exemptions: | $3,132.47 | | |
| | | | | Taxes w/o Exemptions: | $3,132.47 | | |
Improvement / Building
| Improvement #1: | RESIDENTIAL | State Code: | 11 | 1733.0 sqft | Value: | $293,080 |
| Exterior Wall: | CONCRETE BLOCK | Foundation: | SLAB FOUNDATION | | Heating/Cooling: | HEAT PUMP | Number of Bathrooms: | 1 | | Number of Bedrooms: | 3 | Plumbing: | 7 | | Roof Covering: | COMP SHINGLE |   |   |
|
| | Type | Description | Class CD | Sub Class CD | Year Built | Area |
| | MA | Main Area | 1 | 30 | 1950 | 1733.0 |
| | SI1 | SITE IMPROVEMENT | 1 | 30 | 1950 | 1.5 |
| | S1F | Single One Story Fireplace | 1 | 30 | 1950 | 1.0 |
| | DTG | Detached Garage | 1 | 30 | 1950 | 483.0 |
| | CPC | COVERED CARPORT/PATIO | 1 | 30 | 1950 | 144.0 |
| | CPCD | CARPORT/DIRT FLOOR | 1 | 30 | 2006 | 400.0 |
| | RPC | OPEN PORCH W/ROOF , CEILED | 1 | 30 | 1950 | 25.0 |
Sketch
Property Image
Land
| 1 | RES 1 | Converted: Residential | 0.2502 | 10897.00 | 0.00 | 0.00 | 1.00 | $62,990 | $0 |
Roll Value History
| 2026 | N/A | N/A | N/A | N/A | N/A |
| 2025 | $311,890 | $100,690 | $0 | $412,580 | $412,580 |
| 2024 | $283,540 | $100,690 | $0 | $384,230 | $384,230 |
| 2023 | $293,080 | $62,990 | $0 | $356,070 | $356,070 |
| 2022 | $279,120 | $62,990 | $0 | $342,110 | $342,110 |
| 2021 | $199,370 | $62,990 | $0 | $262,360 | $262,360 |
| 2020 | $142,410 | $62,990 | $0 | $205,400 | $205,400 |
| 2019 | $142,410 | $62,990 | $0 | $205,400 | $205,400 |
| 2018 | $142,410 | $62,990 | $0 | $205,400 | $205,400 |
| 2017 | $164,760 | $40,700 | $0 | $205,460 | $205,460 |
| 2016 | $156,910 | $40,700 | $0 | $197,610 | $197,610 |
| 2015 | $149,440 | $40,700 | $0 | $190,140 | $190,140 |
| 2014 | $137,100 | $40,700 | $0 | $177,800 | $177,800 |
| 2013 | $137,100 | $40,700 | $0 | $177,800 | $177,800 |
| 2012 | $119,500 | $40,700 | $0 | $0 | $0 |
| 2011 | $119,500 | $40,700 | $0 | $0 | $0 |
| 2010 | $89,500 | $40,700 | $0 | $0 | $0 |
| 2009 | $104,000 | $40,700 | $0 | $0 | $0 |
| 2008 | $104,000 | $40,700 | $0 | $0 | $0 |
| 2007 | $104,000 | $40,700 | $0 | $0 | $0 |
Deed and Sales History
| 1 | 01/10/2017 | SWP | Special Warranty Deed | SECRETARY OF VETERANS AFFAIRS | MORAN DEAN A & VALERIE J | | | $163,000.00 | 131739 | 2017-00229 |
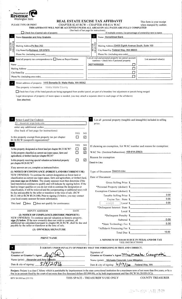
| 2 | 06/17/2016 | DFL | DEED IN LIEU OF FORECLOSURE | HOMESTREET BANK | SECRETARY OF VETERANS AFFAIRS | | | $0.00 | 130475 | 2016-04811 |
| 3 | 06/17/2016 | DFL | DEED IN LIEU OF FORECLOSURE | GRABOTIN ALEXANDER & AMY | HOMESTREET BANK | | | $0.00 | 130474 | 2016-04810 |
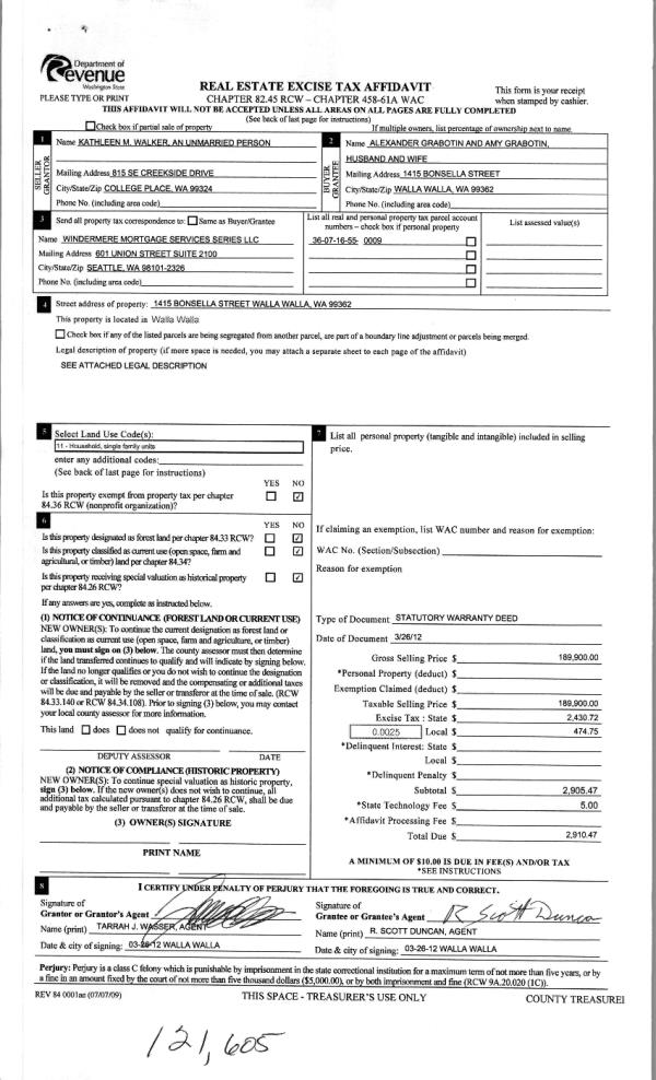
| 4 | 03/30/2012 | WARRANTY D | WARRANTY DEED | WALKER, KATHLEEN M | GRABOTIN, ALEXANDER & AMY | | | $189,900.00 | 121605 | 2012-02595 |
| 5 | 10/01/1991 | WARRANTY D | WARRANTY DEED | | | | | $64,900.00 | 0 | 1919-106839 |
Payout Agreement
| No payout information available.. |