Property
Account |
| Property ID: | 33140 | Abbreviated Legal Description: | 22-8-38 (PT LOT 1 OF LARGE LOT SURVEY) (SEE 380821410006 FOR RESTOF LOT 1) WLY PTN SW1/4SW1/4 SEC 22 |
| Parcel Number: | 380822330004 | Agent Code: | |
| Type: | Real | | |
| Tax Area: | 336 - 401-PR-H | Land Use Code | 83 |
| Open Space: | Y | DFL | N |
| Historic Property: | N | Remodel Property: | N |
| Multi-Family Redevelopment: | N | | |
| Township: | 8 | Section: | 22 |
| Range: | 38 |
Location |
| Address: | 1357 LEID RD WA 99361 | Mapsco: | |
| Neighborhood: | 0 Farm | Map ID: | |
| Neighborhood CD: | 5250 |
Owner |
| Name: | YAGER KAREN M | Owner ID: | 16186 |
| Mailing Address: | C/O 532 EAST ALDER TRUST 3225 MCLEOD DR STE 777 LAS VEGAS, NV 89121 | % Ownership: | 100.0000000000% |
| | | Exemptions: | |
Taxes and Assessment Details
Property Tax Information as of
02/21/2026
Click on "Statement Details" to expand or collapse a tax statement.
* Please enter a valid date ** Please enter a valid date *
Statement Details |
| | TOTAL: | $0.00 | $0.00 | $0.00 | $0.00 | $0.00 | $0.00 |
|
| | $0.00 | $0.00 | $0.00 | $0.00 | $0.00 | $0.00 |
Values
| (+) Improvement Homesite Value: | + | $0 | |
| (+) Improvement Non-Homesite Value: | + | $97,180 | |
| (+) Land Homesite Value: | + | $45,000 | |
| (+) Land Non-Homesite Value: | + | $0 | |
| (+) Curr Use (HS): | + | $0 | $0 |
| (+) Curr Use (NHS): | + | $34,200 | $10,700 |
| | | -------------------------- | |
| (=) Market Value: | = | $176,380 | |
| (–) Productivity Loss: | – | $23,500 | |
| | | -------------------------- | |
| (=) Subtotal: | = | $152,880 | |
| (+) Senior Appraised Value: | + | $0 | |
| (+) Non-Senior Appraised Value: | + | $152,880 | |
| | | -------------------------- | |
| (=) Total Appraised Value: | = | $152,880 | |
| (–) Senior Exemption Loss: | – | $0 | |
| (–) Exemption Loss: | – | $0 | |
| | | -------------------------- | |
| (=) Taxable Value: | = | $152,880 | |
Taxing Jurisdiction
| Owner: | YAGER KAREN M | | |
| % Ownership: | 100.0000000000% | | |
| Total Value: | $176,380 | | |
| Tax Area: | 336 - 401-PR-H |
| CERFD | CURRENT EXPENSE REFUND 010 | 0.0000000000 | $152,880 | $152,880 | $0.00 | | |
| CURREXP | CURRENT EXPENSE 010 | 0.9851088983 | $152,880 | $152,880 | $150.60 | | |
| HUMNSERV | HUMAN SERVICES 119 | 0.0250000000 | $152,880 | $152,880 | $3.82 | | |
| SLDREL | SOLDIERS RELIEF 121 | 0.0155990000 | $152,880 | $152,880 | $2.38 | | |
| EMERGSER | EMS 147 | 0.3676811629 | $152,880 | $152,880 | $56.21 | | |
| EMSRFD | EMS REFUND 147 | 0.0000000000 | $152,880 | $152,880 | $0.00 | | |
| COLHSCAP | COLUMBIA HOSP CAP PROJECT 648 | 0.3539533548 | $152,880 | $152,880 | $54.11 | | |
| COLHSPBOND | COLUMBIA HOSP BOND 647 | 0.3149465220 | $152,880 | $152,880 | $48.15 | | |
| COLHSPGEN | COLUMBIA HOSP REG 630 | 0.5000000000 | $152,880 | $152,880 | $76.44 | | |
| RLBRFD | RURAL LIBRARY REFUND 623 | 0.0000000000 | $152,880 | $152,880 | $0.00 | | |
| RURALLIB | RURAL LIBRARY 623 | 0.3601547782 | $152,880 | $152,880 | $55.06 | | |
| PORTRFD | PORT REFUND 640 | 0.0000000000 | $152,880 | $152,880 | $0.00 | | |
| PORTWWGEN | PORT OF WW 640 | 0.2344301070 | $152,880 | $152,880 | $35.84 | | |
| SD401BOND | SD #401 BOND 806 | 1.0575690765 | $152,880 | $152,880 | $161.68 | | |
| SD401GEN | SD #401 GENERAL 800 | 2.5000000000 | $152,880 | $152,880 | $382.20 | | |
| ST2 | STATE SCHOOL PART 2 600 | 0.8853714103 | $152,880 | $152,880 | $135.36 | | |
| STATESCHL | STATE SCHOOL 600 | 1.6424571473 | $152,880 | $152,880 | $251.10 | | |
| STREFUND | STATE REFUND LEVY 603 | 0.0000000000 | $152,880 | $152,880 | $0.00 | | |
| COROAD | COUNTY ROAD 115 | 1.6137667997 | $152,880 | $152,880 | $246.71 | | |
| CRPRD | COUNTY ROAD REFUND 115 | 0.0000000000 | $152,880 | $152,880 | $0.00 | | |
| | Total Tax Rate: | 10.8560382570 | | | | | |
| | | | | Taxes w/Current Exemptions: | $1,659.66 | | |
| | | | | Taxes w/o Exemptions: | $1,659.66 | | |
Improvement / Building
| Improvement #1: | RESIDENTIAL | State Code: | 83 | 1056.0 sqft | Value: | $97,180 |
| Exterior Wall: | METAL/STEEL | Heating/Cooling: | MINI-SPLIT HP SYSTEM | | Number of Bathrooms: | 2 | Number of Bedrooms: | 4 | | Plumbing: | 8 | Roof Covering: | GALVANIZED METAL |
|
| | Type | Description | Class CD | Sub Class CD | Year Built | Area |
| | MA | Main Area | 1 | 25 | 1930 | 1056.0 |
| | SI1 | SITE IMPROVEMENT | 1 | 25 | 1930 | 2.0 |
| | BASE | BASEMENT | 1 | 25 | 1930 | 1056.0 |
| | OPS | OPEN PORCH W/STEPS | 1 | 25 | 1930 | 25.0 |
| | ATG | Attached Garage | 1 | 25 | 1930 | 672.0 |
| | UTILITY | UTILITY BUILDING | 1 | 20 | 1930 | 2080.0 |
| | UTIL-STOR | UTILITY STORAGE | 1 | 20 | 1930 | 400.0 |
| | UTIL-STOR | UTILITY STORAGE | 1 | 20 | 1930 | 560.0 |
| | UTIL-STOR | UTILITY STORAGE | 1 | 20 | 1930 | 144.0 |
| | UTIL-STOR | UTILITY STORAGE | 1 | 20 | 1930 | 100.0 |
| | UTILITY | UTILITY BUILDING | 1 | 20 | 1930 | 2880.0 |
| | UTIL-STOR | UTILITY STORAGE | 1 | 20 | 1930 | 432.0 |
Sketch
Property Image
Land
| 1 | 45000-HS | Homesite 45000 | 1.0000 | 0.00 | 0.00 | 0.00 | 1.00 | $45,000 | $0 |
| 2 | 60-C3AN | Class 3 60 BU Annual | 19.0000 | 0.00 | 0.00 | 0.00 | 1.00 | $34,200 | $10,700 |
Roll Value History
| 2026 | N/A | N/A | N/A | N/A | N/A |
| 2025 | $97,180 | $79,200 | $10,700 | $152,880 | $152,880 |
| 2024 | $97,180 | $78,270 | $11,480 | $153,660 | $153,660 |
| 2023 | $97,180 | $57,360 | $11,860 | $134,040 | $134,040 |
| 2022 | $97,180 | $55,100 | $11,360 | $133,540 | $133,540 |
| 2021 | $97,180 | $53,270 | $11,320 | $133,500 | $133,500 |
| 2020 | $97,180 | $51,580 | $11,590 | $133,770 | $133,770 |
| 2019 | $74,310 | $50,800 | $12,160 | $86,470 | $86,470 |
| 2018 | $74,310 | $50,730 | $13,860 | $88,170 | $88,170 |
| 2017 | $64,400 | $50,540 | $14,070 | $78,470 | $78,470 |
| 2016 | $64,400 | $50,540 | $14,090 | $78,490 | $78,490 |
| 2015 | $64,400 | $50,540 | $12,630 | $77,030 | $77,030 |
| 2014 | $64,400 | $50,540 | $12,710 | $77,110 | $77,110 |
| 2013 | $64,400 | $49,200 | $10,100 | $74,500 | $74,500 |
| 2012 | $64,600 | $6,600 | $0 | $0 | $0 |
| 2011 | $63,900 | $6,300 | $0 | $0 | $0 |
| 2010 | $61,900 | $5,600 | $0 | $0 | $0 |
| 2009 | $64,100 | $5,800 | $0 | $0 | $0 |
| 2008 | $57,300 | $8,800 | $0 | $0 | $0 |
| 2007 | $57,300 | $8,800 | $0 | $0 | $0 |
Deed and Sales History
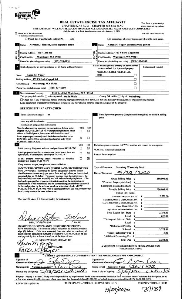
| 1 | 05/29/2020 | SWD | STATUTORY WARRANTY DEED | HANSEN NORMAN J | YAGER KAREN M | | 2-PARCELS | $250,000.00 | 139189 | 2020-04784 |
|   | |
| 2 | 10/17/2017 | QCD | QUIT CLAIM DEED | HANSEN NORMAN J & MELISSA J | HANSEN NORMAN J | | | $0.00 | 133456 | 2017-08416 |
| 3 | 06/09/2006 | QCD | QUIT CLAIM DEED | HANSEN HARVESTER INC | HANSEN NORMAN J & MELISSA J | | | $105,000.00 | 110454 | 2006-06719 |
|   | |
Payout Agreement
| No payout information available.. |