Property
Account |
| Property ID: | 33136 | Abbreviated Legal Description: | WALLA WALLA TAX 13 BLK H LESS & PLUS STRIPS |
| Parcel Number: | 360720772703 | Agent Code: | |
| Type: | Real | | |
| Tax Area: | 1 - OL-140-F | Land Use Code | 61 |
| Open Space: | N | DFL | N |
| Historic Property: | N | Remodel Property: | N |
| Multi-Family Redevelopment: | N | | |
| Township: | 7 | Section: | 20 |
| Range: | 36 |
Location |
| Address: | 3 S 1ST AVE WA 99362 | Mapsco: | |
| Neighborhood: | WW Downtown Core Area #2 | Map ID: | |
| Neighborhood CD: | 5342 |
Owner |
| Name: | W2 3 S 1ST AVE LLC | Owner ID: | 72058 |
| Mailing Address: | PO BOX 15289 SEATTLE, WA 98115 | % Ownership: | 100.0000000000% |
| | | Exemptions: | |
Taxes and Assessment Details
Property Tax Information as of
02/21/2026
Click on "Statement Details" to expand or collapse a tax statement.
* Please enter a valid date ** Please enter a valid date *
Statement Details |
| | TOTAL: | $0.00 | $0.00 | $0.00 | $0.00 | $0.00 | $0.00 |
|
| | $0.00 | $0.00 | $0.00 | $0.00 | $0.00 | $0.00 |
Values
| (+) Improvement Homesite Value: | + | $0 | |
| (+) Improvement Non-Homesite Value: | + | $191,500 | |
| (+) Land Homesite Value: | + | $0 | |
| (+) Land Non-Homesite Value: | + | $79,700 | |
| (+) Curr Use (HS): | + | $0 | $0 |
| (+) Curr Use (NHS): | + | $0 | $0 |
| | | -------------------------- | |
| (=) Market Value: | = | $271,200 | |
| (–) Productivity Loss: | – | $0 | |
| | | -------------------------- | |
| (=) Subtotal: | = | $271,200 | |
| (+) Senior Appraised Value: | + | $0 | |
| (+) Non-Senior Appraised Value: | + | $271,200 | |
| | | -------------------------- | |
| (=) Total Appraised Value: | = | $271,200 | |
| (–) Senior Exemption Loss: | – | $0 | |
| (–) Exemption Loss: | – | $0 | |
| | | -------------------------- | |
| (=) Taxable Value: | = | $271,200 | |
Taxing Jurisdiction
| Owner: | W2 3 S 1ST AVE LLC | | |
| % Ownership: | 100.0000000000% | | |
| Total Value: | $271,200 | | |
| Tax Area: | 1 - OL-140-F |
| CERFD | CURRENT EXPENSE REFUND 010 | 0.0000000000 | $271,200 | $271,200 | $0.00 | | |
| CURREXP | CURRENT EXPENSE 010 | 1.0175366760 | $271,200 | $271,200 | $275.96 | | |
| HUMNSERV | HUMAN SERVICES 119 | 0.0250000000 | $271,200 | $271,200 | $6.78 | | |
| SLDREL | SOLDIERS RELIEF 121 | 0.0155990005 | $271,200 | $271,200 | $4.23 | | |
| EMERGSER | EMS 147 | 0.3792580840 | $271,200 | $271,200 | $102.85 | | |
| EMSRFD | EMS REFUND 147 | 0.0000000000 | $271,200 | $271,200 | $0.00 | | |
| PORTRFD | PORT REFUND 640 | 0.0000000000 | $271,200 | $271,200 | $0.00 | | |
| PORTWWGEN | PORT OF WW 640 | 0.2460186015 | $271,200 | $271,200 | $66.72 | | |
| SD140BOND | SD #140 BOND 764 | 0.8342371393 | $271,200 | $271,200 | $226.25 | | |
| SD140GEN | SD #140 GENERAL 760 | 2.0646500647 | $271,200 | $271,200 | $559.93 | | |
| ST2 | STATE SCHOOL PART 2 600 | 0.8131451643 | $271,200 | $271,200 | $220.52 | | |
| STATESCHL | STATE SCHOOL 600 | 1.5158548041 | $271,200 | $271,200 | $411.10 | | |
| STREFUND | STATE REFUND LEVY 603 | 0.0000000000 | $271,200 | $271,200 | $0.00 | | |
| CWWBOND | C OF WW BOND 643 | 0.2760494372 | $271,200 | $271,200 | $74.86 | | |
| CWWGEN | CITY OF WW 631 | 1.6100204973 | $271,200 | $271,200 | $436.64 | | |
| CWWRFD | CITY OF WALLA WALLA REFUND 631 | 0.0000000000 | $271,200 | $271,200 | $0.00 | | |
| | Total Tax Rate: | 8.7973694689 | | | | | |
| | | | | Taxes w/Current Exemptions: | $2,385.84 | | |
| | | | | Taxes w/o Exemptions: | $2,385.84 | | |
Improvement / Building
| Improvement #1: | COMMERCIAL | State Code: | 61 | 1713.0 sqft | Value: | $191,500 |
| | Type | Description | Class CD | Sub Class CD | Year Built | Area |
| | MA | Main Area | D | * | 1910 | 1713.0 |
| | BASE | BASEMENT | D | * | 1910 | 1320.0 |
| | SI1 | SITE IMPROVEMENT | D | * | 1910 | 2.0 |
| | UTST | Utility Storage Shed | D | * | 1910 | 128.0 |
| | PRKSTLA | PARK STALL AVERAGE | D | * | 1910 | 3.0 |
Sketch
Property Image
Land
| 1 | COM 1 | Converted: Commercial | 0.1017 | 4428.00 | 0.00 | 0.00 | 1.00 | $79,700 | $0 |
Roll Value History
| 2026 | N/A | N/A | N/A | N/A | N/A |
| 2025 | $341,420 | $88,600 | $0 | $430,020 | $430,020 |
| 2024 | $209,800 | $88,600 | $0 | $298,400 | $298,400 |
| 2023 | $191,500 | $79,700 | $0 | $271,200 | $271,200 |
| 2022 | $136,000 | $79,700 | $0 | $215,700 | $215,700 |
| 2021 | $136,000 | $79,700 | $0 | $215,700 | $215,700 |
| 2020 | $136,000 | $79,700 | $0 | $215,700 | $215,700 |
| 2019 | $136,000 | $79,700 | $0 | $215,700 | $215,700 |
| 2018 | $136,000 | $79,700 | $0 | $215,700 | $215,700 |
| 2017 | $134,400 | $79,700 | $0 | $214,100 | $214,100 |
| 2016 | $134,400 | $79,700 | $0 | $214,100 | $214,100 |
| 2015 | $129,100 | $44,300 | $0 | $173,400 | $173,400 |
| 2014 | $129,100 | $44,300 | $0 | $173,400 | $173,400 |
| 2013 | $129,100 | $44,300 | $0 | $173,400 | $173,400 |
| 2012 | $77,500 | $53,100 | $0 | $0 | $0 |
| 2011 | $77,600 | $53,000 | $0 | $0 | $0 |
| 2010 | $77,600 | $53,000 | $0 | $0 | $0 |
| 2009 | $86,500 | $44,100 | $0 | $0 | $0 |
| 2008 | $86,500 | $44,100 | $0 | $0 | $0 |
| 2007 | $86,500 | $44,100 | $0 | $0 | $0 |
Deed and Sales History
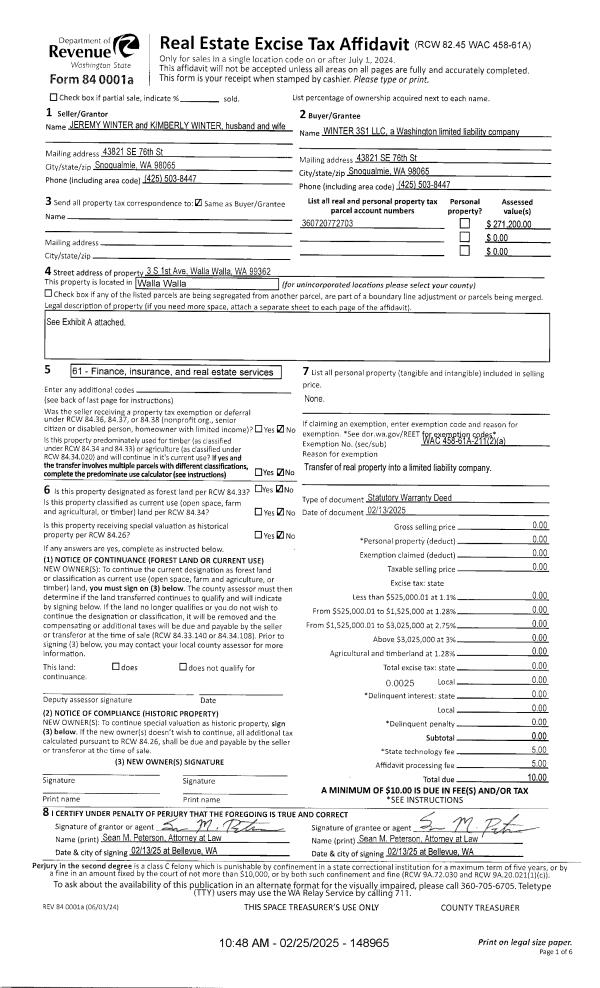
| 1 | 02/25/2025 | WARRANTY D | WARRANTY DEED | WINTER JEREMY & KIMBERLY | WINTER 3S1 LLC | | | | 148965 | 2025-00954 |
| 2 | 08/19/2024 | BARGAIN & | BARGAIN & SALE DEED | W2 3 S 1ST AVE LLC | WINTER JEREMY & KIMBERLY | | | $730,000.00 | 148050 | 2024-04607 |
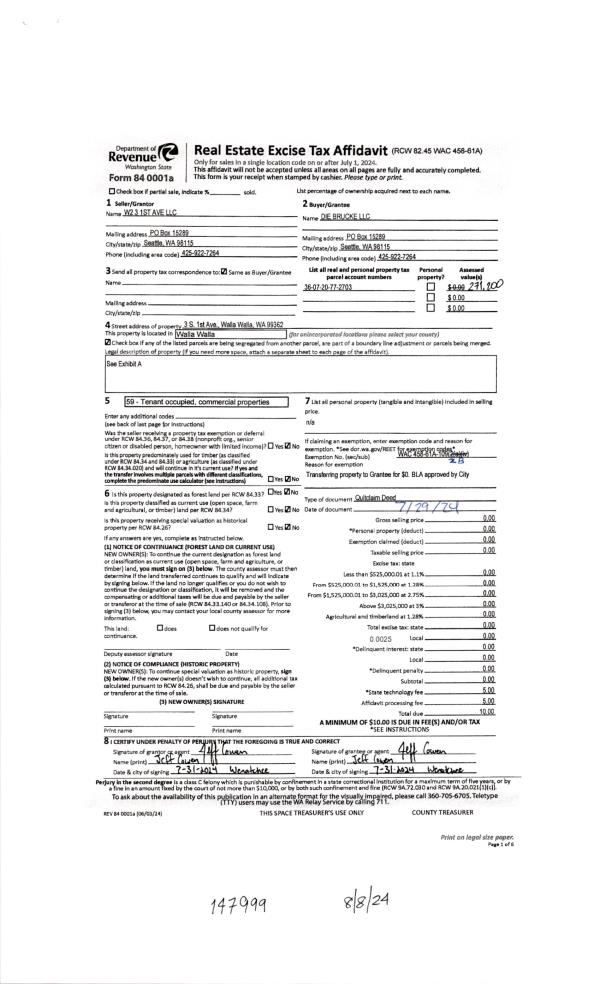
| 3 | 08/08/2024 | QCD | QUIT CLAIM DEED | W2 3 S 1ST AVE LLC | DIE BRUCKE LLC | | | | 147999 | 2024-04372 |
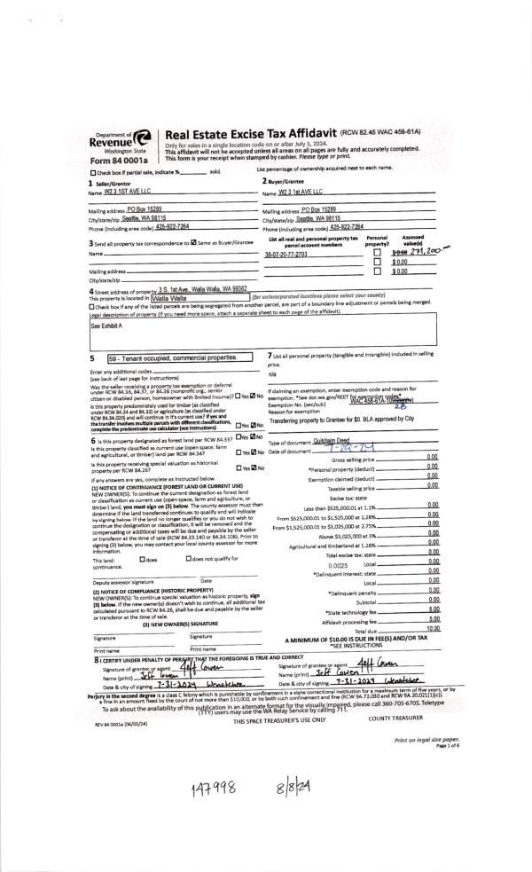
| 4 | 08/08/2024 | QCD | QUIT CLAIM DEED | W2 3 S 1ST AVE LLC | W2 3 S 1ST AVE LLC | | | | 147998 | 2024-04371 |
| 5 | 08/08/2024 | SURVEY | SURVEY | | | 14 | 193 | | 0 | 2024-04373 |
| 6 | 08/01/2022 | SWD | STATUTORY WARRANTY DEED | CAMBELL DEBBIE ET AL | W2 3 S 1ST AVE LLC | | | $285,000.00 | 144412 | 2022-06426 |
| 7 | 03/21/2012 | QCD | QUIT CLAIM DEED | KOKEN, BARBARA W ESTATE OF | KOKEN, THOMAS AMES UND 25% | | | | 121564 | 2012-02309 |
| 8 | 12/09/2004 | QCD | QUIT CLAIM DEED | SMITH, C WILLIAM & CAROL M | KOKEN, BARBARA | | | | 106367 | 2004-14120 |
| 9 | 01/01/1978 | WARRANTY D | WARRANTY DEED | | | | | $0.00 | 66715 | 2770-388092 |
Payout Agreement
| No payout information available.. |