Property
Account |
| Property ID: | 33123 | Abbreviated Legal Description: | 4-6-36 LOT 4 OF SHORT PLAT (PTN OF N1/2NW1/4) |
| Parcel Number: | 360604210027 | Agent Code: | |
| Type: | Real | | |
| Tax Area: | 5 - OL-140 | Land Use Code | 11 |
| Open Space: | N | DFL | N |
| Historic Property: | N | Remodel Property: | N |
| Multi-Family Redevelopment: | N | | |
| Township: | 6 | Section: | 4 |
| Range: | 36 |
Location |
| Address: | 311 EAGLE CREST DR WA 99362 | Mapsco: | |
| Neighborhood: | VG Res Rural/City Inf | Map ID: | |
| Neighborhood CD: | 615012 |
Owner |
| Name: | DOUGHERTY THOMAS M | Owner ID: | 54560 |
| Mailing Address: | MARSHA A THOMSON-DOUGHERTY 311 EAGLE CREST DR WALLA WALLA, WA 99362 | % Ownership: | 100.0000000000% |
| | | Exemptions: | |
Taxes and Assessment Details
Property Tax Information as of
02/21/2026
Click on "Statement Details" to expand or collapse a tax statement.
* Please enter a valid date ** Please enter a valid date *
Statement Details |
| | TOTAL: | $0.00 | $0.00 | $0.00 | $0.00 | $0.00 | $0.00 |
|
| | $0.00 | $0.00 | $0.00 | $0.00 | $0.00 | $0.00 |
Values
| (+) Improvement Homesite Value: | + | $0 | |
| (+) Improvement Non-Homesite Value: | + | $501,660 | |
| (+) Land Homesite Value: | + | $0 | |
| (+) Land Non-Homesite Value: | + | $120,000 | |
| (+) Curr Use (HS): | + | $0 | $0 |
| (+) Curr Use (NHS): | + | $0 | $0 |
| | | -------------------------- | |
| (=) Market Value: | = | $621,660 | |
| (–) Productivity Loss: | – | $0 | |
| | | -------------------------- | |
| (=) Subtotal: | = | $621,660 | |
| (+) Senior Appraised Value: | + | $0 | |
| (+) Non-Senior Appraised Value: | + | $621,660 | |
| | | -------------------------- | |
| (=) Total Appraised Value: | = | $621,660 | |
| (–) Senior Exemption Loss: | – | $0 | |
| (–) Exemption Loss: | – | $0 | |
| | | -------------------------- | |
| (=) Taxable Value: | = | $621,660 | |
Taxing Jurisdiction
| Owner: | DOUGHERTY THOMAS M | | |
| % Ownership: | 100.0000000000% | | |
| Total Value: | $621,660 | | |
| Tax Area: | 5 - OL-140 |
| CERFD | CURRENT EXPENSE REFUND 010 | 0.0000000000 | $621,660 | $621,660 | $0.00 | | |
| CURREXP | CURRENT EXPENSE 010 | 1.0175366760 | $621,660 | $621,660 | $632.56 | | |
| HUMNSERV | HUMAN SERVICES 119 | 0.0250000000 | $621,660 | $621,660 | $15.54 | | |
| SLDREL | SOLDIERS RELIEF 121 | 0.0155990005 | $621,660 | $621,660 | $9.70 | | |
| EMERGSER | EMS 147 | 0.3792580840 | $621,660 | $621,660 | $235.77 | | |
| EMSRFD | EMS REFUND 147 | 0.0000000000 | $621,660 | $621,660 | $0.00 | | |
| PORTRFD | PORT REFUND 640 | 0.0000000000 | $621,660 | $621,660 | $0.00 | | |
| PORTWWGEN | PORT OF WW 640 | 0.2460186015 | $621,660 | $621,660 | $152.94 | | |
| SD140BOND | SD #140 BOND 764 | 0.8342371393 | $621,660 | $621,660 | $518.61 | | |
| SD140GEN | SD #140 GENERAL 760 | 2.0646500647 | $621,660 | $621,660 | $1,283.51 | | |
| ST2 | STATE SCHOOL PART 2 600 | 0.8131451643 | $621,660 | $621,660 | $505.50 | | |
| STATESCHL | STATE SCHOOL 600 | 1.5158548041 | $621,660 | $621,660 | $942.35 | | |
| STREFUND | STATE REFUND LEVY 603 | 0.0000000000 | $621,660 | $621,660 | $0.00 | | |
| CWWBOND | C OF WW BOND 643 | 0.2760494372 | $621,660 | $621,660 | $171.61 | | |
| CWWGEN | CITY OF WW 631 | 1.6100204973 | $621,660 | $621,660 | $1,000.89 | | |
| CWWRFD | CITY OF WALLA WALLA REFUND 631 | 0.0000000000 | $621,660 | $621,660 | $0.00 | | |
| | Total Tax Rate: | 8.7973694689 | | | | | |
| | | | | Taxes w/Current Exemptions: | $5,468.98 | | |
| | | | | Taxes w/o Exemptions: | $5,468.98 | | |
Improvement / Building
| Improvement #1: | RESIDENTIAL | State Code: | 11 | 2505.0 sqft | Value: | $501,660 |
| Exterior Wall: | PLYWOOD | Heating/Cooling: | WARM & COOLED AIR | | Number of Bathrooms: | 3 | Number of Bedrooms: | 4 | | Plumbing: | 14 | Roof Covering: | COMP SHINGLE |
|
| | Type | Description | Class CD | Sub Class CD | Year Built | Area |
| | MA | Main Area | 1 | 40 | 2007 | 2505.0 |
| | GFP | GAS FIREPLACE | 1 | 40 | 0 | 1.0 |
| | RPC | OPEN PORCH W/ROOF , CEILED | 1 | 40 | 0 | 32.0 |
| | RPC | OPEN PORCH W/ROOF , CEILED | 1 | 40 | 0 | 209.0 |
| | SI1 | SITE IMPROVEMENT | 1 | 40 | 0 | 4.0 |
| | ATG | Attached Garage | 1 | 40 | 2007 | 1052.0 |
Sketch
Property Image
Land
| 1 | RES 1 | Converted: Residential | 0.3294 | 14348.00 | 0.00 | 0.00 | 1.00 | $120,000 | $0 |
Roll Value History
| 2026 | N/A | N/A | N/A | N/A | N/A |
| 2025 | $534,480 | $180,000 | $0 | $714,480 | $714,480 |
| 2024 | $526,740 | $120,000 | $0 | $646,740 | $646,740 |
| 2023 | $501,660 | $120,000 | $0 | $621,660 | $621,660 |
| 2022 | $456,050 | $95,000 | $0 | $551,050 | $551,050 |
| 2021 | $434,340 | $95,000 | $0 | $529,340 | $529,340 |
| 2020 | $321,730 | $95,000 | $0 | $416,730 | $416,730 |
| 2019 | $321,730 | $95,000 | $0 | $416,730 | $416,730 |
| 2018 | $347,370 | $50,000 | $0 | $397,370 | $397,370 |
| 2017 | $337,260 | $50,000 | $0 | $387,260 | $387,260 |
| 2016 | $321,200 | $50,000 | $0 | $371,200 | $371,200 |
| 2015 | $321,200 | $50,000 | $0 | $371,200 | $371,200 |
| 2014 | $305,900 | $50,000 | $0 | $355,900 | $355,900 |
| 2013 | $305,900 | $50,000 | $0 | $355,900 | $355,900 |
| 2012 | $227,000 | $55,000 | $0 | $0 | $0 |
| 2011 | $212,000 | $70,000 | $0 | $0 | $0 |
| 2010 | $198,600 | $70,000 | $0 | $0 | $0 |
| 2009 | $228,400 | $70,000 | $0 | $0 | $0 |
| 2008 | $109,300 | $94,000 | $0 | $0 | $0 |
| 2007 | $0 | $2,200 | $0 | $0 | $0 |
Deed and Sales History
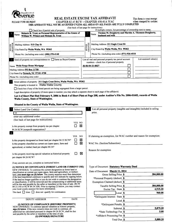
| 1 | 03/12/2014 | SWD | STATUTORY WARRANTY DEED | WILMOT WILLIAM W | DOUGHERTY THOMAS M | | | $384,000.00 | 125560 | 2014-01710 |
| 2 | 03/05/2012 | QCD | QUIT CLAIM DEED | WILMOT, WILLIAM W | WILMOT, WILLIAM W & | | | | 121490 | 2012-01866 |
| 3 | 09/20/2011 | QCD | QUIT CLAIM DEED | TROST, MELANIE R | WILMOT, WILLIAM W | | | $0.00 | 120719 | 2011-07341 |
| 4 | 09/20/2011 | WARRANTY D | WARRANTY DEED | RANDALL, TODD A & CASSANDRA L | WILMOT, WILLIAM W | | | $375,000.00 | 120718 | 2011-07340 |
| 5 | 12/28/2006 | WARRANTY D | WARRANTY DEED | TITUS CREEK DEVELOPMENT LLC | RANDALL, TODD A & CASSANDRA L | | | $85,000.00 | 111985 | 2006-15402 |
Payout Agreement
| No payout information available.. |