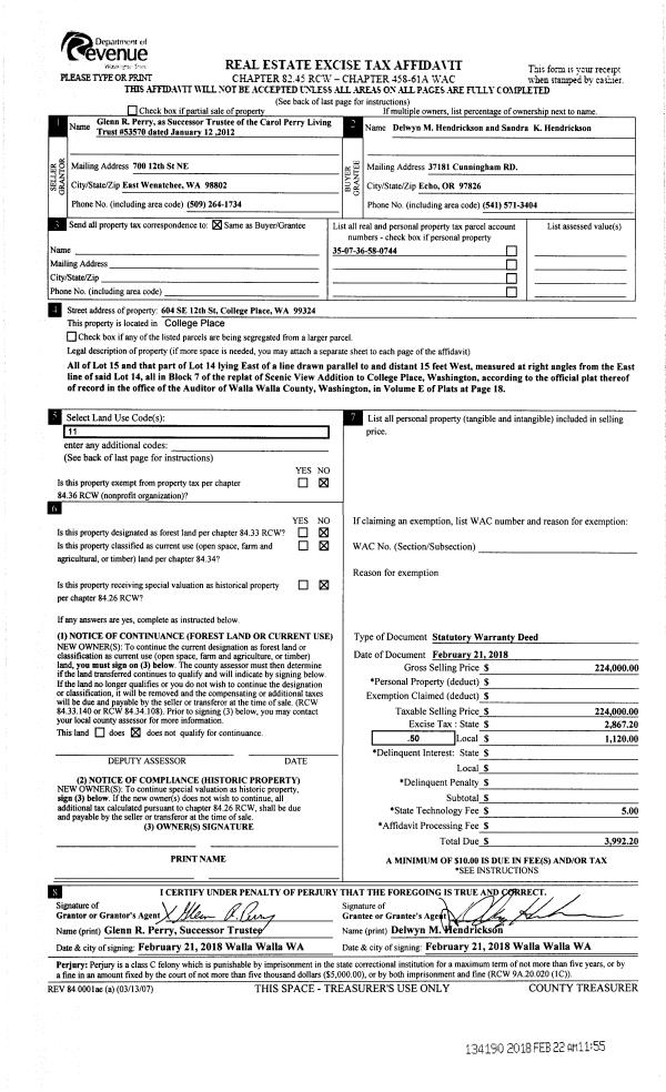
Property
Account |
| Property ID: | 33075 | Abbreviated Legal Description: | SCENIC VIEW LOT 15; E 15' OF LOT 14 BLOCK 7 |
| Parcel Number: | 350736580744 | Agent Code: | |
| Type: | Real | | |
| Tax Area: | 75 - CP 250 | Land Use Code | 11 |
| Open Space: | N | DFL | N |
| Historic Property: | N | Remodel Property: | N |
| Multi-Family Redevelopment: | N | | |
| Township: | 7 | Section: | 36 |
| Range: | 35 |
Location |
| Address: | 604 SE 12TH ST WA 99324 | Mapsco: | |
| Neighborhood: | A SFR | Map ID: | |
| Neighborhood CD: | 113011 |
Owner |
| Name: | HENDRICKSON DELWYN MARTIN & SANDRA KAY | Owner ID: | 51774 |
| Mailing Address: | 37181 CUNNINGHAM RD ECHO, OR 97826 | % Ownership: | 100.0000000000% |
| | | Exemptions: | |
Taxes and Assessment Details
Values
| (+) Improvement Homesite Value: | + | $0 | |
| (+) Improvement Non-Homesite Value: | + | $307,360 | |
| (+) Land Homesite Value: | + | $47,930 | |
| (+) Land Non-Homesite Value: | + | $0 | |
| (+) Curr Use (HS): | + | $0 | $0 |
| (+) Curr Use (NHS): | + | $0 | $0 |
| | | -------------------------- | |
| (=) Market Value: | = | $355,290 | |
| (–) Productivity Loss: | – | $0 | |
| | | -------------------------- | |
| (=) Subtotal: | = | $355,290 | |
| (+) Senior Appraised Value: | + | $0 | |
| (+) Non-Senior Appraised Value: | + | $355,290 | |
| | | -------------------------- | |
| (=) Total Appraised Value: | = | $355,290 | |
| (–) Senior Exemption Loss: | – | $0 | |
| (–) Exemption Loss: | – | $0 | |
| | | -------------------------- | |
| (=) Taxable Value: | = | $355,290 | |
Taxing Jurisdiction
| Owner: | HENDRICKSON DELWYN MARTIN & SANDRA KAY | | |
| % Ownership: | 100.0000000000% | | |
| Total Value: | $355,290 | | |
| Tax Area: | 75 - CP 250 |
| CERFD | CURRENT EXPENSE REFUND 010 | 0.0000000000 | $355,290 | $355,290 | $0.00 | | |
| CURREXP | CURRENT EXPENSE 010 | 1.0175366760 | $355,290 | $355,290 | $361.52 | | |
| HUMNSERV | HUMAN SERVICES 119 | 0.0250000000 | $355,290 | $355,290 | $8.88 | | |
| SLDREL | SOLDIERS RELIEF 121 | 0.0155990005 | $355,290 | $355,290 | $5.54 | | |
| COLLPLBOND | C OF CP BOND 644 | 0.4374241808 | $355,290 | $355,290 | $155.41 | | |
| COLLPLGEN | CITY OF CP 632 | 1.4453819216 | $355,290 | $355,290 | $513.53 | | |
| EMERGSER | EMS 147 | 0.3792580840 | $355,290 | $355,290 | $134.75 | | |
| EMSRFD | EMS REFUND 147 | 0.0000000000 | $355,290 | $355,290 | $0.00 | | |
| RURALLIB | RURAL LIBRARY 623 | 0.3710609029 | $355,290 | $355,290 | $131.83 | | |
| PORTRFD | PORT REFUND 640 | 0.0000000000 | $355,290 | $355,290 | $0.00 | | |
| PORTWWGEN | PORT OF WW 640 | 0.2460186015 | $355,290 | $355,290 | $87.41 | | |
| SD250BOND | SD #250 BOND 773 | 1.4560608159 | $355,290 | $355,290 | $517.32 | | |
| SD250GEN | SD #250 GENERAL 770 | 2.3880724087 | $355,290 | $355,290 | $848.46 | | |
| ST2 | STATE SCHOOL PART 2 600 | 0.8131451643 | $355,290 | $355,290 | $288.90 | | |
| STATESCHL | STATE SCHOOL 600 | 1.5158548041 | $355,290 | $355,290 | $538.57 | | |
| STREFUND | STATE REFUND LEVY 603 | 0.0000000000 | $355,290 | $355,290 | $0.00 | | |
| | Total Tax Rate: | 10.1104125603 | | | | | |
| | | | | Taxes w/Current Exemptions: | $3,592.12 | | |
| | | | | Taxes w/o Exemptions: | $3,592.12 | | |
Improvement / Building
| Improvement #1: | RESIDENTIAL | State Code: | 11 | 1931.0 sqft | Value: | $307,360 |
| Exterior Wall: | PLYWOOD | Heating/Cooling: | WARM & COOLED AIR | | Number of Bathrooms: | 2 | Number of Bedrooms: | 3 | | Plumbing: | 9 | Roof Covering: | COMP SHINGLE |
|
| | Type | Description | Class CD | Sub Class CD | Year Built | Area |
| | MA | Main Area | 1 | 30 | 1946 | 1931.0 |
| | SI1 | SITE IMPROVEMENT | 1 | 30 | 1946 | 1.5 |
| | ATG | Attached Garage | 1 | 30 | 1946 | 264.0 |
| | RPS | PORCH W/STEPS,ROOF | 1 | 30 | 1946 | 18.0 |
| | UTST | Utility Storage Shed | 1 | 30 | 1946 | 96.0 |
| | GFP | GAS FIREPLACE | 1 | 30 | 1946 | 1.0 |
Sketch
Property Image
Land
| 1 | RES 1 | Converted: Residential | 0.1630 | 7100.00 | 0.00 | 0.00 | 1.00 | $47,930 | $0 |
Roll Value History
| 2026 | N/A | N/A | N/A | N/A | N/A |
| 2025 | $276,630 | $71,000 | $0 | $347,630 | $347,630 |
| 2024 | $307,360 | $47,930 | $0 | $355,290 | $355,290 |
| 2023 | $307,360 | $47,930 | $0 | $355,290 | $355,290 |
| 2022 | $292,730 | $47,930 | $0 | $340,660 | $340,660 |
| 2021 | $234,180 | $47,930 | $0 | $282,110 | $282,110 |
| 2020 | $180,140 | $47,930 | $0 | $228,070 | $228,070 |
| 2019 | $185,470 | $42,600 | $0 | $228,070 | $228,070 |
| 2018 | $176,640 | $42,600 | $0 | $219,240 | $219,240 |
| 2017 | $176,640 | $42,600 | $0 | $219,240 | $78,480 |
| 2016 | $176,640 | $42,600 | $0 | $219,240 | $153,468 |
| 2015 | $176,640 | $42,600 | $0 | $219,240 | $153,468 |
| 2014 | $153,600 | $42,600 | $0 | $196,200 | $196,200 |
| 2013 | $153,600 | $42,600 | $0 | $196,200 | $196,200 |
| 2012 | $153,600 | $42,600 | $0 | $0 | $0 |
| 2011 | $128,000 | $42,600 | $0 | $0 | $0 |
| 2010 | $128,000 | $42,600 | $0 | $0 | $0 |
| 2009 | $147,000 | $42,600 | $0 | $0 | $0 |
| 2008 | $153,600 | $42,600 | $0 | $0 | $0 |
| 2007 | $153,600 | $42,600 | $0 | $0 | $0 |
Deed and Sales History
| 1 | 02/22/2018 | SWD | STATUTORY WARRANTY DEED | PERRY CAROL LIVING TRUST | HENDRICKSON DELWYN MARTIN & SANDRA KAY | | | $224,000.00 | 134190 | 2018-01468 |
| 2 | 05/16/2017 | TRUSTEES D | TRUSTEE'S DEED | FRISBY NORMAN TRUST #53571 | PERRY CAROL LIVING TRUST | | | $0.00 | 132405 | 2017-03717 |
| 3 | 02/14/2012 | QCD | QUIT CLAIM DEED | FRISBY, NORMAN & CAROL J | FRISBY, NORMAN TRUST #53571 | | | | 121394 | 2012-01278 |
| 4 | 02/14/2012 | QCD | QUIT CLAIM DEED | FRISBY, NORMAN & CAROL J | FRISBY, NORMAN TRUST #53571 | | | | 121393 | 2012-01277 |
| 5 | 01/20/2009 | QCD | QUIT CLAIM DEED | FRISBY, CAROL | FRISBY, NORMAN & CAROL J | | | | 116209 | 2009-00452 |
| 6 | 03/26/2008 | WARRANTY D | WARRANTY DEED | DEGRAVE JERRY A | PERRY CAROL S | | | | 114736 | 2008-02896 |
| 7 | 09/30/2003 | WARRANTY D | WARRANTY DEED | CONSECO FINANCE SERVICING CORP | DEGRAVE JERRY A | | | | 103140 | 2003-15013 |
| 8 | 07/10/2003 | WARRANTY D | WARRANTY DEED | FORSS RODNEY D & KAREN | CONSECO FINANCE SERVICING CORP | | | | 102523 | 2003-10228 |
| 9 | 09/19/1985 | WARRANTY D | WARRANTY DEED | | | | | $40,000.00 | 0 | 1248-007354 |
Payout Agreement
| No payout information available.. |