Property
Account |
| Property ID: | 33030 | Abbreviated Legal Description: | PLEASANT ST LOT 7 BLK 2; W 10' OF LOT 6 BLK 2 |
| Parcel Number: | 360727570206 | Agent Code: | |
| Type: | Real | | |
| Tax Area: | 105 - 140-F-4 | Land Use Code | 11 |
| Open Space: | N | DFL | N |
| Historic Property: | N | Remodel Property: | N |
| Multi-Family Redevelopment: | N | | |
| Township: | 7 | Section: | 27 |
| Range: | 36 |
Location |
| Address: | 1428 GARFIELD ST WA 99362 | Mapsco: | |
| Neighborhood: | A Res | Map ID: | |
| Neighborhood CD: | 613011 |
Owner |
| Name: | COLLINS BECKY JO | Owner ID: | 70893 |
| Mailing Address: | 1428 GARFIELD ST WALLA WALLA, WA 99362 | % Ownership: | 100.0000000000% |
| | | Exemptions: | SNR/DSBL |
Taxes and Assessment Details
Values
| (+) Improvement Homesite Value: | + | $269,460 | |
| (+) Improvement Non-Homesite Value: | + | $0 | |
| (+) Land Homesite Value: | + | $62,870 | |
| (+) Land Non-Homesite Value: | + | $0 | |
| (+) Curr Use (HS): | + | $0 | $0 |
| (+) Curr Use (NHS): | + | $0 | $0 |
| | | -------------------------- | |
| (=) Market Value: | = | $332,330 | |
| (–) Productivity Loss: | – | $0 | |
| | | -------------------------- | |
| (=) Subtotal: | = | $332,330 | |
| (+) Senior Appraised Value: | + | $266,210 | |
| (+) Non-Senior Appraised Value: | + | $0 | |
| | | -------------------------- | |
| (=) Total Appraised Value: | = | $266,210 | |
| (–) Senior Exemption Loss: | – | $159,726 | |
| (–) Exemption Loss: | – | $0 | |
| | | -------------------------- | |
| (=) Taxable Value: | = | $106,484 | |
Taxing Jurisdiction
| Owner: | COLLINS BECKY JO | | |
| % Ownership: | 100.0000000000% | | |
| Total Value: | $332,330 | | |
| Tax Area: | 105 - 140-F-4 |
| CERFD | CURRENT EXPENSE REFUND 010 | 0.0000000000 | $332,330 | $106,484 | $0.00 | | |
| CURREXP | CURRENT EXPENSE 010 | 1.0175366760 | $332,330 | $106,484 | $108.35 | | |
| HUMNSERV | HUMAN SERVICES 119 | 0.0250000000 | $332,330 | $106,484 | $2.66 | | |
| SLDREL | SOLDIERS RELIEF 121 | 0.0155990005 | $332,330 | $106,484 | $1.66 | | |
| EMERGSER | EMS 147 | 0.3792580840 | $332,330 | $106,484 | $40.38 | | |
| EMSRFD | EMS REFUND 147 | 0.0000000000 | $332,330 | $106,484 | $0.00 | | |
| FD4EXP | FD #4 EXPENSE 686 | 0.8836993059 | $332,330 | $106,484 | $94.10 | | |
| RLBRFD | RURAL LIBRARY REFUND 623 | 0.0000000000 | $332,330 | $106,484 | $0.00 | | |
| RURALLIB | RURAL LIBRARY 623 | 0.3710609029 | $332,330 | $106,484 | $39.51 | | |
| PORTRFD | PORT REFUND 640 | 0.0000000000 | $332,330 | $106,484 | $0.00 | | |
| PORTWWGEN | PORT OF WW 640 | 0.2460186015 | $332,330 | $106,484 | $26.20 | | |
| SD140BOND | SD #140 BOND 764 | 0.0000000000 | $332,330 | $0 | $0.00 | | |
| SD140GEN | SD #140 GENERAL 760 | 0.0000000000 | $332,330 | $0 | $0.00 | | |
| ST2 | STATE SCHOOL PART 2 600 | 0.0000000000 | $332,330 | $0 | $0.00 | | |
| STATESCHL | STATE SCHOOL 600 | 1.5158548041 | $332,330 | $106,484 | $161.41 | | |
| STREFUND | STATE REFUND LEVY 603 | 0.0000000000 | $332,330 | $106,484 | $0.00 | | |
| COROAD | COUNTY ROAD 115 | 1.6549953990 | $332,330 | $106,484 | $176.23 | | |
| CRPRD | COUNTY ROAD REFUND 115 | 0.0000000000 | $332,330 | $106,484 | $0.00 | | |
| | Total Tax Rate: | 6.1090227739 | | | | | |
| | | | | Taxes w/Current Exemptions: | $650.50 | | |
| | | | | Taxes w/o Exemptions: | $3,263.82 | | |
Improvement / Building
| Improvement #1: | RESIDENTIAL | State Code: | 11 | 1203.0 sqft | Value: | $269,460 |
| Exterior Wall: | SIDING | Heating/Cooling: | BASEBOARD ELECTRIC | | Number of Bathrooms: | 1 | Number of Bedrooms: | 2 | | Plumbing: | 6 | Roof Covering: | COMP SHINGLE |
|
| | Type | Description | Class CD | Sub Class CD | Year Built | Area |
| | MA | Main Area | 1 | 25 | 1945 | 1203.0 |
| | SI1 | SITE IMPROVEMENT | 1 | 25 | 1945 | 1.5 |
| | S1F | Single One Story Fireplace | 1 | 25 | 1945 | 1.0 |
| | HBAT | HALF BATH | 1 | 25 | 1945 | 1.0 |
| | WOD | Wood Deck | 1 | 25 | 1945 | 368.0 |
| | DTG | Detached Garage | 1 | 25 | 1945 | 1064.0 |
Sketch
Property Image
Land
| 1 | RES 1 | Converted: Residential | 0.1604 | 6985.00 | 0.00 | 0.00 | 1.00 | $62,870 | $0 |
Roll Value History
| 2026 | N/A | N/A | N/A | N/A | N/A |
| 2025 | $263,960 | $76,840 | $0 | $340,800 | $106,484 |
| 2024 | $269,460 | $62,870 | $0 | $332,330 | $106,484 |
| 2023 | $269,460 | $62,870 | $0 | $332,330 | $106,484 |
| 2022 | $215,570 | $50,640 | $0 | $266,210 | $92,112 |
| 2021 | $179,640 | $50,640 | $0 | $230,280 | $230,280 |
| 2020 | $163,310 | $50,640 | $0 | $213,950 | $213,950 |
| 2019 | $163,310 | $50,640 | $0 | $213,950 | $213,950 |
| 2018 | $102,980 | $41,900 | $0 | $144,880 | $144,880 |
| 2017 | $85,820 | $41,900 | $0 | $127,720 | $127,720 |
| 2016 | $81,730 | $41,900 | $0 | $123,630 | $123,630 |
| 2015 | $81,730 | $41,900 | $0 | $123,630 | $123,630 |
| 2014 | $74,300 | $41,900 | $0 | $116,200 | $116,200 |
| 2013 | $74,300 | $41,900 | $0 | $116,200 | $116,200 |
| 2012 | $53,900 | $41,900 | $0 | $0 | $0 |
| 2011 | $53,900 | $41,900 | $0 | $0 | $0 |
| 2010 | $70,800 | $41,900 | $0 | $0 | $0 |
| 2009 | $83,300 | $41,900 | $0 | $0 | $0 |
| 2008 | $83,300 | $41,900 | $0 | $0 | $0 |
| 2007 | $58,300 | $21,000 | $0 | $0 | $0 |
Deed and Sales History
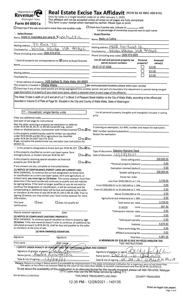
| 1 | 12/28/2021 | SWD | STATUTORY WARRANTY DEED | KUSCHATKA ANDRE G | COLLINS BECKY JO | | | $339,000.00 | 143135 | 2021-15075 |
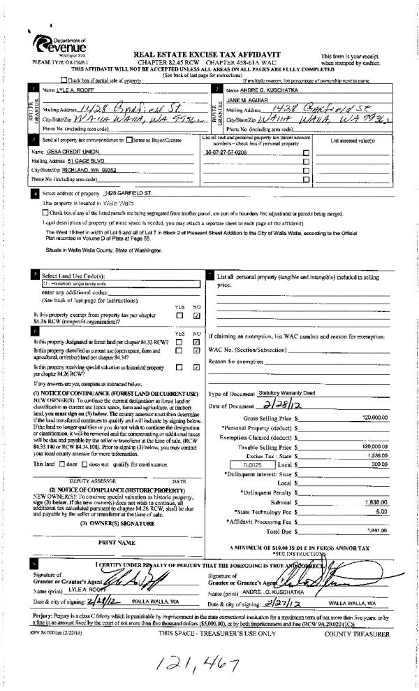
| 2 | 03/01/2012 | WARRANTY D | WARRANTY DEED | ROOFF, LYLE A | KUSCHATKA, ANDRE G | | | $120,000.00 | 121467 | 2012-01737 |
| 3 | 06/20/2006 | QCD | QUIT CLAIM DEED | ROOFF, JANET E | ROOFF, LYLE A | | | | 110548 | 2006-07221 |
| 4 | 11/17/1995 | WARRANTY D | WARRANTY DEED | | | | | $74,900.00 | 85133 | 2359-511232 |
Payout Agreement
| No payout information available.. |