Property
Account |
| Property ID: | 33023 | Abbreviated Legal Description: | SPRING HILL #1 PARCEL #3 |
| Parcel Number: | 360732650003 | Agent Code: | |
| Type: | Real | | |
| Tax Area: | 1 - OL-140-F | Land Use Code | 11 |
| Open Space: | N | DFL | N |
| Historic Property: | N | Remodel Property: | N |
| Multi-Family Redevelopment: | N | | |
| Township: | 7 | Section: | 32 |
| Range: | 36 |
Location |
| Address: | 1901 SUNSET DR WA 99362 | Mapsco: | |
| Neighborhood: | A Res | Map ID: | |
| Neighborhood CD: | 613011 |
Owner |
| Name: | FILAN TRISTAN L & MICHELLE D | Owner ID: | 63134 |
| Mailing Address: | 1901 SUNSET DR WALLA WALLA, WA 99362 | % Ownership: | 100.0000000000% |
| | | Exemptions: | |
Taxes and Assessment Details
Values
| (+) Improvement Homesite Value: | + | $0 | |
| (+) Improvement Non-Homesite Value: | + | $314,480 | |
| (+) Land Homesite Value: | + | $0 | |
| (+) Land Non-Homesite Value: | + | $69,300 | |
| (+) Curr Use (HS): | + | $0 | $0 |
| (+) Curr Use (NHS): | + | $0 | $0 |
| | | -------------------------- | |
| (=) Market Value: | = | $383,780 | |
| (–) Productivity Loss: | – | $0 | |
| | | -------------------------- | |
| (=) Subtotal: | = | $383,780 | |
| (+) Senior Appraised Value: | + | $0 | |
| (+) Non-Senior Appraised Value: | + | $383,780 | |
| | | -------------------------- | |
| (=) Total Appraised Value: | = | $383,780 | |
| (–) Senior Exemption Loss: | – | $0 | |
| (–) Exemption Loss: | – | $0 | |
| | | -------------------------- | |
| (=) Taxable Value: | = | $383,780 | |
Taxing Jurisdiction
| Owner: | FILAN TRISTAN L & MICHELLE D | | |
| % Ownership: | 100.0000000000% | | |
| Total Value: | $383,780 | | |
| Tax Area: | 1 - OL-140-F |
| CERFD | CURRENT EXPENSE REFUND 010 | 0.0000000000 | $383,780 | $383,780 | $0.00 | | |
| CURREXP | CURRENT EXPENSE 010 | 1.0175366760 | $383,780 | $383,780 | $390.51 | | |
| HUMNSERV | HUMAN SERVICES 119 | 0.0250000000 | $383,780 | $383,780 | $9.59 | | |
| SLDREL | SOLDIERS RELIEF 121 | 0.0155990005 | $383,780 | $383,780 | $5.99 | | |
| EMERGSER | EMS 147 | 0.3792580840 | $383,780 | $383,780 | $145.55 | | |
| EMSRFD | EMS REFUND 147 | 0.0000000000 | $383,780 | $383,780 | $0.00 | | |
| PORTRFD | PORT REFUND 640 | 0.0000000000 | $383,780 | $383,780 | $0.00 | | |
| PORTWWGEN | PORT OF WW 640 | 0.2460186015 | $383,780 | $383,780 | $94.42 | | |
| SD140BOND | SD #140 BOND 764 | 0.8342371393 | $383,780 | $383,780 | $320.16 | | |
| SD140GEN | SD #140 GENERAL 760 | 2.0646500647 | $383,780 | $383,780 | $792.37 | | |
| ST2 | STATE SCHOOL PART 2 600 | 0.8131451643 | $383,780 | $383,780 | $312.07 | | |
| STATESCHL | STATE SCHOOL 600 | 1.5158548041 | $383,780 | $383,780 | $581.75 | | |
| STREFUND | STATE REFUND LEVY 603 | 0.0000000000 | $383,780 | $383,780 | $0.00 | | |
| CWWBOND | C OF WW BOND 643 | 0.2760494372 | $383,780 | $383,780 | $105.94 | | |
| CWWGEN | CITY OF WW 631 | 1.6100204973 | $383,780 | $383,780 | $617.89 | | |
| CWWRFD | CITY OF WALLA WALLA REFUND 631 | 0.0000000000 | $383,780 | $383,780 | $0.00 | | |
| | Total Tax Rate: | 8.7973694689 | | | | | |
| | | | | Taxes w/Current Exemptions: | $3,376.24 | | |
| | | | | Taxes w/o Exemptions: | $3,376.24 | | |
Improvement / Building
| Improvement #1: | RESIDENTIAL | State Code: | 11 | 1648.0 sqft | Value: | $314,480 |
| Exterior Wall: | PLYWOOD | Heating/Cooling: | WARM & COOLED AIR | | Number of Bathrooms: | 2.5 | Number of Bedrooms: | 3 | | Plumbing: | 12 | Roof Covering: | COMP SHINGLE |
|
| | Type | Description | Class CD | Sub Class CD | Year Built | Area |
| | MA | Main Area | 1 | 35 | 1977 | 1648.0 |
| | SI1 | SITE IMPROVEMENT | 1 | 30 | 1977 | 3.0 |
| | ATG | Attached Garage | 1 | 30 | 1977 | 528.0 |
| | OPS | OPEN PORCH W/STEPS | 1 | 30 | 1977 | 20.0 |
Sketch
Property Image
Land
| 1 | RES 1 | Converted: Residential | 0.1768 | 7700.00 | 0.00 | 0.00 | 1.00 | $69,300 | $0 |
Roll Value History
| 2026 | N/A | N/A | N/A | N/A | N/A |
| 2025 | $294,620 | $125,000 | $0 | $419,620 | $419,620 |
| 2024 | $314,480 | $69,300 | $0 | $383,780 | $383,780 |
| 2023 | $314,480 | $69,300 | $0 | $383,780 | $383,780 |
| 2022 | $314,480 | $55,800 | $0 | $370,280 | $370,280 |
| 2021 | $251,580 | $55,800 | $0 | $307,380 | $307,380 |
| 2020 | $179,700 | $55,800 | $0 | $235,500 | $235,500 |
| 2019 | $179,700 | $55,800 | $0 | $235,500 | $235,500 |
| 2018 | $152,230 | $45,200 | $0 | $197,430 | $197,430 |
| 2017 | $138,390 | $45,200 | $0 | $183,590 | $183,590 |
| 2016 | $115,320 | $45,200 | $0 | $160,520 | $160,520 |
| 2015 | $109,830 | $45,200 | $0 | $155,030 | $155,030 |
| 2014 | $104,600 | $45,200 | $0 | $149,800 | $149,800 |
| 2013 | $104,600 | $45,200 | $0 | $149,800 | $149,800 |
| 2012 | $131,100 | $45,200 | $0 | $0 | $0 |
| 2011 | $131,100 | $45,200 | $0 | $0 | $0 |
| 2010 | $131,100 | $45,200 | $0 | $0 | $0 |
| 2009 | $150,700 | $45,200 | $0 | $0 | $0 |
| 2008 | $150,700 | $45,200 | $0 | $0 | $0 |
| 2007 | $130,000 | $22,700 | $0 | $0 | $0 |
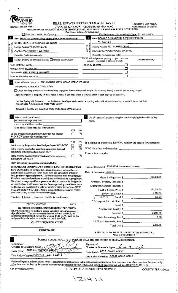
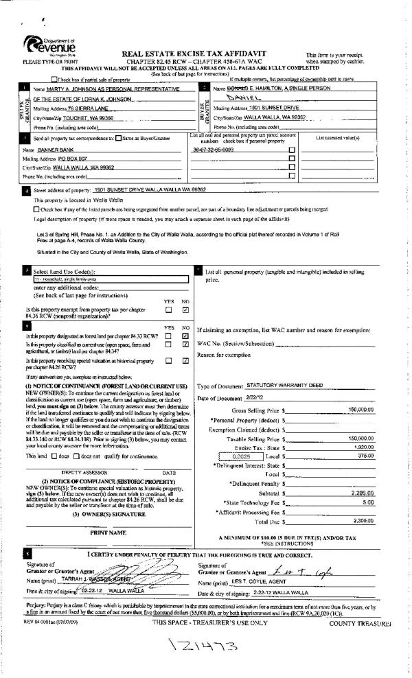
Deed and Sales History
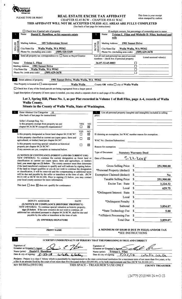
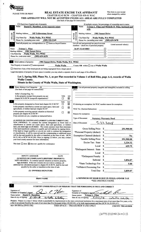
| 1 | 05/24/2018 | SWD | STATUTORY WARRANTY DEED | HAMILTON DANIEL E | FILAN TRISTAN L & MICHELLE D | | | $251,900.00 | 134779 | 2018-04117 |
| 2 | 03/02/2012 | WARRANTY D | WARRANTY DEED | JOHNSON, LORNA K ESTATE OF | HAMILTON, DANIEL E | | | $150,000.00 | 121473 | 2012-01773 |
| 3 | 11/01/1996 | WARRANTY D | WARRANTY DEED | | | | | $134,400.00 | 87156 | 2459-610987 |
Payout Agreement
| No payout information available.. |