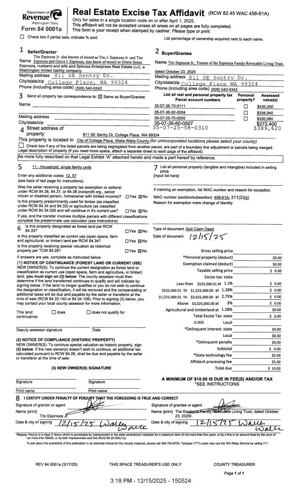
| 1 | 12/15/2025 | QCD | QUIT CLAIM DEED | SPINOZA ENTERPRISES REAL ESTATE LLC | ESPINOZA FAMILY REVOCABLE LIVING TRUST | | | | 150524 | 2025-07692 |
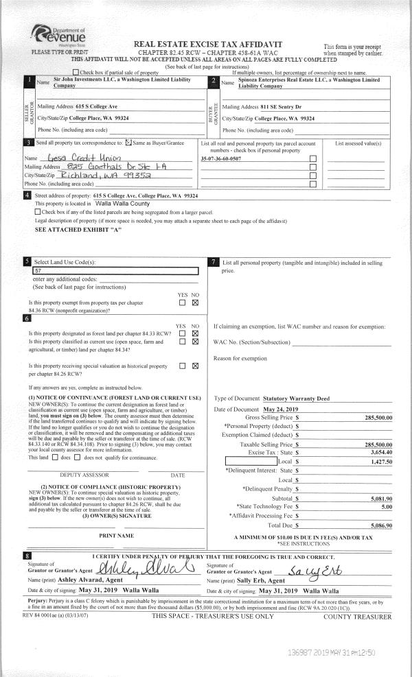
| 2 | 05/31/2019 | SWD | STATUTORY WARRANTY DEED | SIR JOHN INVESTMENTS LLC | SPINOZA ENTERPRISES REAL ESTATE LLC | | | $285,500.00 | 136987 | 2019-03731 |
| 3 | 08/28/2013 | WARRANTY D | WARRANTY DEED | SAUNDERS, AILEEN | DETWILER, CHARLES G & JENNIFER | | | $0.00 | 101167 | 2013-08885 |
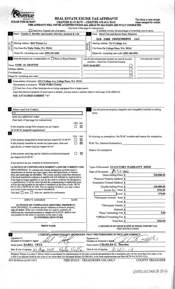
| 4 | 08/28/2013 | WARRANTY D | WARRANTY DEED | DETWILER, CHARLES G & JENNIFER | SIR JOHN INVESTMENTS LLC | | | $230,000.00 | 124553 | 2013-08886 |
| 5 | 12/26/2012 | WARRANTY D | WARRANTY DEED | ONEY, JASON BILL & JENNIFER SU | DETWILER, CHARLES G & JENNIFER | | | $0.00 | 123226 | 2012-11556 |
| 6 | 02/28/2012 | WARRANTY D | WARRANTY DEED | DETWILER, CHARLES G & JENNIFER | ONEY, JASON BILL & JENNIFER SU | | | $315,000.00 | 121455 | 2012-01674 |
| 7 | 01/08/2003 | WARRANTY D | WARRANTY DEED | SAUNDERS, AILEEN, V SAUNDERS | DETWILER, CHARLES G & JENNIFER | | | $180,000.00 | 101167 | 2003-00288 |
| 8 | 11/06/2002 | WARRANTY D | WARRANTY DEED | STEFFEN, DONALD R | SAUNDERS, AILEEN, V SAUNDERS | | | | 100763 | 2002-12662 |
| 9 | 10/14/1997 | WARRANTY D | WARRANTY DEED | | | | | $150,000.00 | 89124 | 2589-709914 |