| 1 | 07/01/2016 | SWD | STATUTORY WARRANTY DEED | REA FRANCIS | LARRY & SHIRLEY LIVING TRUST | | | $535,000.00 | 130542 | 2016-05085 |
| 2 | 02/29/2016 | COMMUNITY | COMMUNITY PROPERTY AGREEMENT | REA FRANCIS N & VICTORIA A PETERSON-REA | REA FRANCIS | | | | 0 | 2016-01481 |
| 3 | 02/23/2012 | WARRANTY D | WARRANTY DEED | BAKER BOYER NATIONAL BANK | REA, FRANCIS N & VICTORIA A~PE | | | $357,500.00 | 121437 | 2012-01553 |
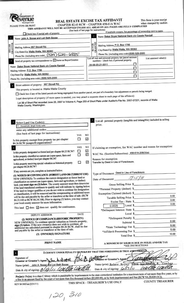
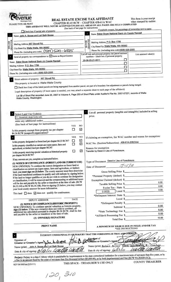
| 4 | 06/27/2011 | WARRANTY D | WARRANTY DEED | BOOSE, JOHN ALBERT & LORI BETH | BAKER BOYER NATIONAL BANK | | | | 120310 | 2011-04940 |
| 5 | 03/03/2009 | QCD | QUIT CLAIM DEED | BOOSE, JOHN ALBERT & LORI BETH | BOOSE, JOHN ALBERT & LORI BETH | | | | 116411 | 2009-02058 |
| 6 | 11/21/2007 | WARRANTY D | WARRANTY DEED | FRANKLIN, THADDEAUS ETAL | BOOSE, JOHN ALBERT & LORI BETH | | | $102,800.00 | 114133 | 2007-13443 |