Property
Account |
| Property ID: | 33010 | Abbreviated Legal Description: | COSTELLO ADDITION LOT 13 BLOCK 1 |
| Parcel Number: | 360733960113 | Agent Code: | |
| Type: | Real | | |
| Tax Area: | 1 - OL-140-F | Land Use Code | 11 |
| Open Space: | N | DFL | N |
| Historic Property: | N | Remodel Property: | N |
| Multi-Family Redevelopment: | N | | |
| Township: | 7 | Section: | 33 |
| Range: | 36 |
Location |
| Address: | 101 COSTELLO PL WA 99362 | Mapsco: | |
| Neighborhood: | VG Res Rural/City Inf | Map ID: | |
| Neighborhood CD: | 615012 |
Owner |
| Name: | THOMAS MICHAEL & HOLLY | Owner ID: | 65877 |
| Mailing Address: | 101 COSTELLO PLACE WALLA WALLA, WA 99362 | % Ownership: | 100.0000000000% |
| | | Exemptions: | |
Taxes and Assessment Details
Property Tax Information as of
02/21/2026
Click on "Statement Details" to expand or collapse a tax statement.
* Please enter a valid date ** Please enter a valid date *
Statement Details |
| | TOTAL: | $0.00 | $0.00 | $0.00 | $0.00 | $0.00 | $0.00 |
|
| | $0.00 | $0.00 | $0.00 | $0.00 | $0.00 | $0.00 |
Values
| (+) Improvement Homesite Value: | + | $0 | |
| (+) Improvement Non-Homesite Value: | + | $409,070 | |
| (+) Land Homesite Value: | + | $0 | |
| (+) Land Non-Homesite Value: | + | $120,000 | |
| (+) Curr Use (HS): | + | $0 | $0 |
| (+) Curr Use (NHS): | + | $0 | $0 |
| | | -------------------------- | |
| (=) Market Value: | = | $529,070 | |
| (–) Productivity Loss: | – | $0 | |
| | | -------------------------- | |
| (=) Subtotal: | = | $529,070 | |
| (+) Senior Appraised Value: | + | $0 | |
| (+) Non-Senior Appraised Value: | + | $529,070 | |
| | | -------------------------- | |
| (=) Total Appraised Value: | = | $529,070 | |
| (–) Senior Exemption Loss: | – | $0 | |
| (–) Exemption Loss: | – | $0 | |
| | | -------------------------- | |
| (=) Taxable Value: | = | $529,070 | |
Taxing Jurisdiction
| Owner: | THOMAS MICHAEL & HOLLY | | |
| % Ownership: | 100.0000000000% | | |
| Total Value: | $529,070 | | |
| Tax Area: | 1 - OL-140-F |
| CERFD | CURRENT EXPENSE REFUND 010 | 0.0000000000 | $529,070 | $529,070 | $0.00 | | |
| CURREXP | CURRENT EXPENSE 010 | 1.0175366760 | $529,070 | $529,070 | $538.35 | | |
| HUMNSERV | HUMAN SERVICES 119 | 0.0250000000 | $529,070 | $529,070 | $13.23 | | |
| SLDREL | SOLDIERS RELIEF 121 | 0.0155990005 | $529,070 | $529,070 | $8.25 | | |
| EMERGSER | EMS 147 | 0.3792580840 | $529,070 | $529,070 | $200.65 | | |
| EMSRFD | EMS REFUND 147 | 0.0000000000 | $529,070 | $529,070 | $0.00 | | |
| PORTRFD | PORT REFUND 640 | 0.0000000000 | $529,070 | $529,070 | $0.00 | | |
| PORTWWGEN | PORT OF WW 640 | 0.2460186015 | $529,070 | $529,070 | $130.16 | | |
| SD140BOND | SD #140 BOND 764 | 0.8342371393 | $529,070 | $529,070 | $441.37 | | |
| SD140GEN | SD #140 GENERAL 760 | 2.0646500647 | $529,070 | $529,070 | $1,092.34 | | |
| ST2 | STATE SCHOOL PART 2 600 | 0.8131451643 | $529,070 | $529,070 | $430.21 | | |
| STATESCHL | STATE SCHOOL 600 | 1.5158548041 | $529,070 | $529,070 | $801.99 | | |
| STREFUND | STATE REFUND LEVY 603 | 0.0000000000 | $529,070 | $529,070 | $0.00 | | |
| CWWBOND | C OF WW BOND 643 | 0.2760494372 | $529,070 | $529,070 | $146.05 | | |
| CWWGEN | CITY OF WW 631 | 1.6100204973 | $529,070 | $529,070 | $851.81 | | |
| CWWRFD | CITY OF WALLA WALLA REFUND 631 | 0.0000000000 | $529,070 | $529,070 | $0.00 | | |
| | Total Tax Rate: | 8.7973694689 | | | | | |
| | | | | Taxes w/Current Exemptions: | $4,654.41 | | |
| | | | | Taxes w/o Exemptions: | $4,654.41 | | |
Improvement / Building
| Improvement #1: | RESIDENTIAL | State Code: | 11 | 2086.0 sqft | Value: | $409,070 |
| Exterior Wall: | STUCCO | Heating/Cooling: | WARM & COOLED AIR | | Number of Bathrooms: | 2 | Number of Bedrooms: | 3 | | Plumbing: | 12 | Roof Covering: | COMP SHINGLE |
|
| | Type | Description | Class CD | Sub Class CD | Year Built | Area |
| | MA | Main Area | 4 | 40 | 2007 | 2086.0 |
| | GFP | GAS FIREPLACE | 4 | 40 | 2007 | 1.0 |
| | PRC | PORCH W STEPS, ROOF,CEILED | 4 | 40 | 2007 | 184.0 |
| | RPC | OPEN PORCH W/ROOF , CEILED | 4 | 40 | 2007 | 84.0 |
| | SI1 | SITE IMPROVEMENT | 4 | 40 | 2007 | 4.0 |
| | ATG | Attached Garage | 4 | 40 | 2007 | 560.0 |
| | UPFL | Upper Floor (included in main area) | 4 | 40 | 2007 | 426.0 |
Sketch
Property Image
Land
| 1 | RES 1 | Converted: Residential | 0.2615 | 11390.00 | 0.00 | 0.00 | 1.00 | $120,000 | $0 |
Roll Value History
| 2026 | N/A | N/A | N/A | N/A | N/A |
| 2025 | $397,790 | $160,000 | $0 | $557,790 | $557,790 |
| 2024 | $429,530 | $120,000 | $0 | $549,530 | $549,530 |
| 2023 | $409,070 | $120,000 | $0 | $529,070 | $529,070 |
| 2022 | $409,070 | $95,000 | $0 | $504,070 | $504,070 |
| 2021 | $303,020 | $95,000 | $0 | $398,020 | $398,020 |
| 2020 | $233,090 | $95,000 | $0 | $328,090 | $328,090 |
| 2019 | $233,090 | $95,000 | $0 | $328,090 | $328,090 |
| 2018 | $236,370 | $65,000 | $0 | $301,370 | $301,370 |
| 2017 | $225,110 | $65,000 | $0 | $290,110 | $290,110 |
| 2016 | $204,650 | $65,000 | $0 | $269,650 | $269,650 |
| 2015 | $204,650 | $65,000 | $0 | $269,650 | $269,650 |
| 2014 | $194,900 | $65,000 | $0 | $259,900 | $259,900 |
| 2013 | $194,900 | $65,000 | $0 | $259,900 | $259,900 |
| 2012 | $177,900 | $65,000 | $0 | $0 | $0 |
| 2011 | $177,900 | $65,000 | $0 | $0 | $0 |
| 2010 | $196,200 | $65,000 | $0 | $0 | $0 |
| 2009 | $225,200 | $65,000 | $0 | $0 | $0 |
| 2008 | $89,100 | $65,000 | $0 | $0 | $0 |
| 2007 | $0 | $4,200 | $0 | $0 | $0 |
Deed and Sales History
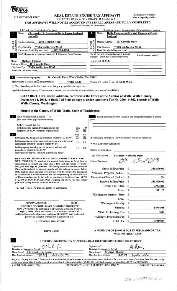
| 1 | 09/13/2019 | SWD | STATUTORY WARRANTY DEED | EAGON CHRISTOPHER R & KATIE | THOMAS MICHAEL & HOLLY | | | $388,500.00 | 137676 | 2019-07137 |
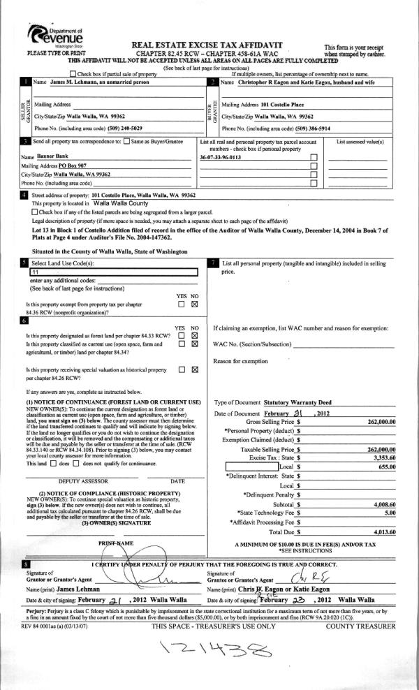
| 2 | 02/24/2012 | WARRANTY D | WARRANTY DEED | LEHMANN, JAMES M | EAGON, CHRISTOPHER R & KATIE | | | $262,000.00 | 121438 | 2012-01581 |
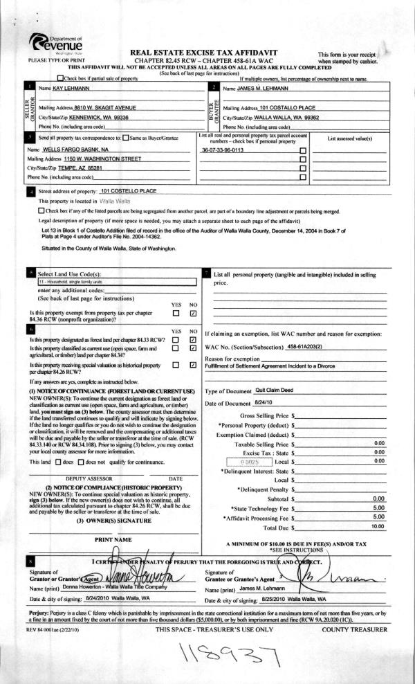
| 3 | 08/30/2010 | QCD | QUIT CLAIM DEED | LEHMANN, KAY | LEHMANN, JAMES M | | | | 118937 | 2010-06683 |
| 4 | 05/30/2007 | WARRANTY D | WARRANTY DEED | ASHMORE, ALAN H & SHERI R | LEHMANN, JAMES & KAY | | | $69,500.00 | 112935 | 2007-06157 |
Payout Agreement
| No payout information available.. |