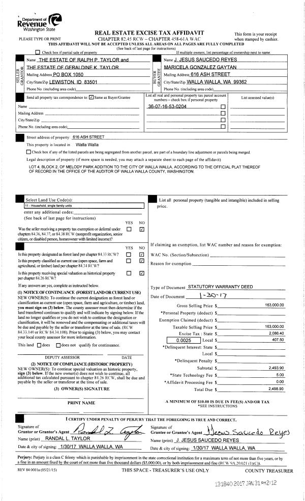
Property
Account |
| Property ID: | 32994 | Abbreviated Legal Description: | MELODY PARK LOT 4 BLK 2 |
| Parcel Number: | 360716530204 | Agent Code: | |
| Type: | Real | | |
| Tax Area: | 5 - OL-140 | Land Use Code | 11 |
| Open Space: | N | DFL | N |
| Historic Property: | N | Remodel Property: | N |
| Multi-Family Redevelopment: | N | | |
| Township: | 7 | Section: | 16 |
| Range: | 36 |
Location |
| Address: | 616 ASH ST WA 99362 | Mapsco: | |
| Neighborhood: | A-Superior SFR | Map ID: | |
| Neighborhood CD: | 513211 |
Owner |
| Name: | REYES J JESUS SAUCEDO | Owner ID: | 60363 |
| Mailing Address: | MARICELA GONZALEZ GAYTAN 616 ASH ST WALLA WALLA, WA 99362 | % Ownership: | 100.0000000000% |
| | | Exemptions: | |
Taxes and Assessment Details
Values
| (+) Improvement Homesite Value: | + | $0 | |
| (+) Improvement Non-Homesite Value: | + | $264,340 | |
| (+) Land Homesite Value: | + | $0 | |
| (+) Land Non-Homesite Value: | + | $41,250 | |
| (+) Curr Use (HS): | + | $0 | $0 |
| (+) Curr Use (NHS): | + | $0 | $0 |
| | | -------------------------- | |
| (=) Market Value: | = | $305,590 | |
| (–) Productivity Loss: | – | $0 | |
| | | -------------------------- | |
| (=) Subtotal: | = | $305,590 | |
| (+) Senior Appraised Value: | + | $0 | |
| (+) Non-Senior Appraised Value: | + | $305,590 | |
| | | -------------------------- | |
| (=) Total Appraised Value: | = | $305,590 | |
| (–) Senior Exemption Loss: | – | $0 | |
| (–) Exemption Loss: | – | $0 | |
| | | -------------------------- | |
| (=) Taxable Value: | = | $305,590 | |
Taxing Jurisdiction
| Owner: | REYES J JESUS SAUCEDO | | |
| % Ownership: | 100.0000000000% | | |
| Total Value: | $305,590 | | |
| Tax Area: | 5 - OL-140 |
| CERFD | CURRENT EXPENSE REFUND 010 | 0.0000000000 | $305,590 | $305,590 | $0.00 | | |
| CURREXP | CURRENT EXPENSE 010 | 1.0175366760 | $305,590 | $305,590 | $310.95 | | |
| HUMNSERV | HUMAN SERVICES 119 | 0.0250000000 | $305,590 | $305,590 | $7.64 | | |
| SLDREL | SOLDIERS RELIEF 121 | 0.0155990005 | $305,590 | $305,590 | $4.77 | | |
| EMERGSER | EMS 147 | 0.3792580840 | $305,590 | $305,590 | $115.90 | | |
| EMSRFD | EMS REFUND 147 | 0.0000000000 | $305,590 | $305,590 | $0.00 | | |
| PORTRFD | PORT REFUND 640 | 0.0000000000 | $305,590 | $305,590 | $0.00 | | |
| PORTWWGEN | PORT OF WW 640 | 0.2460186015 | $305,590 | $305,590 | $75.18 | | |
| SD140BOND | SD #140 BOND 764 | 0.8342371393 | $305,590 | $305,590 | $254.93 | | |
| SD140GEN | SD #140 GENERAL 760 | 2.0646500647 | $305,590 | $305,590 | $630.94 | | |
| ST2 | STATE SCHOOL PART 2 600 | 0.8131451643 | $305,590 | $305,590 | $248.49 | | |
| STATESCHL | STATE SCHOOL 600 | 1.5158548041 | $305,590 | $305,590 | $463.23 | | |
| STREFUND | STATE REFUND LEVY 603 | 0.0000000000 | $305,590 | $305,590 | $0.00 | | |
| CWWBOND | C OF WW BOND 643 | 0.2760494372 | $305,590 | $305,590 | $84.36 | | |
| CWWGEN | CITY OF WW 631 | 1.6100204973 | $305,590 | $305,590 | $492.01 | | |
| CWWRFD | CITY OF WALLA WALLA REFUND 631 | 0.0000000000 | $305,590 | $305,590 | $0.00 | | |
| | Total Tax Rate: | 8.7973694689 | | | | | |
| | | | | Taxes w/Current Exemptions: | $2,688.40 | | |
| | | | | Taxes w/o Exemptions: | $2,688.40 | | |
Improvement / Building
| Improvement #1: | RESIDENTIAL | State Code: | 11 | 960.0 sqft | Value: | $264,340 |
| Exterior Wall: | SIDING | Heating/Cooling: | WARM & COOLED AIR | | Number of Bathrooms: | 2 | Number of Bedrooms: | 3 | | Plumbing: | 9 | Roof Covering: | COMP SHINGLE |
|
| | Type | Description | Class CD | Sub Class CD | Year Built | Area |
| | MA | Main Area | 1 | 30 | 1958 | 960.0 |
| | SI1 | SITE IMPROVEMENT | 1 | 30 | 1958 | 1.5 |
| | BASE | BASEMENT | 1 | 30 | 1958 | 960.0 |
| | BPF | BASEMENT -PARTITIONED FINISH | 1 | 30 | 1958 | 720.0 |
| | DTG | Detached Garage | 1 | 30 | 1958 | 384.0 |
| | RPS | PORCH W/STEPS,ROOF | 1 | 30 | 1958 | 63.0 |
Sketch
Property Image
Land
| 1 | RES 1 | Converted: Residential | 0.1515 | 6600.00 | 0.00 | 0.00 | 1.00 | $41,250 | $0 |
Roll Value History
| 2026 | N/A | N/A | N/A | N/A | N/A |
| 2025 | $282,430 | $66,000 | $0 | $348,430 | $348,430 |
| 2024 | $282,430 | $66,000 | $0 | $348,430 | $348,430 |
| 2023 | $264,340 | $41,250 | $0 | $305,590 | $305,590 |
| 2022 | $240,310 | $41,250 | $0 | $281,560 | $281,560 |
| 2021 | $200,260 | $41,250 | $0 | $241,510 | $241,510 |
| 2020 | $143,040 | $41,250 | $0 | $184,290 | $184,290 |
| 2019 | $143,040 | $41,250 | $0 | $184,290 | $184,290 |
| 2018 | $119,200 | $41,250 | $0 | $160,450 | $160,450 |
| 2017 | $133,590 | $26,400 | $0 | $159,990 | $159,990 |
| 2016 | $111,320 | $26,400 | $0 | $137,720 | $137,720 |
| 2015 | $111,320 | $26,400 | $0 | $137,720 | $137,720 |
| 2014 | $119,700 | $26,400 | $0 | $146,100 | $146,100 |
| 2013 | $119,700 | $26,400 | $0 | $146,100 | $146,100 |
| 2012 | $119,700 | $26,400 | $0 | $0 | $0 |
| 2011 | $106,400 | $26,400 | $0 | $0 | $0 |
| 2010 | $100,100 | $26,400 | $0 | $0 | $0 |
| 2009 | $114,100 | $26,400 | $0 | $0 | $0 |
| 2008 | $101,300 | $26,400 | $0 | $0 | $0 |
| 2007 | $101,300 | $26,400 | $0 | $0 | $0 |
Deed and Sales History
| 1 | 01/31/2017 | SWD | STATUTORY WARRANTY DEED | TAYLOR RALPH P & GERALDINE K ESTATE OF | REYES J JESUS SAUCEDO | | | $163,000.00 | 131840 | 2017-00836 |
| 2 | 08/18/1993 | WARRANTY D | WARRANTY DEED | | | | | $60,000.00 | 79777 | 2099-308516 |
Payout Agreement
| No payout information available.. |