Property
Account |
| Property ID: | 32948 | Abbreviated Legal Description: | ENNIS ANNEX (LOT B OF S/P) ELY 55' OF WLY 146' OF NLY 104' OF LOT 2BLK 5 |
| Parcel Number: | 360721550524 | Agent Code: | |
| Type: | Real | | |
| Tax Area: | 1 - OL-140-F | Land Use Code | 11 |
| Open Space: | N | DFL | N |
| Historic Property: | N | Remodel Property: | N |
| Multi-Family Redevelopment: | N | | |
| Township: | 7 | Section: | 21 |
| Range: | 36 |
Location |
| Address: | 1612 EVERGREEN ST WA 99362 | Mapsco: | |
| Neighborhood: | A-SFR | Map ID: | |
| Neighborhood CD: | 513011 |
Owner |
| Name: | SMITH DOUGLAS S & SOYOKO | Owner ID: | 2666 |
| Mailing Address: | 1467 S 2ND AVE WALLA WALLA, WA 99362 | % Ownership: | 100.0000000000% |
| | | Exemptions: | |
Taxes and Assessment Details
Property Tax Information as of
02/21/2026
Click on "Statement Details" to expand or collapse a tax statement.
* Please enter a valid date ** Please enter a valid date *
Statement Details |
| | TOTAL: | $0.00 | $0.00 | $0.00 | $0.00 | $0.00 | $0.00 |
|
| | $0.00 | $0.00 | $0.00 | $0.00 | $0.00 | $0.00 |
Values
| (+) Improvement Homesite Value: | + | $0 | |
| (+) Improvement Non-Homesite Value: | + | $243,750 | |
| (+) Land Homesite Value: | + | $0 | |
| (+) Land Non-Homesite Value: | + | $35,960 | |
| (+) Curr Use (HS): | + | $0 | $0 |
| (+) Curr Use (NHS): | + | $0 | $0 |
| | | -------------------------- | |
| (=) Market Value: | = | $279,710 | |
| (–) Productivity Loss: | – | $0 | |
| | | -------------------------- | |
| (=) Subtotal: | = | $279,710 | |
| (+) Senior Appraised Value: | + | $0 | |
| (+) Non-Senior Appraised Value: | + | $279,710 | |
| | | -------------------------- | |
| (=) Total Appraised Value: | = | $279,710 | |
| (–) Senior Exemption Loss: | – | $0 | |
| (–) Exemption Loss: | – | $0 | |
| | | -------------------------- | |
| (=) Taxable Value: | = | $279,710 | |
Taxing Jurisdiction
| Owner: | SMITH DOUGLAS S & SOYOKO | | |
| % Ownership: | 100.0000000000% | | |
| Total Value: | $279,710 | | |
| Tax Area: | 1 - OL-140-F |
| CERFD | CURRENT EXPENSE REFUND 010 | 0.0000000000 | $279,710 | $279,710 | $0.00 | | |
| CURREXP | CURRENT EXPENSE 010 | 1.0175366760 | $279,710 | $279,710 | $284.62 | | |
| HUMNSERV | HUMAN SERVICES 119 | 0.0250000000 | $279,710 | $279,710 | $6.99 | | |
| SLDREL | SOLDIERS RELIEF 121 | 0.0155990005 | $279,710 | $279,710 | $4.36 | | |
| EMERGSER | EMS 147 | 0.3792580840 | $279,710 | $279,710 | $106.08 | | |
| EMSRFD | EMS REFUND 147 | 0.0000000000 | $279,710 | $279,710 | $0.00 | | |
| PORTRFD | PORT REFUND 640 | 0.0000000000 | $279,710 | $279,710 | $0.00 | | |
| PORTWWGEN | PORT OF WW 640 | 0.2460186015 | $279,710 | $279,710 | $68.81 | | |
| SD140BOND | SD #140 BOND 764 | 0.8342371393 | $279,710 | $279,710 | $233.34 | | |
| SD140GEN | SD #140 GENERAL 760 | 2.0646500647 | $279,710 | $279,710 | $577.50 | | |
| ST2 | STATE SCHOOL PART 2 600 | 0.8131451643 | $279,710 | $279,710 | $227.44 | | |
| STATESCHL | STATE SCHOOL 600 | 1.5158548041 | $279,710 | $279,710 | $424.00 | | |
| STREFUND | STATE REFUND LEVY 603 | 0.0000000000 | $279,710 | $279,710 | $0.00 | | |
| CWWBOND | C OF WW BOND 643 | 0.2760494372 | $279,710 | $279,710 | $77.21 | | |
| CWWGEN | CITY OF WW 631 | 1.6100204973 | $279,710 | $279,710 | $450.34 | | |
| CWWRFD | CITY OF WALLA WALLA REFUND 631 | 0.0000000000 | $279,710 | $279,710 | $0.00 | | |
| | Total Tax Rate: | 8.7973694689 | | | | | |
| | | | | Taxes w/Current Exemptions: | $2,460.69 | | |
| | | | | Taxes w/o Exemptions: | $2,460.69 | | |
Improvement / Building
| Improvement #1: | RESIDENTIAL | State Code: | 11 | 1232.0 sqft | Value: | $243,750 |
| Exterior Wall: | PLYWOOD | Heating/Cooling: | REV-HEAT-PUMP-W/DUCT | | Number of Bathrooms: | 2 | Number of Bedrooms: | 3 | | Plumbing: | 9 | Roof Covering: | COMP SHINGLE |
|
| | Type | Description | Class CD | Sub Class CD | Year Built | Area |
| | MA | Main Area | 1 | 30 | 1985 | 1232.0 |
| | SI1 | SITE IMPROVEMENT | 1 | 30 | 1985 | 1.5 |
| | DTG | Detached Garage | 1 | 30 | 1985 | 400.0 |
| | WOD | Wood Deck | 1 | 30 | 1985 | 72.0 |
| | CPC | COVERED CARPORT/PATIO | 1 | 30 | 1985 | 154.0 |
| | CPC | COVERED CARPORT/PATIO | 1 | 30 | 1985 | 322.0 |
Sketch
Property Image
Land
| 1 | RES 1 | Converted: Residential | 0.1321 | 5754.00 | 0.00 | 0.00 | 1.00 | $35,960 | $0 |
Roll Value History
| 2026 | N/A | N/A | N/A | N/A | N/A |
| 2025 | $248,710 | $57,540 | $0 | $306,250 | $306,250 |
| 2024 | $216,270 | $57,540 | $0 | $273,810 | $273,810 |
| 2023 | $243,750 | $35,960 | $0 | $279,710 | $279,710 |
| 2022 | $243,750 | $35,960 | $0 | $279,710 | $279,710 |
| 2021 | $195,000 | $35,960 | $0 | $230,960 | $230,960 |
| 2020 | $130,000 | $35,960 | $0 | $165,960 | $165,960 |
| 2019 | $130,000 | $35,960 | $0 | $165,960 | $165,960 |
| 2018 | $130,000 | $35,960 | $0 | $165,960 | $165,960 |
| 2017 | $132,520 | $23,000 | $0 | $155,520 | $155,520 |
| 2016 | $126,210 | $23,000 | $0 | $149,210 | $149,210 |
| 2015 | $126,210 | $23,000 | $0 | $149,210 | $149,210 |
| 2014 | $120,200 | $23,000 | $0 | $143,200 | $143,200 |
| 2013 | $120,200 | $23,000 | $0 | $143,200 | $143,200 |
| 2012 | $139,400 | $23,000 | $0 | $0 | $0 |
| 2011 | $139,400 | $23,000 | $0 | $0 | $0 |
| 2010 | $131,700 | $23,000 | $0 | $0 | $0 |
| 2009 | $148,900 | $23,000 | $0 | $0 | $0 |
| 2008 | $109,200 | $23,000 | $0 | $0 | $0 |
| 2007 | $109,200 | $23,000 | $0 | $0 | $0 |
Deed and Sales History
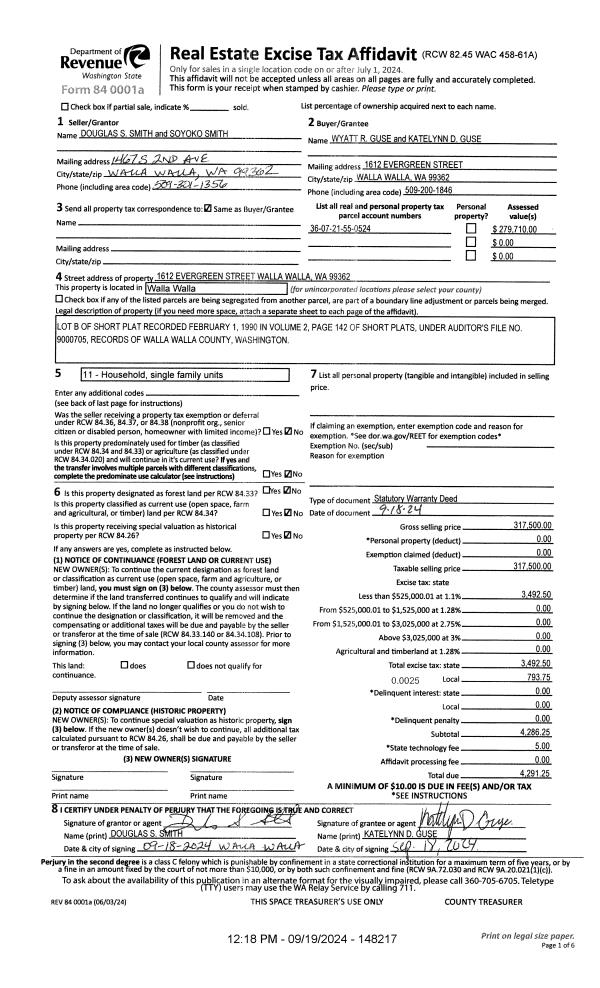
| 1 | 09/19/2024 | SWD | STATUTORY WARRANTY DEED | SMITH DOUGLAS S & SOYOKO | GUSE WYATT R & KATELYNN D | | | $317,500.00 | 148217 | 2024-05361 |
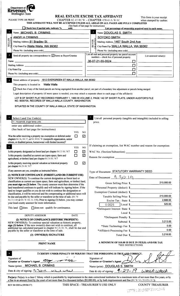
| 2 | 09/30/2019 | SWD | STATUTORY WARRANTY DEED | CRIMINS MICHAEL B & ANGELA | SMITH DOUGLAS S & SOYOKO | | | $210,000.00 | 137781 | 2019-07697 |
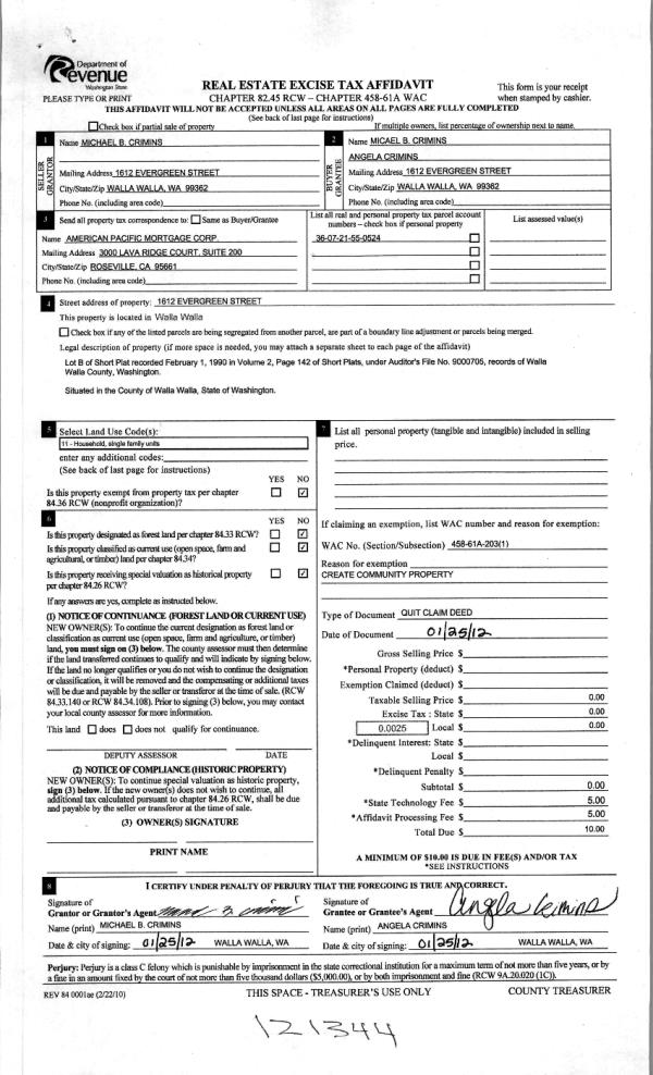
| 3 | 01/30/2012 | QCD | QUIT CLAIM DEED | CRIMINS, MICHAEL B | CRIMINS, MICHAEL B & ANGELA | | | | 121344 | 2012-00837 |
| 4 | 07/27/2007 | QCD | QUIT CLAIM DEED | CRIMINS, RACHEL J | CRIMINS, MICHAEL B | | | | 113357 | 2007-08686 |
| 5 | 07/27/2007 | WARRANTY D | WARRANTY DEED | CRAWFORD, DOUGLAS & GERALDINE | CRIMINS, MICHAEL B | | | $175,000.00 | 113356 | 2007-08685 |
| 6 | 02/01/1990 | WARRANTY D | WARRANTY DEED | | | | | $0.00 | 0 | 9000-705 |
Payout Agreement
| No payout information available.. |