Property
Account |
| Property ID: | 32911 | Abbreviated Legal Description: | STUBBLEFIELD SUB DVN LOT 3 BLK 6 |
| Parcel Number: | 360728740603 | Agent Code: | |
| Type: | Real | | |
| Tax Area: | 1 - OL-140-F | Land Use Code | 11 |
| Open Space: | N | DFL | N |
| Historic Property: | N | Remodel Property: | N |
| Multi-Family Redevelopment: | N | | |
| Township: | 7 | Section: | 28 |
| Range: | 36 |
Location |
| Address: | 1859 BREVOR DR WA 99362 | Mapsco: | |
| Neighborhood: | G Res | Map ID: | |
| Neighborhood CD: | 614011 |
Owner |
| Name: | GLUCK TRACY J | Owner ID: | 70366 |
| Mailing Address: | PAMELA J GLUCK JTWROS 1859 BREVOR DR WALLA WALLA, WA 99362 | % Ownership: | 100.0000000000% |
| | | Exemptions: | |
Taxes and Assessment Details
Values
| (+) Improvement Homesite Value: | + | $0 | |
| (+) Improvement Non-Homesite Value: | + | $574,200 | |
| (+) Land Homesite Value: | + | $0 | |
| (+) Land Non-Homesite Value: | + | $120,000 | |
| (+) Curr Use (HS): | + | $0 | $0 |
| (+) Curr Use (NHS): | + | $0 | $0 |
| | | -------------------------- | |
| (=) Market Value: | = | $694,200 | |
| (–) Productivity Loss: | – | $0 | |
| | | -------------------------- | |
| (=) Subtotal: | = | $694,200 | |
| (+) Senior Appraised Value: | + | $0 | |
| (+) Non-Senior Appraised Value: | + | $694,200 | |
| | | -------------------------- | |
| (=) Total Appraised Value: | = | $694,200 | |
| (–) Senior Exemption Loss: | – | $0 | |
| (–) Exemption Loss: | – | $0 | |
| | | -------------------------- | |
| (=) Taxable Value: | = | $694,200 | |
Taxing Jurisdiction
| Owner: | GLUCK TRACY J | | |
| % Ownership: | 100.0000000000% | | |
| Total Value: | $694,200 | | |
| Tax Area: | 1 - OL-140-F |
| CERFD | CURRENT EXPENSE REFUND 010 | 0.0000000000 | $694,200 | $694,200 | $0.00 | | |
| CURREXP | CURRENT EXPENSE 010 | 1.0175366760 | $694,200 | $694,200 | $706.37 | | |
| HUMNSERV | HUMAN SERVICES 119 | 0.0250000000 | $694,200 | $694,200 | $17.36 | | |
| SLDREL | SOLDIERS RELIEF 121 | 0.0155990005 | $694,200 | $694,200 | $10.83 | | |
| EMERGSER | EMS 147 | 0.3792580840 | $694,200 | $694,200 | $263.28 | | |
| EMSRFD | EMS REFUND 147 | 0.0000000000 | $694,200 | $694,200 | $0.00 | | |
| PORTRFD | PORT REFUND 640 | 0.0000000000 | $694,200 | $694,200 | $0.00 | | |
| PORTWWGEN | PORT OF WW 640 | 0.2460186015 | $694,200 | $694,200 | $170.79 | | |
| SD140BOND | SD #140 BOND 764 | 0.8342371393 | $694,200 | $694,200 | $579.13 | | |
| SD140GEN | SD #140 GENERAL 760 | 2.0646500647 | $694,200 | $694,200 | $1,433.28 | | |
| ST2 | STATE SCHOOL PART 2 600 | 0.8131451643 | $694,200 | $694,200 | $564.49 | | |
| STATESCHL | STATE SCHOOL 600 | 1.5158548041 | $694,200 | $694,200 | $1,052.31 | | |
| STREFUND | STATE REFUND LEVY 603 | 0.0000000000 | $694,200 | $694,200 | $0.00 | | |
| CWWBOND | C OF WW BOND 643 | 0.2760494372 | $694,200 | $694,200 | $191.63 | | |
| CWWGEN | CITY OF WW 631 | 1.6100204973 | $694,200 | $694,200 | $1,117.68 | | |
| CWWRFD | CITY OF WALLA WALLA REFUND 631 | 0.0000000000 | $694,200 | $694,200 | $0.00 | | |
| | Total Tax Rate: | 8.7973694689 | | | | | |
| | | | | Taxes w/Current Exemptions: | $6,107.15 | | |
| | | | | Taxes w/o Exemptions: | $6,107.15 | | |
Improvement / Building
| Improvement #1: | RESIDENTIAL | State Code: | 11 | 1890.0 sqft | Value: | $574,200 |
| Exterior Wall: | HARDBOARD | Heating/Cooling: | WARM & COOLED AIR | | Number of Bathrooms: | 3 | Number of Bedrooms: | 3 | | Plumbing: | 13 | Roof Covering: | COMP SHINGLE |
|
| | Type | Description | Class CD | Sub Class CD | Year Built | Area |
| | MA | Main Area | 1 | 40 | 1966 | 1890.0 |
| | SI1 | SITE IMPROVEMENT | 1 | 40 | 1966 | 4.5 |
| | BASE | BASEMENT | 1 | 40 | 1966 | 1774.0 |
| | BPF | BASEMENT -PARTITIONED FINISH | 1 | 40 | 1966 | 1582.0 |
| | ATG | Attached Garage | 1 | 40 | 1966 | 563.0 |
| | WOD | Wood Deck | 1 | 40 | 1966 | 547.0 |
| | D2F | Double 2 Story Fireplace | 1 | 40 | 1966 | 1.0 |
| | RPC | OPEN PORCH W/ROOF , CEILED | 1 | 40 | 1966 | 24.0 |
Sketch
Property Image
Land
| 1 | RES 1 | Converted: Residential | 0.3117 | 13576.00 | 0.00 | 0.00 | 1.00 | $120,000 | $0 |
Roll Value History
| 2026 | N/A | N/A | N/A | N/A | N/A |
| 2025 | $565,980 | $150,000 | $0 | $715,980 | $715,980 |
| 2024 | $574,200 | $120,000 | $0 | $694,200 | $694,200 |
| 2023 | $574,200 | $120,000 | $0 | $694,200 | $694,200 |
| 2022 | $574,200 | $85,000 | $0 | $659,200 | $659,200 |
| 2021 | $358,880 | $85,000 | $0 | $443,880 | $443,880 |
| 2020 | $326,250 | $85,000 | $0 | $411,250 | $411,250 |
| 2019 | $326,250 | $85,000 | $0 | $411,250 | $411,250 |
| 2018 | $288,970 | $50,000 | $0 | $338,970 | $338,970 |
| 2017 | $262,700 | $50,000 | $0 | $312,700 | $312,700 |
| 2016 | $262,700 | $50,000 | $0 | $312,700 | $312,700 |
| 2015 | $262,700 | $50,000 | $0 | $312,700 | $312,700 |
| 2014 | $262,700 | $50,000 | $0 | $312,700 | $312,700 |
| 2013 | $262,700 | $50,000 | $0 | $312,700 | $312,700 |
| 2012 | $230,400 | $50,000 | $0 | $0 | $0 |
| 2011 | $230,400 | $50,000 | $0 | $0 | $0 |
| 2010 | $230,400 | $50,000 | $0 | $0 | $0 |
| 2009 | $261,500 | $50,000 | $0 | $0 | $0 |
| 2008 | $261,500 | $50,000 | $0 | $0 | $0 |
| 2007 | $190,900 | $30,000 | $0 | $0 | $0 |
Deed and Sales History
| 1 | 10/04/2021 | SWD | STATUTORY WARRANTY DEED | GUNNINGHAM FREDERICK J & JULIANN M | GLUCK TRACY J | | | $675,000.00 | 142605 | 2021-12105 |
| 2 | 09/11/2017 | SWD | STATUTORY WARRANTY DEED | SWIRE PACIFIC HOLDINGS INC | GUNNINGHAM FREDERICK J & JULIANN M | | | $405,000.00 | 133193 | 2017-07122 |
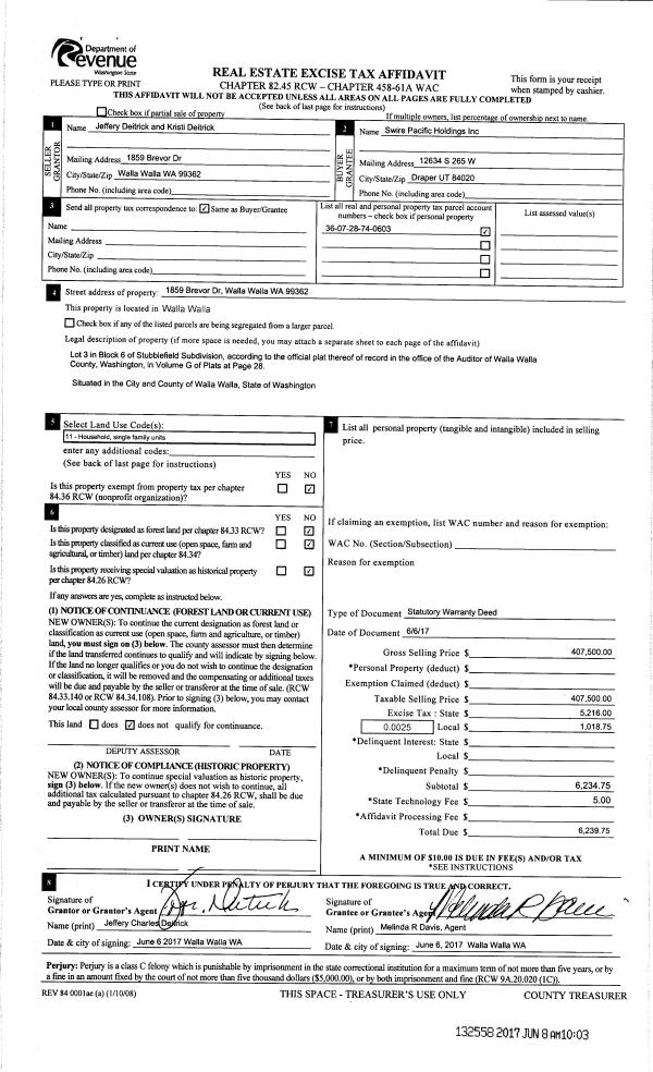
| 3 | 06/08/2017 | SWD | STATUTORY WARRANTY DEED | DEITRICK JEFFREY CHARLES | SWIRE PACIFIC HOLDINGS INC | | | $407,500.00 | 132558 | 2017-04365 |
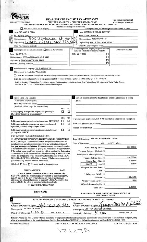
| 4 | 01/13/2012 | WARRANTY D | WARRANTY DEED | PELO, RICHARD R & KATHERINE E | DEITRICK, JEFFREY CHARLES | | | $330,000.00 | 121278 | 2012-00426 |
| 5 | 03/01/1966 | WARRANTY D | WARRANTY DEED | | | | | $4,175.00 | 0 | 3170-474725 |
Payout Agreement
| No payout information available.. |