Property
Account |
| Property ID: | 32891 | Abbreviated Legal Description: | 34-8-38 LOT 90 OF SURVEY WITHIN SE1/4, LESS WLY PTN & LESS PT INS1/2S1/2 |
| Parcel Number: | 380834410001 | Agent Code: | |
| Type: | Real | | |
| Tax Area: | 309 - 101 | Land Use Code | 91 |
| Open Space: | N | DFL | N |
| Historic Property: | N | Remodel Property: | N |
| Multi-Family Redevelopment: | N | | |
| Township: | 8 | Section: | 34 |
| Range: | 38 |
Location |
| Address: | WA 99329 | Mapsco: | |
| Neighborhood: | 0 Farm | Map ID: | |
| Neighborhood CD: | 5250 |
Owner |
| Name: | JOHNSON JOSEPH D & DENISE W | Owner ID: | 70556 |
| Mailing Address: | 2742 LEOPOLD LN RICHLAND, WA 99352 | % Ownership: | 100.0000000000% |
| | | Exemptions: | |
Taxes and Assessment Details
Property Tax Information as of
02/21/2026
Click on "Statement Details" to expand or collapse a tax statement.
* Please enter a valid date ** Please enter a valid date *
Statement Details |
| | TOTAL: | $0.00 | $0.00 | $0.00 | $0.00 | $0.00 | $0.00 |
|
| | $0.00 | $0.00 | $0.00 | $0.00 | $0.00 | $0.00 |
Values
| (+) Improvement Homesite Value: | + | $0 | |
| (+) Improvement Non-Homesite Value: | + | $0 | |
| (+) Land Homesite Value: | + | $0 | |
| (+) Land Non-Homesite Value: | + | $50,000 | |
| (+) Curr Use (HS): | + | $0 | $0 |
| (+) Curr Use (NHS): | + | $0 | $0 |
| | | -------------------------- | |
| (=) Market Value: | = | $50,000 | |
| (–) Productivity Loss: | – | $0 | |
| | | -------------------------- | |
| (=) Subtotal: | = | $50,000 | |
| (+) Senior Appraised Value: | + | $0 | |
| (+) Non-Senior Appraised Value: | + | $50,000 | |
| | | -------------------------- | |
| (=) Total Appraised Value: | = | $50,000 | |
| (–) Senior Exemption Loss: | – | $0 | |
| (–) Exemption Loss: | – | $0 | |
| | | -------------------------- | |
| (=) Taxable Value: | = | $50,000 | |
Taxing Jurisdiction
| Owner: | JOHNSON JOSEPH D & DENISE W | | |
| % Ownership: | 100.0000000000% | | |
| Total Value: | $50,000 | | |
| Tax Area: | 309 - 101 |
| CERFD | CURRENT EXPENSE REFUND 010 | 0.0000000000 | $50,000 | $50,000 | $0.00 | | |
| CURREXP | CURRENT EXPENSE 010 | 1.0175366760 | $50,000 | $50,000 | $50.88 | | |
| HUMNSERV | HUMAN SERVICES 119 | 0.0250000000 | $50,000 | $50,000 | $1.25 | | |
| SLDREL | SOLDIERS RELIEF 121 | 0.0155990005 | $50,000 | $50,000 | $0.78 | | |
| EMERGSER | EMS 147 | 0.3792580840 | $50,000 | $50,000 | $18.96 | | |
| EMSRFD | EMS REFUND 147 | 0.0000000000 | $50,000 | $50,000 | $0.00 | | |
| RLBRFD | RURAL LIBRARY REFUND 623 | 0.0000000000 | $50,000 | $50,000 | $0.00 | | |
| RURALLIB | RURAL LIBRARY 623 | 0.3710609029 | $50,000 | $50,000 | $18.55 | | |
| PORTRFD | PORT REFUND 640 | 0.0000000000 | $50,000 | $50,000 | $0.00 | | |
| PORTWWGEN | PORT OF WW 640 | 0.2460186015 | $50,000 | $50,000 | $12.30 | | |
| SD101CAP | SD #101 CAP 752 | 0.5894423472 | $50,000 | $50,000 | $29.47 | | |
| SD101GEN | SD #101 GENERAL 750 | 0.7455117868 | $50,000 | $50,000 | $37.28 | | |
| ST2 | STATE SCHOOL PART 2 600 | 0.8131451643 | $50,000 | $50,000 | $40.66 | | |
| STATESCHL | STATE SCHOOL 600 | 1.5158548041 | $50,000 | $50,000 | $75.79 | | |
| STREFUND | STATE REFUND LEVY 603 | 0.0000000000 | $50,000 | $50,000 | $0.00 | | |
| COROAD | COUNTY ROAD 115 | 1.6549953990 | $50,000 | $50,000 | $82.75 | | |
| CRPRD | COUNTY ROAD REFUND 115 | 0.0000000000 | $50,000 | $50,000 | $0.00 | | |
| | Total Tax Rate: | 7.3734227663 | | | | | |
| | | | | Taxes w/Current Exemptions: | $368.67 | | |
| | | | | Taxes w/o Exemptions: | $368.67 | | |
Improvement / Building
Sketch
| No sketches available for this property. |
Property Image
Land
| 1 | 11-MTN | Mountain | 83.3400 | 0.00 | 0.00 | 0.00 | 1.00 | $50,000 | $0 |
Roll Value History
| 2026 | N/A | N/A | N/A | N/A | N/A |
| 2025 | $0 | $66,670 | $0 | $66,670 | $66,670 |
| 2024 | $0 | $66,670 | $0 | $66,670 | $66,670 |
| 2023 | $0 | $50,000 | $0 | $50,000 | $50,000 |
| 2022 | $0 | $50,000 | $0 | $50,000 | $50,000 |
| 2021 | $0 | $50,000 | $0 | $50,000 | $50,000 |
| 2020 | $0 | $50,000 | $0 | $50,000 | $50,000 |
| 2019 | $0 | $50,000 | $0 | $50,000 | $50,000 |
| 2018 | $0 | $50,000 | $0 | $50,000 | $50,000 |
| 2017 | $0 | $50,000 | $0 | $50,000 | $50,000 |
| 2016 | $0 | $50,000 | $0 | $50,000 | $50,000 |
| 2015 | $0 | $50,000 | $0 | $50,000 | $50,000 |
| 2014 | $0 | $50,000 | $0 | $50,000 | $50,000 |
| 2013 | $0 | $50,000 | $50,000 | $50,000 | $50,000 |
| 2012 | $0 | $50,000 | $0 | $0 | $0 |
| 2011 | $0 | $50,000 | $0 | $0 | $0 |
| 2010 | $0 | $50,000 | $0 | $0 | $0 |
| 2009 | $0 | $50,000 | $0 | $0 | $0 |
| 2008 | $0 | $50,000 | $0 | $0 | $0 |
| 2007 | $0 | $50,000 | $0 | $0 | $0 |
Deed and Sales History
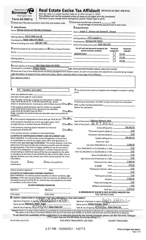
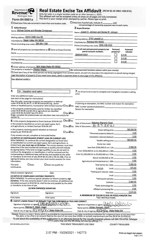
| 1 | 10/29/2021 | SWD | STATUTORY WARRANTY DEED | SMIRES MICHAEL | JOHNSON JOSEPH D & DENISE W | | | $190,000.00 | 142773 | 2021-13075 |
| 2 | 02/14/2012 | WARRANTY D | WARRANTY DEED | LELAND, ROY M | SMIRES, MICHAEL | | | | 0 | 2012-01265 |
| 3 | 02/15/1994 | WARRANTY D | WARRANTY DEED | | | | | $59,500.00 | 81038 | 2169-402070 |
Payout Agreement
| No payout information available.. |