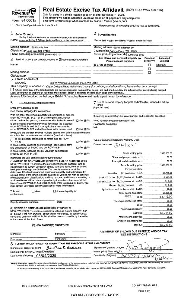
| 1 | 03/06/2025 | SWD | STATUTORY WARRANTY DEED | WILSON-ANDERSON SHIRLEY J | WIGGINS SARA & JEREMY | | | $566,000.00 | 149019 | 2025-01156 |
| 2 | 01/09/2012 | WARRANTY D | WARRANTY DEED | WILSON-ANDERSON, SHIRLEY J | CITY OF COLLEGE PLACE | | | | 0 | 2012-00213 |
| 3 | 04/17/2006 | QCD | QUIT CLAIM DEED | HUTSON, SCOTT B | HUTSON, SHIRLEY J ANDERSON | | | | 110045 | 2006-04318 |
| 4 | 04/17/2006 | WARRANTY D | WARRANTY DEED | MAJERUS, DOUGLAS | WILSON-ANDERSON, SHIRLEY J | | | $299,900.00 | 110046 | 2006-04319 |
| 5 | 01/12/2004 | WARRANTY D | WARRANTY DEED | PONTI, R GARY & ALBERT C (BOB) | MAJERUS DOUGLAS & CHRISTINA M | | | $92,000.00 | 103898 | 2004-00338 |
|   | |