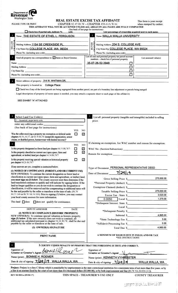
Property
Account |
| Property ID: | 32884 | Abbreviated Legal Description: | BLALOCK ORCHARDS TAX 14 LOT 10 BLK 39 LESS PTN TO CITY OF COLLEGEPLACE FOR RD RIGHT OF WAY AREA |
| Parcel Number: | 350726523948 | Agent Code: | |
| Type: | Real | | |
| Tax Area: | 75 - CP 250 | Land Use Code | 11 |
| Open Space: | N | DFL | N |
| Historic Property: | N | Remodel Property: | N |
| Multi-Family Redevelopment: | N | | |
| Township: | 7 | Section: | 26 |
| Range: | 35 |
Location |
| Address: | 314 W WHITMAN DR A WA 99324 | Mapsco: | |
| Neighborhood: | A SFR | Map ID: | |
| Neighborhood CD: | 113011 |
Owner |
| Name: | WALLA WALLA UNIVERSITY | Owner ID: | 45263 |
| Mailing Address: | 204 S COLLEGE AVE COLLEGE PLACE, WA 99324 | % Ownership: | 100.0000000000% |
| | | Exemptions: | |
Taxes and Assessment Details
Property Tax Information as of
04/19/2026
Click on "Statement Details" to expand or collapse a tax statement.
* Please enter a valid date ** Please enter a valid date *
Statement Details |
| | TOTAL: | $0.00 | $0.00 | $0.00 | $0.00 | $0.00 | $0.00 |
|
| | $0.00 | $0.00 | $0.00 | $0.00 | $0.00 | $0.00 |
Values
| (+) Improvement Homesite Value: | + | $261,060 | |
| (+) Improvement Non-Homesite Value: | + | $0 | |
| (+) Land Homesite Value: | + | $61,110 | |
| (+) Land Non-Homesite Value: | + | $0 | |
| (+) Curr Use (HS): | + | $0 | $0 |
| (+) Curr Use (NHS): | + | $0 | $0 |
| | | -------------------------- | |
| (=) Market Value: | = | $322,170 | |
| (–) Productivity Loss: | – | $0 | |
| | | -------------------------- | |
| (=) Subtotal: | = | $322,170 | |
| (+) Senior Appraised Value: | + | $0 | |
| (+) Non-Senior Appraised Value: | + | $322,170 | |
| | | -------------------------- | |
| (=) Total Appraised Value: | = | $322,170 | |
| (–) Senior Exemption Loss: | – | $0 | |
| (–) Exemption Loss: | – | $0 | |
| | | -------------------------- | |
| (=) Taxable Value: | = | $322,170 | |
Taxing Jurisdiction
| Owner: | WALLA WALLA UNIVERSITY | | |
| % Ownership: | 100.0000000000% | | |
| Total Value: | $322,170 | | |
| Tax Area: | 75 - CP 250 |
| CERFD | CURRENT EXPENSE REFUND 010 | 0.0000000000 | $322,170 | $322,170 | $0.00 | | |
| CURREXP | CURRENT EXPENSE 010 | 1.0175366760 | $322,170 | $322,170 | $327.82 | | |
| HUMNSERV | HUMAN SERVICES 119 | 0.0250000000 | $322,170 | $322,170 | $8.05 | | |
| SLDREL | SOLDIERS RELIEF 121 | 0.0155990005 | $322,170 | $322,170 | $5.03 | | |
| COLLPLBOND | C OF CP BOND 644 | 0.4374241808 | $322,170 | $322,170 | $140.92 | | |
| COLLPLGEN | CITY OF CP 632 | 1.4453819216 | $322,170 | $322,170 | $465.66 | | |
| EMERGSER | EMS 147 | 0.3792580840 | $322,170 | $322,170 | $122.19 | | |
| EMSRFD | EMS REFUND 147 | 0.0000000000 | $322,170 | $322,170 | $0.00 | | |
| RURALLIB | RURAL LIBRARY 623 | 0.3710609029 | $322,170 | $322,170 | $119.54 | | |
| PORTRFD | PORT REFUND 640 | 0.0000000000 | $322,170 | $322,170 | $0.00 | | |
| PORTWWGEN | PORT OF WW 640 | 0.2460186015 | $322,170 | $322,170 | $79.26 | | |
| SD250BOND | SD #250 BOND 773 | 1.4560608159 | $322,170 | $322,170 | $469.10 | | |
| SD250GEN | SD #250 GENERAL 770 | 2.3880724087 | $322,170 | $322,170 | $769.37 | | |
| ST2 | STATE SCHOOL PART 2 600 | 0.8131451643 | $322,170 | $322,170 | $261.97 | | |
| STATESCHL | STATE SCHOOL 600 | 1.5158548041 | $322,170 | $322,170 | $488.36 | | |
| STREFUND | STATE REFUND LEVY 603 | 0.0000000000 | $322,170 | $322,170 | $0.00 | | |
| | Total Tax Rate: | 10.1104125603 | | | | | |
| | | | | Taxes w/Current Exemptions: | $3,257.27 | | |
| | | | | Taxes w/o Exemptions: | $3,257.27 | | |
Improvement / Building
| Improvement #1: | RESIDENTIAL | State Code: | 11 | 1340.0 sqft | Value: | $261,060 |
| Exterior Wall: | VINYL | Heating/Cooling: | WARM & COOLED AIR | | Number of Bathrooms: | 3 | Number of Bedrooms: | 6 | | Plumbing: | 12 | Roof Covering: | COMP SHINGLE |
|
| | Type | Description | Class CD | Sub Class CD | Year Built | Area |
| | MA | Main Area | 4 | 35 | 1940 | 1340.0 |
| | UPFL | Upper Floor (included in main area) | 4 | 35 | 1940 | 416.0 |
| | SI1 | SITE IMPROVEMENT | 4 | 35 | 1940 | 1.5 |
| | BASE | BASEMENT | 4 | 35 | 1940 | 924.0 |
| | BPF | BASEMENT -PARTITIONED FINISH | 4 | 35 | 1940 | 900.0 |
| | SWP | Solid Wall Porch | 4 | 35 | 1940 | 119.0 |
| | RPS | PORCH W/STEPS,ROOF | 4 | 35 | 1940 | 36.0 |
| | S1F | Single One Story Fireplace | 4 | 35 | 1940 | 1.0 |
| | WOD | Wood Deck | 4 | 35 | 1940 | 1.5 |
Sketch
Property Image
Land
| 1 | RES 1 | Converted: Residential | 0.2209 | 9623.00 | 0.00 | 0.00 | 1.00 | $61,110 | $0 |
Roll Value History
| 2026 | N/A | N/A | N/A | N/A | N/A |
| 2025 | $234,950 | $90,750 | $0 | $325,700 | $325,700 |
| 2024 | $261,060 | $61,110 | $0 | $322,170 | $322,170 |
| 2023 | $261,060 | $61,110 | $0 | $322,170 | $322,170 |
| 2022 | $234,890 | $61,110 | $0 | $296,000 | $296,000 |
| 2021 | $210,600 | $61,110 | $0 | $271,710 | $271,710 |
| 2020 | $145,240 | $61,110 | $0 | $206,350 | $206,350 |
| 2019 | $159,550 | $46,800 | $0 | $206,350 | $206,350 |
| 2018 | $151,960 | $46,800 | $0 | $198,760 | $198,760 |
| 2017 | $126,630 | $46,800 | $0 | $173,430 | $58,920 |
| 2016 | $105,530 | $46,800 | $0 | $152,330 | $58,920 |
| 2015 | $100,500 | $46,800 | $0 | $147,300 | $58,920 |
| 2014 | $100,500 | $46,800 | $0 | $147,300 | $58,920 |
| 2013 | $100,500 | $46,800 | $0 | $147,300 | $58,920 |
| 2012 | $84,900 | $140,700 | $0 | $225,600 | $58,920 |
| 2011 | $114,300 | $47,100 | $0 | $161,400 | $58,920 |
| 2010 | $108,300 | $47,100 | $0 | $0 | $0 |
| 2009 | $116,500 | $47,100 | $0 | $0 | $0 |
| 2008 | $91,400 | $24,700 | $0 | $0 | $0 |
| 2007 | $91,400 | $24,700 | $0 | $0 | $0 |
Deed and Sales History
| 1 | 07/30/2019 | DPR | DEED OF PERSONAL REPRESENTATIVE | FERGUSON ETHEL L ESTATE OF | WALLA WALLA UNIVERSITY | | | $275,000.00 | 137377 | 2019-05586 |
| 2 | 01/09/2012 | WARRANTY D | WARRANTY DEED | FERGUSON, ETHEL | CITY OF COLLEGE PLACE | | | | 0 | 2012-00236 |
| 3 | 10/03/2007 | QCD | QUIT CLAIM DEED | FERGUSON, GERALD I & ETHEL L | FERGUSON, ETHEL | | | | 113818 | 2007-11562 |
| 4 | 08/15/1980 | WARRANTY D | WARRANTY DEED | | | | | $38,000.00 | 0 | 1849-005894 |
Payout Agreement
| No payout information available.. |