Property
Account |
| Property ID: | 32882 | Abbreviated Legal Description: | BLALOCK ORCHARDS (ADJUSTED LOT 3 SURVEY 2022-07330) PORTION LOT 13 BLK 39; LESS RD ROW |
| Parcel Number: | 350726523926 | Agent Code: | |
| Type: | Real | | |
| Tax Area: | 75 - CP 250 | Land Use Code | 11 |
| Open Space: | N | DFL | N |
| Historic Property: | N | Remodel Property: | N |
| Multi-Family Redevelopment: | N | | |
| Township: | 7 | Section: | 26 |
| Range: | 35 |
Location |
| Address: | 126 W WHITMAN DR WA 99324 | Mapsco: | |
| Neighborhood: | A MH | Map ID: | |
| Neighborhood CD: | 113061 |
Owner |
| Name: | ZACHRISON FAMILY TRUST | Owner ID: | 65053 |
| Mailing Address: | 14995 SE AMISIGGER RD BORING, OR 97009 | % Ownership: | 100.0000000000% |
| | | Exemptions: | |
Taxes and Assessment Details
Values
| (+) Improvement Homesite Value: | + | $0 | |
| (+) Improvement Non-Homesite Value: | + | $0 | |
| (+) Land Homesite Value: | + | $0 | |
| (+) Land Non-Homesite Value: | + | $51,640 | |
| (+) Curr Use (HS): | + | $0 | $0 |
| (+) Curr Use (NHS): | + | $0 | $0 |
| | | -------------------------- | |
| (=) Market Value: | = | $51,640 | |
| (–) Productivity Loss: | – | $0 | |
| | | -------------------------- | |
| (=) Subtotal: | = | $51,640 | |
| (+) Senior Appraised Value: | + | $0 | |
| (+) Non-Senior Appraised Value: | + | $51,640 | |
| | | -------------------------- | |
| (=) Total Appraised Value: | = | $51,640 | |
| (–) Senior Exemption Loss: | – | $0 | |
| (–) Exemption Loss: | – | $0 | |
| | | -------------------------- | |
| (=) Taxable Value: | = | $51,640 | |
Taxing Jurisdiction
| Owner: | ZACHRISON FAMILY TRUST | | |
| % Ownership: | 100.0000000000% | | |
| Total Value: | $51,640 | | |
| Tax Area: | 75 - CP 250 |
| CERFD | CURRENT EXPENSE REFUND 010 | 0.0000000000 | $51,640 | $51,640 | $0.00 | | |
| CURREXP | CURRENT EXPENSE 010 | 1.0175366760 | $51,640 | $51,640 | $52.55 | | |
| HUMNSERV | HUMAN SERVICES 119 | 0.0250000000 | $51,640 | $51,640 | $1.29 | | |
| SLDREL | SOLDIERS RELIEF 121 | 0.0155990005 | $51,640 | $51,640 | $0.81 | | |
| COLLPLBOND | C OF CP BOND 644 | 0.4374241808 | $51,640 | $51,640 | $22.59 | | |
| COLLPLGEN | CITY OF CP 632 | 1.4453819216 | $51,640 | $51,640 | $74.64 | | |
| EMERGSER | EMS 147 | 0.3792580840 | $51,640 | $51,640 | $19.58 | | |
| EMSRFD | EMS REFUND 147 | 0.0000000000 | $51,640 | $51,640 | $0.00 | | |
| RURALLIB | RURAL LIBRARY 623 | 0.3710609029 | $51,640 | $51,640 | $19.16 | | |
| PORTRFD | PORT REFUND 640 | 0.0000000000 | $51,640 | $51,640 | $0.00 | | |
| PORTWWGEN | PORT OF WW 640 | 0.2460186015 | $51,640 | $51,640 | $12.70 | | |
| SD250BOND | SD #250 BOND 773 | 1.4560608159 | $51,640 | $51,640 | $75.19 | | |
| SD250GEN | SD #250 GENERAL 770 | 2.3880724087 | $51,640 | $51,640 | $123.32 | | |
| ST2 | STATE SCHOOL PART 2 600 | 0.8131451643 | $51,640 | $51,640 | $41.99 | | |
| STATESCHL | STATE SCHOOL 600 | 1.5158548041 | $51,640 | $51,640 | $78.28 | | |
| STREFUND | STATE REFUND LEVY 603 | 0.0000000000 | $51,640 | $51,640 | $0.00 | | |
| | Total Tax Rate: | 10.1104125603 | | | | | |
| | | | | Taxes w/Current Exemptions: | $522.10 | | |
| | | | | Taxes w/o Exemptions: | $522.10 | | |
Improvement / Building
Sketch
| No sketches available for this property. |
Property Image
Land
| 1 | RES 1 | Converted: Residential | 0.1756 | 7650.00 | 0.00 | 0.00 | 1.00 | $51,640 | $0 |
Roll Value History
| 2026 | N/A | N/A | N/A | N/A | N/A |
| 2025 | $0 | $76,500 | $0 | $76,500 | $76,500 |
| 2024 | $0 | $51,640 | $0 | $51,640 | $51,640 |
| 2023 | $0 | $51,640 | $0 | $51,640 | $51,640 |
| 2022 | $0 | $68,630 | $0 | $68,630 | $68,630 |
| 2021 | $118,210 | $68,630 | $0 | $186,840 | $186,840 |
| 2020 | $118,210 | $68,630 | $0 | $186,840 | $186,840 |
| 2019 | $128,640 | $58,200 | $0 | $186,840 | $186,840 |
| 2018 | $122,510 | $58,200 | $0 | $180,710 | $180,710 |
| 2017 | $122,510 | $58,200 | $0 | $180,710 | $180,710 |
| 2016 | $111,380 | $58,200 | $0 | $169,580 | $169,580 |
| 2015 | $148,500 | $58,200 | $0 | $206,700 | $206,700 |
| 2014 | $165,000 | $58,200 | $0 | $223,200 | $223,200 |
| 2013 | $165,000 | $58,200 | $0 | $223,200 | $223,200 |
| 2012 | $165,000 | $58,200 | $0 | $0 | $0 |
| 2011 | $165,000 | $58,200 | $0 | $0 | $0 |
| 2010 | $165,000 | $58,200 | $0 | $0 | $0 |
| 2009 | $176,700 | $58,200 | $0 | $0 | $0 |
| 2008 | $110,000 | $36,400 | $0 | $0 | $0 |
| 2007 | $110,000 | $36,400 | $0 | $0 | $0 |
Deed and Sales History
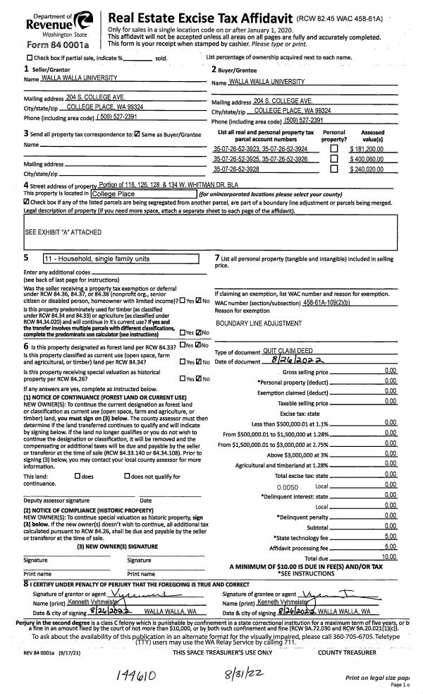
| 1 | 08/31/2022 | QCD | QUIT CLAIM DEED | ZACHRISON FAMILY TRUST | ZACHRISON FAMILY TRUST | | | | 144612 | 2022-07333 |
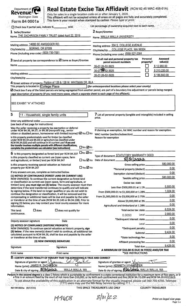
| 2 | 08/31/2022 | SWD | STATUTORY WARRANTY DEED | ZACHRISON FAMILY TRUST | WALLA WALLA UNIVERSITY | | | | 144608 | 2022-07331 |
| 3 | 08/31/2022 | SURVEY | SURVEY | | | 14 | 66 | | 0 | 2022-07330 |
| 4 | 04/22/2019 | WARRANTY D | WARRANTY DEED | ZACHRISON JAMES R & JUDY E | ZACHRISON FAMILY TRUST | | | $0.00 | 136818 | 2019-02920 |
| 5 | 01/09/2012 | WARRANTY D | WARRANTY DEED | ZACHRISON, JAMES R & JUDY E | CITY OF COLLEGE PLACE | | | | 0 | 2012-00224 |
| 6 | 06/23/1995 | WARRANTY D | WARRANTY DEED | | | | | $170,000.00 | 84228 | 2319-505789 |
Payout Agreement
| No payout information available.. |