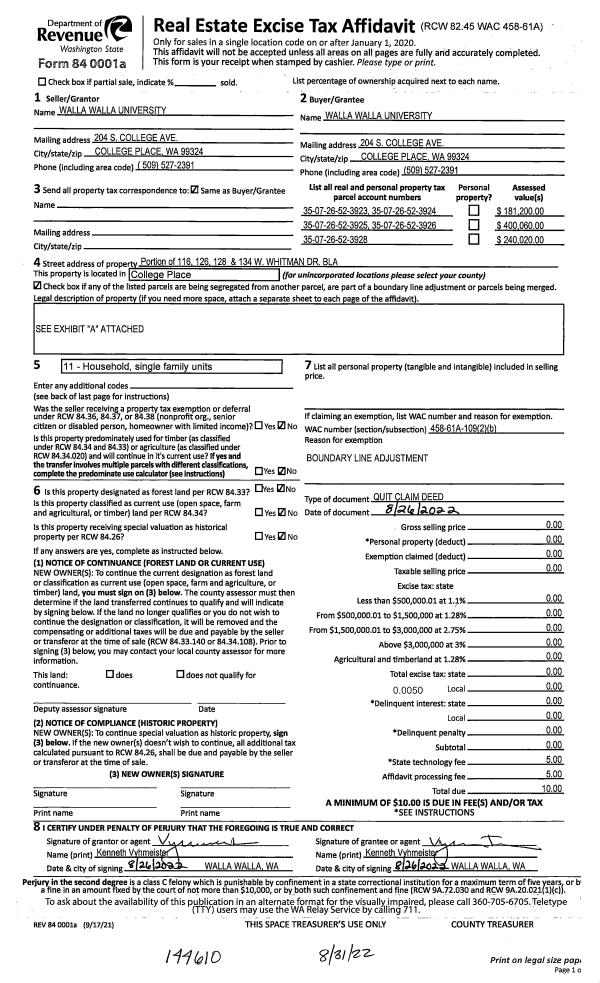
Property
Account |
| Property ID: | 32881 | Abbreviated Legal Description: | BLALOCK ORCHARDS (ADJUSTED LOT 5 SURVEY 2022-07330) PORTION LOT 12 BLK 39; LESS RD ROW |
| Parcel Number: | 350726523924 | Agent Code: | |
| Type: | Real | | |
| Tax Area: | 75 - CP 250 | Land Use Code | 11 |
| Open Space: | N | DFL | N |
| Historic Property: | N | Remodel Property: | N |
| Multi-Family Redevelopment: | N | | |
| Township: | 7 | Section: | 26 |
| Range: | 35 |
Location |
| Address: | 134 W WHITMAN DR WA 99324 | Mapsco: | |
| Neighborhood: | A SFR | Map ID: | |
| Neighborhood CD: | 113011 |
Owner |
| Name: | ZACHRISON FAMILY TRUST | Owner ID: | 65053 |
| Mailing Address: | 14995 SE AMISIGGER RD BORING, OR 97009 | % Ownership: | 100.0000000000% |
| | | Exemptions: | |
Taxes and Assessment Details
Property Tax Information as of
02/21/2026
Click on "Statement Details" to expand or collapse a tax statement.
* Please enter a valid date ** Please enter a valid date *
Statement Details |
| | TOTAL: | $0.00 | $0.00 | $0.00 | $0.00 | $0.00 | $0.00 |
|
| | $0.00 | $0.00 | $0.00 | $0.00 | $0.00 | $0.00 |
Values
| (+) Improvement Homesite Value: | + | $0 | |
| (+) Improvement Non-Homesite Value: | + | $160,830 | |
| (+) Land Homesite Value: | + | $0 | |
| (+) Land Non-Homesite Value: | + | $83,560 | |
| (+) Curr Use (HS): | + | $0 | $0 |
| (+) Curr Use (NHS): | + | $0 | $0 |
| | | -------------------------- | |
| (=) Market Value: | = | $244,390 | |
| (–) Productivity Loss: | – | $0 | |
| | | -------------------------- | |
| (=) Subtotal: | = | $244,390 | |
| (+) Senior Appraised Value: | + | $0 | |
| (+) Non-Senior Appraised Value: | + | $244,390 | |
| | | -------------------------- | |
| (=) Total Appraised Value: | = | $244,390 | |
| (–) Senior Exemption Loss: | – | $0 | |
| (–) Exemption Loss: | – | $0 | |
| | | -------------------------- | |
| (=) Taxable Value: | = | $244,390 | |
Taxing Jurisdiction
| Owner: | ZACHRISON FAMILY TRUST | | |
| % Ownership: | 100.0000000000% | | |
| Total Value: | $244,390 | | |
| Tax Area: | 75 - CP 250 |
| CERFD | CURRENT EXPENSE REFUND 010 | 0.0000000000 | $244,390 | $244,390 | $0.00 | | |
| CURREXP | CURRENT EXPENSE 010 | 0.9851088983 | $244,390 | $244,390 | $240.75 | | |
| HUMNSERV | HUMAN SERVICES 119 | 0.0250000000 | $244,390 | $244,390 | $6.11 | | |
| SLDREL | SOLDIERS RELIEF 121 | 0.0155990000 | $244,390 | $244,390 | $3.81 | | |
| COLLPLBOND | C OF CP BOND 644 | 0.3846009312 | $244,390 | $244,390 | $93.99 | | |
| COLLPLGEN | CITY OF CP 632 | 1.4193088888 | $244,390 | $244,390 | $346.86 | | |
| EMERGSER | EMS 147 | 0.3676811629 | $244,390 | $244,390 | $89.86 | | |
| EMSRFD | EMS REFUND 147 | 0.0000000000 | $244,390 | $244,390 | $0.00 | | |
| RLBRFD | RURAL LIBRARY REFUND 623 | 0.0000000000 | $244,390 | $0 | $0.00 | | |
| RURALLIB | RURAL LIBRARY 623 | 0.0000000000 | $244,390 | $0 | $0.00 | | |
| PORTRFD | PORT REFUND 640 | 0.0000000000 | $244,390 | $244,390 | $0.00 | | |
| PORTWWGEN | PORT OF WW 640 | 0.2344301070 | $244,390 | $244,390 | $57.29 | | |
| SD250BOND | SD #250 BOND 773 | 1.3740031235 | $244,390 | $244,390 | $335.79 | | |
| SD250GEN | SD #250 GENERAL 770 | 2.4999999988 | $244,390 | $244,390 | $610.98 | | |
| ST2 | STATE SCHOOL PART 2 600 | 0.8853714103 | $244,390 | $244,390 | $216.38 | | |
| STATESCHL | STATE SCHOOL 600 | 1.6424571473 | $244,390 | $244,390 | $401.40 | | |
| STREFUND | STATE REFUND LEVY 603 | 0.0000000000 | $244,390 | $244,390 | $0.00 | | |
| | Total Tax Rate: | 9.8335606681 | | | | | |
| | | | | Taxes w/Current Exemptions: | $2,403.22 | | |
| | | | | Taxes w/o Exemptions: | $2,403.22 | | |
Improvement / Building
| Improvement #1: | RESIDENTIAL | State Code: | 11 | 1622.0 sqft | Value: | $160,830 |
| Exterior Wall: | SIDING | Heating/Cooling: | FORCED AIR | | Number of Bathrooms: | 2 | Number of Bedrooms: | 3 | | Plumbing: | 11 | Roof Covering: | COMP SHINGLE |
|
| | Type | Description | Class CD | Sub Class CD | Year Built | Area |
| | MA | Main Area | 4 | 25 | 1920 | 1622.0 |
| | UPFL | Upper Floor (included in main area) | 4 | 25 | 1920 | 462.0 |
| | SI1 | SITE IMPROVEMENT | 4 | 25 | 1920 | 1.0 |
| | BASE | BASEMENT | 4 | 25 | 1920 | 520.0 |
| | WDR | WOOD DECK W/ROOF | 4 | 25 | 1920 | 98.0 |
| | DTG | Detached Garage | 4 | 25 | 1920 | 200.0 |
| | BNV | BUILDING NO VALUE | 4 | 25 | 1920 | 384.0 |
Sketch
Property Image
Land
| 1 | RES 1 | Converted: Residential | 0.1918 | 8356.00 | 0.00 | 0.00 | 1.00 | $83,560 | $0 |
Roll Value History
| 2026 | N/A | N/A | N/A | N/A | N/A |
| 2025 | $160,830 | $83,560 | $0 | $244,390 | $244,390 |
| 2024 | $160,830 | $56,400 | $0 | $217,230 | $217,230 |
| 2023 | $160,830 | $56,400 | $0 | $217,230 | $217,230 |
| 2022 | $160,830 | $61,020 | $0 | $221,850 | $221,850 |
| 2021 | $107,220 | $61,020 | $0 | $168,240 | $168,240 |
| 2020 | $89,350 | $61,020 | $0 | $150,370 | $150,370 |
| 2019 | $103,670 | $46,700 | $0 | $150,370 | $150,370 |
| 2018 | $98,730 | $46,700 | $0 | $145,430 | $145,430 |
| 2017 | $94,030 | $46,700 | $0 | $140,730 | $140,730 |
| 2016 | $62,690 | $46,700 | $0 | $109,390 | $109,390 |
| 2015 | $59,700 | $46,700 | $0 | $106,400 | $106,400 |
| 2014 | $59,700 | $46,700 | $0 | $106,400 | $106,400 |
| 2013 | $59,700 | $46,700 | $0 | $106,400 | $106,400 |
| 2012 | $59,600 | $46,800 | $0 | $0 | $0 |
| 2011 | $59,600 | $46,800 | $0 | $0 | $0 |
| 2010 | $59,600 | $46,800 | $0 | $0 | $0 |
| 2009 | $65,200 | $46,800 | $0 | $0 | $0 |
| 2008 | $63,000 | $24,400 | $0 | $0 | $0 |
| 2007 | $63,000 | $24,400 | $0 | $0 | $0 |
Deed and Sales History
| 1 | 08/31/2022 | QCD | QUIT CLAIM DEED | ZACHRISON FAMILY TRUST | ZACHRISON FAMILY TRUST | | | | 144612 | 2022-07333 |
| 2 | 08/31/2022 | SWD | STATUTORY WARRANTY DEED | ZACHRISON FAMILY TRUST | WALLA WALLA UNIVERSITY | | | | 144608 | 2022-07331 |
| 3 | 08/31/2022 | SURVEY | SURVEY | | | 14 | 66 | | 0 | 2022-07330 |
| 4 | 04/22/2019 | WARRANTY D | WARRANTY DEED | ZACHRISON JAMES R & JUDY E | ZACHRISON FAMILY TRUST | 2 PARCELS | | $0.00 | 136819 | 2019-02921 |
| 5 | 01/09/2012 | WARRANTY D | WARRANTY DEED | ZACHRISON, JAMES R & JUDY E | CITY OF COLLEGE PLACE | | | | 0 | 2012-00223 |
| 6 | 10/09/1986 | WARRANTY D | WARRANTY DEED | | | | | $47,000.00 | 0 | 1598-607938 |
|   | |
Payout Agreement
| No payout information available.. |