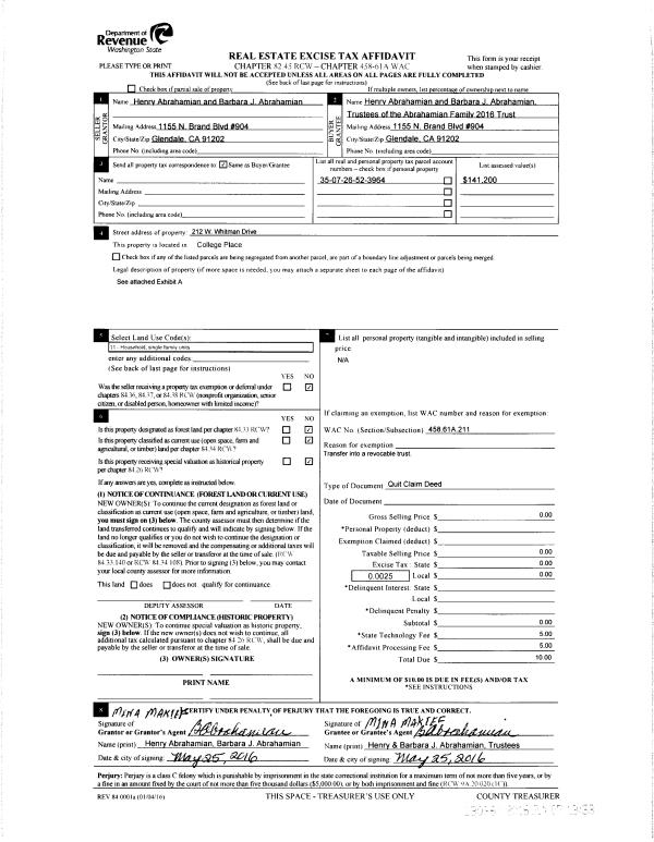
Property
Account |
| Property ID: | 32879 | Abbreviated Legal Description: | BLALOCK ORCHARDS SLY PT TAX 15 LOT 12 BLK 39 (TRACT B OF SURVEY)LESS PTN TO CITY OF CP FOR RD RIGHT OF WAY AREA |
| Parcel Number: | 350726523964 | Agent Code: | |
| Type: | Real | | |
| Tax Area: | 75 - CP 250 | Land Use Code | 11 |
| Open Space: | N | DFL | N |
| Historic Property: | N | Remodel Property: | N |
| Multi-Family Redevelopment: | N | | |
| Township: | 7 | Section: | 26 |
| Range: | 35 |
Location |
| Address: | 212 W WHITMAN DR WA 99324 | Mapsco: | |
| Neighborhood: | A SFR | Map ID: | |
| Neighborhood CD: | 113011 |
Owner |
| Name: | ABRAHAMIAN FAMILY 2016 TRUST | Owner ID: | 58871 |
| Mailing Address: | 3838 BROKEN ELM LN APISON, TN 37302 | % Ownership: | 100.0000000000% |
| | | Exemptions: | |
Taxes and Assessment Details
Values
| (+) Improvement Homesite Value: | + | $0 | |
| (+) Improvement Non-Homesite Value: | + | $158,280 | |
| (+) Land Homesite Value: | + | $0 | |
| (+) Land Non-Homesite Value: | + | $57,100 | |
| (+) Curr Use (HS): | + | $0 | $0 |
| (+) Curr Use (NHS): | + | $0 | $0 |
| | | -------------------------- | |
| (=) Market Value: | = | $215,380 | |
| (–) Productivity Loss: | – | $0 | |
| | | -------------------------- | |
| (=) Subtotal: | = | $215,380 | |
| (+) Senior Appraised Value: | + | $0 | |
| (+) Non-Senior Appraised Value: | + | $215,380 | |
| | | -------------------------- | |
| (=) Total Appraised Value: | = | $215,380 | |
| (–) Senior Exemption Loss: | – | $0 | |
| (–) Exemption Loss: | – | $0 | |
| | | -------------------------- | |
| (=) Taxable Value: | = | $215,380 | |
Taxing Jurisdiction
| Owner: | ABRAHAMIAN FAMILY 2016 TRUST | | |
| % Ownership: | 100.0000000000% | | |
| Total Value: | $215,380 | | |
| Tax Area: | 75 - CP 250 |
| CERFD | CURRENT EXPENSE REFUND 010 | 0.0000000000 | $215,380 | $215,380 | $0.00 | | |
| CURREXP | CURRENT EXPENSE 010 | 1.0175366760 | $215,380 | $215,380 | $219.16 | | |
| HUMNSERV | HUMAN SERVICES 119 | 0.0250000000 | $215,380 | $215,380 | $5.38 | | |
| SLDREL | SOLDIERS RELIEF 121 | 0.0155990005 | $215,380 | $215,380 | $3.36 | | |
| COLLPLBOND | C OF CP BOND 644 | 0.4374241808 | $215,380 | $215,380 | $94.21 | | |
| COLLPLGEN | CITY OF CP 632 | 1.4453819216 | $215,380 | $215,380 | $311.31 | | |
| EMERGSER | EMS 147 | 0.3792580840 | $215,380 | $215,380 | $81.68 | | |
| EMSRFD | EMS REFUND 147 | 0.0000000000 | $215,380 | $215,380 | $0.00 | | |
| RURALLIB | RURAL LIBRARY 623 | 0.3710609029 | $215,380 | $215,380 | $79.92 | | |
| PORTRFD | PORT REFUND 640 | 0.0000000000 | $215,380 | $215,380 | $0.00 | | |
| PORTWWGEN | PORT OF WW 640 | 0.2460186015 | $215,380 | $215,380 | $52.99 | | |
| SD250BOND | SD #250 BOND 773 | 1.4560608159 | $215,380 | $215,380 | $313.61 | | |
| SD250GEN | SD #250 GENERAL 770 | 2.3880724087 | $215,380 | $215,380 | $514.34 | | |
| ST2 | STATE SCHOOL PART 2 600 | 0.8131451643 | $215,380 | $215,380 | $175.14 | | |
| STATESCHL | STATE SCHOOL 600 | 1.5158548041 | $215,380 | $215,380 | $326.48 | | |
| STREFUND | STATE REFUND LEVY 603 | 0.0000000000 | $215,380 | $215,380 | $0.00 | | |
| | Total Tax Rate: | 10.1104125603 | | | | | |
| | | | | Taxes w/Current Exemptions: | $2,177.58 | | |
| | | | | Taxes w/o Exemptions: | $2,177.58 | | |
Improvement / Building
| Improvement #1: | RESIDENTIAL | State Code: | 11 | 2040.0 sqft | Value: | $158,280 |
| Exterior Wall: | SIDING | Heating/Cooling: | FLOOR FURNACE | | Number of Bathrooms: | 2 | Number of Bedrooms: | 4 | | Plumbing: | 12 | Roof Covering: | COMP SHINGLE |
|
| | Type | Description | Class CD | Sub Class CD | Year Built | Area |
| | MA | Main Area | 4 | 30 | 1913 | 2040.0 |
| | UPFL | Upper Floor (included in main area) | 4 | 30 | 1913 | 948.0 |
| | SI1 | SITE IMPROVEMENT | 4 | 30 | 1913 | 1.0 |
| | BASE | BASEMENT | 4 | 30 | 1913 | 474.0 |
| | WDR | WOOD DECK W/ROOF | 4 | 30 | 1913 | 108.0 |
| | WOD | Wood Deck | 4 | 30 | 1913 | 20.0 |
Sketch
Property Image
Land
| 1 | RES 1 | Converted: Residential | 0.1942 | 8459.00 | 0.00 | 0.00 | 1.00 | $57,100 | $0 |
Roll Value History
| 2026 | N/A | N/A | N/A | N/A | N/A |
| 2025 | $142,450 | $84,590 | $0 | $227,040 | $227,040 |
| 2024 | $158,280 | $57,100 | $0 | $215,380 | $215,380 |
| 2023 | $158,280 | $57,100 | $0 | $215,380 | $215,380 |
| 2022 | $158,280 | $57,100 | $0 | $215,380 | $215,380 |
| 2021 | $158,280 | $57,100 | $0 | $215,380 | $215,380 |
| 2020 | $121,750 | $57,100 | $0 | $178,850 | $178,850 |
| 2019 | $133,050 | $45,800 | $0 | $178,850 | $178,850 |
| 2018 | $126,720 | $45,800 | $0 | $172,520 | $172,520 |
| 2017 | $110,190 | $45,800 | $0 | $155,990 | $155,990 |
| 2016 | $100,170 | $45,800 | $0 | $145,970 | $145,970 |
| 2015 | $95,400 | $45,800 | $0 | $141,200 | $141,200 |
| 2014 | $95,400 | $45,800 | $0 | $141,200 | $141,200 |
| 2013 | $95,400 | $45,800 | $0 | $141,200 | $141,200 |
| 2012 | $95,300 | $45,900 | $0 | $0 | $0 |
| 2011 | $95,300 | $45,900 | $0 | $0 | $0 |
| 2010 | $95,300 | $45,900 | $0 | $0 | $0 |
| 2009 | $102,700 | $45,900 | $0 | $0 | $0 |
| 2008 | $105,700 | $23,400 | $0 | $0 | $0 |
| 2007 | $105,700 | $23,400 | $0 | $0 | $0 |
Deed and Sales History
| 1 | 05/25/2016 | QCD | QUIT CLAIM DEED | ABRAHAMIAN HENRY & BARBARA | ABRAHAMIAN FAMILY 2016 TRUST | | | $0.00 | 130361 | 2016-04267 |
| 2 | 01/09/2012 | WARRANTY D | WARRANTY DEED | ABRAHAMIAN, HENRY & BARBARA | CITY OF COLLEGE PLACE | | | | 0 | 2012-00221 |
| 3 | 11/01/1999 | WARRANTY D | WARRANTY DEED | | | | | $93,000.00 | 93941 | 2919-912543 |
Payout Agreement
| No payout information available.. |