Property
Account |
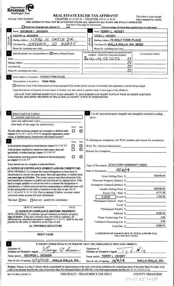
| Property ID: | 32865 | Abbreviated Legal Description: | TABLEROCK SUBD LOT A SHORT PLAT 5/40 2012-00493 (LOT 5; PLUS LOT 6) |
| Parcel Number: | 360604580053 | Agent Code: | |
| Type: | Real | | |
| Tax Area: | 5 - OL-140 | Land Use Code | 11 |
| Open Space: | N | DFL | N |
| Historic Property: | N | Remodel Property: | N |
| Multi-Family Redevelopment: | N | | |
| Township: | 6 | Section: | 4 |
| Range: | 36 |
Location |
| Address: | 75 WOLF FORK PL WA 99362 | Mapsco: | |
| Neighborhood: | VG Res | Map ID: | |
| Neighborhood CD: | 615011 |
Owner |
| Name: | HEISEY TERRY L & VICKY J | Owner ID: | 65993 |
| Mailing Address: | 75 WOLF FORK PLACE WALLA WALLA, WA 99362 | % Ownership: | 100.0000000000% |
| | | Exemptions: | |
Taxes and Assessment Details
Property Tax Information as of
02/21/2026
Click on "Statement Details" to expand or collapse a tax statement.
* Please enter a valid date ** Please enter a valid date *
Statement Details |
| | TOTAL: | $0.00 | $0.00 | $0.00 | $0.00 | $0.00 | $0.00 |
|
| | $0.00 | $0.00 | $0.00 | $0.00 | $0.00 | $0.00 |
Values
| (+) Improvement Homesite Value: | + | N/A | |
| (+) Improvement Non-Homesite Value: | + | N/A | |
| (+) Land Homesite Value: | + | N/A | |
| (+) Land Non-Homesite Value: | + | N/A | Ag / Timber Use Value |
| (+) Curr Use (HS): | + | N/A | N/A |
| (+) Curr Use (NHS): | + | N/A | N/A |
| | | -------------------------- | |
| (=) Market Value: | = | N/A | |
| (–) Productivity Loss: | – | N/A | |
| | | -------------------------- | |
| (=) Subtotal: | = | N/A | |
| (+) Senior Appraised Value: | + | N/A | |
| (+) Non-Senior Appraised Value: | + | N/A | |
| | | -------------------------- | |
| (=) Total Appraised Value: | = | N/A | |
| (–) Senior Exemption Loss: | – | N/A | |
| (–) Exemption Loss: | – | N/A | |
| | | -------------------------- | |
| (=) Taxable Value: | = | N/A | |
Taxing Jurisdiction
| Owner: | HEISEY TERRY L & VICKY J | | |
| % Ownership: | 100.0000000000% | | |
| Total Value: | N/A | | |
| Tax Area: | 5 - OL-140 |
| CERFD | CURRENT EXPENSE REFUND 010 | N/A | N/A | N/A | N/A | | |
| CURREXP | CURRENT EXPENSE 010 | N/A | N/A | N/A | N/A | | |
| HUMNSERV | HUMAN SERVICES 119 | N/A | N/A | N/A | N/A | | |
| SLDREL | SOLDIERS RELIEF 121 | N/A | N/A | N/A | N/A | | |
| EMERGSER | EMS 147 | N/A | N/A | N/A | N/A | | |
| EMSRFD | EMS REFUND 147 | N/A | N/A | N/A | N/A | | |
| PORTRFD | PORT REFUND 640 | N/A | N/A | N/A | N/A | | |
| PORTWWGEN | PORT OF WW 640 | N/A | N/A | N/A | N/A | | |
| SD140BOND | SD #140 BOND 764 | N/A | N/A | N/A | N/A | | |
| SD140GEN | SD #140 GENERAL 760 | N/A | N/A | N/A | N/A | | |
| ST2 | STATE SCHOOL PART 2 600 | N/A | N/A | N/A | N/A | | |
| STATESCHL | STATE SCHOOL 600 | N/A | N/A | N/A | N/A | | |
| STREFUND | STATE REFUND LEVY 603 | N/A | N/A | N/A | N/A | | |
| CWWBOND | C OF WW BOND 643 | N/A | N/A | N/A | N/A | | |
| CWWGEN | CITY OF WW 631 | N/A | N/A | N/A | N/A | | |
| CWWRFD | CITY OF WALLA WALLA REFUND 631 | N/A | N/A | N/A | N/A | | |
| | Total Tax Rate: | N/A | | | | | |
| | | | | Taxes w/Current Exemptions: | N/A | | |
| | | | | Taxes w/o Exemptions: | N/A | | |
Improvement / Building
| Improvement #1: | RESIDENTIAL | State Code: | 11 | 3077.0 sqft | Value: | N/A |
| Exterior Wall: | MASONRY VENEER | Heating/Cooling: | HEAT PUMP | | Number of Bathrooms: | 3 | Number of Bedrooms: | 3 | | Plumbing: | 16 | Roof Covering: | COMP SHINGLE |
|
| | Type | Description | Class CD | Sub Class CD | Year Built | Area |
| | MA | Main Area | 1 | 45 | 2012 | 3077.0 |
| | BON2 | BONUS RM ATT/REC OR APT FINISH | 1 | 45 | 0 | 552.0 |
| | RPC | OPEN PORCH W/ROOF , CEILED | 1 | 45 | 0 | 132.0 |
| | SI1 | SITE IMPROVEMENT | 1 | 45 | 0 | 5.0 |
| | WDR | WOOD DECK W/ROOF | 1 | 45 | 0 | 240.0 |
| | WOD | Wood Deck | 1 | 45 | 0 | 168.0 |
| | ATG | Attached Garage | 1 | 45 | 0 | 1334.0 |
Sketch
Property Image
Land
| 1 | RES 1 | Converted: Residential | 0.6337 | 27605.00 | 0.00 | 0.00 | 1.00 | N/A | N/A |
Roll Value History
| 2026 | N/A | N/A | N/A | N/A | N/A |
| 2025 | $677,950 | $180,000 | $0 | $857,950 | $857,950 |
| 2024 | $623,930 | $120,000 | $0 | $743,930 | $743,930 |
| 2023 | $623,930 | $120,000 | $0 | $743,930 | $743,930 |
| 2022 | $567,210 | $95,000 | $0 | $662,210 | $662,210 |
| 2021 | $515,640 | $95,000 | $0 | $610,640 | $610,640 |
| 2020 | $429,700 | $95,000 | $0 | $524,700 | $524,700 |
| 2019 | $472,200 | $95,000 | $0 | $567,200 | $567,200 |
| 2018 | $402,740 | $75,000 | $0 | $477,740 | $477,740 |
| 2017 | $383,560 | $75,000 | $0 | $458,560 | $458,560 |
| 2016 | $365,300 | $75,000 | $0 | $440,300 | $440,300 |
| 2015 | $365,300 | $75,000 | $0 | $440,300 | $440,300 |
| 2014 | $347,900 | $75,000 | $0 | $422,900 | $422,900 |
| 2013 | $347,900 | $75,000 | $0 | $422,900 | $422,900 |
| 2012 | $347,900 | $75,000 | $0 | $0 | $0 |
| 2011 | $347,900 | $75,000 | $0 | $0 | $0 |
| 2010 | $347,900 | $75,000 | $0 | $0 | $0 |
| 2009 | $347,900 | $75,000 | $0 | $0 | $0 |
| 2008 | $347,900 | $75,000 | $0 | $0 | $0 |
| 2007 | $347,900 | $75,000 | $0 | $0 | $0 |
Deed and Sales History
| 1 | 10/09/2019 | SWD | STATUTORY WARRANTY DEED | SESSER GEORGE L & CATHY A | HEISEY TERRY L & VICKY J | | | $529,000.00 | 137842 | 2019-08044 |
| 2 | 05/19/2011 | WARRANTY D | WARRANTY DEED | VAN WEST PROPERTIES LLC | SESSER GEORGE L & CATHY A | | | $250,000.00 | 120160 | 2011-03935 |
|   | |
| 3 | 12/21/2006 | WARRANTY D | WARRANTY DEED | NELSON BARTON R | VAN WEST PROPERTIES LLC | | | | 111941 | 2006-15131 |
| 4 | 04/09/2004 | WARRANTY D | WARRANTY DEED | GATEWOOD W PAUL | NELSON BARTON R | | | $218,000.00 | 104468 | 2004-03749 |
|   | |
Payout Agreement
| No payout information available.. |