Property
Account |
| Property ID: | 32786 | Abbreviated Legal Description: | MAJERUS ADDN PHASE II LOT 11 |
| Parcel Number: | 350725660011 | Agent Code: | |
| Type: | Real | | |
| Tax Area: | 75 - CP 250 | Land Use Code | 11 |
| Open Space: | N | DFL | N |
| Historic Property: | N | Remodel Property: | N |
| Multi-Family Redevelopment: | N | | |
| Township: | 7 | Section: | 25 |
| Range: | 35 |
Location |
| Address: | 336 NE KINGWOOD PL WA 99324 | Mapsco: | |
| Neighborhood: | A SFR | Map ID: | |
| Neighborhood CD: | 113011 |
Owner |
| Name: | WHITLEY KAITLYN DEE & GRANT NELSON | Owner ID: | 66402 |
| Mailing Address: | 336 NE KINGWOOD PL COLLEGE PLACE, WA 99324 | % Ownership: | 100.0000000000% |
| | | Exemptions: | |
Taxes and Assessment Details
Property Tax Information as of
02/21/2026
Click on "Statement Details" to expand or collapse a tax statement.
* Please enter a valid date ** Please enter a valid date *
Statement Details |
| | TOTAL: | $0.00 | $0.00 | $0.00 | $0.00 | $0.00 | $0.00 |
|
| | $0.00 | $0.00 | $0.00 | $0.00 | $0.00 | $0.00 |
Values
| (+) Improvement Homesite Value: | + | $0 | |
| (+) Improvement Non-Homesite Value: | + | $254,540 | |
| (+) Land Homesite Value: | + | $0 | |
| (+) Land Non-Homesite Value: | + | $70,000 | |
| (+) Curr Use (HS): | + | $0 | $0 |
| (+) Curr Use (NHS): | + | $0 | $0 |
| | | -------------------------- | |
| (=) Market Value: | = | $324,540 | |
| (–) Productivity Loss: | – | $0 | |
| | | -------------------------- | |
| (=) Subtotal: | = | $324,540 | |
| (+) Senior Appraised Value: | + | $0 | |
| (+) Non-Senior Appraised Value: | + | $324,540 | |
| | | -------------------------- | |
| (=) Total Appraised Value: | = | $324,540 | |
| (–) Senior Exemption Loss: | – | $0 | |
| (–) Exemption Loss: | – | $0 | |
| | | -------------------------- | |
| (=) Taxable Value: | = | $324,540 | |
Taxing Jurisdiction
| Owner: | WHITLEY KAITLYN DEE & GRANT NELSON | | |
| % Ownership: | 100.0000000000% | | |
| Total Value: | $324,540 | | |
| Tax Area: | 75 - CP 250 |
| CERFD | CURRENT EXPENSE REFUND 010 | 0.0000000000 | $324,540 | $324,540 | $0.00 | | |
| CURREXP | CURRENT EXPENSE 010 | 1.0175366760 | $324,540 | $324,540 | $330.23 | | |
| HUMNSERV | HUMAN SERVICES 119 | 0.0250000000 | $324,540 | $324,540 | $8.11 | | |
| SLDREL | SOLDIERS RELIEF 121 | 0.0155990005 | $324,540 | $324,540 | $5.06 | | |
| COLLPLBOND | C OF CP BOND 644 | 0.4374241808 | $324,540 | $324,540 | $141.96 | | |
| COLLPLGEN | CITY OF CP 632 | 1.4453819216 | $324,540 | $324,540 | $469.08 | | |
| EMERGSER | EMS 147 | 0.3792580840 | $324,540 | $324,540 | $123.08 | | |
| EMSRFD | EMS REFUND 147 | 0.0000000000 | $324,540 | $324,540 | $0.00 | | |
| RURALLIB | RURAL LIBRARY 623 | 0.3710609029 | $324,540 | $324,540 | $120.42 | | |
| PORTRFD | PORT REFUND 640 | 0.0000000000 | $324,540 | $324,540 | $0.00 | | |
| PORTWWGEN | PORT OF WW 640 | 0.2460186015 | $324,540 | $324,540 | $79.84 | | |
| SD250BOND | SD #250 BOND 773 | 1.4560608159 | $324,540 | $324,540 | $472.55 | | |
| SD250GEN | SD #250 GENERAL 770 | 2.3880724087 | $324,540 | $324,540 | $775.03 | | |
| ST2 | STATE SCHOOL PART 2 600 | 0.8131451643 | $324,540 | $324,540 | $263.90 | | |
| STATESCHL | STATE SCHOOL 600 | 1.5158548041 | $324,540 | $324,540 | $491.96 | | |
| STREFUND | STATE REFUND LEVY 603 | 0.0000000000 | $324,540 | $324,540 | $0.00 | | |
| | Total Tax Rate: | 10.1104125603 | | | | | |
| | | | | Taxes w/Current Exemptions: | $3,281.22 | | |
| | | | | Taxes w/o Exemptions: | $3,281.22 | | |
Improvement / Building
| Improvement #1: | RESIDENTIAL | State Code: | 11 | 1120.0 sqft | Value: | $254,540 |
| Exterior Wall: | PLYWOOD | Heating/Cooling: | WARM & COOLED AIR | | Number of Bathrooms: | 2 | Number of Bedrooms: | 3 | | Plumbing: | 9 | Roof Covering: | COMP SHINGLE |
|
| | Type | Description | Class CD | Sub Class CD | Year Built | Area |
| | MA | Main Area | 1 | 30 | 1997 | 1120.0 |
| | SI1 | SITE IMPROVEMENT | 1 | 30 | 1997 | 1.5 |
| | ATG | Attached Garage | 1 | 30 | 1997 | 400.0 |
| | RPO | OPEN PORCH W/ROOF | 1 | 30 | 1997 | 126.0 |
| | CPC | COVERED CARPORT/PATIO | 1 | 30 | 1997 | 374.0 |
Sketch
Property Image
Land
| 1 | RES 1 | Converted: Residential | 0.1621 | 7060.00 | 0.00 | 0.00 | 1.00 | $70,000 | $0 |
Roll Value History
| 2026 | N/A | N/A | N/A | N/A | N/A |
| 2025 | $203,630 | $125,000 | $0 | $328,630 | $328,630 |
| 2024 | $254,540 | $70,000 | $0 | $324,540 | $324,540 |
| 2023 | $254,540 | $70,000 | $0 | $324,540 | $324,540 |
| 2022 | $221,340 | $70,000 | $0 | $291,340 | $291,340 |
| 2021 | $192,470 | $70,000 | $0 | $262,470 | $262,470 |
| 2020 | $128,310 | $70,000 | $0 | $198,310 | $198,310 |
| 2019 | $143,310 | $55,000 | $0 | $198,310 | $198,310 |
| 2018 | $117,470 | $55,000 | $0 | $172,470 | $172,470 |
| 2017 | $106,790 | $55,000 | $0 | $161,790 | $161,790 |
| 2016 | $97,080 | $55,000 | $0 | $152,080 | $152,080 |
| 2015 | $88,260 | $55,000 | $0 | $143,260 | $143,260 |
| 2014 | $92,900 | $55,000 | $0 | $147,900 | $147,900 |
| 2013 | $92,900 | $55,000 | $0 | $147,900 | $147,900 |
| 2012 | $85,900 | $55,000 | $0 | $0 | $0 |
| 2011 | $85,900 | $55,000 | $0 | $0 | $0 |
| 2010 | $79,200 | $55,000 | $0 | $0 | $0 |
| 2009 | $110,700 | $55,000 | $0 | $0 | $0 |
| 2008 | $83,400 | $30,000 | $0 | $0 | $0 |
| 2007 | $83,400 | $30,000 | $0 | $0 | $0 |
Deed and Sales History
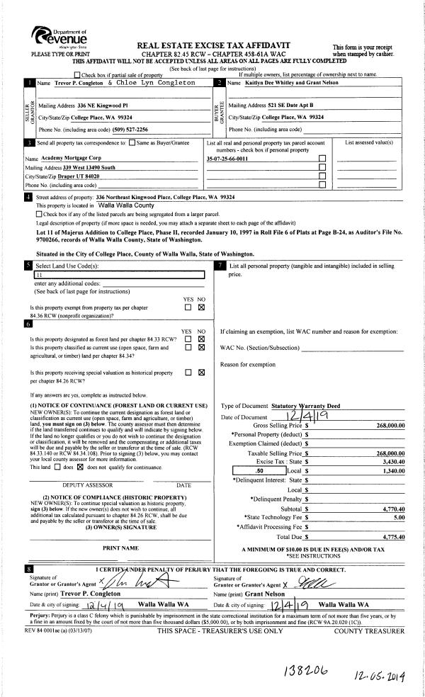
| 1 | 12/05/2019 | SWD | STATUTORY WARRANTY DEED | CONGLETON TREVOR P | WHITLEY KAITLYN DEE & GRANT NELSON | | | $268,000.00 | 138206 | 2019-10084 |
| 2 | 12/30/2011 | WARRANTY D | WARRANTY DEED | GIBBAR, DAWN M | CONGLETON, TREVOR P | | | $155,000.00 | 121191 | 2011-10304 |
| 3 | 05/31/2007 | QCD | QUIT CLAIM DEED | GIBBAR, CHRISTOPHER | GIBBAR, DAWN M | | | | 112949 | 2007-06229 |
| 4 | 05/31/2007 | WARRANTY D | WARRANTY DEED | HAYDEN, DEREK K | GIBBAR, DAWN M | | | $175,000.00 | 112948 | 2007-06228 |
| 5 | 12/28/2004 | WARRANTY D | WARRANTY DEED | THIEROLF, FRITZ R & BELLE | HAYDEN, DEREK K | | | $142,500.00 | 106511 | 2004-14895 |
| 6 | 06/26/2000 | WARRANTY D | WARRANTY DEED | | | | | $117,000.00 | 95339 | 2990-006096 |
Payout Agreement
| No payout information available.. |