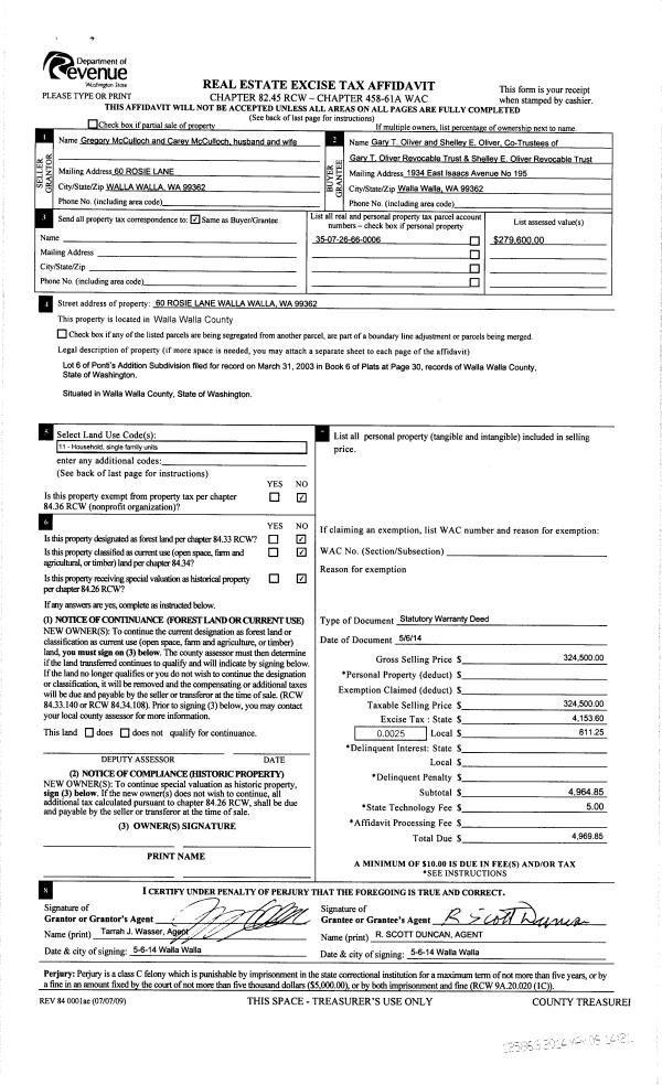
Property
Account |
| Property ID: | 32779 | Abbreviated Legal Description: | PONTI'S ADDITION LOT 6 |
| Parcel Number: | 350726660006 | Agent Code: | |
| Type: | Real | | |
| Tax Area: | 311 - 250-4 | Land Use Code | 11 |
| Open Space: | N | DFL | N |
| Historic Property: | N | Remodel Property: | N |
| Multi-Family Redevelopment: | N | | |
| Township: | 7 | Section: | 26 |
| Range: | 35 |
Location |
| Address: | 60 ROSIE LN WA 99324 | Mapsco: | |
| Neighborhood: | G SFR Rural/City Inf S | Map ID: | |
| Neighborhood CD: | 114212 |
Owner |
| Name: | GARY T OLIVER REVOCABLE TRUST & SHELLEY E OLIVER REVOCABLE TRUST | Owner ID: | 54876 |
| Mailing Address: | GARY T OLIVER & SHELLEY E OLIVER CO TRUSTEES 60 ROSIE LN WALLA WALLA, WA 99362 | % Ownership: | 100.0000000000% |
| | | Exemptions: | |
Taxes and Assessment Details
Values
| (+) Improvement Homesite Value: | + | $0 | |
| (+) Improvement Non-Homesite Value: | + | $380,190 | |
| (+) Land Homesite Value: | + | $0 | |
| (+) Land Non-Homesite Value: | + | $107,230 | |
| (+) Curr Use (HS): | + | $0 | $0 |
| (+) Curr Use (NHS): | + | $0 | $0 |
| | | -------------------------- | |
| (=) Market Value: | = | $487,420 | |
| (–) Productivity Loss: | – | $0 | |
| | | -------------------------- | |
| (=) Subtotal: | = | $487,420 | |
| (+) Senior Appraised Value: | + | $0 | |
| (+) Non-Senior Appraised Value: | + | $487,420 | |
| | | -------------------------- | |
| (=) Total Appraised Value: | = | $487,420 | |
| (–) Senior Exemption Loss: | – | $0 | |
| (–) Exemption Loss: | – | $0 | |
| | | -------------------------- | |
| (=) Taxable Value: | = | $487,420 | |
Taxing Jurisdiction
| Owner: | GARY T OLIVER REVOCABLE TRUST & SHELLEY E OLIVER REVOCABLE TRUST | | |
| % Ownership: | 100.0000000000% | | |
| Total Value: | $487,420 | | |
| Tax Area: | 311 - 250-4 |
| CERFD | CURRENT EXPENSE REFUND 010 | 0.0000000000 | $487,420 | $487,420 | $0.00 | | |
| CURREXP | CURRENT EXPENSE 010 | 1.0175366760 | $487,420 | $487,420 | $495.97 | | |
| HUMNSERV | HUMAN SERVICES 119 | 0.0250000000 | $487,420 | $487,420 | $12.19 | | |
| SLDREL | SOLDIERS RELIEF 121 | 0.0155990005 | $487,420 | $487,420 | $7.60 | | |
| EMERGSER | EMS 147 | 0.3792580840 | $487,420 | $487,420 | $184.86 | | |
| EMSRFD | EMS REFUND 147 | 0.0000000000 | $487,420 | $487,420 | $0.00 | | |
| FD4EXP | FD #4 EXPENSE 686 | 0.8836993059 | $487,420 | $487,420 | $430.73 | | |
| RLBRFD | RURAL LIBRARY REFUND 623 | 0.0000000000 | $487,420 | $487,420 | $0.00 | | |
| RURALLIB | RURAL LIBRARY 623 | 0.3710609029 | $487,420 | $487,420 | $180.86 | | |
| PORTRFD | PORT REFUND 640 | 0.0000000000 | $487,420 | $487,420 | $0.00 | | |
| PORTWWGEN | PORT OF WW 640 | 0.2460186015 | $487,420 | $487,420 | $119.91 | | |
| SD250BOND | SD #250 BOND 773 | 1.4560608159 | $487,420 | $487,420 | $709.71 | | |
| SD250GEN | SD #250 GENERAL 770 | 2.3880724087 | $487,420 | $487,420 | $1,163.99 | | |
| ST2 | STATE SCHOOL PART 2 600 | 0.8131451643 | $487,420 | $487,420 | $396.34 | | |
| STATESCHL | STATE SCHOOL 600 | 1.5158548041 | $487,420 | $487,420 | $738.86 | | |
| STREFUND | STATE REFUND LEVY 603 | 0.0000000000 | $487,420 | $487,420 | $0.00 | | |
| COROAD | COUNTY ROAD 115 | 1.6549953990 | $487,420 | $487,420 | $806.68 | | |
| CRPRD | COUNTY ROAD REFUND 115 | 0.0000000000 | $487,420 | $487,420 | $0.00 | | |
| | Total Tax Rate: | 10.7663011628 | | | | | |
| | | | | Taxes w/Current Exemptions: | $5,247.70 | | |
| | | | | Taxes w/o Exemptions: | $5,247.70 | | |
Improvement / Building
| Improvement #1: | RESIDENTIAL | State Code: | 11 | 1982.0 sqft | Value: | $380,190 |
| Exterior Wall: | SIDING | Heating/Cooling: | WARM & COOLED AIR | | Number of Bathrooms: | 2 | Number of Bedrooms: | 3 | | Plumbing: | 13 | Roof Covering: | COMP SHINGLE |
|
| | Type | Description | Class CD | Sub Class CD | Year Built | Area |
| | MA | Main Area | 1 | 40 | 2004 | 1982.0 |
| | SI1 | SITE IMPROVEMENT | 1 | 40 | 2004 | 2.5 |
| | ATG | Attached Garage | 1 | 40 | 2004 | 859.0 |
| | GFP | GAS FIREPLACE | 1 | 40 | 2004 | 1.0 |
| | CPC | COVERED CARPORT/PATIO | 1 | 40 | 2004 | 644.0 |
Sketch
Property Image
Land
| 1 | RES 1 | Converted: Residential | 0.5607 | 24426.00 | 0.00 | 0.00 | 1.00 | $107,230 | $0 |
Roll Value History
| 2026 | N/A | N/A | N/A | N/A | N/A |
| 2025 | $380,190 | $158,280 | $0 | $538,470 | $538,470 |
| 2024 | $380,190 | $107,230 | $0 | $487,420 | $487,420 |
| 2023 | $380,190 | $107,230 | $0 | $487,420 | $487,420 |
| 2022 | $380,190 | $107,230 | $0 | $487,420 | $487,420 |
| 2021 | $330,600 | $107,230 | $0 | $437,830 | $437,830 |
| 2020 | $213,290 | $107,230 | $0 | $320,520 | $320,520 |
| 2019 | $245,520 | $75,000 | $0 | $320,520 | $320,520 |
| 2018 | $245,520 | $75,000 | $0 | $320,520 | $320,520 |
| 2017 | $245,520 | $75,000 | $0 | $320,520 | $250,520 |
| 2016 | $245,520 | $75,000 | $0 | $320,520 | $320,520 |
| 2015 | $245,520 | $75,000 | $0 | $320,520 | $320,520 |
| 2014 | $204,600 | $75,000 | $0 | $279,600 | $279,600 |
| 2013 | $204,600 | $75,000 | $0 | $279,600 | $279,600 |
| 2012 | $235,700 | $75,000 | $0 | $0 | $0 |
| 2011 | $220,700 | $90,000 | $0 | $0 | $0 |
| 2010 | $220,700 | $90,000 | $0 | $0 | $0 |
| 2009 | $227,100 | $100,000 | $0 | $0 | $0 |
| 2008 | $191,100 | $45,000 | $0 | $0 | $0 |
| 2007 | $191,100 | $45,000 | $0 | $0 | $0 |
Deed and Sales History
| 1 | 05/09/2014 | SWD | STATUTORY WARRANTY DEED | MC CULLOCH GREGORY & CAREY | GARY T OLIVER REVOCABLE TRUST & SHELLEY E OLIVER REVOCABLE TRUST | | | $324,500.00 | 125863 | 2014-03192 |
| 2 | 12/23/2011 | WARRANTY D | WARRANTY DEED | POTTS, LAURA L | MC CULLOCH, GREGORY & CAREY | | | $285,000.00 | 121160 | 2011-10108 |
| 3 | 08/30/2004 | WARRANTY D | WARRANTY DEED | MAJERUS, DOUGLAS | POTTS, LAURA L | | | $263,220.00 | 105599 | 2004-09974 |
| 4 | 01/12/2004 | WARRANTY D | WARRANTY DEED | PONTI R GARY & ALBERT C (BOB) | MAJERUS DOUGLAS & CHRISTINA M | | | $92,000.00 | 103898 | 2004-00338 |
|   | |
Payout Agreement
| No payout information available.. |